Q宅,上海 / 元秀万建筑事务所
▼夜景鸟瞰,Aerial view at nigh

项目位于上海浦东距离航头东地铁站点不远的一个小村落。西南方向不远处可以看到高架上行驶的轨道交通。东侧紧挨着邻居西侧临河,河道对面是茂密的树林,半岛基地是其特点。
The project is located in a small village near Hangtoudong Metro Station in Pudong, Shanghai. In the southwest direction, one can see the elevated rail transit in the distance. To the east is a neighboring property, and to the west is a river. Opposite the riverbank lies a dense forest, with a peninsula site being its characteristic feature.
▼轨道交通方向鸟瞰图,Aerial view of the rail transit direction

第一次拜访基地时被震惊的并不是田园美景,而是轨交将城市与乡村切换得如此梦幻,如时光穿越。原建筑在是上世纪80年代建造的老房,处于危房阶段,业主申请了重新建造,望其父母能够居住得更加舒适安逸。
What was shocking during the first visit to the site was not the pastoral scenery, but how the rail transit so dreamily switched between urban and rural areas, as if traveling through time. The original house, built in the 1980s, was in a dilapidated state, prompting the owner to apply for a reconstruction to provide a more comfortable and peaceful living space for their parents.
▼入口方向鸟瞰图,Aerial view of the entrance direction

▼主入口人视图,Main entrance person view

按照批复的文件,主楼建筑占地面积需控制在72.9平米(8.1X9m),辅房控制在30平米。主楼为两层结构,辅房为一层,主楼南向边界不能超过东侧邻居的房屋。业主工作在市区周末或节假日回来跟父母居住,业主和她的父母要求有独立的卧室空间,辅房为书房和工作室。
According to the approved documents, the main building footprint must be limited to 72.9 square meters (8.1 x 9 m), and the auxiliary structure to 30 square meters. The main building is a two-story structure, while the auxiliary space is single-story. The southern boundary of the main building must not exceed the eastern neighbor’s house. The owner, who works in the city, returns to live with their parents on weekends or holidays. Both the parents and the owner require independent bedrooms, while the auxiliary space serves as a study and studio.
▼内庭院,inner courtyard

▼工作室看向内庭院,The studio looks towards the inner courtyard

空间划分Spatial Division
主楼,辅房及主入口门厅将南北狭长的基地划分了六块虚实的空间。主楼与副房围合出一个内向的庭院,内院选种了一棵双生黄杨,与河对岸的树木自然呼应。门厅和辅房围合出与马路等高的下沉庭院兼临时停车空间。门厅、辅房主楼层层递进增高,以谦卑相迎的姿态迎接主客。保留的柿子树主持南向的院落,空旷的场地有了新的秩序。
The main building, auxiliary building, and the main entrance hall divide the narrow north-south site into six spatial areas of varying density. The main building and auxiliary structure enclose an inward-facing courtyard, where a twin-trunked boxwood is planted, echoing the trees across the river. The entrance hall and the auxiliary building form a sunken courtyard at the same level as the road, which also serves as a temporary parking space. The entrance hall, auxiliary space, and main building rise in layers, adopting a humble posture to welcome residents and guests. A preserved persimmon tree presides over the southern courtyard, bringing new order to the open space.
▼次入口方向鸟瞰图,Aerial view of the secondary entrance direction

▼鸟瞰,Aerial view

主楼中轴动线界定了公私区域,东侧为卧室、卫生间及书房室等相对安静的私人区域,临河西侧的餐厅、楼梯及二层客厅为向河道开放的公共区域。一进一院一巷的空间格局有了城市的深度。
The central axis of the main building defines public and private zones: the east side houses bedrooms, bathrooms, and a study—quieter, private areas—while the west side, facing the river, accommodates the dining area, staircase, and second-floor living room, opening up to the river as a public zone. The spatial layout of one entrance, one courtyard, and one alleyway creates a sense of urban depth.
▼河对岸人视图,View of the person on the other side of the river

褶皱楼板Folding
辅房和主楼围合出内庭院,种植树木的下沉院子在多雨季的上海有利汇水和排水。主楼二层屋面以光照角度向内院单坡倾斜,端部楼板反转向东再次翘起,与邻居屋檐有了和谐对话,辅房向内院弧线倾斜四水归堂。
The auxiliary structure and main building enclose the inner courtyard.The sunken courtyard planted with trees is advantageous for water collection and drainage during the rainy season in Shanghai.The roof of the second floor of the main building tilts inward towards the courtyard at a single slope for optimal light. The end slab turns eastward and rises again, creating a harmonious dialogue with the neighbor’s eaves. The auxiliary building tilts towards the inner courtyard in a curved shape, with water converging from all sides.
▼从河对岸看住宅,View the residence from the other side of the river

▼外观,Exterior view

东西向悬挑的辅房屋面向南延伸建构二层楼板,并继续南向延伸出一个阳台再反向折向屋面,与屋面连成一体。向北弧线翘起的辅屋面折下向南继续建构内院和主楼的一层楼板。
The east-west cantilevered roof of the auxiliary building extends southward to form the second-floor slab and continues further to create a balcony then folds back to merge with the roof. The auxiliary roof, which curves upward to the north, folds down and continues to the south to form the inner courtyard and the first-floor slab of the main building.
▼外观,Exterior view

屋面、楼板,墙体褶皱交互的暧昧关系,让主和辅、上下,内外空间之间有了张力,空间具有了多种叙事的可能。
The interplay of folds between the roof, slab, and wall creates tension between the primary and secondary, upper and lower, interior and exterior spaces, allowing for multiple narrative possibilities.
▼河对岸半鸟瞰图,Aerial view of the opposite bank of the river

空间叙事Spatial Narrative
入口门厅北侧上方窄长的窗洞,引导风的去向。下方从墙体悬挑出的矮凳,可以短暂坐下。层层递增的台阶和临河户外平台将目光引向前方,透过门厅框景与刚好驶过的轨道交通不期而遇。向河道敞开的五扇大门似乎在迎接回家的主人,内院的双生黄杨充当绿色向导,左枝指向辅房的工作室和书房,右枝指向主楼客厅和餐厅。
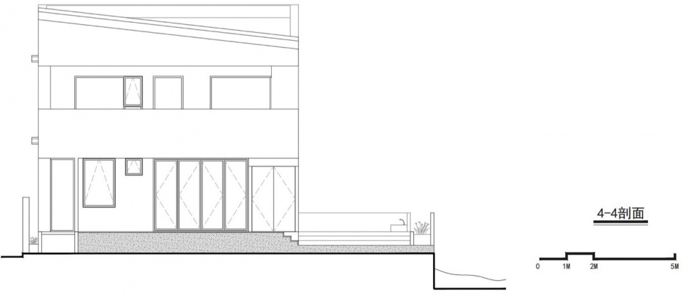
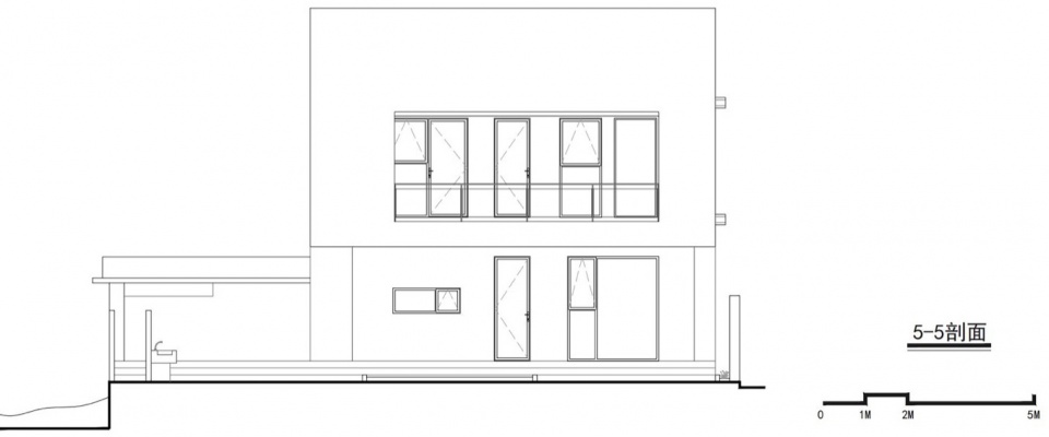
▼剖面图,Section

A narrow, elongated window above the north side of the entrance hall guides the direction of the wind, while a wall-mounted bench below offers a place to pause. Ascending steps and a riverside outdoor platform draw the gaze forward, where a framed view through the entrance hall unexpectedly captures passing rail transit. Five wide-open doors facing the river seem to welcome the homeowner, while the twin-trunked boxwood in the courtyard acts as a green guide—its left branch pointing to the studio and study in the auxiliary space, and its right branch leading to the living and dining areas in the main building.
▼辅房庭院与下沉庭院,Auxiliary house courtyard and sunken courtyard

▼下沉庭院看向河对岸,
Viewing the opposite bank of the river from the sunken courtyard

▼临河庭院看向门厅,The riverside courtyard looks towards the foyer

▼入口门厅看向临河庭院,Viewing the riverside courtyard from the entrance hall

▼内庭院入口透视图,Interior courtyard entrance perspective

▼临河庭院看向内院,Viewing the inner courtyard from the riverside courtyard

▼内庭院看向主楼,Viewing the main building from the inner courtyard

▼内庭院看向辅房,Viewing the auxiliary building from the inner courtyard

客厅向外望去,黄杨以另一种姿态与阳光交汇,在东墙留下斑驳树影,辅房曲线屋面将视线缓缓引向北方的天空。光线顺着墙体洒进客厅,随着光的方向走上楼梯。透过转角景观窗回望入口方向的树林、田园和远处的轻轨站,与城市拉近了距离。
▼草图,sketches


Looking out from the living room, the boxwood interacts with sunlight, casting dappled shadows on the east wall, while the curved roof of the auxiliary space gently directs the view toward the northern sky. Light spills into the living room along the walls, guiding one up the stairs. Through a corner window, looking back towards the entrance, one sees the forest, farmland, and the distant light rail station, bringing the city closer.
▼一楼客厅看向内庭院,Viewing the inner courtyard from the first-floor living room

▼一楼客厅看向楼梯,Viewing the staircase from the first-floor living room

▼楼梯上空,Above the staircase

二层客厅的落地窗将河道和对岸自然风光尽收眼底。联通南卧室的阳台不仅可遮阳,放大的阳台框洞时刻捕捉着田园和轨交移动的画面。餐厅向河道景观打开,向田野延伸,餐厅变得更加野趣自然。
The floor-to-ceiling windows of the second-floor living room offer panoramic views of the river and the natural scenery beyond. The balcony connected to the south bedroom not only provides shade, but its enlarged frame constantly captures the moving scenes of the farmland and the light rail. The dining area opens up to the river view and extends towards the fields, making the space more rustic and natural.
▼楼梯转角景观窗,Staircase corner landscape window

▼二层客厅,Second-floor living room

▼二层卧室,Second-floor bedroom

▼厨房与餐厅,kitchen and dining

▼餐厅向临河庭院打开,The dining room opens up to the riverside courtyard

图式Pattern
城市有太多居住和生活图式,而乡村却是单一的。乡村图式始终在固有的图式中顺应、同化着。眼前轰隆驶过的轻轨似乎在穿越一层层图式,而这个褶皱的盒子正在建构着与乡村和城市不同的居住图式。
Cities have a multitude of patterns for living and dwelling, while the countryside is characterized by a singular pattern. The rumbling light rail passing by seems to traverse these layers of patterns, while this folded box is constructing a pattern of living that is distinct from both the countryside and the city.
▼夜景鸟瞰,Aerial view at nigh

▼外观,Exterior water view

▼模型,model


▼总图,Site plan

▼一层平面图,Ground floor plan

▼二层平面图,First floor plan

▼立面图,Elevations


▼剖面图,Sections






Project name: Qhouse
Project type: HOUSES
Design: Yuanxiuwan Architect & Associates
Website: http://www.yxwaa.com/
Contact e-mail:1697437292@qq.com
Design year:2021
Completion Year:2025
Leader designer & Team: XiuwanYuan
Project location:Pudong, Shanghai, China
Gross built area: 180㎡
Photo credit: CL studio
Clients: Private
Materials: Concrete Glass \ Aluminium plate














