珠海规划科创中心 / nsaaa + 珠海市规划设计研究院
在建筑学界,地域性已经不算是一个新概念。特别是在小体量的项目里,越来越多的建筑师在尝试表达对于地域性的理解。但是对于城市里大体量的项目,尤其是高层建筑,似乎自动将地域性进行了屏蔽。绝大多数设计仍然在追求形式上所谓创新的表皮文化,凭借不断演进的幕墙技术大行其道。
In architectural discourse, regionalism is no longer a novel concept. For small-scale projects, increasing numbers of architects strive to interpret locality. Yet for large urban developments, especially high-rises, regional identity often seems inherently suppressed. Most designs still place their focus on being formally innovative with the aid of evolving curtain wall technologies.
▼项目街景,street view of the project

这种纯粹出于造型目的的设计使建筑不再具有真实性,任何一栋建筑都可以放在任何一个城市的任何一个位置。标志性作为一种制高点上的宣言,掩盖了设计的空洞和资本的控制。实际上,这种决绝的将“骨”和“皮”分离开来的方式,在某种程度上是对建筑学的背离,让现代主义以非常隐秘的方式回归到古典主义的逻辑里。将建筑变成了一件拥有造价不菲的表皮的工艺品,不与所在区域,也不与内部发生任何关联。
Such form-driven approaches strip architecture of authenticity, allowing buildings to be placed anywhere without context. The highest objective of being iconic statements, mask hollow design logic and capital-driven agendas. This rigid separation of “bones” and “skin” subtly regresses modernism into classical formalism, reducing architecture to ornamented objects with costly exteriors—disconnected from their sites and internal functions.
▼体育公园视角,view from the sports park

▼体育公园视角,view from the sports park

▼西北角视角,North-west view

一栋诚实的混凝土高层建筑An Honest Concrete High-Rise
项目伫立在珠海市香洲区,主要功能是设计研究院的办公总部,出租办公部分和面向公共的停车楼。方案上我们希望能够体现设计研究机构的学术气质以及设计感,与传统的商务办公楼明显的区分开来。同时,珠海属于南亚热带气候,年平均温度为22°C,全年降雨量约2000毫米。 气候温暖,雨量充沛,日照充足,是气候条件非常舒适的旅游城市。我们希望设计能够将人从封闭的空调写字楼里解放出来,充分结合当地气候和人文资源,最大化的拉近人和自然的关系。
Located in Xiangzhou District, Zhuhai, the project serves as an office headquarters for a design institute, with rental workspaces and a public parking tower. The design seeks to embody academic rigor and creativity, distinguishing itself from conventional commercial offices. Zhuhai’s subtropical climate—22°C annual average temperature, 2,000mm yearly rainfall, abundant sunshine—demands a response that liberates occupants from sealed air-conditioned boxes, reconnecting people with nature.
▼北侧立面,north elevation

▼建筑侧立面,side elevation

▼东北角立面,North-east elevation

同时,我们相信一栋能够经受住时间考验的建筑必须是诚实的,它需要去除掉虚伪的装饰,以建筑最真实,最直接的语言来表达自己。混凝土作为使用最广泛的一种建筑材料,能够很好的表达出建筑的雕塑感和结构性。随着时间的推移,它能够呈现一种风化感,有很强的历史氛围。我们也希望体现出混凝土精致和易于维护的一面,所以我们选用清水混凝土作为我们设计的主要语言。这对于一栋超过100米的建筑来说是很大的挑战,在业主的认可与支持下,我们得以在珠海把对高层建筑的想法化为现实。
We believe timeless architecture must be honest: stripped of superficial decoration, expressed through authentic structural language. Concrete, as a widely used material, inherently conveys sculptural solidity. Over time, its weathered texture evokes historical resonance. To balance refinement and practicality, fair-faced concrete became the primary material—a bold choice for a 100-meter-high structure, realized through the client’s unwavering support.
▼东北角近景,North-east closer view

整栋建筑长96m,宽27m,高99.8m,建筑立面接近方形。一字展开的水平遮阳板和树池是主体以及裙房部分唯一的语言,它们回应了建筑内部的功能,同时又很好地回应了城市。
The building measures 96m (length) × 27m (width) × 99.8m (height), with a near-square elevation. Horizontal sunshades and tree planters as a façade language unifies the main tower and podium, responding to both internal functions and urban context.
▼立面近景南侧幼儿园外视角,View from outside the kindergarten on the south side

垂直板楼 vs 双子塔楼Vertical Slab vs. Twin Towers
项目定位为高层建筑综合体,按照原本业主的期许,需要设置方案应为两栋塔楼,一栋自用,一栋用于出租。但是这样做便回归到了最常规的塔楼形式,办公空间的使用率受到限制,同时还产生两栋办公楼的对视问题。为了保证办公空间的使用效率,并且能够有机会整合出更多的公共空间,我们提出了大板楼的设计方案。
Initially envisioned as a twin-tower complex (one for self-use, one for leasing), this conventional approach risked inefficient layouts and visual conflicts between towers. Our alternative—a single vertical slab—optimized spatial efficiency while integrating public amenities.
▼立面近景,closer view of the facade

建筑各功能按照竖直方向进行布置。自下而上依次为公共停车场、出租办公和自用办公总部三大部分。在各功能的体块之间则插入了公共餐厅,咖啡,体育馆,会议室和报告厅,企业展厅等公共设施。这些缝隙空间成为供人“自由呼吸”的空中平台,让人们在办公之余可以到此放松休憩。
▼各层平面图,floor plans

Programs stack vertically: public parking, rental offices, and the institute’s headquarters. Interstitial floors house shared facilities—dining halls, cafes, gyms, conference rooms, and exhibition spaces—creating “breathing” platforms for relaxation.
▼立面近景建筑主入口,closer view of the facade building main entrance

在原标准层平面的设计里,我们采用双核心筒的方式,一方面是形成更加稳定的建筑结构,同时能够自然划分出租办公和自用办公部分,减轻交通负荷。同时在两个核心筒之间形成完整的南北无遮挡的开放办公空间。两侧则可作为设置办公室和会议室这些功能房间,形成非常高效的办公场所。最终虽然概念没有得到保留,但在26米×96米的标准层内实现了灵活的空间划分,能够满足不同办公面积段的需求,也有利于出租办公的二次划铺。两层之间的双层通高空间也使得办公的内部环境变得更加多样。
▼轴测图,axonometric
In the initial design, dual core tubes enhance structural stability, segregate rental and self-use zones, and reduce circulation loads. Between the cores, unobstructed north-south office spaces maximize flexibility, while perimeter areas accommodate enclosed rooms. Though the original concept evolved, the final 26m × 96m standard floors allow adaptable layouts for diverse tenant needs, enriched by double-height communal voids.
▼一层人视角,ground level pedestrian view

▼一层大堂,lobby at the ground floor


▼电梯厅,lift hall


▼办公区域,office area

▼休息阅读区,reading and relax area

▼通高办公空间,double-height office area

水平线条回应地域条件Horizontal Lines as Regional Response
珠海气候终年温暖,但日照很强。我们希望通过外立面深挑檐的设计来避免阳光直射,同时提供更多的开窗可能性,达到被动式节能的效果。1.7m深的混凝土挑檐展露在建筑最外层,使窗自然藏在了阴影里。这种水平向的挑檐成为了建筑立面的唯一语言,粗细相间,具有很强的雕塑感。
Zhuhai’s intense sunlight inspired 1.7m-deep concrete sunshades—a façade-defining element that conceals windows in shadow and enables passive cooling. These rhythmic horizontal bands create sculptural depth while serving functional and aesthetic purposes.
▼水平向的挑檐成为了建筑立面的唯一语言,rhythmic horizontal overhang

▼水平向的挑檐,rhythmic horizontal bands

相较高区,建筑裙房对周边城市环境的影响更为直接。裙房的主要功能是政府拥有的停车楼,北侧是城市街道,正对珠海体育中心,南侧则是学校的教学楼。我们希望能够打破停车楼给人的单调乏味感,尽可能削弱停车楼可能给城市带来的消极影响。我们通过水平挑檐变成水平花坛的形式,并且通过内外错动的变化来实现不同尺度的植被的生长需求。也借此形成丰富的阴影变化。植被的生长使建筑裙房变成了一座立体的花园,将停车楼的功能属性隐藏了起来,对于城市这种影响是积极的,最重要的是对身处教学楼的同学来说,向窗外望去的时候,看到的不会是冰冷的停车楼,而是一片立体的花园。
The podium, housing a municipal parking garage, faces conflicting contexts: urban streets to the north and a school to the south. To soften its bulk, horizontal sunshades morph into staggered planters supporting diverse vegetation, creating rich shading effects. The resulting vertical garden masks the parking function, offering students a living green facade instead of a monotonous structure.
▼空中露台,sky terrace

▼通过内外错动的变化来实现不同尺度的植被的生长需求,staggered planters supporting diverse vegetation

水平线条在整个建筑种扮演着非常重要的角色,但我们并不希望变成单一逻辑的一尘不变。所以我们并没有把竖向的柱子藏起来,而是将其一半露出外立面,并且清水混凝土柱为灰色,与水平清水混凝土挑檐的白色形成对比。在不影响水平语言的同时,增加了另一个层次。
While horizontality dominates, verticality is not suppressed. Exposed gray fair-faced concrete columns contrast with white horizontal bands, adding layered complexity without compromising the primary design language.
▼立面上露出竖向混凝土柱子,Exposed gray fair-faced concrete columns

建筑应该是对城市的直接反馈Architecture as Direct Urban Dialogue
一栋看似“朴素”的建筑是否会对城市产生积极的影响呢?在评标阶段,一位评委曾表示这样一栋看着像厂房的建筑是肯定不能中标的。不过幸运的是最终就是这样一栋建筑得以实现。并且在建成后毫无争议的成为香洲区,甚至珠海的“标志性”建筑。对于是否是标志性并不是我们设计的初衷,我们也不排斥这样的结果。我们更看重的是是否它能够在未来的珠海扮演重要的角色,并且积极的推动地区的城市发展和人民的生活质量。我们相信科创中心能够在很长一段时间里扮演者这样的角色。
Can a “modest” building positively impact a city? During the competition phase, one juror dismissed the design as “factory-like.” Yet upon completion, it has become an uncontested landmark in Xiangzhou—not by chasing iconicity, but by prioritizing contextual responsibility. We measure success not by symbolic status, but by enduring contributions to urban life. This project, we believe, will serve Zhuhai as a catalyst for regional development and quality of life for decades.
▼场地平面,site plan

▼一层平面,ground floor plan

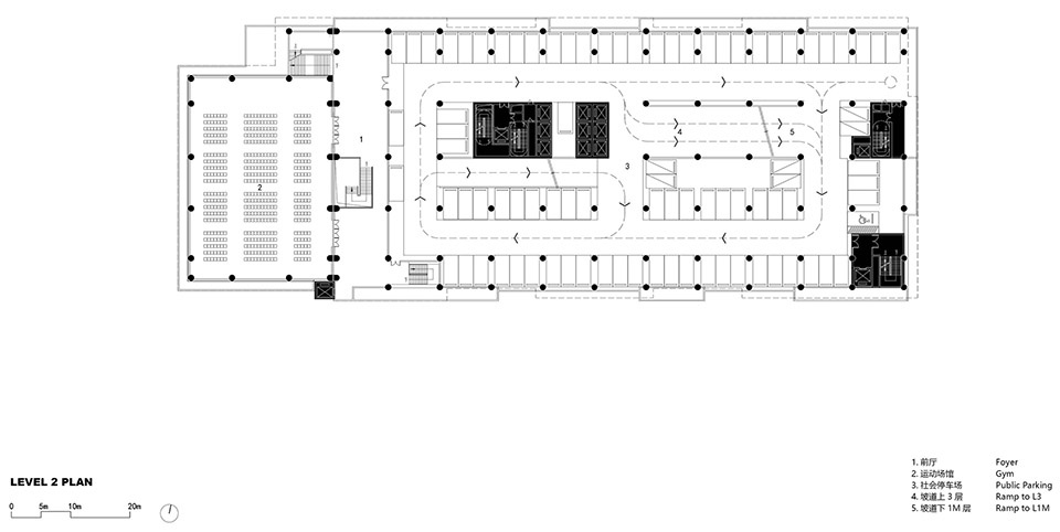
▼二层平面,second floor plan

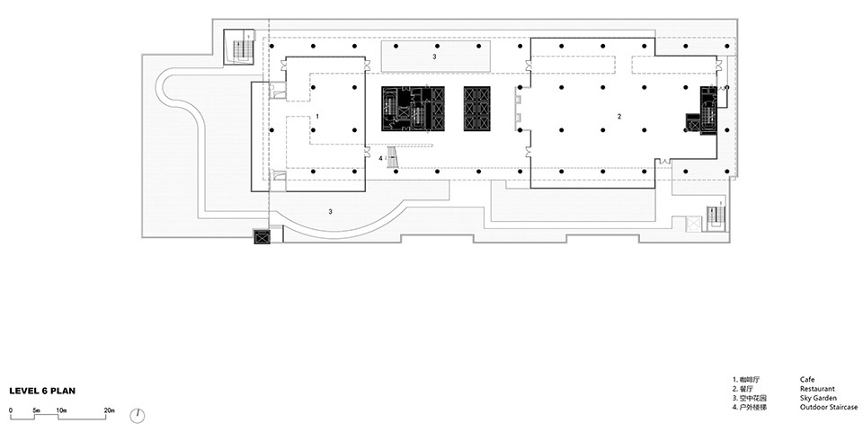
▼六层平面,sixth floor plan

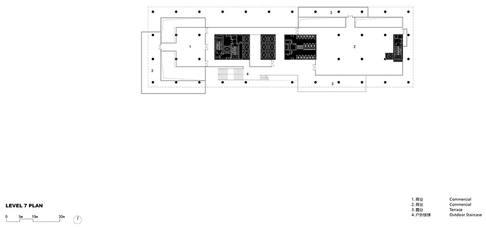
▼七层平面,seventh floor plan

▼十三层平面,thirteenth floor plan

▼十四层平面,fourteenth floor plan

▼剖面,section

▼墙体剖面,wall section


Project name: Zhuhai Planning Science and Technology Innovation Center
Project type: Office, Public
Design:nsaaa + Zhuhai Institue of Urban Planning & Design
Website: http://nsaaa.net
Contact e-mail: ns@nsaaa.net
Design year:2020
Completion Year:2024
Leader designer & Team:
Schematic Design: nsaaa
Lead Architect: Wang Jianling
Design Team: Hou Zhaoyang, Pan Yiming, Li Mingjing, Hu Lanqing
Construction Drawing Design: Zhuhai Institute of Urban Planning & Design
Design Team: Xu Yan, Liu Pingping, Zhang Xuwei, Wang Tao, Li Liang, Gu Yuelin, Deng Deyuan, Wang Junjun, Zhu Kongmin, Yao Qingxia, Wang Hong, Wang Xinglong, Zhou Mengqi, Luo Dan, Jiang Hongzan, Chen Xiaojie, Liang Guihua, Chen Rui, Zhang Qianzi, Zhou Tao, Liu Liping, Liu Dan
Project location:No. 1007, Xianghua Road, Xiangzhou District, Zhuhai City, Guangdong Province
Gross built area:81,390㎡
Photo credit: Peng Niangsi, Van Wang, Zhang Hao
Contractor: China Construction Third Engineering Bureau Co., Ltd.
Clients:Zhuhai Institute of Urban Planning & Design
Materials:Fair-faced Concrete, Cast-in-situ Terrazzo, Fluorocarbon-Sprayed Aluminum Panels














