同济大学艺嘉楼(嘉定校区学生活动中心)/ 同济大学建筑设计研究院(集团)有限公司 麟和建筑工作室,上海/建筑
同济大学嘉定校区始建于2002年,校园尚缺乏一个具有吸引力的公共文化核心,艺嘉楼(学生活动中心)被赋予了异质化和触媒化的角色,期望提供不同于教学与学院的空间体验,成为激活校园文化活力的一个强有力的锚点。
Tongji University Jiading Campus was established in 2002. The campus still lacks an attractive public cultural core. Yijia Building (Students’ Activity Center) has been endowed with a heterogeneous and catalytic role, hoping to provide a spatial experience different from teaching and colleges, and become a powerful anchor point to activate the cultural vitality of the campus.
▼夜幕降临中的校园,Campus at Dusk

▼校园日出中的艺嘉楼,Yijia Building at Sunrise

▼艺嘉楼正对贯穿校园前区的湖面与草坪,独具景致,Yijia Building Facing Scenic Lawn and Lake

▼艺嘉楼45°网格系统贯穿结构梁柱、立面形态、室内空间、场地景观,Yijia Building’s 45° Grid System Integrating Structure, Facade, and Landscape

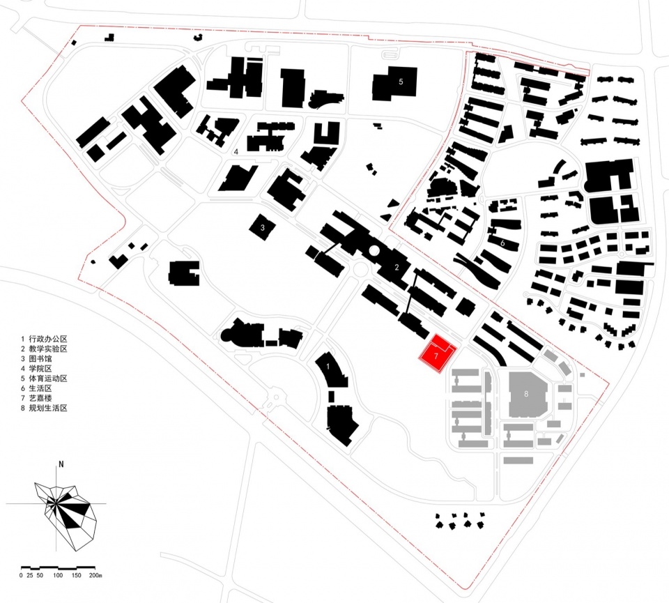
艺嘉楼的设计从选址开始,最终的基地位于整体校园东南端,介于主教学实验区与新规划学生宿舍之间,西南正对贯穿校园前区的湖面与草坪,景观独具。为集约化土地使用,建筑采用2层与9层体量的组合,形成校园南入口主轴线东侧的标识性建筑,并与西侧的图书馆高层体量遥相呼应,完善了校园总体空间形态格局。
▼草图,Sketch

The design of Yijia Building began with site selection. The final site is located at the southeast end of the entire campus, between the main teaching and experimental area and the newly planned student dormitories. To the southwest, it faces the lake and lawn running through the front area of the campus, presenting a unique landscape. To intensively utilize the land, the building adopts a combination of 2-story and 9-story volumes, forming a landmark building on the east side of the main axis of the south entrance of the campus, and echoing the high-rise volume of the library on the west side, thus improving the overall spatial form and layout of the campus.
▼同济大学嘉定校区航拍,Aerial View of Tongji University Jiading Campus

▼南入口立面,South Entrance Facade

我们以“漫游垂直校园”的设计构想贯通低层与高层建筑空间与体量,环绕和贯穿建筑外部和内部的一系列坡道、楼梯、连廊和台地空间成为空间组织的核心,连续迴转、步移景异,从地下空间步行漫游至建筑最高处屋顶花园,形成一个如同中国园林和山水画般、散点铺陈的立体化连续空间序列。
▼垂直校园,Vertical Campus

With the design concept of “Roaming the Vertical Campus”, we connect the Spaces and volumes of the low-rise and high-rise buildings. A series of ramps, stairs, corridors and terraced Spaces that surround and run through the exterior and interior of the building become the core of the spatial organization. Continuously rotating and changing views as one walks, one can walk from the underground space to the roof garden at the highest point of the building. Form a three-dimensional continuous spatial sequence that is scattered and distributed like Chinese gardens and landscape paintings.
▼建筑东立面,East Facade of the Building

▼外观,Exterior view

▼设计将大截面柱体化解为片柱,Design Strategy: Massive Columns Resolved into Flat Slabs

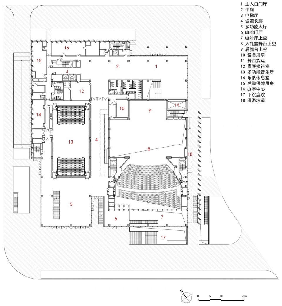
建筑漫游路径同时串接起丰富多样的功能空间,提供一个师生可坐、可躺、可聊、可观、可读、可思、可感、可演的“无边界复合功能空间”。建筑低层裙楼部分包括了830座礼堂空间、300座多功能音乐厅、多尺度报告厅、社团排练厅、多类型活动室等,并配备咖啡、展览、多功能活动大厅等功能。为消减上部体量,礼堂部分下沉一层,结合下沉庭院形成观演休息空间,并提供完善的标准舞台与后台支持;建筑高层部分提供集中办事中心、学业发展中心、心理卫生中心、就业指导中心以及团委、学生处等多部门办公和公共服务功能。
▼漫游空间系统,Spatial Roaming System

The architectural walkway simultaneously connects a rich variety of functional Spaces, providing a “borderless composite functional space” where teachers and students can sit, lie down, chat, observe, read, think, feel and act. The low-rise podium of the building includes an 830-seat auditorium space, a 300-seat multi-functional concert hall, a multi-scale lecture hall, a club rehearsal hall, various types of activity rooms, etc., and is equipped with functions such as coffee shops, exhibitions, and a multi-functional activity hall. To reduce the upper volume, the auditorium section is sunken by one floor. Combined with the sunken courtyard, it forms a viewing and performance rest space, and provides a complete standard stage and backstage support. The upper floors of the building provide a centralized service center, an academic development center, a mental health center, an employment guidance center, as well as office and public service functions for multiple departments such as the Youth League Committee and the Student Affairs Office.
▼将校园景观无边界引入室内,Seamless Integration of Campus Landscape into the Interior

▼南大厅将校园景观无边界引入室内,South Lobby Blending with Campus Landscape

▼清水混凝土柱廊与漫游坡道,Fair-Faced Concrete Colonnade and Meandering Ramp

▼主楼中央屋顶花园,Rooftop Garden at the Core of the Main Building

建筑外部采用系统模数控制的磬石般体量,简洁有力,与内部丰富空间形成差异化策略。通过将大截面柱体化解为片柱,建筑内部和立面形成加密的预制装配砼45°斜向结构构件,外部构件朝向东南方向,兼具竖向遮阳和自然导风作用;格网系统贯穿结构梁柱、立面形态、室内空间、场地景观等,实现建筑“系统建构”。
▼草图,Sketch

▼草图,Sketch

The exterior of the building adopts a stone-like volume controlled by system modules, which is simple and powerful, forming a differentiated strategy from the rich interior space. By dividing the large-section column into sheet columns, the interior and facade of the building form dense prefabricated and assembled concrete 45° inclined structural components. The external components face the southeast direction and have both vertical shading and natural wind guiding functions. The grid system runs through the structural beams and columns, facade forms, interior Spaces, site landscapes, etc., achieving the “systematic construction” of the building.
▼北侧主入口立面:挂板幕墙构件兼具竖向遮阳和自然导风作用,North Entrance Facade: Panel System for Shading and Ventilation

▼白色混凝土预制挂板竖向遮阳,Vertical Sunshading with White Concrete Panels


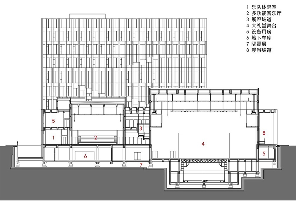
建筑基础采用整体“浮筑抗震系统”,在基础与地下一层之间设置2米层高隔震层,布设116个隔震支座,罕遇地震下隔震层耗能占总地震能量80%左右,从而上部构件按设防烈度降低一度设计,大幅提升建筑空间通透度和减少材料消耗。
▼结构模型,Structure Model

▼梁柱节点对比:通过减隔震技术优化构件截面尺寸和节点配筋,Beam-Column Joint Comparison: Optimized Cross-Section and Reinforcement with Seismic Isolation

The building foundation adopts an overall “floating seismic system”. A 2-meter-high isolation layer is set between the foundation and the underground first floor, and 116 isolation bearings are arranged. Under rare earthquakes, the energy consumption of the isolation layer accounts for about 80% of the total seismic energy. Therefore, the upper components are designed to reduce the seismic intensity by one degree, significantly improving the transparency of the building space and reducing material consumption.
▼连续的学生自主活动台地空间,Continuous Terraced Spaces for Student Activities

▼学生自主活动空间,Student-Initiated Activity Space

▼学生自主活动空间,Student-Initiated Activity Space

▼将校园景观无边界引入室内,Seamless Integration of Campus Landscape into the Interior

强化建筑与结构 “一体化设计”,建筑近40.5%的结构构件采用砼预制装配体系,砼预制密肋梁柱体系与灯具、喷淋、采光、导风等一体整合和展现。设计引入热力学技术,建立流体动力学整体分析模型,主楼采用中庭与热力学烟囱结合,引导主导风垂直贯穿建筑,实现过渡季节最大化自然通风;裙楼公共中庭可在过渡季节实现大面积立面开合和顶部通风。与常规体系相比,建筑在材料、建造、季节调控等的综合减碳设计,可在全生命周期整体减少7%的碳排放,相当于在嘉定校区种植了25万棵树,是具有重要环境意义的前沿技术探索。
▼风环境模拟,Wind Environment Simulation

Strengthen the “integrated design” of buildings and structures. Nearly 40.5% of the structural components of buildings adopt the concrete prefabricated assembly system. The concrete prefabricated ribbed beam and column system is integrated and presented with lighting fixtures, sprinkles, daylighting, air diversion, etc. The design introduces thermodynamic technology and establishes an overall analysis model of fluid dynamics. The main building adopts a combination of atrium and thermodynamic chimney to guide the dominant air to run vertically through the building and achieve maximum natural ventilation during the transitional season. The public atrium of the podium can achieve large-scale facade opening and closing and top ventilation during the transitional season. Compared with the conventional system, the comprehensive carbon reduction design of buildings in terms of materials, construction, and seasonal regulation can reduce carbon emissions by 7% throughout their entire life cycle. This is equivalent to planting 250,000 trees in the Jiading Campus and represents a cutting-edge technological exploration of significant environmental importance.
▼台地展示空间,Terraced Exhibition Space

▼围绕主楼中庭的空间漫步,Spatial Walk Around the Main Atrium

▼洒满自然天光的坡道连廊,Ramp Corridor Bathed in Natural Light

▼围绕主楼中庭的空间漫步,Spatial Walk Around the Main Atrium

▼主楼中庭内的连廊,Corridor within the Main Atrium

▼主楼中庭通过顶部天窗获得自然采光,Natural Lighting from Skylights in the Main Atrium

艺嘉楼在建筑、结构、热力学等的系统整合,提供了一个空间、建构、性能融为一体的“生态化装配建造”范例。设计造就了建筑室内外丰富的空间质感和自然体验,穿行其中,光影运转、风过空间、树丛湖面景致扑面,建筑成为一个充满生机活力的“光与风的空间容器”。
▼室内空气龄分析,Indoor Air Age Analysis

Yijia Building’s systematic integration of architecture, structure, thermodynamics and other aspects provides a model of “ecological prefabricated construction” that integrates space, construction and performance. The design has created a rich spatial texture and natural experience both inside and outside the building. As you walk through it, light and shadow play, the wind passes through the space, and the scenery of trees and lakes rushes towards you. The building has become a vibrant “spatial container of light and wind”.
▼光与风的空间容器,A Spatial Container for Light and Wind

▼地下一层咖啡厅等待入驻,Lower Ground Coffee Shop Awaiting Tenants

▼大礼堂观众席视角,View from the Auditorium Seating

▼大礼堂观众入场视角,Entrance View of the Auditorium

▼多功能音乐厅使用场景,Usage scenarios of multi-functional concert halls

▼工作模型,Working Model

▼工作模型,Working Model


▼BIM模型,BIM Model

▼区位图,Location Map

▼总平面图,Master Plan

▼一层平面图,1F Plan

▼二层平面图,2F Plan

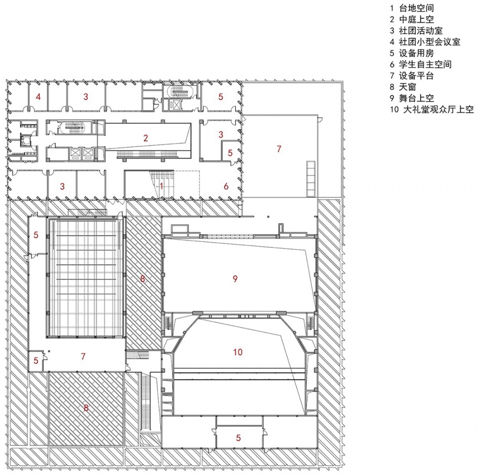
▼三层平面图,3F Plan

▼四层平面图,4F Plan

▼六层平面图,6F Plan

▼北立面图,North Elevation

▼东立面图,East Elevation

▼南立面图,South Elevation

▼剖面图1,Section 1

▼剖面图2,Section 2

▼剖面图3,Section 3

▼剖面图4,Section 4

▼剖透视图1,Exploded Axonometric 1

▼剖透视图2,Exploded Axonometric 2

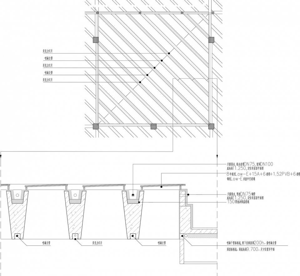
▼砼预制装配花篮梁构造详图,Prefabricated Concrete Flower-Basket Beam Detail

Project name: Yijia Building of Tongji University (Students’ Activity Center in Jiading Campus)
Project type: Educational Architecture
Design: Tongji Architectural Design (Group) Co. Ltd. / ATELIER L+
Website: http://www.atelierlplus.com/
Contact e-mail: land_well@hotmail.com
Design year:2016
Completion Year:2024
Leader designer & Team:
Project Leader: Linxue Li
Architecture/Interior/Landscape/Signage Design: Linxue Li, Kaifeng Zhou, Yang Liu, Yongqian Jiang, Yunxiang Shan, Yanwen Wang, Yan Jiao, Ganli Guo, Ying Wang, Wenjing Wu, Congcong Liu, Run ‘er Ni, Qi Wu, Zhihui Dong, Xincheng Ye,Yumo Wu, Qi Zhang
Structural Design: Jiemin Ding, Honglei Wu, Jianfeng Wang, Qiang Wu, Huaiyu Hua, Changjia Chen, Xi Wang
Water supply and drainage design: Jin Liu, Wenlong Xie
Hvac Design: Yong Gu, Yiping Xu
Electrical Design: Feng Sun, Chang Wang, Wenjie Zhang, Jiedong Zhang, Heliang Bing, Ying Yuan
BIM Design: Luxu Peng, Zhihua Ding , Tongzhou Chen , Yi Shi , Ze Yang , Huilin Tan
Green Construction Project: Chenyu Li , Yingjun Wang, Wei Shi
Thermodynamic Design: Linxue Li, Yiqun Pan, Yikun Yang, Qi Zhang,Guangyi Zhang, Yang Yu, Meiting He, Wenxin Feng
Floodlight Consultants: Tongji University, Luoxi Hao, Rongdi Shao
Acoustic consultant: Jiang Guorong, Shanghai Acoustical Society
Curtain wall consultant: Shanghai Yixuan Architectural Design Consulting Co., LTD
Stage consultant: Zhejiang Dafeng Industrial Co., LTD
Carbon Emission Consultant: Shanghai Xuyi Building Technology Development Co., LTD
Project location: Tongji University Jiading Campus, No. 4800, Cao ‘an Road, Jiading District, Shanghai
Gross built area: 21750 ㎡ (Aboveground 15285㎡, Underground 6465㎡)
Photo credit: © Schranimages , Shengliang Su / Tongji University, Ping Jiang
Partner:
Clients: Tongji University
Materials:Precast concrete frame beams, slabs and columns, fair-faced concrete, white high-strength fiber-reinforced concrete precast hanging panels, insulating glass curtain walls, white aluminum alloy tensioned mesh ceilings, polished concrete floors, light steel keel GRG arc-shaped perforated panels, wood grain transfer aluminum alloy hanging panels, flat steel railings, solid wood handrails and floors, permeable concrete outdoor floors
Brands:
(1)White high-strength fiber-reinforced concrete precast hanging board: Zhejiang POSSIBLE UHPC
(2)Precast concrete frame beams, slabs and columns: Tongyan Zhizhu
(3)Insulating glass curtain wall: Xinyi energy-saving glass














