PROMETVA办公楼,阿根廷 / KARLEN + CLEMENTE
环境Environment
该项目位于城市工业园区内,这是一个以工业生产为主导、技术特征突出的环境。这座办公楼旨在整合一家专注于钢结构的企业管理职能,建筑布置于场地一侧,靠近但不隶属于生产区域。其形式克制,力求在体现企业形象与保障运营效率之间取得平衡。建筑布局充分利用场地条件,实现自然采光、被动式热调节,并与相邻的操作与生产区建立高效连接。
The project was to be inserted within the city’s Industrial Park, a productive environment dominated by an industrial and technical character. This office building, designed to centralize the management of a company specializing in steel structures, is located along one side of the site—close to but independent from the production area—as a sober volume that balances institutional presence with operational efficiency. Its orientation takes advantage of site conditions to ensure natural lighting, passive thermal control, and functional connections to adjacent maneuvering and production zones.
▼项目概览,overall of the project

▼建筑外观,exterior view of the building



▼入口门廊,entrance porch

使用功能Use
项目旨在将企业此前分散的行政与技术办公区域整合于一体,提高工作协同效率。首层通过设有接待台的入口大厅迎接访客。主出入口处设计了挑高空间,既强化了仪式感,也建立了上下层之间的视觉与空间联系。
The project’s functionality aims to consolidate all administrative and technical areas, which had previously operated from separate locations. The ground floor welcomes visitors through an entrance hall with a reception desk. A double-height space at the main access point not only gives hierarchy to the entry but also establishes visual and spatial continuity between both levels.
▼室内概览,overview of the indoor space

▼接待台,reception desk


▼螺旋楼梯,spiral staircase


▼细部,details


▼休息空间,leisure area

▼细部,details


▼通高空间,double-height space


▼夹层下通廊,circulation space

▼底层办公室,ground floor working space

一系列横向钢结构门架构成通往集体办公区域(行政和技术工位)的主轴。在临近休息区的位置,螺旋楼梯作为一个雕塑化的构件引导人们前往上层。二层设置了两个独立办公室以及一间可通向露台的会议室。
A succession of horizontal steel porticos defines the axis leading to the collective work areas—administration and technical workstations. Next to the social lounge, a spiral staircase, conceived as a sculptural element, leads to the upper floor, which houses two private offices and a meeting room that extends onto a terrace.
▼二层空间概览,overall of the upper floor

▼二层走廊,upper floor corridor


▼会议室,meeting room

建筑特质Character
一个核心原则是,建筑的大部分构造应由企业自身完成——不仅为了成本控制,更是对其专业能力的1:1展示。从结构构件到家具、灯具、办公桌、花盆和衣架等,皆为量身定制,使这座建筑成为企业技艺的实体展陈。
A key premise was that most of the building should be constructed by the company itself—not only for cost efficiency but as a full-scale expression of its own craft. Everything from the structural components to furniture, lighting fixtures, desks, planters, and coat racks was custom-designed, turning the building into a 1:1 showcase of the company’s expertise.
▼天花板,ceiling

▼结构细部,details of the structure


▼细部,details



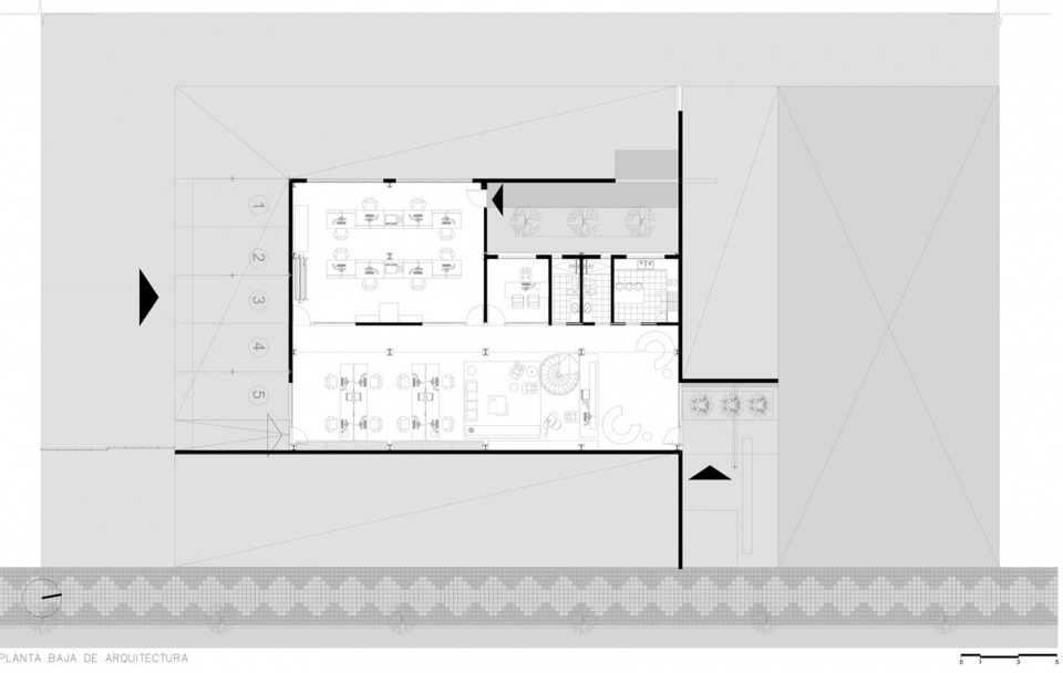
▼底层平面图,ground floor plan

▼二层平面图,upper floor plan

Información General
Nombre del Proyecto: PROMETVA
Oficina de Arquitectura: KARLEN + CLEMENTE
Sitio Web: https://www.kcarquitectura.com/
E-mail de contacto: karlen.clemente@gmail.com
País de la Oficina: ARGENTINA
Año finalización construcción: 2024
Superficie construida: 360 m2
Ubicación: Rio Tercero – Córdoba – Argentina
Proveedor de medios
Créditos Fotografía: Arq. GONZALO VIRAMONTE
Sitio Web Fotógrafo/a: @arqgonzaloviramonte – @gonzaloviramonte
E-mail de Fotógrafo/a: arqgonzaloviramonte@hotmail.com
Créditos adicionales (Opcional)
Arquitectos a Cargo: Arq. Monica Karlen – Arq. Juan Pablo Clemente
Equipo de Diseño: Arq. Melisa Perotti – Arq. Agustina Rinaudo – Arq. Antonella Soldevila – Fernanda Mercado – Arq. Julieta Gaggiofatto














