随县和美中心,随州 / 原榀建筑事务所
和美乡村的示范点
A model site for a beautiful countryside
A model site for a beautiful countryside
随县位于湖北省随州市,有着丰富的自然资源和深厚的文化底蕴,境内有荆楚名胜大洪山风景区。自2023年下半年起,中国乡村发展基金会联合随县人民政府,选择了三镇五村实施和美乡村建设,作为大洪山风景区的补充,带动大洪山下乡村振兴。同时,规划了一条乡村绿道环线,将五个村进行串联,以应对乡村之间的联动问题。
Sui County is located in Suizhou City, Hubei Province, boasting abundant natural resources and a rich cultural heritage. Within its territory lies the famous Jingchu scenic area, Dahong Mountain Scenic Area. Since the second half of 2023, the China Rural Development Foundation, in collaboration with the Sui County People’s Government, has selected three towns and five villages for the implementation of harmonious rural construction as a supplement to the Dahong Mountain Scenic Area, aiming to boost rural revitalization at the foot of Dahong Mountain. At the same time, a green rural loop road has been planned to connect the five villages, addressing the issue of interconnectivity between rural areas.
和美中心是五个和美乡村的示范点,均立足于乡村闲置资源的再利用,将其改造为骑行驿站、自在小院、乡村博物馆、咖啡厅和艺术餐厅,作为乡村的公共设施或度假居住产品。
▼区位分布,site location

Hemei Center is a demonstration site of five Harmony villages, all of which are based on the reuse of idle rural resources, transforming them into cycling stations, comfy-yards, rural museums, cafes and artistic restaurants as public facilities or vacation living products in the countryside.
▼景区鸟瞰,aerial view of the scenic area

人类学式的研究和实践Anthropological research and practice
设计初期,基金会组织了一个多学科团队进行乡村调研,包括基金会团队、建筑师团队、人类学团队和历史学者等,调研方式包括踏勘、访谈和资料收集,深度解析乡村社会结构、文化记忆与生活模式。围绕着“在地”的概念,人类学团队视角聚焦村民日常生活与空间互动,提炼地方文脉与闲置资源潜力,为设计注入社区参与机制,确保建筑改造与乡土文化共生,以激活乡村内生动力。原榀建筑作为总体建筑设计团队,着重于剖析乡村的肌理,挖掘地方文脉的关联,了解当地的材料和建筑技术,延续多年乡建经历的思考和总结,用“在地”的方式回应设计和建造。
▼业态分布,program location

In the early stages of design, the foundation organized a multidisciplinary team for rural research, including the foundation team, architects, anthropologists, and historians. The research methods included site visits, interviews, and data collection, delving into the social structure, cultural memory, and lifestyle of rural communities.Focusing on the concept of “local,” the anthropological team’s perspective centered on villagers’ daily lives and spatial interactions, extracting local cultural context and potential for underutilized resources. This approach aims to inject community participation mechanisms into the design, ensuring that architectural renovations coexist with local culture, thereby activating the intrinsic vitality of rural areas. As the overall architectural design team, UPA focuses on analyzing the texture of the village, exploring the connection of local cultural context, understanding the local materials and building technology, continuing the thinking and summary of many years of rural construction experience, and responding to design and construction in a “local” way.
▼建筑原貌,original building

空间触媒与在地建造Spatial catalysts and local construction
五栋建筑位于五个不同的乡村,彼此间有一定的距离,但被同一条乡村绿道环线串起。类型上有新建有改造,且有不同的功能诉求,但未来由一家或两家机构来运营,可建立场景和内容的联动。此外,项目的造价和工期也提出了严格的要求。这些建筑是乡村的空间触媒,将引发乡村的规划和更新,并影响乡村的持续发展。对于建筑的在地设计和建造,我们制定了如下的策略。一,空间重构,对原生产生活空间进行重构,激发场所活力,满足运营和使用的需求;二,适宜建造,改造建筑采用新旧并置,新建建筑运用当地材料,尽可能多采用当地适宜的建造技术;三,轻介入,采用轻的材料和建造方式,最小化干预场地,实现快速建造的需求。
Five buildings are located in five different villages, each at a certain distance from the others, but all connected by the same rural greenway loop.In terms of type, they include new constructions and renovations with varying functional requirements, yet they will be operated by one or two institutions in the future, allowing for the creation of interconnected scenes and content. Additionally, the project’s cost and schedule have stringent requirements. These buildings serve as spatial catalysts in the countryside, driving planning and renewal, and influencing the sustainable development of rural areas. For the local design and construction of buildings, we have formulated the following strategies. First, spatial reconfiguration, which involves restructuring the original living and production spaces to invigorate the site and meet operational and usage requirements; Second, appropriate construction, where new buildings are constructed using both old and new materials, with local materials and suitable construction techniques being used as much as possible; Third, minimal intervention, employing lightweight materials and construction methods to minimize disturbance to the site and meet the needs for rapid construction.
▼结构体系图,structure system

骑行驿站:砖的容器Cycling stations: a vessel of bricks
骑行驿站位于长岗镇喻家湾,紧邻绿道环线。基地位于一片坡地上,南侧有一片小水塘,周边有竹木森林环绕,自然景观丰富。场地被水塘隔绝,不易抵达。原有一栋红砖住宅,房屋年久失修变形严重。拆除后建设成为一栋骑行驿站,为游客及户外爱好者提供咖啡、售卖、自行车维修和公共卫生间等服务。
The Cycling Station is located in Yujiawan, Changgang Town, adjacent to the greenway loop. The site sits on a sloping terrain with a small pond to the south and is surrounded by bamboo and woodlands, offering rich natural scenery. Originally isolated by the pond and difficult to access, the site housed an old, severely deformed red-brick residence. After demolition, it was rebuilt into a cycling station providing services such as a Cafe House House, retail, bicycle repairs, and public restrooms for tourists and outdoor enthusiasts.
▼驿站鸟瞰,aerial view of the station

设计从地形的整治开始,东南侧引入一条自行车道,让户外爱好者可骑行至场地内。保留了原有的民居L型轮廓,留出一个方形的庭院,正对着两棵银杏树,让景观视野最大化。L型的中段设置一处户外楼梯到达屋顶,中间的天井利于自然通风。屋顶露台完全开放,可以布置咖啡外摆和远眺景观。
The design began with reshaping the terrain. A bicycle path was introduced on the southeast side, allowing outdoor enthusiasts to ride directly into the site. The original L-shaped footprint of the house was retained, enclosing a square courtyard facing two ginkgo trees to maximize scenic views. An outdoor staircase in the middle of the L-shaped structure leads to the rooftop, while a central skylight facilitates natural ventilation. The rooftop terrace is fully open, accommodating outdoor Cafe House House seating and panoramic views.
▼驿站人视,exterior of the station

▼庭院人视,courtyard

主体建筑全部采用红砖建造而成,采用300厚复合墙体,内部有空腔,将混凝土构件隐藏在内,同时增强了墙体的保温性能。整个建筑犹如一个砖的容器,红砖延伸至室外形成广场和台阶,亦延伸至室内形成铺装。墙面局部使用了镂空或凸砖构造,形成丰富的光影效果。胶合木形成的直纹曲面构架,既作为咖啡厅的雨棚,也形成了驿站的视觉焦点。
▼砖墙砌筑示意图,brick masonry built methods

The main structure is entirely constructed with red bricks, using 300mm-thick composite walls with internal cavities to conceal concrete components while enhancing thermal insulation. The building resembles a “vessel of bricks,” with red bricks extending outdoors to form the plaza and steps, and indoors as flooring. Hollowed-out or protruding brick patterns create dynamic light and shadow effects. A glue-laminated timber (glulam) curved framework serves as both the Cafe House House canopy and the station’s visual focal point.
▼木结构雨棚,wood structure cantilever

▼建筑局部,building detail

▼驿站室内,station interior

▼观景屋面,viewing roof

骑行驿站从原来不易达到的场地,成为了开放的场所,为乡村绿道增加了节点型空间。同时,通过保留场地的记忆和原乡的风景,激发出新的活力。
▼木结构节点,wood structure detail

Transformed from an inaccessible site into an open public space, the Cycling Station adds a nodal hub to the rural greenway. By preserving the site’s memory and native scenery, it has been revitalized with new energy.
▼入口人视,entrance

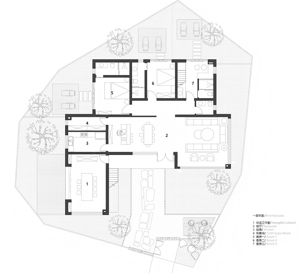
自在小院:多层次院落Comfy-yard: Multi-Layered Yards
自在小院位于长岗镇庹家村的村落中,周边环境优美幽静,特色鲜明的红砖房点缀着整个村庄。小院的基地呈不规则多边形,南侧有一棵柿子树,亭亭如盖。基地原有一栋三开间正房和一栋偏房,呈L型布置,年久失修有坍塌风险,遂决定拆除后重新建设。新建筑的功能定位为度假小院,包含三间客房和公共空间等。
Comfy-yard is nestled in the village of Tuojia village, Changgang Town, surrounded by serene landscapes dotted with distinctive red-brick houses. The irregularly polygonal site features a towering persimmon tree to the south. Originally, the site held an L-shaped arrangement of a three-bay main house and an auxiliary structure, both at risk of collapse due to disrepair. The new building was designed as a vacation retreat with three guest rooms and shared spaces.
▼小院鸟瞰,aerial view of the yard

为了满足乡村宅基地的边界要求,并延续原有的场地肌理,新建建筑亦采用L型布置。场地南侧为公共院落,可从户外楼梯到达屋顶露台。北侧为三个独立的院子,为各间客房专属,均面向开阔的风景。主体建筑采用了坡屋顶,较大的挑檐遮挡雨水,并形成了入口的雨棚空间。室内设有两处公共空间,一处为客餐厅,一处为非遗工作室,大片落地窗结合镂空砖墙,遮挡视线的同时形成了特殊的景观。整栋建筑采用红砖作为建筑外墙材料,亦延续了骑行驿站的300厚复合墙体构造做法。
▼墙身详图,wall section detail

To comply with rural homestead boundaries and maintain the site’s original texture, the new structure also adopts an L-shaped layout. The southern yard is a communal space accessible via an outdoor staircase to the rooftop terrace, while the northern side features three private courtyards for the guest rooms, each opening to expansive views. The main building employs a pitched roof with deep eaves to shield against rain and create a sheltered entrance. Two shared spaces—a dining area and a heritage workshop—feature floor-to-ceiling windows paired with perforated brick walls, balancing privacy with curated views. Red bricks clad the exterior, continuing the 300mm composite wall technique from the Cycling Station.
▼庭院人视,courtyard exterior

▼观景露台,viewing terrace

▼入口,entrance

▼客厅室内,living room interior

▼非遗工作室室内,intangible heritage studio interior

自在小院不是传统意义上的民宿小院,而是乡村小院经济的产品原型,通过“自在合伙人”的机制搭建,让返乡青年和村集体共同获益,目前已在整个村落中继续建设和推广。
Comfy-yard is not a traditional guesthouse but a prototype for rural courtyard economies. Through the “Ease Partnership” model, it benefits both returning youth and the village collective, with plans for replication across the village.
▼自在小院,comfy-yard

▼建筑局部,building detail

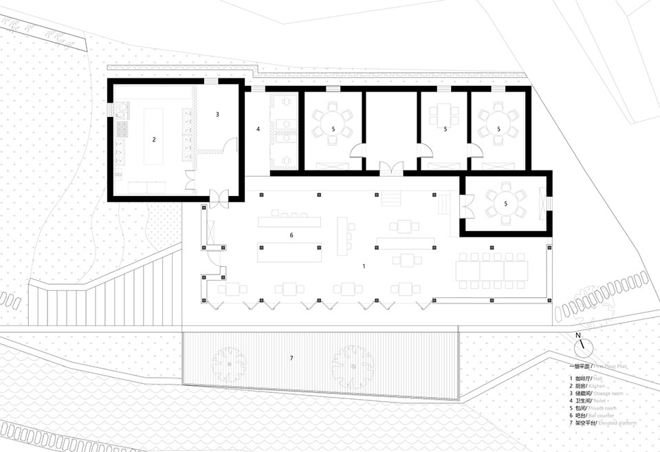
乡村博物馆:内蕴新构Rural Museum: A New Core Within
乡村博物馆位于长岗镇珍珠泉村的一处三叉路口,南侧面对着大片的稻田,西侧有两棵银杏树和北侧荒废的院子,暗示这里曾经是乡村的公共中心。原建筑修建于上世纪80年代,最初的功能是礼堂,后作为养猪场,逐步废弃闲置。红砖墙木门窗和残留的标语口号见证着历史变迁。屋顶采用的三角形桁架,由简单的木料和钢筋组合而成,透露出时代的建造特征。
The Rural Museum sits at a crossroads in Zhenzhuquan Village, Changgang Town, facing vast rice fields to the south and flanked by ginkgo trees to the west and a derelict yard to the north—hints of its past as a village commons. Built in the 1980s as an auditorium and later repurposed as a pig farm, the structure had fallen into disuse. Its red-brick walls, wooden doors, and fading slogans bear witness to history, while the triangular timber-and-steel roof trusses reflect the era’s construction ethos.
▼建筑鸟瞰,aerial view of the building

▼入口人视,building entrance

▼博物馆室内,museum interior

这个简单而质朴的空间让我们感动,而未来恢复为乡村公共空间,作为乡村博物馆之用途,更让我们兴奋。设计的思路围绕着场地展开,我们将西侧和北侧的院落打通,让建筑对乡村彻底开放。沿着银杏树布置草坡、条石坐凳,成为村民和游客的休憩场所。
Moved by the space’s simplicity, we envisioned its revival as a rural museum and public hub. The design opens the western and northern yards, integrating the building fully into village life. Grassy slopes and stone benches beneath the ginkgo trees offer respite for villagers and visitors.
▼庭院人视,courtyard

我们将保留建筑主体框架,对砖墙有裂缝处进行加固,并对木屋顶、老舞台进行翻新。同时,对建筑进行了适当的改造。一方面,在主体建筑中部置入一个钢结构体量,围护采用半透明的阳光板,与屋顶桁架形成了强烈对比。这里是乡村博物馆的文创展示、非遗工作室及表演的空间,内部空间可以灵活布置。另一方面,拆除了北侧原有附属用房,改造为咖啡厅及附属空间,咖啡厅的玻璃门扇可以全部打开,将远处银杏树的风景引入室内。
▼结构爆炸图,structure axonometric

The original framework was preserved, with cracked brick walls reinforced and the wooden roof and old stage restored. A translucent polycarbonate-clad steel volume was inserted into the central hall, contrasting with the historic trusses. This flexible space hosts cultural displays, workshops, and performances. The northern annex was rebuilt as a Cafe House House with fully openable glass doors framing the ginkgo trees.
▼夹层室内,mezzanine level interior


▼咖啡厅看庭院,from the cafe to the courtyard

乡村博物馆在保留老建筑的记忆基础上,通过最小化的干预,给空间赋予了多种可能性,并与乡村公共生活建立新的连接,这是一次有益的尝试。
With minimal intervention, the Rural Museum rekindles the building’s memory while creating new possibilities, reconnecting it to communal life—a meaningful experiment.
▼夜景,night view

咖啡厅:新旧共生Cafe House House: Coexistence of Old and New
咖啡厅位于三里岗镇常安店村,基地位于坡地上,北侧是连绵的山脉,南侧有小溪流淌,一派田园风光景象。现有的民居建于清代,历史上曾为一座寺庙, 1960年代后改为住宅。房屋经数次加建成了U型布局,但因年久失修,土墙亦产生多处裂缝,屋顶也多处变形。院子南侧的银杏树,以及西侧已废弃的乡村生活水源,形成了强烈的文化和历史记忆。
The Cafe House House is situated on a hillside in Chang’andian Village, Sanligang Town, with mountain ranges to the north and a stream to the south amid pastoral scenery. The existing Qing-dynasty building, once a temple converted to a residence in the 1960s, had a U-shaped layout with cracked earthen walls and a sagging roof. A ginkgo tree to the south and a defunct water source to the west anchor its cultural legacy.
▼建筑鸟瞰,aerial view of the building

▼建筑人视,exterior of the building

该地块定位为咖啡厅,打造乡村的公共空间,向游客提供咖啡、餐饮、多功能厅等服务。在场地的处理上,我们多利用现有的要素来形成的景观。在南侧,围绕银杏树修建钢结构平台,悬挑于溪流上方,作为户外的观景和休憩场所。在西侧,将废弃生活水源改造成景观水池,沿着溪流修建步道,在南侧形成了一个田野间的步行环线。
Repurposed as a Cafe House House and public space, the design leverages existing features. A steel platform cantilevers over the stream beneath the ginkgo tree for outdoor seating, while the old water source was transformed into a reflecting pool with a riverside trail.
▼户外的观景和休憩场所,outdoor seating area

在建筑的改造上,突出新旧并生的思路。对于老房,采用建筑保护和修缮的做法,对倾斜的墙体采用木斜撑校正,对有裂缝的土墙灌浆加固,对破败的屋顶进行翻新处理,增加防水层,局部增加了采光瓦,改善其采光性能。在老房的南侧,用胶合木结构扩建,形成一个统一的开敞空间,与老房子之间无结构连接。木梁和木柱采用了格构法布置,屋顶全部用钢化玻璃覆盖。同时在玻璃下方增加细竹竿作为吊顶,既可以阻挡阳光直射,也形成了独特的光影效果。
The renovation highlights coexistence. The old structure was stabilized with wooden braces, grouted cracks, and a refurbished roof with skylights. A glulam extension to the south, structurally independent, features a lattice frame and glass roof with bamboo slats to diffuse light.
▼新旧并生,coexistence of new and old

▼咖啡厅室内,cafe interior

▼观景平台,viewing terrace

咖啡厅的改造采取了审慎的态度,让新和旧各自独立,亦各自真实。在这里,建造的技术退到背后,让建筑生长和记忆叠加,这是改造的价值所在。
The Cafe House’s restrained approach lets old and new stand apart yet harmonize, allowing layers of memory and growth to define its value.
▼木构和夯土,wood structure and rammed earth

▼景观环线,surrounding landscape

艺术餐厅:内向生长Artistic Restaurant: Inward Growth
艺术餐厅位于温泉镇温泉村,基地紧邻乡村的主街道。基地内有一栋民居,曾为当地典型的“三连间”民居,中间带有一个方形内院,呈回字形布局。临街道的厅屋保存较好,曾做为粮食加工厂使用,由生活空间转换成了生产空间。原正屋已经全部坍塌,院子里杂草丛生,仅剩石头墙体和木门窗,还有一些植物倔强地从石墙上长出来。这栋建筑改造后的定位是艺术餐厅,包含了文创展示、多功能厅、咖啡和餐厅的功能。
The Artistic Restaurant in Wenquan Village occupies a lot along the main street. The original “three-bay” house with a central courtyard had partially collapsed, leaving only stone walls, wooden frames, and tenacious plants. Its revival integrates cultural displays, a multifunctional hall, and dining.
▼建筑鸟瞰,aerial view of the building

设计的构思首先围绕着庭院展开,原正屋坍塌后的院子是本栋建筑唯一向自然开放的场所,应加以强化。我们对原内院的位置用钢结构扩建,屋顶跨过石头墙体,形成L型布局,形成一处新的室内空间。屋顶增加带形天窗,让光线进入,让石墙上的植物得以继续生长。正屋北侧留有两个小天井,利于自然采光和通风。于是,从沿街的石墙开口进入室内,空间逐步由从封闭到开敞,人也逐步地感受自然的在场。
The design centers on the courtyard—the sole open space after the collapse. A steel-framed L-shaped extension spans the stone walls, topped with skylights to nurture the surviving plants. Two small northern courtyards enhance light and ventilation. Entering from the street, visitors transition from enclosed to open spaces, gradually sensing nature’s presence.
▼内部庭院,inward courtyard

▼室内原生绿植,original plants growing indoor

对厅屋内部和保留的墙体,采用了修改如旧的原则,保留了原有的木架和墙面肌理,对屋面进行翻新,增加了防水层,让钢木桁架的形式特征得以凸显。厅屋内部用钢结构加建了夹层,以满足功能的扩展需求。夹层下方的展示空间、楼梯端部的表演空间,都让建筑可适应多样化的空间需求。
The preserved hall follows a “repair-as-old” approach, retaining wooden beams and wall textures while adding a steel mezzanine for expanded functions. Staircase landings double as performance areas.
▼休憩台阶,resting steps

艺术餐厅通过对封闭的老建筑改造,让自然和光线进入室内,让植物以新的方式继续生长。通过新旧并置的处理,让乡愁浮现,更让场所获得新的生命力。
By introducing light and greenery into the introverted structure, the Artistic Restaurant juxtaposes old and new, evoking nostalgia while breathing new life into the space.
▼餐厅室内,restaurant interior

▼餐厅入口,restaurant entrance

结语Conclusion
和美中心的落成,成功将乡村的闲置资源转化成为活力空间,让建筑和场所都获得了新生,既承载乡愁,也体现诗意栖居。目前已有专业的运营机构开展运营,不仅让各建筑形成联动,而且带动了乡村内部的持续发展,这是和美中心的价值所在。
Hemei Center has successfully transformed idle rural resources into vibrant spaces, giving architecture and place renewed purpose—bridging nostalgia and poetic living. Managed professionally, the interconnected buildings foster sustained rural development, embodying the center’s true value.
▼驿站平面图,station plan

▼驿站剖面图,station section

▼自在小院一层平面图,comfy-yard ground floor plan

▼自在小院夹层平面图,comfy-yard mezzanine level plan

▼自在小院剖面图,comfy-yard section

▼乡村博物馆一层平面图,village museum ground floor plan

▼乡村博物馆二层平面图,village museum first floor plan

▼乡村博物馆剖面图,village museum section

▼艺术餐厅一层平面图,Artistic Restaurant ground floor plan

▼艺术餐厅夹层平面图,Artistic Restaurant mezzanine floor plan

▼艺术餐厅剖面图,Artistic Restaurant section

▼咖啡厅平面图,cafe plan

▼咖啡厅剖面图,cafe setcion

Project Name: Sui County Hemei Center
Project address: Xian Changgang Town, Wenquan Town, Sanligang Town
Owner: China Rural Development Foundation
Design firm: UPA architects
Chief Architect: Zhou Chao
Design team: Deng Kechao, Luo Junxian, Xie Ding, Wang Xingrui (intern)
Structural design: Xie Jianye
Equipment design: Wang Shangwen, Chen Hongye
Hardcover and soft decoration design: Wuhan Xieyang Leizhu Homestay Service Co., LTD
Building area: 550㎡ rural museum, 145㎡ cycling station, 203㎡ Comfy-yard, 340㎡ Artistic Restaurant, 338㎡ coffee house
Design completion time: 2023.10-2024.08
Main materials: red brick, spruce plywood, aluminum magnesium manganese plate, glass brick, limestone
Photography: Translation of architectural photography / He Lian, UPA














