PGA巡回赛演播中心,美国 / Foster + Partners
PGA巡回赛演播中心是PGA巡回赛位于佛罗里达州庞特韦德拉海滩园区的最新扩建项目,标志着其制作与运营能力的整合与升级。这座先进的制作中心将彻底革新PGA巡回赛面向全球高尔夫球迷的内容创作与传播方式。新建筑位于TPC Sawgrass球场的 THE PLAYERS体育场球场以南,紧邻PGA巡回赛总部大楼,两者均由Foster + Partners事务所设计,总部已于2021年落成。
PGA TOUR Studios is the latest addition to the PGA TOUR’s campus in Ponte Vedra Beach, Florida, expanding and consolidating its operations. The state-of-the-art production studio will redefine how the TOUR creates and delivers content to golf fans across the globe. The new building is located just south of THE PLAYERS Stadium Course at TPC Sawgrass and positioned directly alongside of PGA TOUR headquarters building, which was also designed by Foster + Partners and completed in 2021.
▼建筑概览,building overview

▼湖面视角,view from lake


新演播中心在建筑设计上延续了总部的风格,南立面与东立面设有宽阔的柱廊,大面积屋檐为室内提供遮阳效果。南侧与东侧的玻璃幕墙带来环绕湖泊与园区的全景视野。建筑之间通过一条精心设计的景观步道相连,方便员工与访客共享园区内的世界级配套设施。白色金属、混凝土与玻璃构成的精致材料组合,进一步强化了两栋建筑之间的整体感。
Reflecting the design of the headquarters, the new studio building features generous colonnades on the south and east elevations and a large overhanging roof, which shades the internal spaces. Glazing on the south and east facades generates panoramic views of the water and surrounding campus. A landscaped pathway directly connects the new studio and the headquarters, allowing all employees and visitors to share the campus’ world class amenities. A refined material palette of white metal, concrete, and glass reinforces the connection between the two buildings.
▼宽阔的柱廊提供遮阳效果,generous colonnades shade the internal spaces

▼白色金属、混凝土与玻璃构成的精致材料组合,
material palette of white metal, concrete, and glass

PGA TOUR Studios currently features eight production rooms, eight audio control rooms and seven LED-outfitted studios. Split over three levels, the new facility also contains the largest golf footage library in the world and a café with additional outdoor seating.
▼制作间,studio spaces


▼楼梯间,stairwell

得益于该园区在节能降耗、水资源利用与室内空气质量优化等方面的可持续设计与运营方式,PGA巡回赛园区整体项目获得了美国绿色建筑委员会(U.S. Green Building Council)颁发的LEED BD+C金级认证(能源与环境设计先导评级体系建筑设计与建造类金奖)。
The completion of the campus has helped the TOUR achieve LEED (Leadership in Energy and Environmental Design) BD+C Gold certification from the U.S. Green Building Council, due to its sustainable design and operation with specific approaches to energy conservation, water use reduction and enhanced indoor air quality.
▼夜景,night view



▼总平面图,site plan

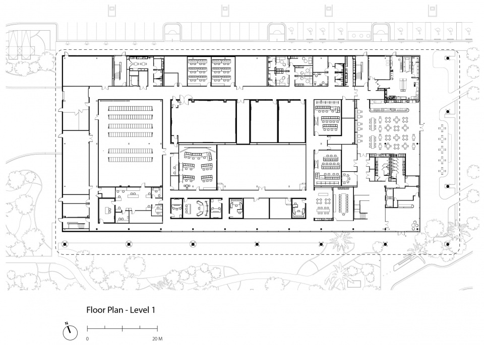
▼一层平面图,Level 1 floor plan

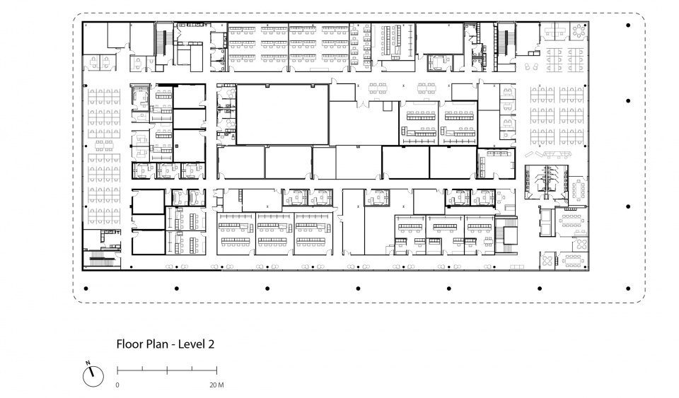
▼二层平面图,Level 2 floor plan

▼三层平面图,Level 3 floor plan

▼立面图,elevations




▼剖面图,section

▼隔音墙构造,acoustic wall assembly

▼楼梯轴测,staircase axon















