市民中心,加拿大 / Cardin Julien
拉瓦尔东部正在诞生一座全新的建筑与社会地标:在一块曾为石化厂址、占地13英亩的土地上建起的“市民中心”标志着城市、社会与生态环境真正的复兴。这个新空间为社区提供了图书馆、会议场所、多功能剧院以及警察局,回应了该片区对公共基础设施的迫切需求。自2024年秋季开放以来,这个期待已久的聚会空间迅速被居民接纳,并成为充满活力的社区生活中心。
A new architectural and social landmark is coming to life in eastern Laval : built on a 13-acre site that once housed a petrochemical plant, the new Espace citoyen des Confluents represents a genuine urban, social, and environmental renaissance. In providing the community with a library, meeting spaces, a multifunctional theatre, and a police station, the new space addresses an essential demand for public infrastructure in the neighbourhood. Mission accomplished, since its opening in the fall of 2024, the local residents have made this long-awaited meeting place their own and have turned it into a vibrant hub of community life.
▼项目鸟瞰,aerial view of the project

该项目由蒙特利尔建筑事务所Cardin Julien设计,成功地将一处废弃工业地转变为充满活力和包容性的公共空间,成为可持续城市更新的典范。
Designed by Montreal firm Cardin Julien, the project has succeeded in transforming a former industrial site into a dynamic, inclusive space, and thus stands out as a model of sustainable urban renewal.
▼项目鸟瞰,aerial view of the project

与环境对话的建筑设计An architecture in dialogue with its environment
本项目的建筑设计采用整体性理念,功能规划与基地的能源潜力相互融合,以实现最优布局与造型。其灵感来自生态“变形学”(eco-morphosis)原则,即每一次改变都源于特定的数据与意图,设计团队为此地量身打造了独一无二的建筑方案。
The project’s architecture is informed by a holistic approach in which the program and the site’s energy potential are in dialogue to optimize its layout and shape. Inspired by the ecological principle of eco-morphosis, whereby each change is the result of specific data and intentions, the designers have created a project unique to the site.
▼项目鸟瞰,aerial view of the project

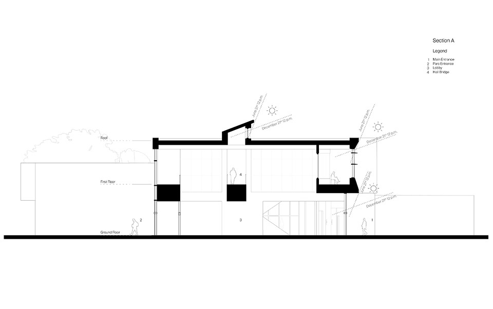
建筑在广阔未开发用地上的布局,使其可沿东西向轴线布置,从而最大程度提升生物气候效率。通过采用朝南立面设计,修长且倾斜的体量形式有助于被动式太阳能获取,同时减少东西立面带来的热负荷。这种布局不仅提升了热舒适性与能源表现,同时也令该建筑在Huguette-Gaulin大道上一目了然,成为显著地标。
▼场地平面,site plan

The building’s layout on a vast undeveloped lot made it possible to optimize its alignment along an east-west axis, thereby maximizing its bioclimatic efficiency. In opting for south-facing surfaces, the building’s elongated and angled volume fosters the in take of passive solar energy, while reducing direct thermal gains on the east and west facades. This arrangement improves the project’s thermal comfort and energy performance, while at the same time accentuating its presence as a landmark that can be spotted from avenue Huguette-Gaulin.
▼修长且倾斜的体量形式,elongated and angled volume

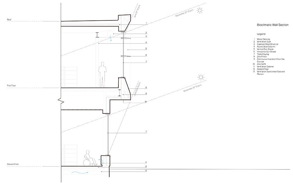
建筑开口的布设遵循太阳轨迹,配合遮阳构件,确保最佳的自然采光同时避免夏季过热。日照带来的光影变化随着时间与季节更迭而呈现丰富层次,为建筑带来动态视觉体验。场地整合是设计核心理念之一。建筑以线性、略带角度的体量,成为场地景观中的显著元素;二层所采用的大地色材质则使其自然地融入周围环境。因项目以可持续发展为首要目标,其所有设计决策均以实现超越LEED v4金级认证的高性能标准为导向。将被动式与主动式能源策略整合入建筑,是该项目核心身份的体现。
Guided by the sun’s movements, the openings are carefully positioned and punctuated with brise-soleils, ensuring an optimum supply of natural light while limiting overheating in summer. The resulting play of shadows and textures varies with the hours and the seasons, enriching the visual experience of the building. Site integration is at the heart of the architectural approach. With its linear, slightly angular volume, the building stands out as a defining landscape feature, while the earth-toned materials of the second floor ensure a natural harmony with its surroundings. Given that sustainability is a key premise of the project, all design decisions were made to achieve exemplary performance standards, which go well beyond the goal of LEED v4 Gold certification. The integration of passive and active energy strategies into the architecture is a central component of the project’s identity.
▼建筑立面,building facade


一个相遇与探索之地A place to meet and discover
空间内部设计贯彻包容性与社区价值观,旨在为公众提供开放、灵活且民主化的活动场所,摆脱传统模式,打造符合21世纪需求的新型图书馆。这座建筑被视为“第三空间”——一个不仅供人阅读,更供人学习、交流与集会的公共场所。
Inclusion and community values guided the interior design objectives. Seeking to offer welcoming, polyvalent, and democratic spaces for the community, the project steers away from traditional models to propose a library that befits the 21st century. This building is conceived as a third place—a public space that people visit not just to read, but also to learn, exchange, and gather.
▼为公众提供开放、灵活且民主化的活动场所,offer welcoming, polyvalent, and democratic spaces for the community

▼为公众提供开放、灵活且民主化的活动场所,
offer welcoming, polyvalent, and democratic spaces for the community


▼大台阶设计,giant staircase design


建筑的空间组织围绕中轴线展开:明亮的中央入口大厅是互动与探索的交汇点,连接场地的南北户外空间,形成空间与社交的核心枢纽,便于人们在图书馆、社区空间、剧院与户外区域之间自由流动。该空间布局鼓励探索与直觉式使用,营造顺畅而沉浸的体验。
The building program is structured around a central axis: a large, luminous entrance hall, designed as a convergence point for interaction and discovery. Opening onto the northern and southern outdoor spaces, it creates a link between the site’s southern and northern areas. This vibrant core acts as a spatial and social pivot, facilitating users’ movement between the library, community spaces, auditorium, and outdoor areas. Designed to encourage discovery and intuitive appropriation, this spatial organization promotes a fluid, immersive experience.
▼明亮的中央入口大厅,a large, luminous entrance hall

▼明亮的中央入口大厅,a large, luminous entrance hall

建筑采用两层结构,自然形成功能层级:安静阅读区设于上层,会议与活动区位于一层。
The two-level layout provides a natural hierarchy of uses: quiet zones for study are located on the upper floor, while the first floor is used for meetings and activities.
▼安静的阅读区,quiet zones for study


▼供孩子们使用的阅读区,reading zone for children


多个模块化空间可灵活适配各类用途及团体活动,多样化、可移动的家具更增强空间的适应性。屋顶采用木质平台,并引入自然光线,营造温馨宁静的氛围,提升访客体验。
The building proposes several modular spaces that can be adapted for various uses and group events. A range of varied, moveable furniture facilitates rearrangement, thus further contributing to the site’s versatility. The roof’s wooden decking and natural light create a warm, peaceful atmosphere that enhances the experience of visitors of the space.
▼多样化、可移动的家具,varied, moveable furniture



▼表演空间,performance space

焕然一新的景观设计
A transformed landscape
A transformed landscape
景观由Projet Paysage团队设计,遵循最高环保标准,目标是将一处饱受工业开发影响的场地转变为充满生命力与韧性的生态空间。通过整合雨水调蓄池,实现雨水生态管理;同时,开挖土方被就地再利用于地形塑造。密集的绿植覆盖有助于缓解热岛效应,而教育型树木园则提升访客对本地生态系统的认知。
Conceived by Projet Paysage, the landscaping is based on the highest environmental criteria, with the aim of transforming a site marked by industrialization into a living, resilient space. Retention basins integrated into the site’s design allow for the ecological management of rainwater, while the excavated materials are reused to structure and add relief to the landscape. A dense plant canopy helps reduce heat islands, while an educational arboretum enriches visitors’ experiences by raising awareness of local ecosystems.
▼充满生命力与韧性的生态空间,a living, resilient space

景观设计不仅致力于生态修复,也重新构想了市民与环境之间的互动。户外空间专为社区集会、文化活动与休闲娱乐而设,重自然化区域与生物走廊不仅促进生物多样性,还打造出适宜散步与冥想的宜人环境。
The landscaping is not just about ecological restoration; it’s also about rethinking how citizens interact with the site. The outdoor spaces have been designed to host community gatherings, cultural events, and leisure activities. Re-naturalized areas and biological corridors not only promote biodiversity, but also create a welcoming landscape setting that makes for pleasant walks and inspires contemplation.
▼生态走廊,biological corridor

交通与无障碍通达性:为所有人设计的空间Mobility and universal accessibility: a project designed for all
在汽车为主的郊区语境中,“汇流市民空间”大胆提出交通平衡与无障碍通行的愿景。作为真正的多模式交通节点,场地设计鼓励行人与骑行者、机动车和平共处,并便于接驳公共交通。室外布局经过精心设计,旨在减少对私家车的依赖,鼓励绿色出行。配套的自行车道与拉瓦尔全市自行车网相连,自行车停放设施与安全步道鼓励日常骑行通勤。同时,周边公共交通站点的可达性进一步提升了项目在大都会范围内的连通性。
In a suburban context in which the car remains the main mode of transportation, Espace citoyen des Confluents is taking an ambitious approach to rebalancing mobility and promoting universal accessibility. Envisaged as a genuine multimodal hub, the site encourages a harmonious coexistence between pedestrians, cyclists and motorists, while also facilitating access to public transit. The exterior features have been carefully designed to reduce car dependency and encourage active travel. Bicycle paths connected to the Laval bike path network, bicycle parking, and safe pedestrian access encourage daily commuting. Furthermore, the proximity of public transit stops reinforces the site’s intermodality and accessibility on the metropolitan scale.
▼夕阳下的建筑,building under sunset

整座建筑严格遵循无障碍通行原则,确保包括行动不便者在内的所有人都能无障碍进入和使用。适配通道、清晰导视与优先流线,确保室内外皆可无障碍、便捷通行。
The overall project incorporates the principles of universal accessibility, guaranteeing a barrier-free, easy-to-access environment for all, including for people with reduced mobility. Adapted pathways, clear signage, and prioritized circulation flows ensure an inclusive experience, both inside and outside the building.
▼灯光下的建筑,building under lights

凭借其生物气候策略、社会根基与典范级的景观整合,“汇流市民空间”成为拉瓦尔未来市政基础设施的样板。这不只是一个建筑,更是城市公共设施设计思路的重大转折点,它展示了如何将废弃用地转化为可持续的生活空间。这一开创性尝试体现了对“过渡区”重归自然的宏大愿景,引导市政建设迈向更具韧性、更具包容性、也更扎根本地的未来发展方向。
With its bioclimatic approach, social roots, and exemplary landscape integration, Espace citoyen des Confluents is a model for Laval’s future municipal infrastructures. It’s more than just a building: it marks a turning point in the way public facilities can be designed in an urban environment, thanks to the restoration of an abandoned site into a sustainable living space. This pioneering approach is part of a broader vision for the re-naturalization of transition zones, guiding the future of municipal construction towards solutions that are more resilient, inclusive, and rooted in their territory.
▼街景,street view

▼一层平面图,ground floor plan

▼二层平面图,first floor plan

▼立面图,elevation

▼剖面图,section

▼墙身大样图,wall section detail

Project name: Espace citoyen des Confluents
Location: Laval, Québec, Canada
Client’s name: Ville de Laval
Year of construction: 2024
Area: 5750 m2
Construction budget: CAD$34 million
Environmental certification: LEED Or
Architecture : Cardin Julien
Engineering : WSP
Landscape architecture : Projet Paysage
Scenography : GO Multimedia
Engineering – Telecommunications : Dupras Ledoux inc.
Construction : Groupe GEYSER
Art work : Ludovic Boney
Photography : David Boyer














