齐长城清川上洞穴崖壁酒店,淄博 / 十上空间设计
时间之河,奔腾不息。从寒武纪流向奥陶纪,借力“喜马拉雅造山运动”,位于泰、沂山脉交汇的潭溪山应时而生,远古的诗意被转换为一系列台阶状长崖、深切障谷,在自然侵蚀和人工参与下,恒久屹立。悬崖之上,一座逐级生长的玻璃建筑嵌入峭壁,透明的姿态让体量消隐,以优雅的弧度,与山川对望。
The river of time, galloping. From the Cambrian period to the Ordovician period, with the help of the “Himalayan orogeny”, Tanxi Mountain, located in the intersection of Tai and Yi Mountains, was born in time, and the ancient poetry was transformed into a series of stepped long cliffs and deep barrier valleys, which stood forever under natural erosion and artificial participation. Above the cliff, a glass building grows step by step into the cliff, the transparent posture makes the volume disappear, in an elegant arc, looking at the mountains and rivers.
▼项目远景,viewing the hotel at distance


群山叠翠间,犹如一处远古遗迹,匍匐于大地的齐长城清川上悬崖酒店从“缝隙”中生长而出,轻盈的骨架勾勒出清晰的几何轮廓,外部顺应地表高低起伏,极具自然韵律。在光与影的精确雕刻下,建筑有了明暗深度,逐渐浮现似山形般的立体形象。顶面高处设有圆形停机坪,不仅确立落地方位,也同天空产生联系,遥相呼应。
Among the mountains, like an ancient relic, the Qi Great Wall Qingchuan cliff hotel grows out of the “gap”, the light skeleton Outlines a clear geometric outline, and the outside complies with the ups and downs of the surface, which is very natural rhythm. Under the precise carving of light and shadow, the building has a depth of light and dark, and gradually emerges a three-dimensional image like a mountain. The top surface is equipped with a circular apron, which not only establishes the landing orientation, but also produces a connection with the sky and echoes the distance.
▼项目鸟瞰,aerial view of the project

▼顶视图,top view

建筑是体验的艺术。诚如杰弗里·巴瓦(Geoffrey Bawa)所说,“建筑无法被完整地解释,必须被体验。”只有当我们置身其中,才能真切感知它独特的存在。酒店布局沿着蜿蜒的峭壁铺展开来,一侧融入山体,打造“穴居”般的原始空间体验;一侧面向自然,可览窗外变幻的四时风景。
Architecture is the art of experience. As Geoffrey Bawa said, “Architecture cannot be fully explained; it must be experienced.” Only when we are in it can we truly perceive its unique existence. The layout of the hotel is spread out along the winding cliff, and one side is integrated into the mountain, creating a “cave-like” original space experience; One side faces nature and can see the changing scenery outside the window.
▼观景平台,viewing platform


▼建筑与景观,architecture and landscape

连续的内外 Continuous inside out
穿过内凹的台阶状崖壁,抵达建筑内部,岩石在此变换成内外统一的木饰面,一株历经岁月风化的原木横卧端头,引人注目,将自然和上古的想象锚固于场域之中,营造亲近的大堂接待区入口。日光从一侧幕窗照进,灵动的光影化作时间的精灵,以不同的投射角度游走于空间,活泼有生气。
Passing through the recessed stepped cliff to reach the interior of the building, the rocks transform into a unified wood veneer inside and outside, and a log that has weathered the ages lies on its head, striking and anchoring nature and ancient imagination in the field, creating an intimate entrance to the lobby reception area. Sunlight shines in from one side of the curtain window, and the clever light and shadow turn into the spirit of time, walking in the space with different projection angles, lively and lively.
▼入口,entrance

▼到达区,arrival area

累叠的地层存储着地壳运动的记忆,剖切开来,可见明确分层。这种分层的灵感展现于立体的建筑空间时,意义更为丰富:前景为荒石肌理,暗示周围的环境;自然的温暖木作则占据主要,形成一种视觉基调,流动且连续;深色的主背景是空间的焦点,凹凸有致的青铜纹样旨在回应齐地悠久的历史文脉。
The layered layers store memories of crustal movements, and when cut open, they are clearly stratified. This layered inspiration is more meaningful when it is displayed in the three-dimensional architectural space: the foreground is the rough stone texture, suggesting the surrounding environment; Natural warm woodwork dominates, creating a visual tone, flow and continuity; The dark main background is the focal point of the space, and the embossed bronze pattern is designed to respond to the long historical context of the place.
▼接待区,reception area


顺势的设计 Design with momentum
基于场地条件的合理判断,顺势而为,是设计动作准确性的前提。借助岩石“间隙”,置入步梯以构筑垂直动线,有利于上下空间的通达。自然光投射而入,局部的黄铜材质和周围的原石肌理形成鲜明对比,二者又和谐相融,体现一种因地制宜的恰当,并在精致与粗犷、自然与人工、当代与远古之间产生对话。
Reasonable judgment based on site conditions and following the trend are the prerequisite for the accuracy of design actions. With the help of the rock “gap”, the step ladder is placed to build a vertical moving line, which is conducive to the access of the upper and lower space. The natural light is projected in, and the local brass material and the surrounding raw stone texture are in sharp contrast, and the two are harmoniously integrated, reflecting a kind of appropriate local conditions, and generating a dialogue between the exquisite and the rough, the natural and the artificial, the contemporary and the ancient.
▼楼梯,staircase



拾级而下,承担主要功能的餐厅,有着内外无界的通透性。立面和天花以温暖的木饰面为主,地面铺设哑光石材,强调空间的整体与纯粹,大面积的玻璃窗设计,有效引入外部光线,同时便于将访客的视野引向更广阔的自然。或雨时,山色空蒙;或阴天,天光晦暗;或晴日,云蒸霞蔚。
The restaurant, which takes on the main functions, has an unbounded permeability inside and outside. The facade and ceiling are dominated by warm wood finishes, the floor is laid with matte stone, emphasizing the wholeness and purity of the space, and the large glazing design effectively introduces the external light and facilitates the view of the visitor to the wider nature. Or when it rains, the mountains are empty; Or cloudy day, dark sky; Or a clear day, clouds and clouds.
▼酒吧,bar

▼餐厅,restaurant

▼露台,terrace


▼户外用餐区,outdoor dining area

在雪茄和品酒区,通过向内凿洞的方式获得空间,面窗与外部产生联系,阴翳的内部提供了一处隐秘的放松角落。吧台之上,战国金戈铁马的场景借由艺术装置的形式,化作觥筹交错时碰杯的铮铮有声,饶有趣味。灯光明暗间,不论独坐,或三五好友相聚,在背景音乐的氤氲下,享受自在的闲适时光。
In the cigar and wine tasting area, space is gained by cutting holes inside, the facade window creates a connection with the exterior, and the shaded interior provides a secluded nook for relaxation. Above the bar, the scene of the Warring States Jin Ge iron horse is transformed into the clink of glasses while drinking wine, which is interesting. Light and dark, whether sitting alone, or three or five friends together, in the background music under the dense, enjoy the comfortable leisure time.
▼雪茄和品酒区,the cigar and wine tasting area


▼雪茄和品酒区室内,interior of the cigar and wine tasting area


▼细部,details

偏于一隅,作为功能补充的书吧,除一面幕窗之外,其他部分均由木作所包裹,整体的一致协调营造出具有人文温度的空间氛围。白色纱帘垂挂而下,可根据阳光强度自由开合。远处层峦叠嶂,能舒展眼目;近处植物、山体、岩壁,让自然触手可及。而局部外露的岩石,则构成空间的一部分,也成为一种新的立面。
In the corner, as a functional supplement, the book bar, except for one curtain window, other parts are wrapped by wood, and the overall coordination creates a space atmosphere with humanistic temperature. The white gauze curtain hangs down and can be opened and closed freely according to the intensity of sunlight. The peaks of mountains in the distance stretch the eyes; Close to plants, mountains, rock walls, so that nature is within reach. The partially exposed rock forms part of the space and becomes a new facade.
▼书吧,library corner

▼景观画框,frame view

▼细部,details

自然的远眺 Natural overlook
结合场地的地质情况,局部下沉以构建无边界泳池,有如一处天然遗迹的洼地,光照下,水波潋滟。跟随高低落差,泳池从岩壁深处延展至外部边缘,坚硬的荒石变为通透的玻璃幕窗,虚实之间,人、水、岩石与室外的自然建立起亲密连接。而空间本身即是山体的一种延伸,并与山体融为一体。
Combined with the geological conditions of the site, the local sinking to build a borderless swimming pool, like a depression of natural relics, the water waves are shining in the light. Following the height, the swimming pool extends from the depth of the rock wall to the outer edge, and the hard rough stone becomes a transparent glass curtain window, between the virtual and the solid, people, water, rock and the outdoor nature establish an intimate connection. The space itself is an extension of the mountain, and integrated with the mountain.
▼泳池,pool


▼泳池细部,details of the pool


▼泳池,the pool

▼细部,details

不同于精心营造的室内冥想室,在一处垂直峭壁内,凭借自然的形态、肌理、环境,特意打造了一间半室外的直面自然的遗世而独立的“冥想空间”。访客可以在此与天地共享鸟语花香、风雪晴雨,感知岩石真实的脉搏和呼吸。结跏趺坐,可远眺自然,亦可静思冥想,抵达内心的平静。
Different from the carefully constructed indoor meditation room, in a vertical cliff, with the natural form, texture and environment, a semi-outdoor independent “meditation space” is specially created to face the natural heritage. Visitors can share with heaven and earth the song of birds, flowers, snow and rain, and feel the real pulse and breathing of the rock. Sitting lotus lotus posture, you can look at nature and meditate, reaching inner peace.
▼垂直峭壁内的冥想室,meditation area in a vertical cliff


▼细部,details

五感的体验 Perceived experience
结构即建筑,天然去雕饰。在地壳深处,利用天然岩洞的通道作为连接各个客房的功用走廊,幽暗的环境之中不设常规的泛光照明,而是以可调控的射灯为主要点光源,投射出变幻的光之形态,或曲折的“光路”,或一定间隔的圆形光圈,构建独特的空间氛围和行走体验,开启一场“地心宇航”的探索旅程。
Structure is architecture, nature to carve. Deep in the earth’s crust, the channel of the natural cave is used as a functional corridor connecting each guest room. In the dark environment, there is no conventional flood lighting, but the adjustable spotlights are the main light source, projecting changing light forms, or tortuous “light path”, or circular aperture at a certain interval, to build a unique space atmosphere and walking experience. Embark on an exploration journey of “inner Earth space flight”.
▼走廊,hallway

▼天然岩洞的通道,the channel of the natural cave

▼细部,details

作为酒店主力的岩景房型,室内以大面积的木饰面为温暖基调,局部黑色金属材质点缀其中,冷暖之间有着明确的对比与过渡。地面保留一片原始岩石,野趣横生,其上借助偏向一侧的旋转楼梯连接起上下楼层。浴缸外置于临窗处,与睡眠区一样拥有绝佳的视野,享用泡浴的同时,领略流动的自然画卷。
As the main rock view room type of the hotel, the interior is warm with a large area of wood veneer, and some black metal materials are embellished among them, and there is a clear contrast and transition between cold and warm. The ground remains an area of pristine rock with wild interest, which is connected to the upper and lower floors by a spiral staircase on one side. The bathtub is placed outside the window, and the sleeping area has the same excellent view, enjoy the bath at the same time, enjoy the flow of natural paintings.
▼酒店主力的岩景房型,the main rock view room type of the hotel



基于感官和审美直觉的设计,往往能够窥见事物的原始本质。依据内部岩石的实际高度,借势搭建出二层空间,两侧设置楼梯形成环形动线。一步平台同岩石形成咬合,无须雕琢的自然素材与陶罐等人造物搭配,相映成趣。床背深色青铜纹饰的木作,和不对称布置的艺术灯具构成前后的视觉层次,丰富立面语言。
Design based on sensory and aesthetic intuition is often able to glimpse the original nature of things. According to the actual height of the internal rock, the second floor space is built, and stairs are set on both sides to form a circular moving line. A step platform with the rock to form a bite, no need to carve natural materials and pottery POTS and other artificial objects match, each other interesting. The dark bronzed wood work on the back of the bed and the asymmetrical arrangement of artistic lamps constitute the visual level before and after, enriching the facade language.
▼客房内部,interior of the guest room

▼客房内部,interior of the guest room


▼客房景观,views of the guest room


顺应岩石的天然走势,因地制宜,重新梳理场地关系并合理地排布客房,满足必要功能所需,存留自然的原始之美。岩石作为一种重要元素参与了空间的组成,空间与地形、人工与自然的痕迹交替出现,细腻柔软又兼具粗放浑厚的气息,游走其中,视线所及,无不凸显建筑的自然属性。
Follow the natural trend of the rock, adjust to local conditions, rearrange the site relationship and arrange the guest rooms reasonably, meet the necessary functions and retain the original beauty of nature. As an important element, rock participates in the composition of the space. Space and terrain, artificial and natural traces alternately appear, delicate, soft and extensive. Walking among them, the natural attributes of the building will be highlighted as far as the eye can see.
▼客房内部,interior of the guest room




穴居,构成所有建筑的原型。我们将原始形态进行转译,通过当代的设计语言铺陈于空间。天花、地面、墙体采用一致的材料,流动的线条围合出各种功能区域,既独立又彼此关联。客房命名以《山海经》为灵感,“浮玉、尧光、不周、太华、长留、松果、南禺、天虞”等表达了对山川自然与神话世界的礼赞。
Cave dwelling, the archetype of all architecture. We translate the original form and spread it into the space through contemporary design language. Ceilings, floors, and walls are made of a consistent material, and flowing lines enclose various functional areas that are both independent and interrelated. Inspired by the Book of Mountains and Seas, the rooms are named “Fuyu, Yaoguang, Buzhou, Taihua, Changliu, Pinecone, Nanyu, and Tianyu”, which express the praise of the natural and mythical world of mountains and rivers.
▼客房内部,interior of the guest room



▼细部,details


▼客房内部,interior of the guest room




▼细部,details




置身于空间内部,随着动态而连续的景观出现,身体感知也会产生微妙变化,使内外之间得以渗透、蔓延。在借势利导的设计过程中,我们发现建筑不再是主角,台阶、树木、墙体、泳池、草地、幕窗、岩石都和它有着同等分量。建筑似乎更像是一个容器,将身体、五感与自然共同并入,重构古老的“家”的意象。
In the interior of the space, with the emergence of dynamic and continuous landscape, the body perception will also produce subtle changes, so that the inside and outside can penetrate and spread. In the design process, we found that the building is no longer the protagonist, steps, trees, walls, swimming pools, grass, curtains, rocks and it has the same weight. The building seems to be more like a container, integrating the body, the five senses and nature together, reconstructing the ancient image of “home”.
▼夜景,night view

▼夜景,night view

▼夜景,night view

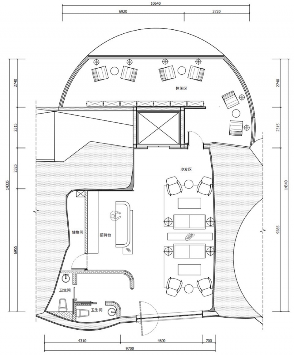
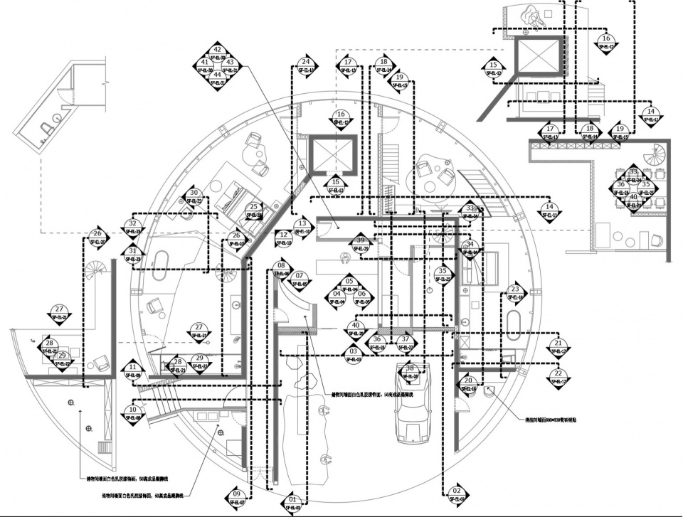
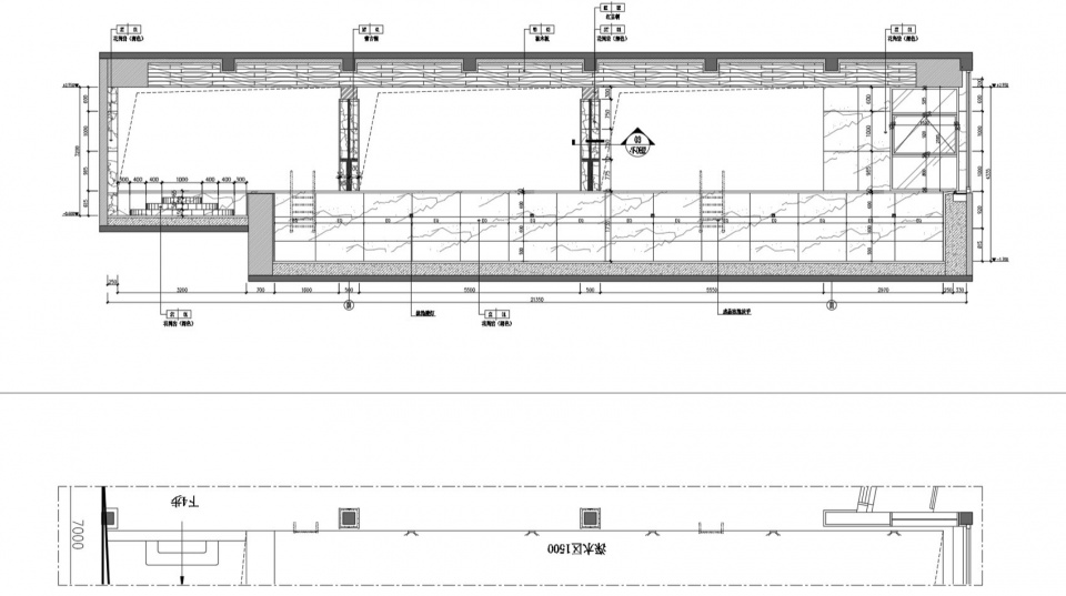
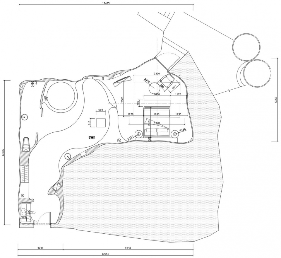
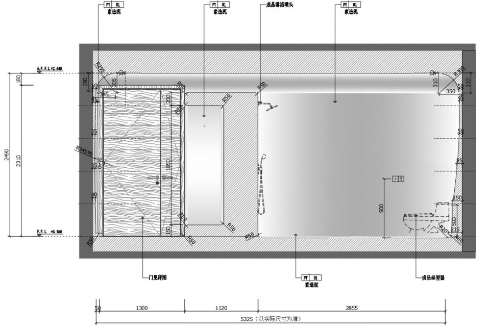
▼悬崖酒店平面图,Floor plan of the Cliff Hotel

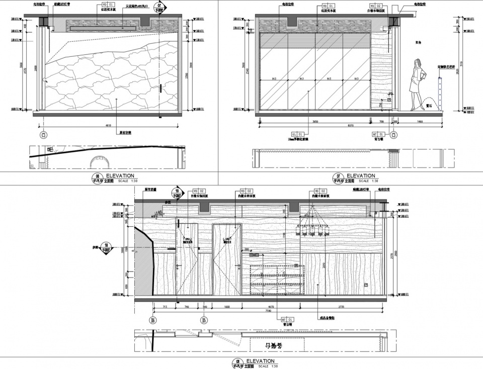
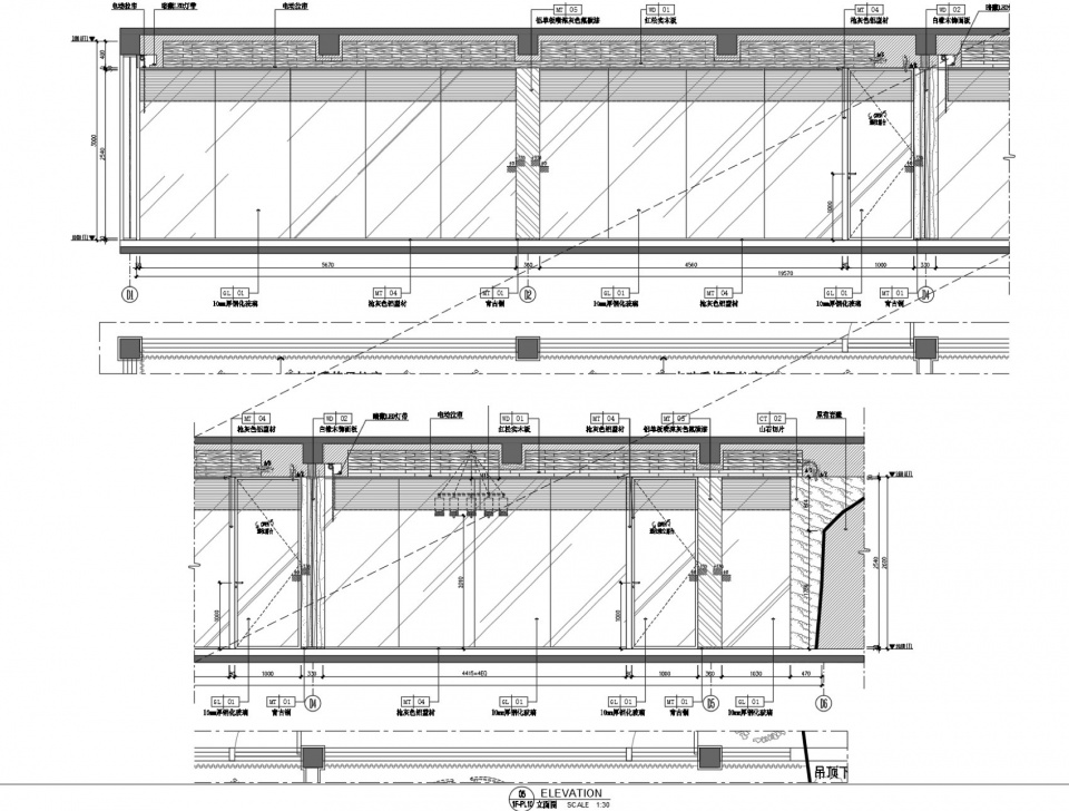
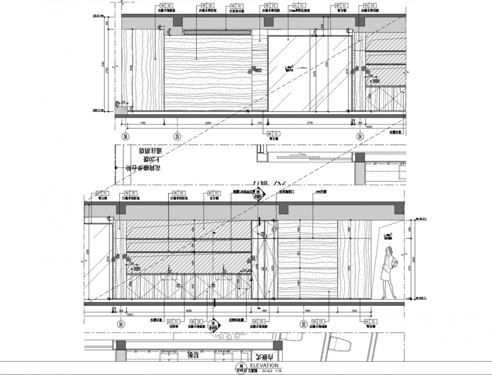
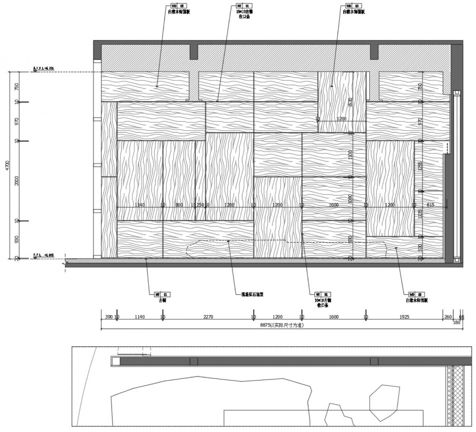
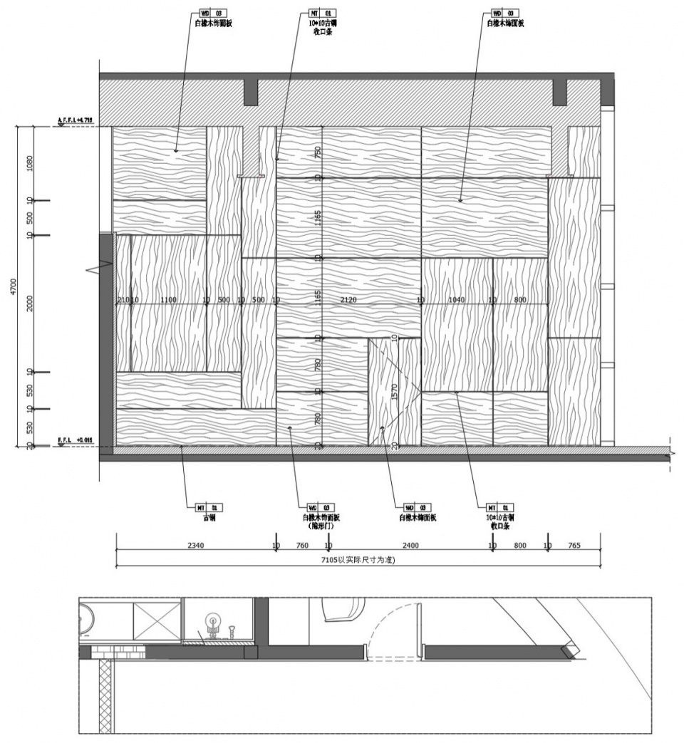
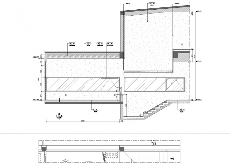
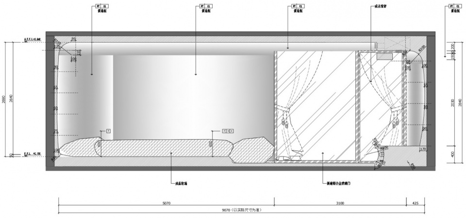
▼悬崖酒店立面图,Elevations of the Cliff Hotel





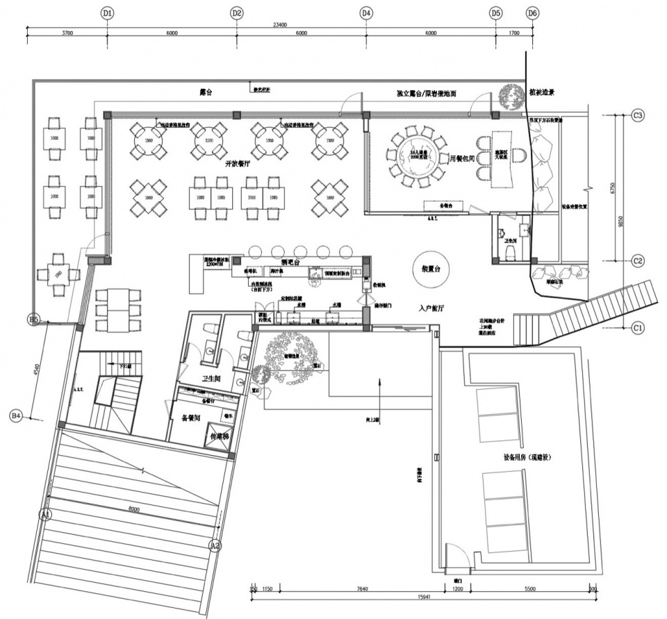
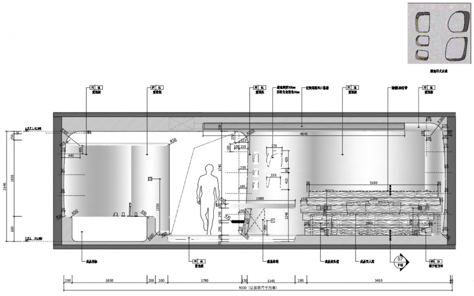
▼餐厅平面图,Floor plan of the restaurant

▼餐厅立面图,Elevations of the restaurant





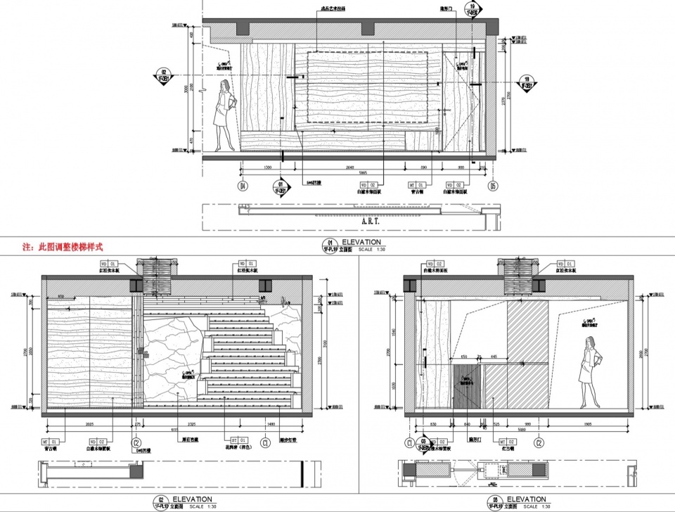
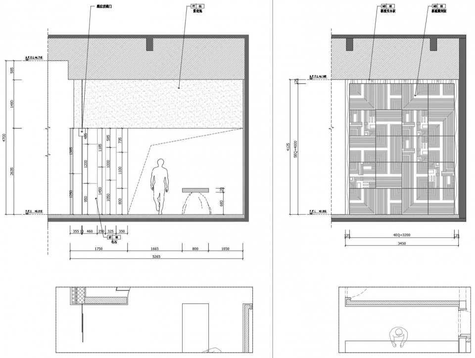
▼大堂平面图,Floor plan of the lobby

▼大堂立面图,Elevations of the lobby




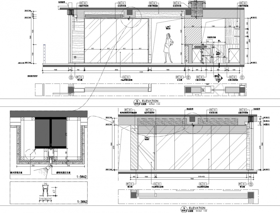
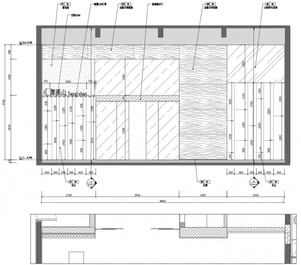
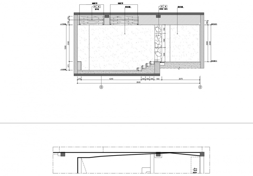
▼接待区平面图,Floor plan of the Reception Area

▼接待区立面图,Elevations of the Reception Area




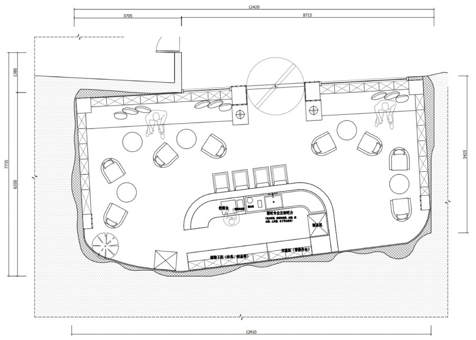
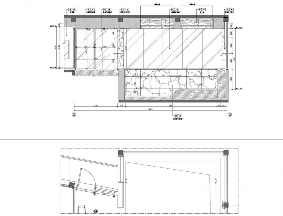
▼品酒区平面图,Floor plan of the Wine tasting area

▼品酒区立面图,Elevations of the Wine tasting area





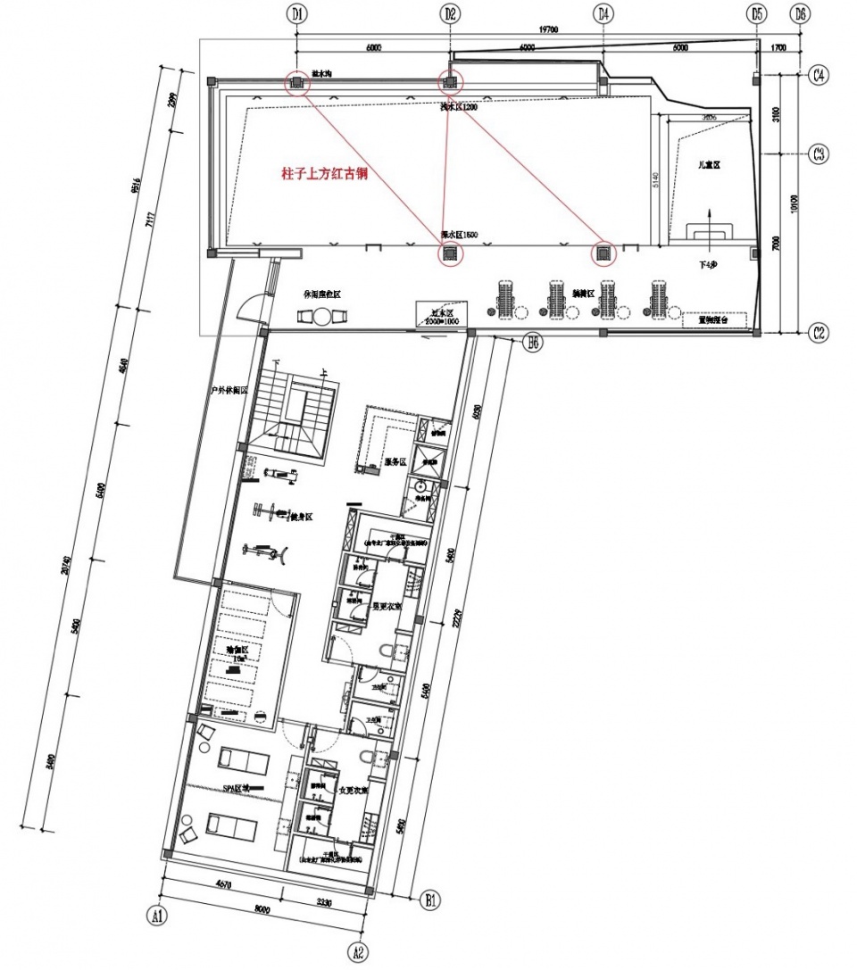
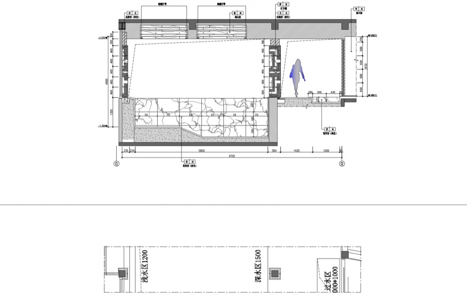
▼泳池平面图,Floor plan of the Swimming pool

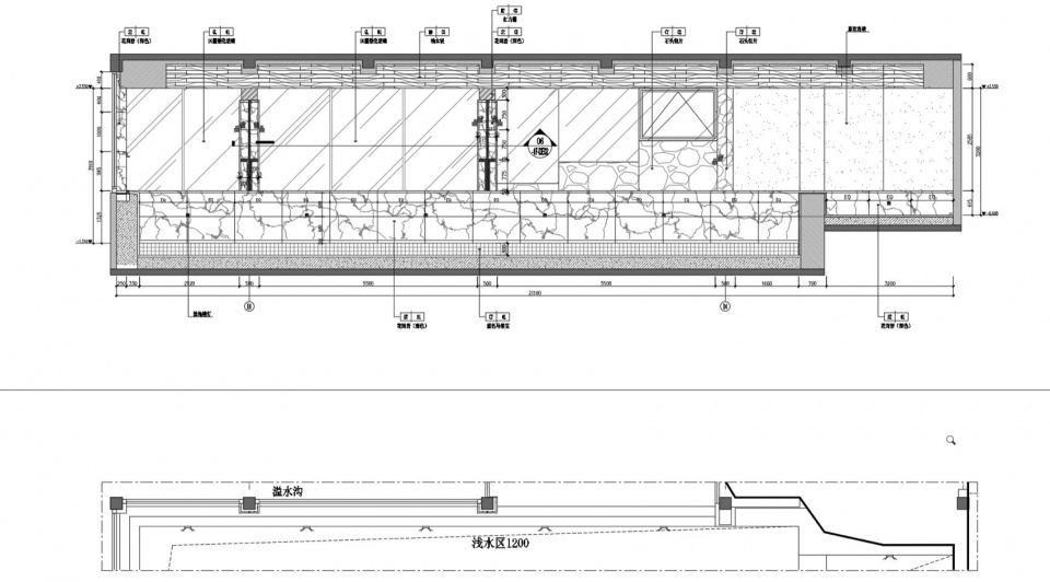
▼泳池立面图,Elevations of the Swimming pool







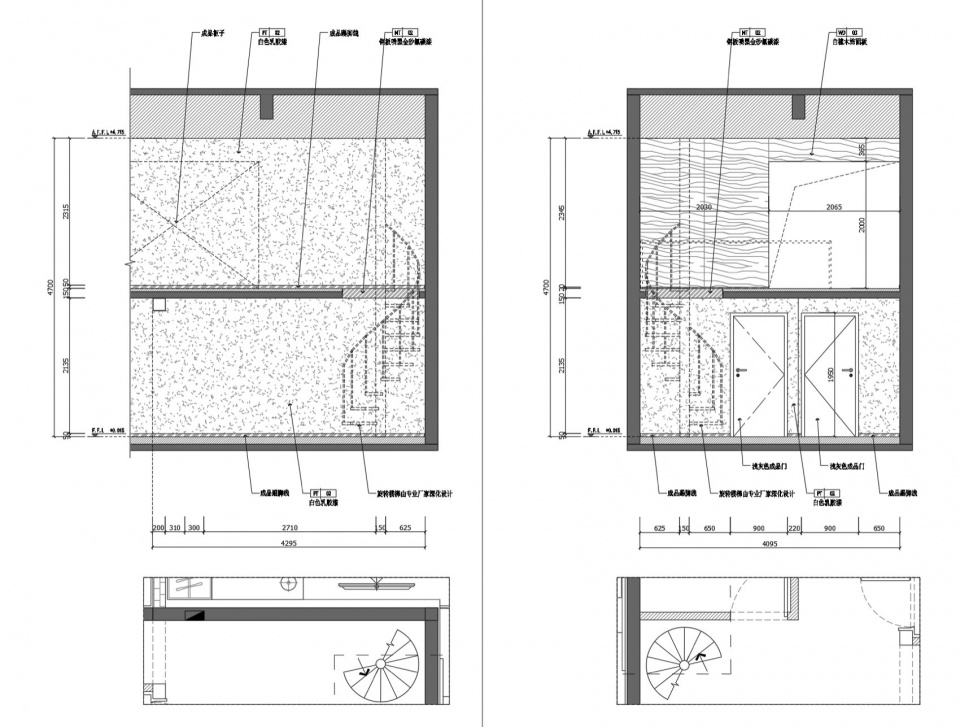
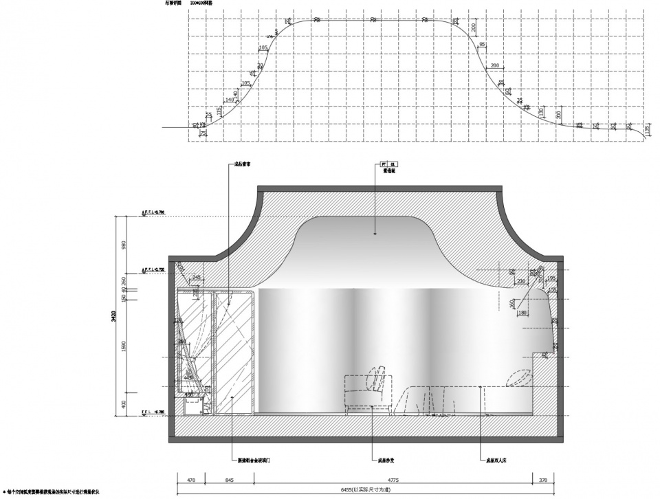
▼洞穴酒店平面图-套房1,Floor plan of the Cave Hotel – room 1

▼洞穴酒店立面图 – 套房1,Elevations of the Cave Hotel – room 1





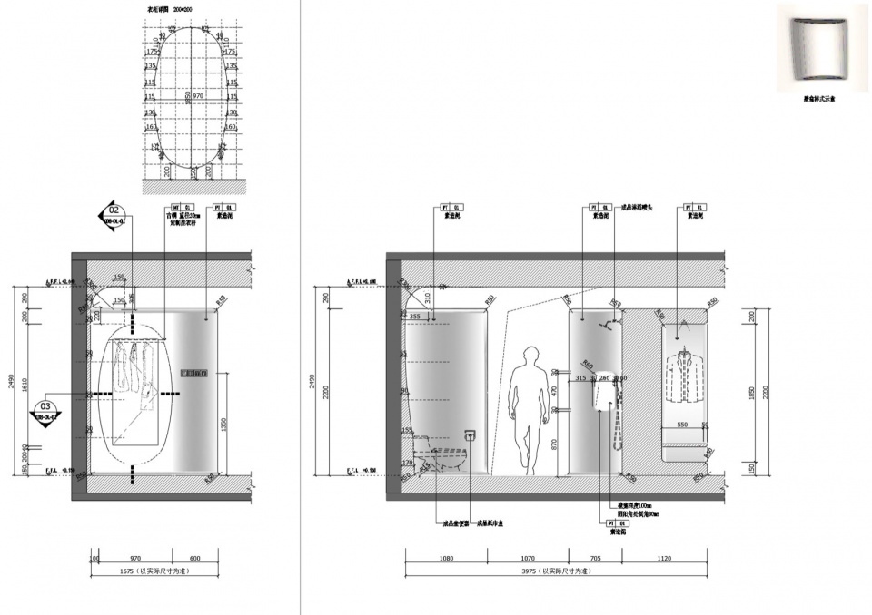
▼洞穴酒店平面图 – 套房2,Floor plan of the Cave Hotel – room 2

▼洞穴酒店立面图 – 套房2,Elevations of the Cave Hotel – room 2






Project name: BRIGHT QI HOTELS&RESORT
Project type: hotel design
Design: Ten on design
Contact e-mail: tenondesign@qq.com
Completion Year: 2024
Leader designer & Team: Ten on design
Project location: In the Tanxi Mountain Scenic Area, Shigou Village, Taihe Town, Zichuan District, Zibo City, Shandong Province
Gross built area: 3149㎡
Photo credit: Aoxiang、Pan Shaoqing
Partner: Yunnan Qingsuo Culture and Tourism Development Co., LTD、Tianmu Design
Clients: Zibo Tanxi Mountain Culture and Tourism Development Co., LTD














