凯旋坊工作室改造,上海 / 尺厘设计工作室
项目坐落于上海长宁区凯旋坊内一栋传统厂房,已作为业主的办公场地使用近十年之久,空间现状为两层:一层为对外开放使用的摄影空间和服务相关工作人员的公共茶歇区;夹层和二层空间用于办公。业主希望在不改变基本布局的前提下对空间进行重新梳理和升级。空间平面为矩形,开敞直接,有着丰富的改造潜力。通过与业主细致讨论和推敲,不断具象化设计的边界和改造的可能性,在对现状空间进行重新组织和划分之后,尺厘设计采用适应性的改造手法,重新划分功能布局、规整动线,同时添加趣味性的空间,激发创意办公灵感。
The project is located in a traditional factory building in Kaixuanfang in the central area of Shanghai. It has been used as the owner’s office space for nearly ten years. The exisiting space consists of two floors: the first floor is a photography space open to the public and a shared lounge for internal staff; the mezzanine and the second floor are office space. The owner hopes to reorganize and upgrade the space without changing the basic layout. The space itself is rectangular, with open and straight forward vibe and ample potential for transformation. Through multiple discussions with the client, the designer manged to define the work scope and possibilities of transformation. After reorganizing and dividing the existing space, Atelier Siyu, with an adaptive approach, reprogrammed the space with logical circulations and inspiring additions to bring out more creative vibes for the office.
▼室内概览,overview of the indoor space

空间的平衡逻辑Balancing Between Spaces
工作室的一层空间主要包含影棚,同时容纳了入口的接待区。从入口到达尽头的影棚空间,设计师置入了一个封闭的“盒子”,作为动线从“外向”到“内向”的过渡核心,将公共性较强的前台、茶水间、咖啡会客区和私密性要求更高的器材室、样衣室、剧场和影棚空间串联起来。
▼左:一层轴测图;右:会议室分析图,Left: ground floor axonometric; Right: meeting room diagram


The first floor of the office is a photo studio with a reception area at the entrance. From the entrance to the end of the studio space, the designer placed an enclosed “box” as the transition core from the extrovert space to the introvert area of the office, connecting the reception, the tea lounge, the coffee area and more private spaces including the equipment room, the sample room, the theater and the photo studio.
▼入口,entrance

▼会议室,meeting room

▼会议室与原有结构的关系,meeting room with existing


“盒子”内是一个可以容纳12人的会议和接待空间。利用现有的结构与物体之间做交错倾斜,通过在缝隙空间中融入物体,实现动线的转换。与现有结构适应交错倾斜退让可安置4.2×7.2m该有的尺度的物体,使其容纳12人尺寸成为可能。物体的交错和倾斜为原本规则的空间增添了活力,同时与现有结构形成了层次关系。物体的形成结合光线的对应。
The “box” is a meeting room can accommodate 12 people. The plan area is 4.2m*7.2m, placed with a staggered angle inside the existing space, creating indirect circulations within the straightforward space. By creating inclinations between the existing structure and panels of the “box”, resonating with the lights,. the designer brought in more vitality and layers to the existing structure.
▼会议室,meeting room

垂直的楼梯景观Vertical Landscape of Staircase
现状空间内的楼梯与一层空间之间缺乏联系,因此设计师拆除了一节楼梯,改道通向一层入口处的公共区域,连通出入口与前台区域。同时将楼梯底部的空间设置为茶水间,并采用斜角的轻质砌块砖墙将这部分楼梯、前台和茶水间包裹起来,也在前台和楼梯转角处设置了开窗,制造办公的“框景”。黑色的主体楼梯结构和红色的转角结构在灰白主调的入口空间产生了强烈的视觉冲击力,为理性克制的办公空间带来大胆活泼的氛围。
▼楼梯轴测图,stair axonometric

The staircase in the exisiting space was disconnected with the first floor, therefore the designer removed a section of the staircase and redirected it to the public area at the entrance, connecting the entrance with the front desk. At the same time, the space at the bottom of the staircase is redefined as a pantry. The lower part of the staircase, the front desk and the kitchen are wrapped with an angled lightweight brick wall. Openings at the corner of the staircase and the reception create a “framed view” when you enter the office. The main structure of the staircase is painted in black, creating strong contrast with the red frames of the exposed structure and the grey entrance space, adding a sense of daring to the rational working space.
▼咖啡厅与楼梯,cafe lounge and stair

▼楼梯, stair

▼旋转楼梯,spiral stair

▼旋转楼梯,spiral stair

多功能的墙体整合Multi-programmed Wall System
在一层空间有开窗的一侧,原空间厚度为600mm的结构柱显得凌乱且强势,需要重新整合。考虑到保温需求,原计划保留的开窗也需要重新考量。因此在立面设计和功能分区上,结合空调最佳的高度和使用舒适度来布置空调机、垃圾桶和消防箱。经过重新规整,空间更加理性、使用效率更高,核心空间的结构也更加清晰。玻璃砖的应用解决了私密性与采光之间的平衡。
▼原始窗户,existing window

On the window side of the first floor, the original concrete structure and the previously added steel structure formed a wall with a thickness of 600mm, which needed to be reorganized. Considering the insulation requirements, the windows originally planned to be retained also need to be reconsidered. Therefore, the air conditioners, the trash bins and fire extinguishers are repositioned in the wall with appropriate heights. The space became more logical and efficient, and the structure of the core space is more clarified. The use of glass bricks created balance between privacy and lighting.
▼会议室与窗户的关系,meeting room with opening


▼会议室与窗户的关系,meeting room with opening

▼开窗墙体,opening wall

二层的办公空间平面相对完整,但梁架下高度仅为2.3米,在此限制条件下,设计师利用结构轴网将空间重新划分,同时采用不规则角度的几何金属体块作为门洞空间。门洞空间连接着不同的办公功能区,包括灵活工作间、打印间、小型会议室、行政和财务办公室、高层办公区等等。相对私密的功能区采用斜向的玻璃隔断划分,平行于错角旋转的门洞空间轮廓,营造出体感上的几何趣味、但平面上又相对规整的空间逻辑。
▼二层轴测图,2F axonometric

The existing space on the second floor was relatively complete, but the height under the beams was only 2.3 meters. Taking such restriction in consideration, the designer reorganized the space based on the structural grid and added geometric metal blocks of irregular angles as lobby spaces. The lobbies connect areas of different functions, including flexible workrooms, printing rooms, small meeting rooms, administrative and financial offices, managers’ offices, etc. These relatively private spaces were divided by oblique glass partitions, parallel to the frames of lobby spaces, playing with geometric tricks while strengthening the integrity of the space.
▼二层休息区,lounge on the upper floor



由于现状地面不可预埋线路,设计师在工作区增加了立柱,从天花桥架上布线强/弱电到工作桌。
As the space cannot allow pre-buried wires on the ground, the designer added columns in the work area to introduce electricity from the ceiling to the desks.
▼未布置家具时的办公室,office without furniture

▼未布置家具时的办公室,office without furniture

▼布置家具时的办公室,office with furniture

▼布置家具时的办公室,office with furniture


▼增加的立柱,added columns

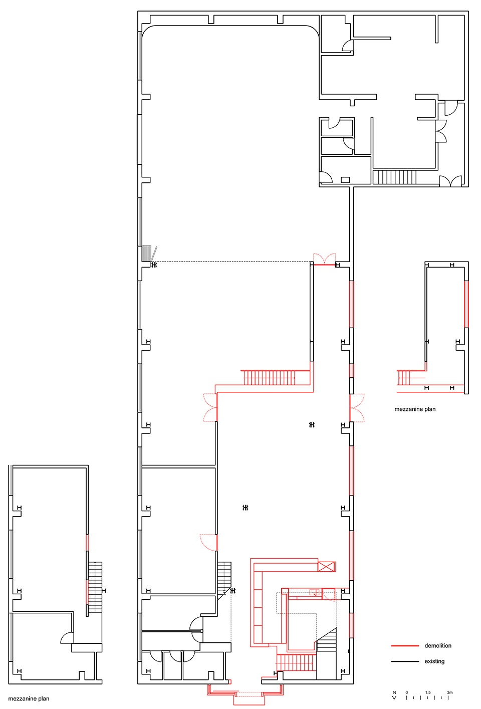
▼一层原始拆除平面,ground floor demolition plan

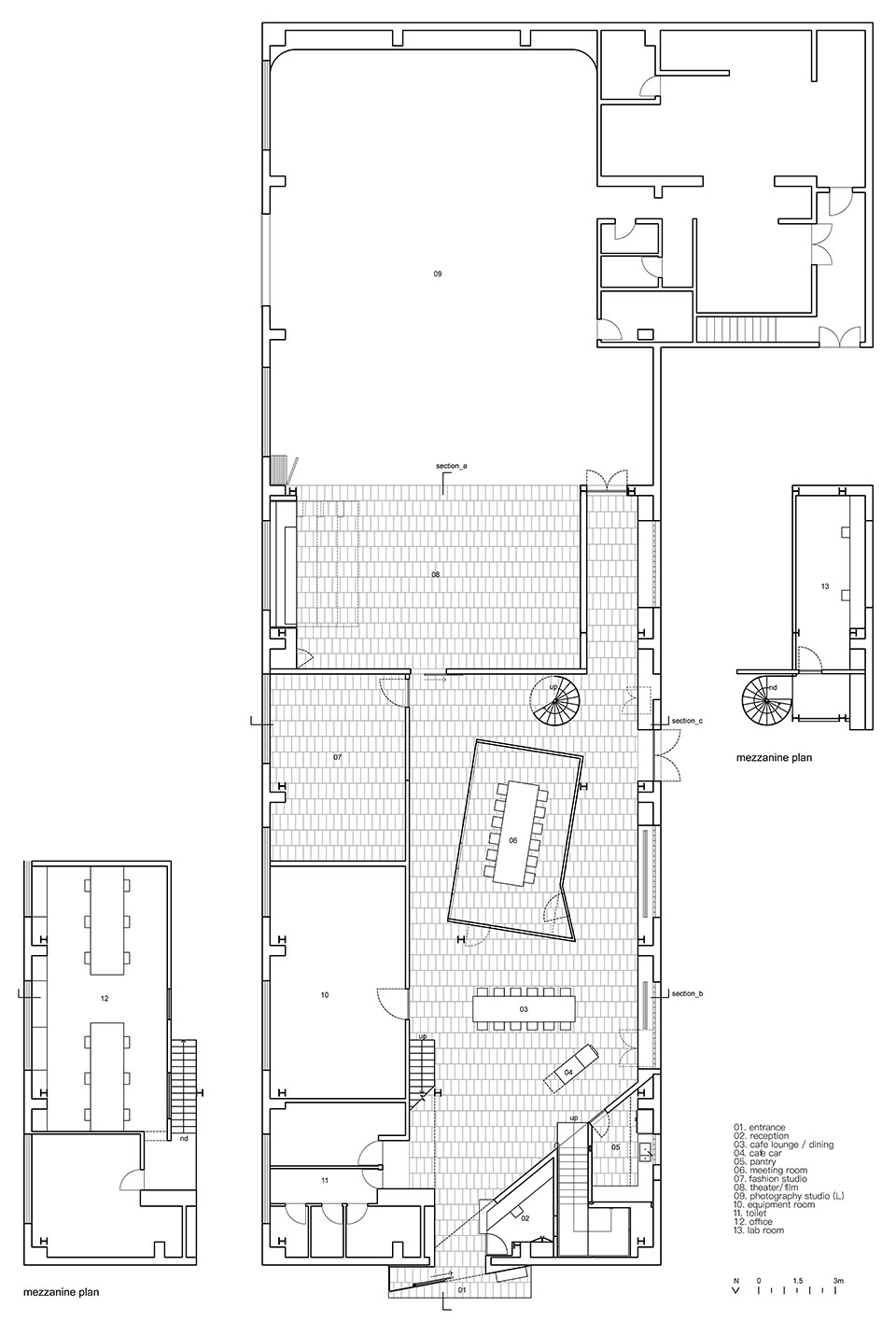
▼一层平面,ground floor plan

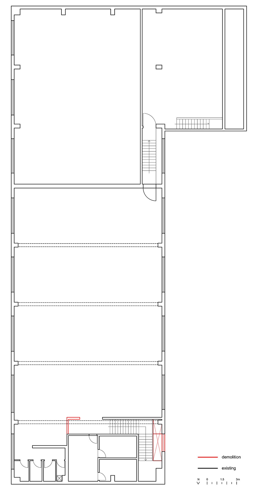
▼二层原始拆除平面,first floor demolition plan

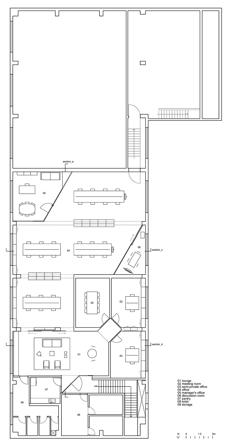
▼二层平面,first floor plan

▼剖面,section


▼细部,detail

Location: Changning District, Shanghai
Program: Office, Renovation, Photo Studio
Program: Office, Renovation,
Photo Studio
Designer: Atelier Siyu
Contact: ateliersiyu@outlook.com
Contact:
ateliersiyu@outlook.com
Completion: November, 2024
Area: 760sqm
Contractor: Shanghai idea mechanics interior Designers Contractors
Contractor:
Shanghai idea mechanics interior Designers Contractors
Photographers: Chenhao, Wangke, Siyu
Photographers: Chenhao,
Wangke, Siyu
Materials: painted metals, galvanized plates, terrazzo, lightweight bricks
Text: M.Department














