彩虹国际学校,印度 / Spacefiction Studio
在印度,最早期的学校形式之一是“古鲁库尔”(Gurukul)——“古鲁”意为导师,“库尔”意为住所。对熟悉这一概念的人来说,这种教育方式唤起一幅强烈的画面:一位博学的导师在大树荫下,将知识口传心授给弟子。这种开放、简约、非直接灌输式的知识传授形式,在19世纪前后逐渐消失,被如今广泛采用的“钟声与教室单元(cells and bells)”的模式所取代。
India and education: In India, one of the earliest forms of schools is a gurukul (guru- teacher, kul- house). To people familiar with this concept, this invokes a powerful image of a learned guru passing on knowledge to disciples under the shade of a large tree. This unbounded, minimal, indirect instruction as a form of transfer of knowledge soon disappeared around the 19th century, with the cells and bells model taking over the majority of institutions.
▼校园概览,overview of the campus



“School”(学校)一词源自希腊语 scholē,原意是“闲暇”。讽刺的是,如今印度大多数的学习环境,显然在“学习”与“闲暇”之间更偏向压力。教育理念正在发生转变,教师单向向学生灌输知识的工业化等级结构,已无法满足21世纪学习者的需求与期望。教育的革新呼唤能够同时激发教师与学生探索欲的空间。
The word ‘school’ derives from Greek σχολή (scholē), originally meaning ‘leisure’. Ironically, the current majority of learning environments in the country tip the scales of learning more toward pressure than leisure. Educational pedagogy is changing and the industrial hierarchical transfer of knowledge from teacher to pupil no longer meets the needs and aspirations of 21st-century learners. Pedagogical innovation demands spaces that enable exploration by both teacher and student.
▼校园鸟瞰,aerial view of the campus

▼校园入口,entrance of the campus


该项目为一所现有校园的新建教学楼,三层高的建筑自东向西延展,其南北长边的布局有助于最大限度地减少热量吸收。建筑的中轴为一个贯通三层的高大空间,划分了南北两个教学区域,并通过多层交错的连桥相连。自然光从顶部天窗倾泻而下,洒在一排贯穿整个中庭的大型热带绿植上。南侧楼体则采用阶梯式退台设计,以遮挡烈日对低层空间的直接照射。
▼设计策略,design strategy

Rainbow International school: Designed as an addition to an existing campus, the three stories tall building spans east to west with longer sides facing north and south, minimising heat gain. The central spine; a large, three floor volume divides the north and the south wing of the school, with bridges spanning across, staggering on multiple levels. This volume has light raining from the top through skylights, hitting the large planters filled with tropical greens that run the length of the school. The south wing itself is staggered, to protect the lower floors from the high south sun.
▼贯通三层的中庭空间,a large, three floor volume


▼通过多层交错的连桥相连,with bridges spanning across, staggering on multiple levels


▼自然光从顶部天窗倾泻而下,light raining from the top through skylights



▼阶梯式退台,staggered staircase

底层教室向遮阴良好的南北庭院敞开,而上层教室则面向东西两侧,并共享高达两层的开放式庭院。通过打破封闭的四面墙,这些庭院试图将教室空间拉近至“古鲁库尔”式的开放教学模式,缓解传统教室带来的压迫感。为了真正实现建构主义学习方式,学生需要在讲授、分组学习、演讲、讨论与个体学习之间灵活切换,这类空间正是为此而设。
Classroom and the courtyard: The ground floor classrooms open onto shaded north or south courts. The classrooms on the higher floors open east or west, sharing large, double height courtyards. These courtyards are an attempt to take the classroom closer to the gurukul model by eliminating walls, thereby easing the constricted feeling a typical four walls classroom imposes. In order to fully engage in constructivist learning, students need to transition between lecture, group study, presentation, discussion, and individual work time.
▼开放式庭院,open courtyard

▼延续传统的开放教学模式,continue the traditional mode of unbounded teaching system


▼缓解传统教室带来的压迫感,easing the constricted feeling a typical four walls classroom imposes

▼鼓励开放式学习交流的环境,an environment that encourages open learning exchanges


为了真正推动教育范式的转变,项目特别设计了教室以外一系列互联空间,构建一个让学习自然流动、社区感得以培养的环境。这些附加空间通过颠覆人们对“空间应有功能”的刻板认知,激发思维、创造非预设的交流与偶遇。这些“边角空间”往往能引发有价值的非正式对话,提升讨论层次,激发创造力,促进协作。
‘Left over’ spades and learning: To truly shift the educational paradigm, learning spaces have been planned along a network of connected places outside the classroom where learning can flow from one space to the next and a sense of community is fostered. These extra spaces can stimulate thought by shifting common expectations of planned and productive use of space. These “left-over” spaces can lead to valuable, unplanned, and informal connections. They elevate discourse, encourage creativity, and promote collaboration.
▼让学习自然流动、社区感得以培养的环境,learning can flow from one space to the next and a sense of community is fostered

▼角落空间同样成为学习交流的平台,‘Left over’ space is also a platform for learning and exchange

▼一系列互联空间,a network of connected places


地面主要铺设为冷色调的本地“科塔石”(Kota stone),并点缀花岗岩。滑动铝合金门用于分隔教室与庭院空间。外部庭院则采用当地“坦杜尔石”(Tandoor stone)铺设。
The cold, locally sourced kota stone which is interspersed with granite makes up most of the flooring. The aluminum sliding doors act as a separator between the classroom and the courtyards. The outside courts are finished with local tandoor stone.
▼地面铺设冷色调的石材,The cold, locally sourced kota stone used for flooring

▼地面铺设冷色调的石材,The cold, locally sourced kota stone used for flooring

尽管人类文明过去一万年来的技术进步不断将我们与自然世界的无序特性隔离开来,人类仍渴望、甚至需要与自然建立联系。这座学校通过自然光、微风、树木与空间体量的引入,重新将学习体验与自然的节奏与过程融合在一起。
Despite the advances in technology over the last ten thousand years of human civilization, which have increasingly separated human experience from the uncontrolled aspects of life on this planet, humans continue to desire, and even need, connections to nature. The school re-integrates the learning experience with the patterns and processes of the natural world, through the use of light, wind, trees and volumes.
▼场地轴测图,site axonometric

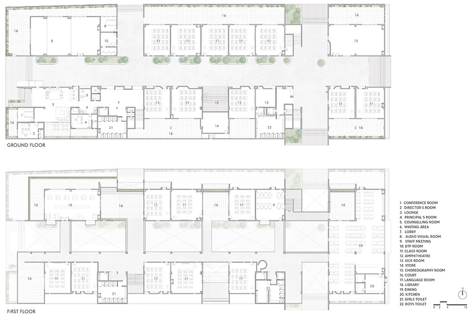
▼一层平面图及二层平面图,ground floor plan & first floor plan

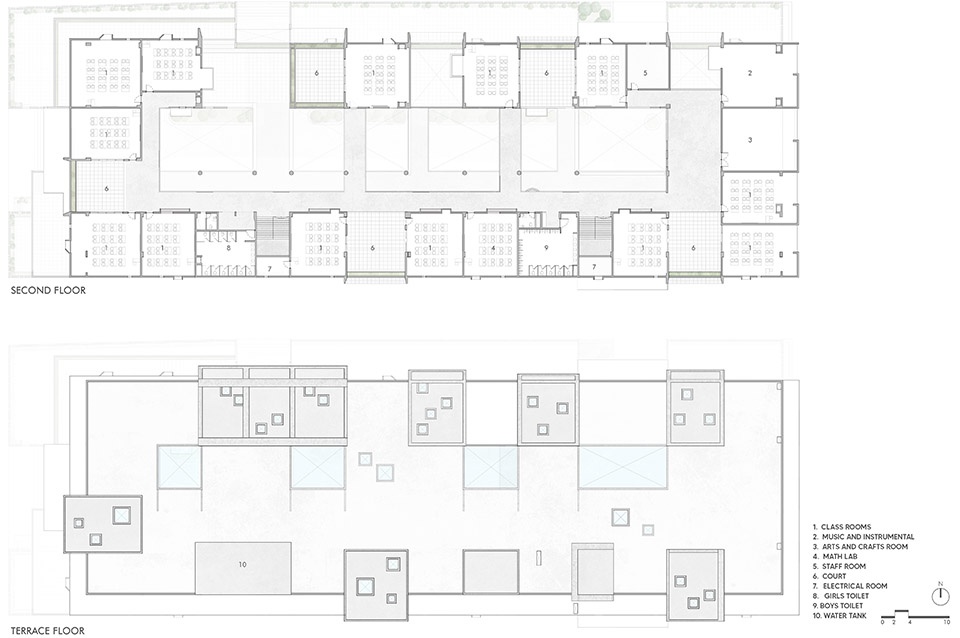
▼三层平面图及露台平面图,second floor plan & terrace plan

▼剖透视,perspective section


▼草图,sketch

Project Name: Rainbow International School
Office Name: Spacefiction Studio
Office Website: https://spacefictionstudio.com
Social Media Accounts: https://www.instagram.com/spacefictionstudio
Contact email: info@spacefictionstudio.com
Firm Location: Hyderabad, Telangana, India
Completion Year: 2025
Gross Built Area (m2/ ft2): 83500 ft²
Project Location: Nellore, India
Program / Use / Building Function: School
Lead Architects: Baba Sashank, Vindhya Guduru, Ramya Mudapaka, Naresh Nallapuneni
Lead Architects e-mail:
vindhya@spacefictionstudio.com
baba@spacefictionstudio.com
Photographer
Photo Credits:
VivekEadera : https://www.instagram.com/vivekeadaraphotography














