华南理工大学大学城校区明清古建筑群活化新生策略,广州 / 华南理工大学建筑设计研究院有限公司
像祠堂、民居这类历史遗留建筑,由于功能和形式的特殊性,如何更好地挖掘这类建筑空间场所的潜力,使之与当前的日常生活发生更紧密的关联,让人们既能体会传统建筑空间的美好,又能感受到特定空间环境的时代性特征,在日常的工作和生活中扮演积极的角色,有机融入现实生活环境中来,是众多建筑师关心和思考的重点。由于所处时代和社会背景的不同,历史遗留建筑面临着一系列活化更新的现实问题,昔日的阳光如何照进现实,引发深层次的关于时间和空间的关联对话,是笔者更为关注的课题。
Due to the special function and form of ancestral halls and residential buildings, how to better tap the potential of such architectural Spaces and places and make them more closely related to the current daily life, so that people can not only experience the beauty of traditional architectural Spaces, but also feel the characteristics of The Times of specific spatial environment, and play an active role in daily work and life? Organic integration into the real life environment is the focus of many architects’ concern and thinking. Due to the different times and social backgrounds, historical buildings are faced with a series of practical problems of revitalization and renewal. How the sunlight of the past shines into the reality and leads to a deep correlation dialogue about time and space is a topic that the author pays more attention to.
▼校区内保留了若干栋明清时期遗留下来的古建筑,
several ancient buildings left over from the Ming and Qing dynasties on the campus were retained

2003年广州大学城规划建设时,保留了华南理工大学校区内穗石村里的若干栋明清时期遗留下来的古建筑。这些保留建筑由于没得到及时的翻新、修复和利用,荒废了近十年,导致许多珍贵的砖雕、木雕、石饰等物件遗失,旧房漏水、杂草横生、几成废墟。
During the planning and construction of Guangzhou University Town in 2003, several ancient buildings left over from the Ming and Qing dynasties in Suishi Village on the campus of South China University of Technology were retained. These preserved buildings have been abandoned for nearly ten years because they have not been renovated, repaired and utilized in a timely manner, resulting in the loss of many precious brick carvings, wood carvings, stone ornaments and other objects, and the old houses are leaking, overgrown with weeds, and almost in ruins.
▼充分激活岭南明清古建筑群,fully activate the ancient buildings of Ming and Qing Dynasties in Lingnan

在我们接手这个项目前,已有一些团队提出了整体改造的方案,但效果不尽如人意,于是才有机会做一个全新的思考。项目启动后历经多次使用功能定位、文物建筑定性、投资调整等变化,从2013年一直持续到2023年,终于全部更新修复完成,并正式命名为岭南建筑学术交流展示中心。笔者陈文东在拙著《建筑六式》,总结传统经验、现代主义大师和当代多元化建筑创作案例及其启示,提出了“连续、延绵、渐变、抽象、时节、流动”六种创作手法和技巧,用以指导建筑创作实践。为了充分激活岭南明清古建筑群,使其更好融入当下的校园生活,设计以“建筑六式”为指引,采用了“微介入、大激活”策略,取得了一些良好成效。
Before we took over this project, some teams had proposed the overall transformation plan, but the effect was not satisfactory, so we had the opportunity to do a new thinking. After the launch of the project, it has undergone many changes, such as functional positioning, cultural heritage building qualitative, investment adjustment, etc., from 2013 to 2023, and finally completed the renovation and restoration, and officially named Lingnan Architecture Academic Exchange and Exhibition Center. In my book Six Styles of Architecture, the author summarizes traditional experience, modernist masters and contemporary diversified architectural creation cases and their inspiration, and puts forward six creative techniques and techniques of “continuous, protracted, gradual, abstract, seasonal, and flowing” to guide architectural creation practice. In order to fully activate the ancient buildings of Ming and Qing Dynasties in Lingnan and make them better integrate into the current campus life, the design adopts the strategy of “micro-intervention and large activation” guided by “six architectural styles”, and has achieved some good results.
▼校园整体鸟瞰,aerial view of the campus

修复的祠堂和民居作为档案、展览展示、陶瓷剪纸民间传统工艺工作坊等功能来使用;复建的一层会议室作为学术交流之用;复建的两层小民房则作为接待展示和休息的场所,并增加了公共卫生间、景观水体等设施。活化更新后的建筑群作为一个整体,呈现出非常有特色的空间环境氛围,展示了我们团队一开始希望强调的,关于超越时间和空间对话的场所建构的设计意图,也表达了笔者以“建筑六式”致敬路易斯·康(Louis Isadore Kahn)对精神空间追求的想法。
The restored ancestral halls and residences are used as archives, exhibitions, and traditional ceramic paper-cutting workshops. A restored conference room on the first floor for academic exchange; The restored two-story small house is used as a place for reception, display and rest, and has added public toilets, landscape water and other facilities. As a whole, the revitalized and updated architectural complex presents a very distinctive spatial environment, demonstrating the design intention of the place construction that transcends the dialogue between time and space that our team wanted to emphasize at the beginning. It also expresses the idea that the author pays tribute to Louis Isadore Kahn’s pursuit of spiritual space with “six architectural styles”.
▼建筑群鸟瞰,aerial view of the building complex

1,文化根脉、聚落核心Cultural roots and settlement core
岭南建筑学术交流展示中心位于小谷围岛华南理工大学校区内,临近中北部的景观湖,主要包括两栋祠堂、五栋砖木结构的民居古建筑和两栋复建的民房,其中最古老的祠堂可以追溯到康熙中期年间。建筑群整体活化更新后,与景观湖湿地相互融合,形成良好的看与被看的对话关系,既保留了传统建筑空间的精髓和意蕴,又独具时代特色,营造了一个传承传统文化的聚落核心,成为校园里一道靓丽的风景线。这种精神传承对于一个只有20年历史的新建校园而言,是非常重要的文化资产。华南理工大学大学城校区,因为有了这一处绝佳的人文历史景观,而拥有了文化的根脉,成为大学城所有校区中绝无仅有了一处盛景。
▼总平面图,site plan

Lingnan Architecture Academic Exchange and Exhibition Center is located in the campus of South China University of Technology in Xiaoguweidao, near the landscape lake in the central and northern part of the city. It mainly includes two ancestral halls, five ancient buildings with brick and wood structure and two restored civil houses, among which the oldest ancestral hall dates back to the middle period of Kangxi Dynasty. After the overall revitalization and renewal of the architectural complex, it integrates with the landscape lake wetland to form a good dialogue relationship between seeing and being seen, which not only retains the essence and meaning of traditional architectural space, but also has unique characteristics of The Times, creating a core of inheritance of traditional culture, and becoming a beautiful landscape on the campus. This spiritual heritage is a very important cultural asset for a newly built campus that is only 20 years old. The University Town campus of South China University of Technology, because of this excellent cultural and historical landscape, has the roots of culture, and has become a unique scene in all campuses of the university town.
▼建筑群整体鸟瞰,aerial view of the buildings

设计的亮点在于在原有的建筑群中,引入了一个向心的八角亭,这个八角亭在顶视图上看是一个屋面实体,然而在平面层次感受到的却是一个没有围合实体的虚空空间。这个虚空间成为连接不同年代、不同功能、不同形式的原有建筑的媒介。这个媒介以最轻微的介入方式——最少量建筑语言、最简单的建筑材料、最简易的安装建造方式,营造出建筑群特色的文化根脉、聚落核心的精神内涵。
The highlight of the design is the introduction of an octagonal pavilion in the original building group. This octagonal pavilion is a roof entity in the top view, but at the plane level, it feels like a empty space without an enclosed entity. This virtual space becomes a medium to connect the original buildings of different ages, different functions and different forms. This medium creates the cultural roots of the architectural features and the spiritual connotation of the core of the settlement with the least amount of intervention – the least amount of architectural language, the simplest building materials, and the simplest installation and construction methods.
▼新旧关系俯瞰,overlook of old and new relationships

▼建筑群新旧融合,the complex blends old and new

2,古今关联、时空对话ancient and modern connection, space and time dialogue
岭南建筑学术交流展示中心作为一个整体,远远超越了作为文物的祠堂和民居个体的重要性,通过整体性的规划、景观、建筑、室内设计建构出一个特殊的场所。在这里,可以明确区分出哪些是古老的元素,哪些是新近的元素,它们以非常和谐的姿态共存。
▼平面图,plan

As a whole, Lingnan Architecture Academic Exchange and Exhibition Center goes far beyond the importance of individual ancestral halls and dwellings as cultural relics, and builds a special place through holistic planning, landscape, architecture and interior design. Here, a clear distinction can be made between the old and the more recent elements, which coexist in a very harmonious manner.
▼以现代简约的语言回应历史,responds to history with modern and simple language


微介入的八角亭,以现代简约的语言,回应历史、展望未来,既独立个性又整体相融。亭子四周设置浅浅的深色景观水面,形成镜面效果,使得整体空间氛围呈现虚幻的色彩,既放大了空间尺度,又很好地关联时空,是项目最为吸睛的亮点,呈现连续、延绵、渐变的特征。
The Octagonal Pavilion with micro-intervention responds to history and looks forward to the future with modern and simple language, which is both independent and integrated. The pavilion is surrounded by shallow dark landscape water, forming a mirror effect, making the overall space atmosphere present illusory colors, which not only magnifies the spatial scale, but also relates the time and space well. It is the most eye-catching highlight of the project, showing continuous, extended and gradual characteristics.
▼以现代简约的语言回应历史,responds to history with modern and simple language

▼修复后古建筑群,the ancient buildings after renovation


古今空间和元素在这一特殊的维度相遇,引发了一连串时间、空间的对话,湖水清澈、倒影幽邃、庭院深深、杨柳依依,建筑对话、空间对话、环境对话、新旧对话。夜幕降临、华灯初上、光影幻化、精妙绝伦,仿佛穿越时空的特殊场域,将古代的文化和传承传送到当下,又辐射到未来。
Ancient and modern space and elements meet in this special dimension, triggering a series of dialogues in time and space, the lake is clear, the reflection is deep, the courtyard is deep, the willows are deep, the architecture dialogue, the space dialogue, the environment dialogue, the new and old dialogue. When the night falls, the lights are illuminated, and the light and shadow are transformed and exquisite. It seems to pass through the special field of time and space, transmitting the ancient culture and inheritance to the present and radiating to the future.
▼古今元素之间的对话,the dialogue between ancient and modern elements


3,新旧并置、传承创新Juxtaposition of old and new, inheritance and innovation
岭南建筑学术交流展示中心的整体设计以传承创新的精神,使新旧元素对立并置、互为补充,共同形成富有戏剧性的场所空间。七栋历史遗留建筑采用修旧如旧的方法,尽量恢复其原有的面貌。复建的两层民居和单层民房则采用现代钢筋混凝土框架结构,并用岭南民居常用的蚝壳墙进行局部装饰,同时又使用预制的混凝土方格砌块来模拟传统建筑的花格窗,使新建筑在结构、形式和语言等方面自成体系,又与原有的系统和谐关联。
The overall design of Lingnan Architecture Academic Exchange and Exhibition Center inherits the spirit of innovation, making old and new elements contrast and complement each other to form a dramatic place space. The seven historic buildings have been restored to their original appearance as much as possible. The restored two-storey and single-storey houses are constructed with modern reinforced concrete frames and are partially decorated with oyster-shell walls commonly used in Lingnan dwellings, while prefabricated concrete grid blocks are used to simulate the latticed Windows of traditional buildings, making the new buildings self-contained in terms of structure, form and language, and harmoniously related to the original system.
▼新旧相融,the complex blends old and new

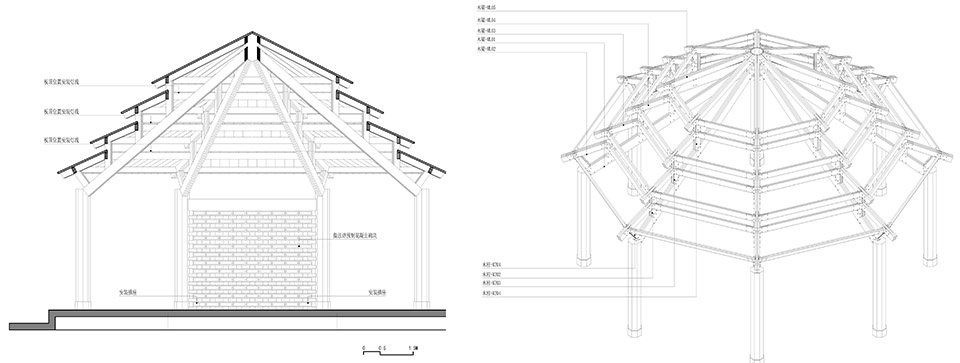
为了最大可能降低施工过程对现有古建筑去年的破坏和影响,体现“微介入”的初心,采用简易现浇与预制安装相结合的模式,用特殊的方式应对特定的场所。新加建的四重檐八角亭由完全现代的理念建构而成,八根现浇清水混凝土柱上安装预制木构件,现浇与装配巧妙融合。光滑的清水混凝土圆柱用PVC圆管作为模板现浇而成,表面圆滑、肌理细腻,完成度良好。亭子顶部木构架用单元式的小尺寸菠萝格长方形木材以现代的钢板和螺钉连接成整体,顶部则以油毡瓦作为饰面。新加元素与旧有元素新旧并置,相互依存,体现了传承创新的理念。完成后的效果,呈现出抽象、时节、流动的特征。
▼亭子详图,pavilion section and detail

The newly added four-gabled octagonal pavilion is constructed from a completely modern concept, with eight cast-in-place fair-faced concrete columns fitted with prefabricated timber elements, a skillful blend of cast-in-place and assembly. The smooth fair-faced concrete columns were cast in-situ using PVC round tubes as formwork, with a smooth surface, fine texture and good finish. The top timber frame of the pavilion is made of unitized small-sized pineapple lattice rectangular timbers joined together with modern steel plates and screws to form a single unit, and the top is finished with linoleum tiles. The juxtaposition of the newly added elements with the old and the new is interdependent, reflecting the concept of heritage and innovation. The finished effect presents an abstract, seasonal and fluid character. In order to minimize the damage and impact of the construction process on the existing ancient buildings last year, reflecting the original intention of “micro-intervention”, the combination of simple cast in and prefabricated installation is adopted to deal with specific places in a special way.
▼四重檐八角亭,four-gabled octagonal pavilion


4,空间交融、内外一体space integration, internal and external integration
岭南建筑学术交流展示中心的整体设计,尝试在旧建筑群中引入一系列相对“弱”的空间和元素,它们就像酵母一样,用来粘连原有的空间和氛围,并激发出更多的可能性。借用传统岭南建筑村头聚落“榕树下”的场所领域概念,在这组建筑群的核心位置引入一个“虚空”的“伞”下空间,营造出公众心目中的公共向心场所。建成后最大程度保留了旧建筑空间氛围,新建筑元素基本消隐,充分融合的场景最大程度地激活了空间活力,激发了多元化的、非正式的交流与交往活动,形成校园文化活动中最重要的场景之一。
The overall design of Lingnan Architecture Academic Exchange and Exhibition Center attempts to introduce a series of relatively “weak” Spaces and elements in the old building complex, which are like yeast, used to adhere to the original space and atmosphere, and stimulate more possibilities. Using the concept of “under the banyan Tree” in the traditional Lingnan architectural village, a space under the “empty” “umbrella” is introduced in the core position of this group of buildings to create a public centering place in the eyes of the public. After the completion, the space atmosphere of the old building is preserved to the greatest extent, and the new building elements are basically disappeared. The fully integrated scene activates the vitality of the space to the greatest extent, stimulates diversified and informal communication and interaction activities, and forms one of the most important scenes in the campus cultural activities.
▼激活后的内部空间,interior space after activation



▼镂空砖墙细部,detail of openwork brick wall

八颗由PVC圆管做模的现浇钢筋混凝土柱子限定出聚落的核心空间,这种无特定实体的“虚无”空间,仿佛具有魔力,以无形的力量将空间和视线汇聚起来并向上升腾,通过八边形的藻井式的伞盖之间的空隙向外扩张。古建筑实体和伞下“虚无”空间相互交融,产生一种全新的空间与体验。古代场所与现代精神在这里混合相融、模糊提升。久远的空间传承到当下,衍生出全新的空间魅力。在这里,风是自由来去的,视线是毫无阻碍的,而空间则是一体的。这种丰富的对话关联,激发了自然与建筑、人与空间强烈的场所感受。这种氛围有助于大众体验和理解建筑师对超越时间和空间对话的场所建构的追求。
Eight columns of cast-in-place reinforced concrete molded from round PVC pipes define the core space of the settlement. This “nothing-free” space, as if by magic, brings together space and sight with invisible force and rises upward, expanding outward through the gaps between octagonal caisson canopy. The ancient architectural entity and the “nothingness” space under the umbrella blend with each other, producing a new space and experience. Ancient places and modern spirits are mixed and blurred here. The ancient space is inherited to the present, and a new space charm is derived. Here, the wind is free to come and go, the sight is unhindered, and the space is one. This rich dialogue relationship inspires a strong sense of place between nature and architecture, people and space. This atmosphere helps the public to experience and understand the architect’s pursuit of place construction that transcends time and spatial dialogue.
▼具有独特形象识别性的空间对话,spatial dialog with unique image recognition


▼独具岭南地域氛围的整体环境氛围,overall environment with unique Lingnan regional atmosphere


本项目发表在2025年第三期《新建筑》杂志上,该杂志由华中科技大学主办,创刊于1983年,双月刊。系国内外公开发行的全国性科技期刊,也是我国建筑界的核心刊物,荣获全国优秀科技期刊一等奖、首届国家期刊奖,多次被评为湖北省优秀科技期刊,在建筑界具有较大影响。
This project was published in the third issue of “New Architecture” magazine in 2025. This magazine is hosted by Huazhong University of Science and Technology and was founded in 1983. It is a bimonthly publication. It is a national scientific and technological journal publicly distributed both at home and abroad, and also a core publication in China’s architectural field. It has won the first prize of National Excellent Scientific and Technological Journals and the first National Journal Award, and has been repeatedly rated as an excellent scientific and technological journal in Hubei Province. It has a considerable influence in the architectural field.
▼夜景鸟瞰,aerial view at night


▼八角亭细部,octagonal pavilion detail

Project name: Lingnan Architecture Academic Exchange and Exhibition Center
Project type: Cultural architecture
Designer: South China University of Technology Architectural Design and Research Institute Co., LTD
The company’s web site: https://www.scutad.com.cn/
Contact email: 805433157@qq.com
Design year: April 2013 – May 2016
Year completed: August 2023
Project Creator: Chen Wendong
Architectural team: Guo Weihong, Chen Wendong, Pei Wenxiang, Yang Shuya, Guo Yaonan, Zhang Deng, Wu Wei, Ren Ruixue, Lao Xiaojie, Pan Zhigang, Sang Xiling, Yang Xiangyun, Zhang Bangtu, Li Xionghua, Ling Liang, Zhou Huazhong, etc
Project address: South China University of Technology campus, Xiaogu Weidao, Panyu, Guangzhou
Land area: 10,566 ㎡ Building area: 2,068 ㎡
Photography: Xu Mian, Nuo Jin Floating Picture Photography Studio
Owner: South China University of Technology














