成都工业学院宜宾校区学生活动中心 / 同济大学建筑设计研究院(集团)有限公司
01.项目背景 Background
在城市化进程加快,土地资源矛盾日益凸显的当下,城市核心区土地价值高涨。高校建设项目占地规模大,负荷相对较低,多选址于城市边缘的低丘缓坡地带,由此为校园建筑创作实践提供了新的方向,“时空洄游·自然共生”——利用场地环境特点,创作独特的校园建筑及空间特色。
At present, with the acceleration of urbanization and the increasingly prominent contradiction of land resources, the value of land in urban core areas is soaring. University construction projects occupy a large scale and have relatively low loads, often located on low hills and gentle slopes on the outskirts of cities. This provides a new direction for campus building creation practice, “temporal-spatial migration and natural symbiosis ” – utilizing the characteristics of the site environment to create unique campus buildings and spatial features.
▼场地环境成就了独特的建筑形态和外部空间,并为多样功能整合提供了可能,The site environment has achieved unique architectural forms and external spaces, and provided possibilities for the integration of diverse functions

成都工业学院于2018年在宜宾市建设新校区,选址位于宜宾观斗山和龙头山两山之间的峡谷区域,校园占地约58公顷。学生活动中心是校园内最具活力的建筑,总建筑面积约8400平方米,包括学生大礼堂、社团活动室、琴房、舞蹈房、多功能排练室以及咖啡简餐等,是学生日常娱乐、休闲、文化活动的重要场所。基地位于校园核心景观湖边,西北临路,东南邻水,场地北高南低,高差约2-3m,与南侧校园核心建筑——图书馆隔水相望,并依托周边环境和自然水系形成独特的生态建筑环境。
Chengdu Institute of Technology selected a location in Yibin City in 2018 to construct a new campus. The campus is situated in a canyon area between Guandou Mountain and Longtou Mountain in Yibin, covering an area of approximately 58 hectares. The Student Activity Center is the most dynamic building on campus, with a total construction area of approximately 8400 square meters. It includes a student auditorium, club activity rooms, piano rooms, dance rooms, multifunctional rehearsal rooms, and coffee and light meals. It is an important place for students’ daily entertainment, leisure, and cultural activities. The base is located by the core landscape lake of the campus, facing the road to the northwest and the water to the southeast. The site is high in the north and low in the south, with a height difference of about 2-3m. It faces the core building of the south campus – the library across the water and relies on the surrounding environment and natural water system to form a unique ecological architectural environment.
▼良好的校园滨水环境为建筑创作提供了良好的基础,A well-designed campus waterfront environment offers an excellent foundation for architectural creativity

所谓“交叉点”是正是设计师在结合场地实际特征,研判场地在时间和空间两个维度上的错综复杂的关系,学生活动中心在空间上处于校园总图布局的变化之处,校园建设在此分期,轴线在此转折,高差在此突变,水面在此转向收束,整体氛围也从前区的严谨教学转为生活区的轻松活力;在时间上,在场地西南角又邂逅距今300年的黄桷古树,这些时空要素共同构成了场地的故事基调。
The term “intersection point” denotes the intricate relationship that designers meticulously analyze within the site’s spatial and temporal dimensions, considering its actual characteristics. The student activity center is situated at a transitional spot in the overall campus layout spatially, where phased campus construction occurs, axes diverge, height differences abruptly change, water bodies turn and converge, and the overall ambiance transitions from the rigorous academic atmosphere of the front area to the relaxed vitality of the residential area. Temporally, a 300-year-old Huangjue ancient tree is encountered in the southwest corner of the site. These combined temporal and spatial elements collectively establish the narrative tone of the site.
▼300年的黄桷古树和其侧的香樟树,The 300-year-old Huangjue ancient tree and the camphor tree beside it

02.融入场地 Blend seamlessly into the venue
拥有900座的礼堂,观众厅和舞台不可避免产生高大的体量(如图4)。在自然生机、富有情趣的滨水化境下,如何消解高大体量的单调以及压迫感,延续并强化基地环境自然亲和的场所印象,是设计的切入点。建筑师巧妙利用形体的扭转顺应湖边水线的变化,结合内部大小空间搭配,在主体量外围形成水平舒展、高低错落、镂空通透的形式语言,并通过侵入、观望等小趣味手法,与滨水环境产生对话。
▼平面布局采用顺应和扭转结合,大小空间搭配弱化了学生大礼堂的体量感,The flat layout adopts a combination of adaptation and torsion, and the combination of size and space weakens the sense of volume of the student auditorium

With a 900 seat auditorium, the audience hall and stage inevitably create a large volume. In the natural and charming waterfront environment, how to dissolve the monotony and oppression of tall and large volumes, and continue and strengthen the natural and friendly impression of the site environment is the starting point of the design. The architect cleverly utilizes the twisting of the form to adapt to the changes in the water line by the lake, combined with the matching of internal size and space, to form a horizontally stretched, high and low staggered, hollow and transparent formal language around the main body, and through small fun techniques such as intrusion and observation, creates a dialogue with the waterfront environment.
▼900座礼堂,Indoor auditorium with 900 seats

锚固是建筑受限于场地下的主动融合,并据此形成特征性的场所空间。坡地环境复杂标高变化是固有的场地记忆,设计师通过细腻的竖向设计,将建筑多个入口结合场地现状标高及滨水标高,建筑形态更是充分利用高差和自然要素特点,结合隐蔽挡墙、吊层等手法形成差异化,打造不同的场所感,建筑整体锚固于场地之上,场地与建筑一体化。
Anchoring is the active fusion of buildings restricted by the underground space, and the formation of characteristic spatial features based on it. The complex elevation changes in sloping environments are inherent site memories. Through delicate vertical design, designers combine multiple entrances of the building with the current elevation of the site and waterfront elevation. The building form also fully utilizes the characteristics of height differences and natural elements, combined with concealed retaining walls, suspended floors, and other techniques to create differentiation and create different sense of place. The building is anchored to the site as a whole, and the site and building are integrated.
▼从体育训练馆前广场看活动中心,保留的土坡恰到好处的隐蔽了建筑的首层,Looking at the activity center from the square in front of the sports training center, the well preserved soil slope perfectly conceals the first floor of the building

▼邻水一侧建筑随着水岸跌落,亲和自然,The building on the adjacent side of the water falls along the waterfront, creating a natural and friendly atmosphere

▼层层削减的建筑体量,Layered reduction of building volume

03.洄游体验 Migration Experience
基于知觉现象学强调的本体视角,设计师通过视觉、听觉、触觉,特别是运动感知,形成对建筑场所复杂的身体体验。主要人群自西侧来,通过桥上坡引导进入二层礼堂前厅,视线开阔,自室内转向东侧,大片玻璃幕墙展开,眼前是一片开阔的中央景观湖。南侧水道略窄,建筑临水岸适当退让形成室外音悦台,台下自然形成室外游览的路线,自汀步小径转向东,达到亲水平台,拾阶而上可进入礼堂前侧厅,再由室内大台阶直达二层前厅。内外两条动线在此交汇,继续向上可以到达三层的露台咖啡厅。漫游的整个过程经历了落差、转折、惊喜与豁然开朗,处处有景,步移景异。
Based on the ontological perspective emphasized by phenomenology of perception, designers form complex physical experiences of architectural sites through visual, auditory, tactile, and especially motion perception.The main crowd comes from the west side and is guided uphill through the bridge into the front hall of the second floor auditorium, with a broad view. Turning from indoors to the east, a large glass curtain wall unfolds, and a central landscape lake is in front of them. The waterway on the south side is slightly narrow, and the building’s waterfront is appropriately stepped back to form an outdoor music and entertainment platform. A natural outdoor sightseeing route is formed below the platform, turning east from the Tingbu Trail to reach the waterfront platform. Climbing up the stairs, you can enter the front hall of the auditorium, and then go directly to the front hall on the second floor through the indoor large steps. The two internal and external routes intersect here, and continuing upwards will lead to the terrace caf é on the third floor. The entire process of roaming has gone through ups and downs, twists and turns, surprises, and sudden enlightenment, with scenery everywhere and different scenery with each step.
▼设计师为来访者创造了一条浪漫的游览动线,贯穿于建筑内外高下的变化中,The designer created a romantic travel route for visitors, running through the changes in height inside and outside the building

▼红色圆形体量,映射出对工业学院红色基因的回应,暗示内部螺旋楼梯的存在,The red circular volume reflects a response to the red gene of the industrial college, implying the existence of internal spiral stairs

▼滨水侧廊的大台阶,建立二层礼堂大厅与一层亲水平台的动态关联,The large steps of the waterfront corridor establish a dynamic connection between the second floor auditorium hall and the first floor waterfront platform

▼多功能厅全部打开的旋转门,拓展了空间的适用度,The fully opened revolving doors in the multifunctional hall have expanded the applicability of the space

▼连续开放的礼堂前厅,面水向山,悬挑楼梯成为空间视觉焦点,The front hall of the auditorium, which is continuously open, faces the water towards the mountain, and the suspended staircase becomes the visual focus of the space



西南角跨越挡土墙的连桥是设计师的灵光闪现,帮助新建筑呈现出与场地环境浑然一体的效果。坡道引导礼堂大量人流到达南侧建筑二层,这使得礼堂的前等候区获得了更好的观景视角。并为其下方一层社团活动、亲水音悦台等围合出相对私密的场所感。
The connecting bridge spanning the retaining wall at the southwest corner is a shining light that helps the new building present a seamless integration with the site environment. The ramp guides a large number of people to the second floor of the south building in the auditorium, which provides a better viewing angle to the front waiting area of the auditorium. And create a relatively private sense of place for the club activities and the water friendly music platform on the lower level.
▼连桥在挡土墙和建筑之间建立形式语言的关联性,并创造出更富于变化的空间体验,Connecting bridges establishes a formal language connection between retaining walls and buildings, and creates a more diverse spatial experience

▼延续场地上升的趋势,粗粝的连桥导向性的指引着主入口方向,Continuing the upward trend of the site, the rough bridge guidance guides the direction of the main entrance

▼飞桥下的静谧空间、配合社团活动室的户外下沉音悦台,The quiet space under the flying bridge and the outdoor sunken music platform that complements the club activity room

▼飞桥下回看雅致的下沉庭院,树影婆娑,Looking back at the elegant sunken courtyard from the flying bridge, with swaying tree shadows

04.亲水观湖 Hydrophilic and Lake-Watching
水是低丘缓坡校园环境的灵魂,老子曰:上善若水,水善利万物而不争。水景在校园文化、景观、活动等多方面丰富了环境空间设计。在建筑与亲水处理上更需要灵活多变,因地制宜。活动中心位于校园景观湖北侧,水面与校园道路之间有3米高差。设计采用吊层的手法在临中心湖景一侧向下延伸,形成高低错落的室外休息平台;建筑采用谦逊、紧凑的姿态应对环境,与水的关系更加亲密,就仿佛建筑与场地是生长的关系。建筑沿湖面岸线灵活扭转形成自然、亲水的姿态。整体建筑通过细腻的设计处理,形成了丰富的场地景观。
▼剖面示意图,section

Water is the soul of the campus environment with low hills and gentle slopes. Laozi said, ‘The upper good is like water, which benefits all things without competition. Water features enrich the design of environmental space in various aspects such as campus culture, landscape, and activities.’. More flexibility and adaptability are needed in architecture and hydrophilic treatment, tailored to local conditions. The activity center is located on the north side of the campus landscape, with a height difference of 3 meters between the water surface and the campus road. The design adopts a suspended layer technique to extend downwards on the side facing the central lake view, forming an outdoor resting platform with staggered heights; The architecture adopts a humble and compact posture to respond to the environment, with a closer relationship with water, as if the building and the site are in a growing relationship. The building flexibly twists along the lake and shoreline to form a natural and hydrophilic posture. The overall architecture has formed a rich site landscape through delicate design processing.
▼从西北侧道路到东南侧水岸,建筑灵活应用隐蔽挡墙和吊层的策略,与场地浑然一体,From the northwest side road to the southeast side waterfront, the building flexibly applies the strategy of concealed retaining walls and suspended floors, seamlessly integrating with the site


▼场地延伸至水面的跌落成为建筑内外共享的语言,亲水是设计的主要意图,The drop of the site extending to the water surface has become a shared language both inside and outside the building, with water affinity being the main intention of the design

建筑、场地、自然山水三者和谐共存,理性求知与浪漫山水结合、生态与人文共融,实现校园建筑与环境的共生。建筑的主要界面沿湖面展开,透过大面积玻璃幕墙湖景尽收眼底。三层开洞处是室外的咖啡厅,可以观水远眺。目之所及景色揽入建筑空间,只愿与自然之色相拥。出挑的白色水平板带既是强化室外楼梯延伸的形式语言,更是为师生提供了一个校园全景的最佳观赏点,景色融化于通透中,又浮游于反射里。建筑对水的主动迎合,促成了场地、建筑、环境相互成就,相得益彰,真正实现“建筑尊重自然,并成为自然一部分”的理念。
The harmonious coexistence of architecture, site, and natural landscapes, the combination of rational knowledge and romantic landscapes, and the integration of ecology and culture, achieve the symbiosis between campus architecture and environment. The main interface of the building unfolds along the lake surface, with a panoramic view of the lake through the large glass curtain wall. The third floor opening is an outdoor coffee shop where you can enjoy a distant view of the water. The scenery within sight embraces the architectural space, only wishing to embrace the colors of nature. The prominent white horizontal strip not only enhances the formal language of outdoor staircase extension, but also provides the best viewing point for teachers and students to have a panoramic view of the campus. The scenery melts into transparency and floats in reflection. The active catering of architecture to water has facilitated the mutual achievement and complementarity of the site, architecture, and environment, truly realizing the concept of “architecture respecting nature and becoming a part of nature”.
▼建筑掩映在青山绿水之中,以低介入方式保留场地记忆,并成为山水的一部分图,The architecture is nestled in the green mountains and waters, preserving the site’s memory in a low intervention manner and becoming a part of the landscape


▼破开幕墙的露台吧,建筑既是被观赏的客体,又是观赏景色的主体,Break open the terrace of the curtain wall, the building is both the object of observation and the subject of viewing the scenery


05.百年故事 A Century-Long Tale
面对复杂的场地环境,不可避免会出现挡土墙,积极应对并由此形成具有一定尺度的围合、遮隐的小空间。使用者产生心理上的领地场所感,让人愿意停留、休憩和交流。设计师隐藏建筑体量,有意识将挡墙与建筑脱开,间距9米,利用坡差让空间在视觉上变得更有层次感,营造出一种曲径通幽的意境美。光线从此自然的引入到地下空间,这里是学生社团活动以及共享空间,门前廊下的外摆是室内活动的外延。周边低矮石墙过滤了校园的喧嚣,探出的树荫打碎了直射的光线,带来安宁静谧的体验,心理上也有亲切地包围感和安全感。园中黑白砾石铺装,简单几株小树在白色石墙的衬托下体现出充满禅意的侘寂之美。
Faced with complex site environments, it is inevitable to encounter retaining walls. Actively responding to this will result in the formation of small spaces with a certain scale of enclosure and concealment. Users develop a psychological sense of territory and place, making them willing to stay, rest, and communicate. The designer concealed the building volume and consciously separated the retaining wall from the building, with a distance of 9 meters, using the slope difference to make the space visually more layered, creating a beautiful and winding atmosphere. Light is naturally introduced into the underground space, which is a student club activity and shared space. The outdoor display under the front porch is an extension of indoor activities. The low stone walls around filtered out the hustle and bustle of the campus, and the protruding tree shade shattered the direct light, bringing a peaceful and tranquil experience, as well as a sense of warmth and security psychologically. The garden is paved with black and white gravel, and a few small trees reflect the beauty of Wabi Sabi, full of Zen, against the backdrop of white stone walls.
▼脱开的挡土墙为围合出一片天光小院,大体量公共建筑也能体验到小尺度的静谧空间之美,The detached retaining wall surrounds a small courtyard with daylight, and even large public buildings can experience the beauty of small-scale quiet spaces

当设计师知道现场有一株明代黄桷树(距今300多年)时,兴奋的心情不言而喻。古树是坡地校园场地留存的最为珍贵的要素,俗话说“人挪活、树挪死”,通过巧妙的建筑场地一体化处理,可以在保证古树根系固化要求的前提下,创作出特有的坡地校园场所感。在现场已经开始场平的时候及时叫停,并修改学生活动中心布局方案,以保证建筑以谦和的姿态向古树进行呼应。设计将选址与东南侧古树保持一定距离,以保证古树的场地标高不变。基于亲水的设计标高,建筑朝向东南侧采用半下沉的方式,将建筑主立面隐藏在草坪与挡墙之下,面向古树的一侧,大面的石墙为背景,建筑内采用顶光。树影婆娑,落在实墙之上,仿佛在叙述百年来这里发生的故事。
When the designer learned that there was a Ming Dynasty Huangjue tree (over 300 years ago) on site, their excitement was self-evident. Ancient trees are the most precious element preserved in sloping campus sites. As the saying goes, ‘people move to life, trees move to death.’ Through clever integration of construction sites, a unique sense of sloping campus site can be created while ensuring the solidification requirements of ancient tree roots. When the site leveling has already begun, stop it in a timely manner and modify the layout plan of the student activity center to ensure that the building echoes the ancient trees in a humble manner. The design will maintain a certain distance between the site and the ancient trees on the southeast side to ensure that the elevation of the ancient tree site remains unchanged. Based on the hydrophilic design elevation, the building faces southeast and adopts a semi sunken approach, hiding the main facade of the building under the lawn and retaining wall. On the side facing the ancient trees, the large stone wall serves as the background, and the building adopts a top light. The tree shadows sway and fall on the solid wall, as if narrating a story that has happened here for a hundred years.
▼保留古树是主动的设计,大面实墙为背景,天光、取景等手法都是表达对古树的尊重,Retaining ancient trees is an active design, with a large wall as the background, and techniques such as daylight and framing are used to express respect for ancient trees

▼对古树一侧,多功能厅采用封闭的实墙,并与玻璃幕墙之间扯开,顺势引入顶光,On the side of the ancient tree, the multifunctional hall adopts a closed solid wall and is separated from the glass curtain wall to introduce top light

▼至晚上古树影落在墙上,让整个设计实现了升华,At night, the shadow of the ancient tree fell on the wall, elevating the entire design

▼三百前的古树依旧是整个场所的主角,300 years have passed, the ancient tree remains the protagonist of the entire site

06.结语 Conclusion
从活动中心项目设计中可以发现,“时空洄游·自然共生”策略就是要在自然与建筑中寻找平衡关系,将自然作为建筑的一部分,将建筑作为“人工”与“自然”之间的产物。消解、锚固、亲水、沉院、观树等设计策略,是在特定的低丘缓坡校园选址下,基于场地条件分析, 破解和适应用地复杂性,兼顾建筑的功能、空间和形态,所营造出的独具特色的校园空间。就像是那颗黄桷树,300年前它就在那里,当设计认识到这个问题,树就必然成为整个建筑空间环境设计中的重要组成。
From the design of the activity center project, it can be found that the “temporal-spatial migration and natural symbiosis “strategy aims to find a balance between nature and architecture, making nature a part of the building and the building a product between “artificial” and “natural”. The design strategies of dissolution, anchoring, waterfront, sunken courtyard, and tree observation are based on the analysis of site conditions in specific low hill and gentle slope campus locations, to break through and adapt to the complexity of land use, while taking into account the functionality, space, and form of buildings, and creating a unique campus space. Just like that yellow oak tree, it was there 300 years ago. When the design recognized this issue, the tree inevitably became an important component of the entire architectural spatial environment design.
▼1层平面,1f plan

▼2层平面,2f plan

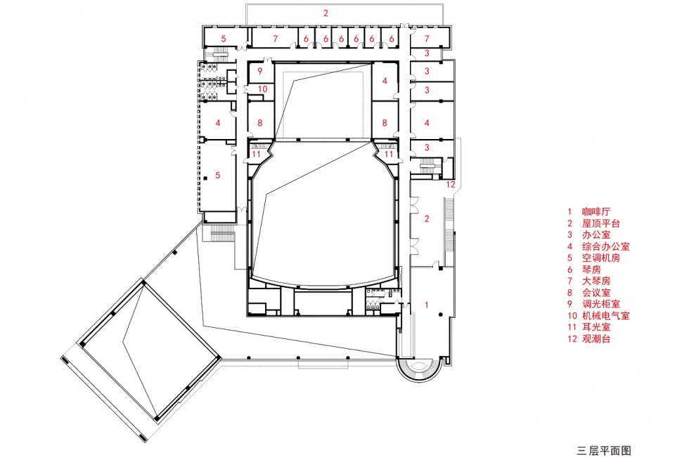
▼3层平面,3f plan

Project name: Student Activity Center in Yibin Campus of Chengdu Institute of Technology
Project type:university performing arts architecture
Design:TJAD
Website:www.tjad.cn
Contact e-mail:31zcw@tjad.cn
Design year:2019
Completion Year:2021
Leader designer & Team:Project chief: Wang Wensheng,Huang Ping
Architectural design: Zeng Congwei
Structural design: Feng Feng,Cao Mengxue
Water supply and drainage design: Li Wei, Chen Xiaoyu
HVAC design: Xu Zhizhen,Su Zhi
Electrical design: Cheng Guihua, Ma Weinan
Interior design: Zeng Congwei, Dong Liwei
Landscape design: Yan Xiaowen,Zhai Lina
Project location:No. 9, section 3, University Road, Lingang Economic and Technological Development Zone, Yibin,Sichuan,China
Gross built area: 8758㎡
Photo credit: Ma yuan
Clients:Yibin science and education investment group Ltd














