铜川追光咖啡馆,陕西 / 即时设计研究所
引言 Introduction
▼项目鸟瞰,Ariel view

背景 Background
中国的科技产业园历经37年发展,从53家增至178家国家级园区+超1000家省级园区,成为国家的经济核心引擎。然而,70%的产业园区也同时面临着咖啡馆、书吧、共享办公等“第三空间”严重缺失的问题。此类空间的缺失降低了产业园区的人才留存率。当下,产业园区正从“单一生产”向“三生融合”(生产+生活+生态)进行蜕变。
Over 37 years of development, China’s science and technology industrial parks have grown from 53 to 178 national-level parks, plus over 1,000 provincial-level parks, becoming core engines of the national economy. However, 70% of these parks face a severe shortage of “third spaces” such as cafés, book bars, and co-working areas. This gap reduces talent retention rates. Today, industrial parks are transforming from single-function production zones toward “tri-integrated spaces” (production + life + ecology).
▼开放的氛围,Welcoming atmosphere

场地Site
园区提供综合服务楼一楼西侧作为改造基础。因为是更新类项目,设计面对着诸多制约条件。
一是,楼体本身的制约。空间原作为办公室使用,虽然是框架结构,但是部分墙体及管道因为使用需求无法拆除。
二是,改造后的咖啡馆需要与所在楼体及园区环境相对协调。需要与原建筑内的服务大厅、卫生间形成功能连接,但又不能相互干扰。
三是,运营盲点。因为工业园区未有成熟的商业服务思路,即时设计在实地调研及走访后,梳理了集合咖啡、简餐、读书、自助超市、临时会议等多功能的复合运营思路。
The renovation utilizes the west side of the first floor in the park’s service building. As a renovation project, the design faces multiple constraints:
Structural limitations: Originally office space, though framed, some walls and pipes cannot be removed due to functional needs.
Integration requirements: The café must harmonize with the building and park environment. It should connect functionally with the service hall and restrooms inside the building while avoiding interference.
Operational gaps: With no mature commercial service model in industrial parks, IM Design developed a multi-functional operational strategy—combining coffee, light meals, reading, self-service mart, and temporary meetings—through on-site research.
▼场地原貌,Original site

舶来与在地Imported & Localized
咖啡店虽为舶来品,但本质上是为人群提供社交的场所。在中国的传统建筑形式中的“轩”,是一种常依附于主体建筑的空间形式。具有开敞、轻盈、高爽、临景等核心特征,也是非正式、轻松的社交场所。于此,即时设计以“轩”的空间特征为发想,对传统的咖啡店铺进行在地转译,试图创造一种结合“中国性”与“当代性”的场所精神。
Though cafés are imported, their essence lies in social interaction. The Chinese architectural form “轩” (xuān)—an open, elevated, light-filled space attached to main structures—historically served as informal social venues. Inspired by the xuān, IM Design reinterprets the traditional café model through a localized lens, blending “Chineseness” with contemporary spirit.
▼园区入口视角,Entrnace

▼西立面,West facade

▼北立面,North facade

递进 Progression
面对场地,即时设计将空间划分为五个层次,从外到内依次是外摆花园、檐下空间、共享区、点单区、内廊区,其空间关系由开放层层递进到私密、满足不同人群的社交需求。外摆花园保留原始绿地,建造叠层的步道连接场地南、北、西三侧道路,在消解场地高差的同时,引导人流进入。自然形成的南北两个庭院通过花池和连体桌椅进行围合,材料上则通过砾石、水洗石、水磨石进行自然过渡,形成一个类似台基的区域。檐下空间是咖啡馆的展示面,也是室内外的缓冲地带,目的是最大限度地引入光线、空气和景观,实现内外空间的交融。主立面结合原建筑所强调的框架结构和折板造型,以水磨石基座为底,以木构为框架,柱间内置可完全开敞的折叠窗,视野无阻隔,再通过钢索拉结轻薄观感的金属屋面,形成轻盈透气的半室外庇护空间,有效缓解了原建筑的严肃氛围。
▼空间生成动图,axo

The space is divided into five layers, moving from open to private: Outdoor Garden: Preserves existing greenery. Tiered walkways connect south, north, and west paths, resolving elevation changes while guiding flow. Two courtyards are defined by planters and connected seating, with gravel, exposed aggregate, and terrazzo creating a terrace-like base. Eaves Space: Acts as the café’s facade and buffer zone, maximizing light, air, and views to blend indoors and outdoors. Shared Area / Order Zone / Inner Corridor: Progressively intimate zones for diverse social needs. The main facade merges with the building’s frame and folded-plate structure. A terrazzo base supports a timber frame with fully openable folding windows. Steel cables suspend a lightweight metal roof, forming a semi-sheltered space that softens the original building’s rigidity.
▼外摆花园,Outdoor seating garden

▼西侧檐下空间,Space under the eaves on the west side

▼南侧檐下空间,Space under the eaves on the south side

▼西侧入口空间,West entrance space

▼北侧入口空间,North entrance space

外向的“家” Outward “Home”
内部空间的打造,区别于园区现有的办公环境,旨在营造住家般温馨放松的氛围,类比住家的会客厅、书房、厨房、餐厅、卧室等分区,为满足聊天、独处、协作等事件场景,即时设计设置了六种不同形式的桌椅组合方式,以不同材质和色彩的墙体作为 “空间定义装置”,通过层叠、交叉、弯曲,形成一个非网格化的动态空间,引导顾客探索并获得归属感。
The interior diverges from typical office environments, evoking a home’s warmth. Analogous to living room, study, kitchen, and bedroom zones, six seating types cater to chatting, solitude, or collaboration. Walls as “space-defining devices”—layered, intersecting, curved—create a non-gridded dynamic flow, inviting exploration and belonging.
▼北侧入口看向室内,View of the interior from the north entrance

▼西侧入口看向吧台,View of the bar from the west entrance

▼共时长桌(共享区),Shared Long Table (Co-working Area)

▼叙光客厅(会客区),Light Gathering Living Room (Reception Area)

▼窗帘与绿植,Curtains and green plants

▼拾光书阶(阅读区),Time-Gathering Book Steps (Reading Area)

▼艺术隐廊(交流区),Artistic Hidden Corridor (Interaction Area)

更新后的布局通过不同形式的门与窗口连接着原有建筑的功能性空间,实现自由互通又相对独立。
Renovated layouts link existing functional spaces (service hall, restrooms) via doors and windows, ensuring connectivity without disruption.
▼连接卫生间,Connected to the restroom

▼功能入口隐藏在吧台墙后,The functional entrance is hidden behind the bar wall

▼连接原服务大厅,Connecting to the original service hall

呼吸 Breathing
呼吸感是整座建筑的核心。稳固的基础,规整的框架,流动的墙体和轻盈的屋顶,其所构成的空间形态充满着建构的趣味,释放着园林般的惬意氛围。室内外大小不一的洞口,连接着新建空间与原始功能,也将风、光、景引入室内,这种与自然共生的状态正是共享空间的底色。
“Breathability” defines the architecture. A solid base, ordered frame, fluid walls, and light roof create tectonically engaging volumes that exude a garden-like ease. Varied openings connect new and old spaces while inviting wind, light, and scenery indoors—embodying symbiosis with nature.
▼从空间最深处看向室外,Looking out from the deepest part of the space

▼顺应现场条件的开窗,Window openings adapted to site conditions

▼自助超市与咖啡馆之间的矮窗,The low window between the self-service supermarket and the café

外立面的处理使得临窗视野可以被完全打开,内外空间由此相互渗透,人对自然与时间的观感也被持续放大。
The façade’s openable windows erase boundaries between inside/outside, amplifying awareness of nature and time.
▼室外看向吧台,Looking in from outside, you see the bar counter

▼室外看向书阶,The view from outside faces the book steps

▼吧台看向室外,The bar counter faces outside

愿景 Vision
咖啡馆在产业园的创新生态中扮演着极其关键且多元的角色,远超单纯的饮品提供场所。它们更像是创新的催化剂、社交的枢纽和文化的孵化器,即时设计盼望着此类“第三空间”承载着文化与功能的双重内涵,成为整个园区的灵感聚集地。
In industrial parks, cafés are far more than drink providers—they are innovation catalysts, social hubs, and cultural incubators. IM Design envisions such “third spaces” as cultural-functional hybrids, becoming the park’s creative epicenter.
▼夜景,Night view


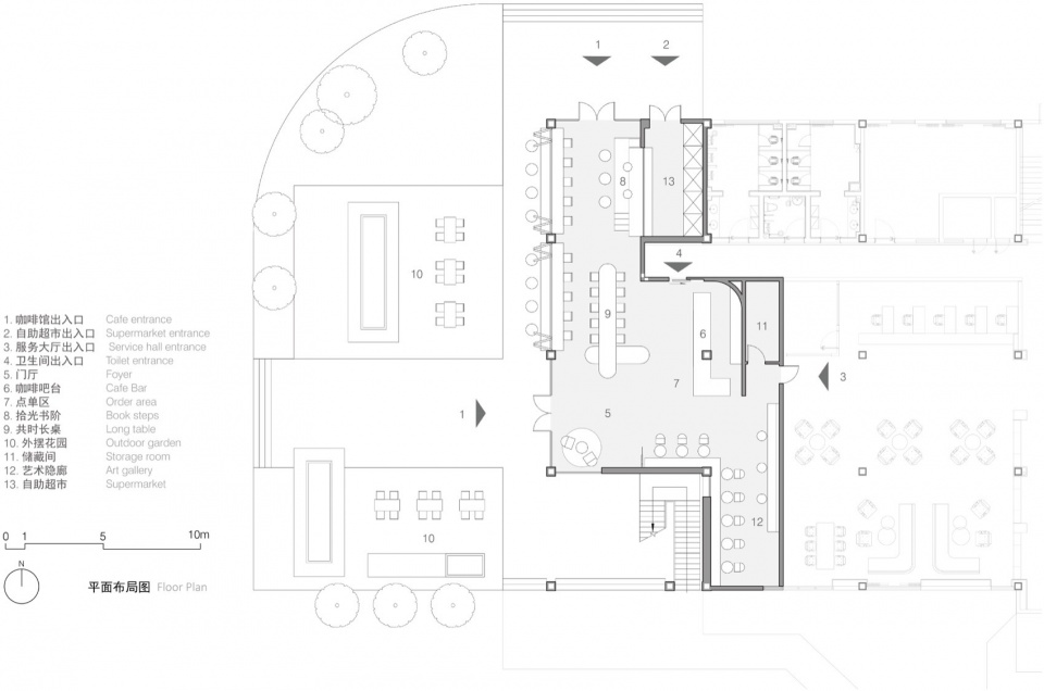
▼平面布局图,floor plan

▼立面图,elevation

Project Name: Dreamland Café
Location: Tongchuan Optoelectronics Industrial Park, Shaanxi
Program: Coffee, light meals, book bar, self-service mart
Design Firm: IM Design
Lead Architect: Zhou Xiaofu
Art Director: Shine Fu
Design Team: Li Shuai, Zhang Xinzhu, Zhai Xin, Saqiriga
Lighting Design: Li Min
Operational Consultant: Guan Jiarong, Wang Rui
Floor Area: Interior 220㎡ / Exterior 360㎡
Completion: June 2025
Construction: Shangya Construction
Materials: Timber, stainless steel, terrazzo, exposed aggregate concrete, limestone, rubble stone, gravel, fabric, leather, etc.
Photography: Kevin














