气味咖啡,保山 / 拾号建筑
项目概况Project Overview
保山,是全世界咖啡的重要产区之一,伴随着产业的蓬勃发展,精品咖啡馆如雨后春笋般破土而出。气味是深耕本地多年的老品牌,他们相中了一栋四十多岁的老宅作为第三家门店。
Baoshan, a prominent global coffee-producing region, has witnessed a surge in boutique cafes amid its thriving industry. Scented Coffee, a longstanding local brand with deep roots in the area, has selected a 40-year-old heritage residence as the location for its third outlet.
▼项目外观概览,Overall of exterior

老宅占地不到三分,是典型的当代西南民居,主体是木构的两层简易框架,坐西朝东,东面呈打开状,其余三面通过砖墙抗剪并承担竖向荷载,主体南侧并置了梯形的砖混结构副楼。
Covering an area of less than 300 square meters, the residence is a classic example of contemporary southwest Chinese architecture. It features a two-story wooden frame structure, with an open eastern facade, while the other three sides rely on brick walls for shear resistance and vertical load bearing. Adjacent to the south side of the main building is a trapezoidal brick concrete auxiliary structure.
▼老宅改造前,The old house before renovation

▼老宅改造后,The old house after renovation

设计策略Design Strategy
用地位于市区核心位置,我们认为这个店的姿态不应该是张扬的,应该谦逊且平和,适宜地整理和介入才是设计的内核。初到场地时,老宅内部已被石膏板和乳胶漆包裹的严严实实,首要任务就是把这些过渡装饰的表皮拆除,将木屋架和红色砖墙自信地裸露出来。这样一来,老宅主体原有的瓦、木、砖便自上而下、由内向外地回归了它本来的模样。接着将其余外墙部分刷白,形成背景板,恢复原样的这部分便自然跳脱出来,成为用地中当之无愧的主角儿。最后在整理出来的老宅中介入适当金属元素,使其不失旧容貌的同时,焕发新的精气神。
Nestled in the heart of the urban core, the store is designed to exude a modest and understated presence, with careful curation and thoughtful intervention forming the core of the design philosophy. Upon initial site inspection, the interior of the old residence was completely concealed by gypsum boards and latex paint. The first priority was to remove these excessive decorative layers, revealing the wooden roof trusses and red brick walls in their authentic form. This restoration allowed the original tiles, wood, and bricks of the main building to reclaim their natural essence, from top to bottom and from inside out. The remaining exterior walls were then painted white to serve as a backdrop, allowing the restored sections to naturally emerge as the focal point of the site. Finally, subtle metal elements were incorporated into the renovated residence, preserving its historical charm while infusing it with a renewed vitality.
▼老宅主体成为主角儿,The main body of the old house becomes the protagonist

老宅的整理是城市层面的把控,而咖啡馆的氛围拿捏会影响顾客到店的感受和体验。虽然原始场地的标高已经高出街道1.4米了,但东侧道路的车流人流非常大,所以朝东的建筑和院落仍然会被城市的喧嚣所干扰。好在建筑前方有几株高20多米的大树,在这天然的自然庇护下,应当去强化建筑和庭院的静谧感,才能照顾到造访的人们。
While the restoration of the old residence is managed from an urban perspective, the ambiance of the cafe directly shapes the customer experience. Despite the original site being 1.4 meters above street level, the east-facing building and courtyard are still exposed to urban hustle due to heavy traffic and pedestrian flow on the eastern road. Fortunately, several 20-meter-tall trees stand in front of the building, providing a natural sanctuary. It was essential to enhance the tranquility of the building and courtyard to ensure a pleasant visit.
▼院前有大树庇护,There are big trees providing shelter in front of the courtyard


先在基地东侧边界拉通一面长矮墙,不仅遮蔽住外部对内院的直接视线,也和北、西两侧围墙以及建筑主体共同形成了叠落的层次关系。
A long, low wall was constructed along the eastern boundary of the site, screening the inner courtyard from direct external views and creating a layered relationship with the north and west walls, as well as the main building.
▼外部矮墙遮挡街道视线,The low external wall blocks the view of the street

▼拾级而上,Stair steps


接着在内院中心布置一层水面和一株四季桂,这对组合既照顾了建筑、庭院、大树之间的关系,也强调了整个场域的氛围立场。
A central water feature and an osmanthus tree were installed in the inner courtyard, harmonizing the relationships between the building, courtyard, and trees, while emphasizing the serene atmosphere of the entire space.
▼院落概览,Overall of the courtyard

▼院落里的水面强调场域氛围,The water surface in the courtyard emphasizes the atmosphere of the space


▼细部,Details

咖啡的操作布置被合理地安排在一层的“回”字型吧台里,吧台中心位置是咖啡机,方便制作常规意式咖啡,东侧为迎客点单区,南北两侧为客座区,面对北客座区的吧台用于制作手冲咖啡,面对南客座区的吧台是制作特调咖啡,同时将两边客座区抬高,这样客人在坐下时能与咖啡师视线平行,得到最舒服的交互状态。
The coffee preparation area is strategically arranged within a “loop”-shaped bar on the ground floor. A coffee machine is positioned at the center of the bar for crafting regular espresso-based beverages. The eastern section functions as the greeting and ordering area, with seating areas on the north and south sides. The bar facing the north seating area is dedicated to pour-over coffee preparation, while the bar facing the south seating area specializes in artisanal drinks. Both seating areas are elevated, enabling customers to engage with baristas at eye level, fostering a comfortable and interactive experience.
▼回字型吧台,A square-shaped bar counter

▼抬高的客座区,Elevated seating area

▼二层空间,The second floor space


▼旧房新生,Breathing new life into old house


▼二层空间细部,Details of the second floor space

▼旧的整理和新的介入,Old sorting and new intervention

风和日丽,倚靠在院落中,手握一杯卡蒂姆,听着街道车水马龙,树叶飒飒作响,水面涓涓细流。此刻,气味咖啡这栋被唤醒的老宅成为了保山生活的形容词。
On a sunny day, as one sits in the courtyard with a cup of Catimor coffee, the distant hum of street traffic, the rustle of leaves, and the gentle flow of water create a harmonious symphony. In this moment, Scented Coffee—this revitalized heritage residence, becomes a vivid expression of life in Baoshan.
▼通往二层的楼梯,The staircase leading to the second floor

▼二层露台,The second floor terrace


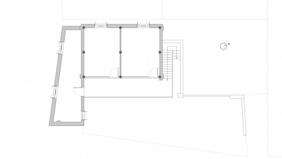
▼改造前一层平面图,Ground floor plan before renovation

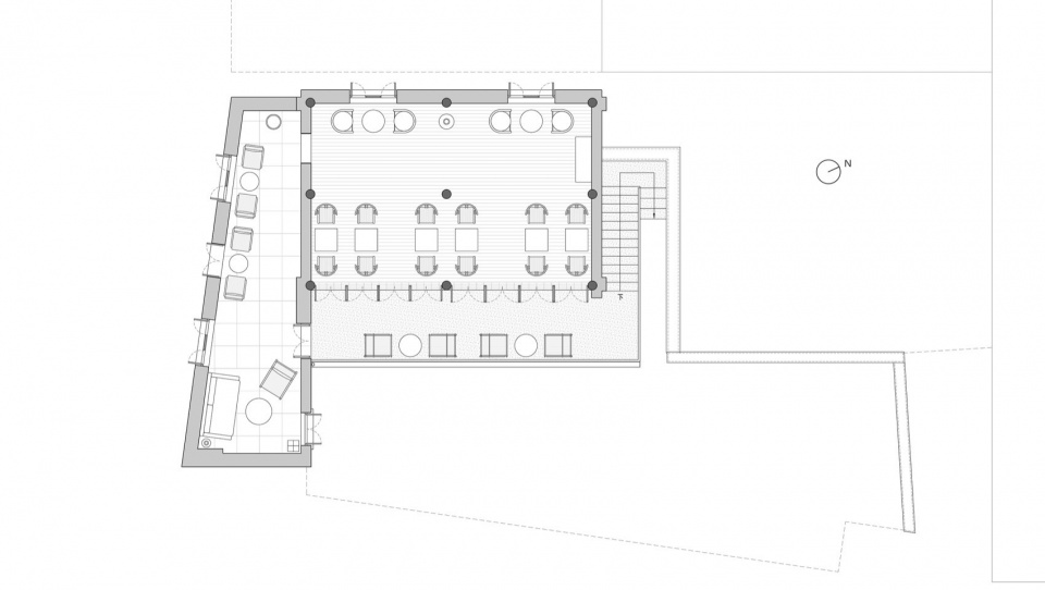
▼改造后一层平面图,Ground floor plan after renovation

▼改造前二层平面图,Upper floor plan before renovation

▼改造后二层平面图,Upper floor plan after renovation

Project Name: Scented Coffee
Project Location: No.10 Taibao South Road, Longyang, Baoshan, Yunnan
Design Area: 160 Sqm
Design Time: 2024.09-2024.10
Complete Time: 2025.02
Design Company: No10-Architects
Website: https://www.no10-architects.com/
Design Team: Zhou Shihao, Li Jinhang, Wu Yutong
Photo credit:Wang Ce














