虞山公园文旅配套建筑,常熟 / 平介设计
虞山公园位于常熟市中心,是国家AAAAA级旅游景区,在公园的西南隅,映山湖如同一面被青山环抱的明镜,倒映着四季流转的天光云影。占地1.5万平方米的尚湖湖域,不仅是公园的灵魂所在,更承载着常熟人半个世纪的城市记忆。就在这动静相宜的湖畔,常熟文旅引进LIM餐饮品牌,依托现有存量资产改造文旅配套建筑。本项目通过对废弃集装箱的创新改造,为虞山公园创造了一个兼具功能性与景观性的标志性空间。三个被岁月遗忘的集装箱静静伫立,它们曾是无人在意的公园残骸,如今却以谦卑而诗意的姿态重生,成为连接城市喧嚣与自然静谧的”第三空间”。
Yushan Park, located in the heart of Changshu City, is a nationally recognized 5A-level tourist attraction. At the park’s southwest corner lies Yingshan Lake, a crystal-clear mirror embraced by verdant mountains, reflecting the changing skies and clouds through the seasons. Covering an area of 15,000 square meters, Shanghu Lake is not only the soul of the park but also holds half a century of urban memories for the people of Changshu. Along this tranquil yet dynamic lakeside, Changshu Cultural Tourism has introduced the LIM dining brand, transforming existing assets to upgrade the cultural and tourism facilities. This project creatively repurposes abandoned shipping containers to create a landmark space in Yushan Park that harmonizes functionality with scenic beauty.Three containers, once forgotten relics of the park, now stand quietly reborn with humble and poetic grace. They have been transformed into a “third space” that bridges the bustling city life and the serene natural environment.
▼建筑位置,architecture position

▼建筑夜景,night view




重生的契机:与自己对话的容器The Opportunity for Rebirth: A Container for Self-Reflection
项目始于对城市闲置资源的重新思考。原始建筑由三个集装箱组成。其中两个组成了咖啡厅的底部,这两个集装箱成为一个光学及声学的屏障,让人可以安静地在公园区落座。第三个集装箱构成了咖啡厅上层的露台,供人们观景并成为景观的一员。这三个错落摆放的集装箱,原是公园临时设施的遗留物,锈蚀的表皮记录着虞山公园从封闭式收费公园到开放式城市客厅的变迁史。
▼轴测图,axonometric drawing

▼设计策略,design strategy

The project began with a fresh reconsideration of the city’s idle resources. The original structure consists of three shipping containers. Two of them form the base of the café, serving as an optical and acoustic barrier that allows visitors to sit quietly within the park area. The third container creates an upper-level terrace for the café, offering a place for people to enjoy the view and become part of the landscape.These three staggered containers were originally remnants of the park’s temporary facilities. Their rusted surfaces bear witness to Yushan Park’s transformation—from a closed, ticketed park to an open, urban living room for the city.
▼建筑正立面,front facade



设计团队在踏勘场地时,敏锐地捕捉到这片区域的特殊气质:它位于映山湖西岸,恰好处于公园主游线的视觉盲区,却又是观赏音乐喷泉全景的最佳区位之一。湖面在此处形成一个天然的弧形湾口,晨雾弥漫时如一幅水墨,晴日里则倒映着虞山城墙的轮廓。这种“隐于闹市,却独拥湖光”的矛盾特质,成为设计最初的灵感触发点。我们希望在这里创建一个可以与自己对话的容器,让忙碌的人们有机会与自然联系。
▼爆炸图,exploded drawing

During the site survey, the design team keenly sensed the unique character of this area: located on the west bank of Yingshan Lake, it sits just outside the main visual axis of the park’s primary walking route, yet it is one of the best vantage points to enjoy the full panorama of the musical fountain. Here, the lake forms a natural curved bay; shrouded in morning mist, it resembles an ink wash painting, while on clear days, it reflects the silhouette of the Yushan city wall.This paradoxical quality—“hidden within the bustling city, yet embraced by the lake’s serene light”—became the initial source of design inspiration. We aimed to create a space here that serves as a container for self-reflection, offering busy visitors a chance to reconnect with nature.
▼建筑入口,architectural entrance


垂直的诗学:在限制中创造自由Vertical Poetics: Creating Freedom Within Constraints
改造面临的核心挑战是如何在严格的红线限制下激活空间。根据虞山街道对历史城区建筑更新的规定,项目不得突破原有地基范围,且新建部分需采用可逆连接方式。这一约束反而催生了垂直维度的创新:通过向上延展而非水平扩张,让集装箱获得新的高度与视野。
The core challenge of the renovation was how to activate the space within strict boundary constraints. According to Yushan Street’s regulations on building renewal in the historic district, the project was not allowed to extend beyond the original foundation footprint, and any new construction had to use reversible connections. This limitation, however, sparked innovation in the vertical dimension: instead of expanding horizontally, the design extends upward, granting the containers new height and panoramic views.
▼室内空间,interior


于是我们在原有集装箱的三个角落植入了三座瞭望塔,以垂直维度创造与自然对话的可能。它们将人们从平面化的日常体验中抽离,在高度变化中重新建立与自然的联系。每座塔都以独特的方式诠释着”与自然对话”的设计理念。这些垂直构筑物不仅拓展了使用功能,更创造了层次丰富的空间体验。
We therefore introduced three observation towers at the original containers’ corners, creating opportunities for dialogue with nature through the vertical dimension. These towers lift visitors out of the flatness of everyday experience, reestablishing their connection with nature through changes in height. Each tower uniquely interprets the design concept of “dialogue with nature.” These vertical structures not only expand functional use but also create a richly layered spatial experience.
▼室内细节,interior details




北塔·林间私语。隐匿在树林边缘的北塔是最具私密性的存在。二层高的空间全部作为独立包间使用。最特别的是,我们保留了场地原有的两棵山茶树,让它们的枝干从塔楼中部穿出,春季开花时,绯红的花朵会从钢结构的缝隙中探入室内。包间的条窗经过特殊高度设计,既能保证隐私,又能将室外景观的动态尽收眼底。
North Tower · Whispering Among the Trees. Nestled at the edge of the woodland, the North Tower offers the highest level of privacy. The two-story space is entirely dedicated to private rooms. Most notably, we preserved two original camellia trees on site, allowing their branches to grow through the middle of the tower. In spring, the crimson blossoms peek indoors through the gaps in the steel structure. The tower’s slatted windows are specially designed at a height that ensures privacy while capturing dynamic views of the outdoor landscape.
▼建筑与景观共生,architecture-landscape symbiosis

南塔·湖光序曲。直面音乐喷泉的南塔拥有最开阔的视野。二层是270度观景包间,三层则是开放式瞭望台,将音乐喷泉的全景尽收眼底。
South Tower · Lake Light Overture. Facing the musical fountain, the South Tower offers the most expansive views. The second floor features a 270-degree panoramic viewing room, while the third floor is an open observation deck that captures the full panorama of the musical fountain.
▼湖景瞭望台,lakeside viewing platform


东塔·时空连廊。作为连接各层空间的交通枢纽,东塔在功能性之外也暗藏惊喜。盘旋上升的钢楼梯围绕着一棵保留的朴树盘旋,树枝从平台间隙穿出,此时的建筑也给自然预留了通道。随着东塔到达二层之后,瞭望台特意向东倾斜30度,让视线正好与湖对岸的虞山城墙形成对话。
East Tower · The Spacetime Corridor. Serving as the circulation hub connecting all levels, the East Tower holds surprises beyond its functionality. A spiraling steel staircase wraps around a preserved hackberry tree, with branches extending through gaps in the platforms, allowing the building to accommodate nature’s presence. Upon reaching the second floor, the observation deck is intentionally tilted 30 degrees eastward, aligning the view to engage in a visual dialogue with the Yushan city wall across the lake.
▼保留场地内的树木,preserving the existing trees on site



新生Rebirth
这个文旅配套改造项目绝非简单的空间再利用,而是一次关于公园存量资产与自然景观共生的深度探索。三个黑色集装箱与瞭望塔的组合,既保留了场地的记忆,又创造了与虞山、映山湖对话的全新方式。我们相信,好的公共空间应当像这样——既能满足功能需求,又能激发使用者的感知与思考。通过精心设计的垂直动线和观景节点,这个项目不仅为虞山公园增添了一个独特的景观地标,更为市民提供了一个可以放慢脚步、与自然对话的”城市客厅”。在这里,发展与自然不再对立,而是共同编织着属于常熟的城市故事。
This cultural tourism facility renovation project is far more than a simple reuse of space; it represents a profound exploration of the symbiosis between the park’s existing assets and the natural landscape. The combination of three black containers and observation towers not only preserves the site’s memory but also creates a new way to engage with Yushan and Yingshan Lake.We believe that good public spaces should be like this—meeting functional needs while inspiring users’ perception and reflection. Through carefully designed vertical circulation and viewing nodes, this project not only adds a unique landmark to Yushan Park but also provides citizens with an urban living room where they can slow down and converse with nature.
▼黄昏下的建筑,architecture under the evening glow

▼模型照片,physical model picture


▼总平面图,master plan drawing

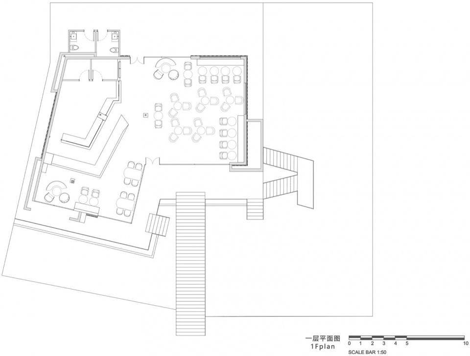
▼一层平面图,first floor plan drawing

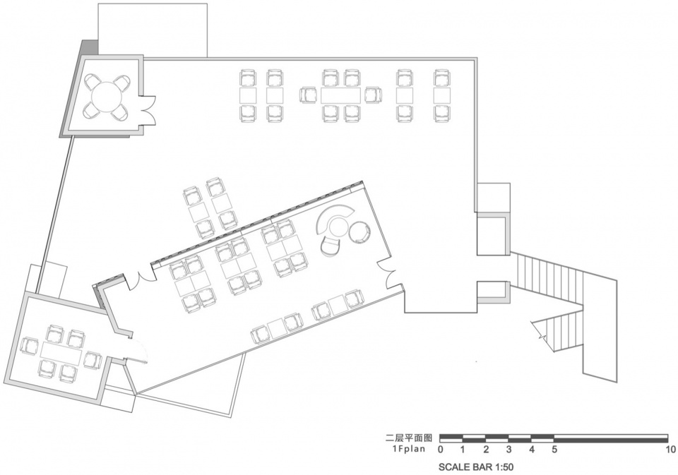
▼二层平面图,second floor plan drawing

▼剖面图,section drawing

项目信息
Project Information
Project Name: Yushan Park Lim Café Renovation
Design Period: June 2024 – March 2025
Design Team:
Pingjie Design: Wu Jiang, Wu Si, Li Xiaowei, Zhang Ying, Wu Jiahao
Soochow University: Yang Nan, Xiao Xiangdong
Client: Changshu Cultural Tourism Development Co., Ltd.; Suzhou Limo Coffee Culture Co., Ltd.
Project Location: Yushan Park, Changshu City, Suzhou, Jiangsu Province
Design Area: 550㎡
Photographer: Wang Shang
Collaborator: Tongcai Design (Interior Decoration)
Materials: Wood-plastic composite panels, Great Wall panels, textured stone paint














