沙特利雅得首个地铁枢纽STC换乘站 / 盖博建筑设计事务所
作为沙特首个地铁系统的重要枢纽,由盖博建筑设计的STC地铁站是四大换乘主站之一,是一个集合地铁换乘和商业空间的交通枢纽综合体。整座建筑宛如一片从地面跃然浮起的沙丘,悬桓在这座现代化首都的大地之上。它不仅以一个开放通透的形象回应城市,也结合公共广场、多项交通策略,引领着城市出行方式的转变。盖博建筑突破性地引入自然光,为基础交通设施营造出人与自然和谐共生的空间体验。
As an important hub of Saudi Arabia’s first subway system, the STC Metro Station designed by Gerber Architekten is one of the four major transfer stations. It is an urban transportation hub complex that integrates subway transfers and commercial spaces. The entire building is like a sand dune that leaps from the ground and hangs over the land of this modern capital. It not only responds to the city with an open and transparent image, but also combines public squares and multiple transportation strategies to lead the transformation of urban travel methods. Gerber Architekten has introduced natural light in a breakthrough way to create a spatial experience of harmonious coexistence between man and nature for basic transportation facilities.
▼项目概览,Overall view

01.沙特首个地铁系统核心枢纽 A Core Hub of Saudi’s First Metro System
利雅得的地铁系统是沙特阿拉伯首个地下公共交通枢纽。在这座现代化首都,过去的利雅得出行高度依赖私家车。从2012年开始,一个总长约177公里、包括80余个站点的全新地铁网络开始兴建,标志着该国城市交通模式的重大变革。由盖博建筑设计的STC地铁站正是全市六条地铁线路中的四大换乘站之一。因此这个项目承担了一种使命——需要确保它能够鼓励人们乘坐地铁,影响市民的出行习惯。
Riyadh’s metro system is Saudi Arabia’s first underground public transportation hub, with construction beginning in 2012, marking a major shift in the country’s urban mobility model. In this modern capital, travel has historically relied heavily on private cars. The STC Metro Station, together with six metro lines across the city, will form a new underground network spanning approximately 177 kilometers with over 80 stations. As such, the project carries a vital mission—to ensure it encourages people to use the metro and influences the travel habits of the city’s residents.
▼外景,Exterior view
注:STC地铁站是利雅得地铁系统中四大换乘站之一,除了由盖博建筑设计的STC地铁站,其余三个换乘站点分别由Snøhetta、扎哈·哈迪德建筑事务所和Omrania设计,各以不同的建筑语言与空间策略回应场地与功能,共同构成沙特首都地下公共交通网络的关键性空间节点。STC地铁站位于阿卜杜勒-阿齐兹国王路、阿卜杜拉国王路和法赫德国王路三条重要城市大道的交汇处,是城市中交通最繁忙的区域之一。

在利雅得整个地铁系统中,STC地铁站承担了其中两条线路——1号线(蓝线)与2号线(红线)的换乘功能。这两条主线在此以垂直方式交汇,具有战略性地位。
Within Riyadh’s metro system, the STC Station serves as an interchange hub for two major lines — Line 1 (Blue Line) and Line 2 (Red Line). These two primary routes intersect vertically at this point, giving the station a important position.
▼项目区位,location

地理上,STC地铁站又位于核心商业与行政中心Al-Mursalat区,周边遍布大量写字楼、企业总部与购物中心。其中,中东最大的电信运营商沙特电信公司(Saudi Telecom Company,简称STC)总部便坐落于此,并于2018年获得该站的冠名权,STC地铁站由此得名。
Geographically, the station is located in the Al-Mursalat district, a core commercial and administrative center of the city, surrounded by corporate headquarters and shopping centers. Notably, the headquarters of Saudi Telecom Company (STC), the largest telecommunications operator in the Middle East, is situated nearby. In 2018, the company acquired naming rights to the station.
▼STC地铁站与不远处的城市核心区,The subway station and the city center not far away

从项目意义、枢纽网络到区位背景,最终盖博建筑采用了一种高度理性且技术导向的设计方法。既通过营造温暖友好的空间氛围、充足的自然采光,来降低乘客从地面进入地下的心理“门槛”;同时以“沙丘”意象回应沙漠地貌,整座建筑仿佛从大地之上浮现的一块山岩,跃然成为醒目的城市地标。
Considering the project’s significance, its role and its context, Gerber Architekten adopted a highly rational and technology-driven design approach. By creating a warm and welcoming spatial atmosphere with natural lights, the design aims to reduce passengers’ psychological “threshold” when descending from the surface to the underground space. Inspired by the desert landscape, the station’s “dune” motif makes the building appear as a rock seemingly lifted from the earth, establishing it as an urban landmark.
▼鸟瞰地铁站,Bird’s eye view

▼鸟瞰站前广场,Bird’s eye view of the station square

02.大地之上的沙丘与绿洲 Inspiration from Dunes
整座STC地铁站如同一片悬桓在大地之上的沙丘。盖博建筑从利雅得周边的断崖地貌中获得灵感,将岩层地质纹理转化为立面几何图案,并以参数化设计精确定义曲面形态。雕塑般的形态呼应沙漠景观,这一设计让新的交通设施与阿拉伯地域文脉和谐共生。
The entire STC Metro Station rises like a dune floating above the earth. Gerber Architekten drew inspiration from the cliff landscapes surrounding Riyadh, transforming the geological rock strata patterns into geometric facade designs. The sculptural form echoes the desert scenery, creating a harmonious integration of the new transit facility with the Arab regional context.
▼地铁站正立面,Front facade

▼标志性屋顶受启发于沙漠岩层地貌,The iconic roof is inspired by desert rock formations


▼立面近景,Facade close view

▼标志性屋顶近景,Roof close view

同时这又是一片轻盈的“都市绿洲”。地铁站建筑仅占地块的有限区域,以释放出更多地面为大型公共广场提供空间,创造出一片沙漠之中的公园绿洲。室内外的地面采用同种石灰岩铺装,也弱化了空间的边界。
At the same time, it serves as a light “urban oasis.” The metro station occupies only a limited portion of the site, freeing up more ground space for a large public plaza, creating a park-like oasis in the desert. The interior and exterior floors are paved with the same limestone, further blurring the boundaries between indoor and outdoor spaces.
▼地面开辟为城市公共广场,The ground is developed into a public square in the city

而在沙丘风貌的屋顶之下,高达11米的通体玻璃幕墙围合出入口与商业区域,营造出一个从外部进入地铁站的过渡性空间。玻璃幕墙不仅使建筑整体更加轻盈,也为入口区域引入充足自然光,提升了空间的明亮与开放感。
Beneath the dune-like rooftop, a transitional space leading into the metro station is created. An 11-meter-tall glass curtain wall encloses the entrance and commercial areas, inviting the public inside the building.
▼屋顶之下以玻璃幕墙围合出入口,The entrance and exit are enclosed by glass curtain walls under the roof



这片看似轻盈、充满诗意的屋顶背后是一套高度复杂的建造系统,是数字化设计与工业建造的融合之作。为实现标志性的沙丘造型,盖博建筑深度应用BIM技术,全程紧密投入整个BIM技术周期。从设计阶段开始与不同专业紧密协同,反复测试模型检查;再至施工阶段,全面支持钢结构搭接、放样指导等各个环节,才得以落定这片柔和轻盈而又坚固的标志性屋顶。
Behind this seemingly light and poetic roof lies a highly complex construction system — a fusion of digital design and industrial fabrication. To realize the iconic dune-like form, Gerber Architekten made extensive use of BIM technology and was deeply involved throughout the entire BIM scope. From the early design phase, the team worked in close coordination with various disciplines, repeatedly testing and verifying the model. During construction, they provided comprehensive support across key stages—including steel structure connections and layout guidance—ultimately bringing this soft, light yet robust signature roof to completion.
▼屋顶特征也延续至大厅天顶,形成连续沙丘风貌,The roof features also extend to the ceiling of the hall, forming a continuous sand dune landscape

通过参数化设计,盖博建筑精确定义了屋顶的曲面形态、结构支撑关系以及大量单元模块尺寸,确保设计意图的精准传达与施工可行性。整个屋顶采用预制玻璃纤维增强混凝土(GRC)面板系统,这些预制单元按BIM模型数据加工完成,运抵现场后如拼图般完成组装。
▼BIM参数化建造过程,BIM construction process


Through parametric design, the hyperbolic shape, structural support relationship and thousands of unit module sizes were precisely defined to ensure the accurate communication of design intent and construction feasibility. The huge roof structure adopts a prefabricated glass fiber reinforced concrete (GRC) panel system. These prefabricated units are processed according to BIM model data and assembled accurately like a puzzle after arriving on site.
▼地面停车场,Ground parking lot


03.空间结构创新: 引光入地 Bringing Light Underground
在沙漠高温与地形下设计地铁站,整个项目无疑面临一些特殊挑战。为此,盖博建筑的整个策略十足创新:引光入地,让地下空间同样享有日光。这引向了一个超越传统地铁站的空间结构:光线深入地下,技术系统则被置于屋顶。
Designing a metro station under the extreme heat and topography of the desert undoubtedly presents unique challenges. To address this, Gerber Architekten adopted an exceptionally innovative strategy: bringing daylight underground. This led to a spatial structure that goes beyond the traditional metro stations: daylight penetrates deep into the underground levels, while technical systems are relocated to the roof.
▼入口空间,Entrance space

两条地铁隧道在此垂直交汇,将整个站体划分为四个对称的“象限”。在设计上,将每个象限设为一个高达50米的中央“柱体”,以此支撑整个建筑结构。而自动扶梯围绕柱体布置,引导乘客进入地下站台层。通过引入的自然光照亮,光线穿透扶梯与不同楼层,最深可达地下近30米。这种采光设计也摆脱了传统地铁站的封闭感,让首次体验地铁的市民更好适应地下空间。
At this station, two metro tunnels intersect vertically, dividing the structure into four equally sized quadrants. Each quadrant features a central “pillar” up to 50 meters tall that supports the entire building and houses technical systems. Escalators are arranged around these pillars, guiding passengers down to the underground platforms. Natural light penetrates through multiple floors, reaching nearly 30 meters underground. This lighting design breaks away from the typical enclosed feeling of traditional metro stations, helping first-time metro users better adapt to the underground environment.
▼日光贯穿扶梯天井,部分引入站台层,Daylight penetrates the escalator atrium and is partially introduced into the platform level


因沙漠地带特殊的气候条件,整座地铁站需配备大型空调系统以及多种技术设备。为此,盖博建筑创造性地将技术设备整合于屋顶10米高的箱形结构内,整个箱体尺寸约为140米x100米,位于地铁线交叉点正上方。将技术设备设在屋顶,而非埋设在地下——这一策略也有效减少了地下工程量。
Due to the desert’s climate, the entire metro station requires a large-scale air conditioning system and plenty of equipments. For this, Gerber Architekten innovatively integrated these technical facilities into a 10-meter-high box structure on the roof, positioned directly above the intersection of the metro lines. Placing the equipment on the roof instead of underground significantly reduces excavation and underground construction work.
▼前厅与售票处,Lobby and ticket office

04.方案进化:从竞赛概念到落地实现 From Concept to Realization
STC地铁站的设计方案历经了多轮优化与迭代。在2012年赢得设计竞赛的方案中,盖博建筑构思了一个极具想象力的概念:一个仿佛漂浮于城市之上的屋顶公园。这一流动起伏的曲面屋顶,不仅呼应了沙特文化中的飞毯意象与地貌,将公园景观与技术设施巧妙集于一体,更通过独特的形态、空间及视线联系,赋予地铁站这一公共设施更多公众属性与价值。
However, implementing this pioneering concept in a complex large-scale transportation hub project undoubtedly faces huge challenges. Although the final design is significantly different from the original competition concept, the core design intention of creating an open, transparent and seamlessly connected urban environment remains unwavering.The final architecture is a concentrated response to all actual functional requirements, complex site conditions, technical feasibility and economic considerations.
▼站台,Platform

然而,要将这先锋概念落地于复杂的大型交通枢纽项目中,无疑面临着巨大挑战。最终建成的方案,其外在形态虽与最初的竞赛概念呈现显著不同,但打造一个开放通透、无缝连接城市环境的核心设计立意,始终坚定不移。最终,落地方案是对所有实际功能需求、复杂场地条件、技术可行性和经济性考量的集中回应。此外,作为沙特全新地铁系统,STC地铁站也应用了多种智能导视技术。为此,设计为导视系统预留了清晰的空间结构。站台配备屏蔽门系统,并设有实时信息显示屏与语音播报系统提示列车班次,提升乘客的出行效率与体验。
The design of the STC Metro Station has gone through multiple rounds of in-depth optimization and iteration. In the design that won the design competition in 2012, Gerber Architekten conceived an imaginative concept: a rooftop park that seems to float above the city. The flowing roof form not only echoes cultural references in Saudi, but also integrates landscape and technical infrastructure into a cohesive whole. As a major transfer hub, STC Metro Station integrates smart wayfinding systems. The platform features screen doors, real-time displays, and audio announcements to guide passengers efficiently.
▼夜览,Night view
当STC地铁站以开放通透的形象回应城市,作为枢纽,也通过一系列举措真正实现“畅通无阻”:
·人流分离:地铁乘客通过两侧落客区直达地下交通层,商业访客经由公共广场进入零售空间
·整合公共交通:地铁站两侧为公共交通落客区,满足地铁乘客直达地铁站台层;
·连接停车场:地铁站周边设有多达25处停车场,有效规划和组织与停车场的往返路线

近年来,盖博建筑通过STC地铁站、萨尔曼国王科学绿洲及Aljazira银行等重要项目,深度参与了利雅得的城市发展进程。这些项目彰显了事务所在城市转型中的积极角色,及其对建筑公共价值的持续追求。
In recent years, Gerber Architekten has been deeply involved in Riyadh’s urban development through key projects such as the STC Metro Station, King Salman Science Oasis, and Aljazira Bank. These projects highlight the firm’s active role in the city’s transformation and its ongoing commitment to the public value of architecture.
▼总平面图,masterplan

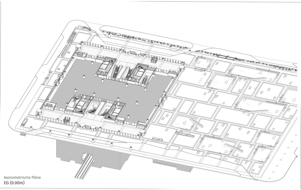
▼首层轴测图,ground floor axo

▼二层轴测图,first floor axo

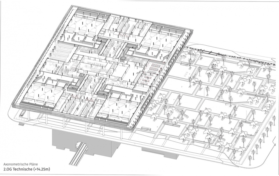
▼三层轴测图,second floor axo

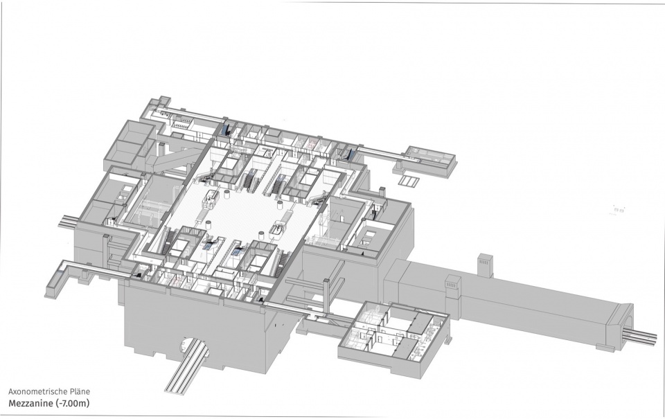
▼夹层轴测图,mezzanine floor axo

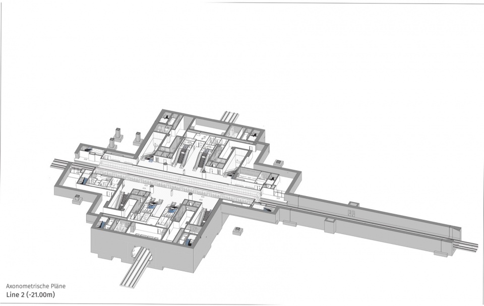
▼红线( 2号线)站台层轴测图,redline floor axo

▼蓝线(1号线)站台层轴测图,blueline floor axo

项目信息
沙特利雅得STC地铁换乘枢纽
业主: BACS Consortium; 沙特利雅得城市发展建设厅
设计竞赛: 2012 一等奖
建设时间: 2015-2025
建筑面积: 44,420 m²
用地面积: 31,020 m²
Project Data
Riyadh STC Metro Hub
Client: BACS Consortium; ADA High Commission for the Development of Arriyadh
Competition: 1st prize 2012
Construction: 2015-2025
GFA: 44,420 m²
Site Area: 31,020 m²














