GATE M西岸梦中心,上海 / MVRDV
MVRDV完成了“GATE M西岸梦中心”的设计,将原上海水泥厂地块改造为一个文化与休闲综合体,成为上海不断扩展的西岸文化项目带中的新成员。该设计以鲜明的橙色流线系统打造出独特的标识性语言,在不同年代建成的建筑中建立起统一的城市空间格局。项目通过保留并再利用原有建筑结构,最大程度降低碳排放。如今,该区域集购物、餐饮、展览、活动、滑板、攀岩及滨水休憩于一体,已成为深受本地居民与游客喜爱的打卡胜地,并荣获多个城市更新奖项。
MVRDV has completed the GATE M West Bund Dream Center, transforming a former cement factory into a culture and leisure district that adds to Shanghai’s expanding string of West Bund cultural projects. The design makes a cohesive urban space out of a collection of buildings from different time periods, reusing the existing structures to minimise carbon emissions, and introducing an unmistakeable identity with its bright orange circulation elements. Offering possibilities for shopping, eating, drinking, skateboarding, rock climbing, and visiting exhibitions and events – or simply relaxing by the riverside – the area has already become an award-winning and popular destination for Shanghai residents and visitors alike.
▼夜景鸟瞰,aerial view at night

▼日景鸟瞰,aerial day view


▼GATE M梦中心鸟瞰,aerial view of the GATE M West Bund Dream Center

▼顶视图,top view

该场地原为“上海水泥厂”的所在地,曾是亚洲最大规模的水泥工厂之一。2010年上海世博会成为城市发展的催化剂,促使政府将该区域的工业功能外迁,逐步将黄浦江沿岸还给市民。在此次改造之前,基地上留存有两类建筑:一类为体量宏大的工业遗构,是该区域工业历史的见证;另一类则为未完工的商业建筑,是早期开发失败后留下的遗产。
▼历史照片,historical photos

The site of the GATE M Dream Center was once home to the Shanghai Cement Factory, at one time the largest cement factory in Asia. The 2010 Shanghai Expo provided the catalyst for the city to relocate the factory, along with other industrial functions in this part of the city, and to make the banks of the Huangpu River accessible to the city’s residents. Before MVRDV’s transformation, the site was home to two very different sets of buildings: a handful of large industrial structures provided reminders of the area’s history, while the in-between spaces hosted unfinished constructions from a prior development attempt that never came to fruition.
▼沿江视角,view along the river

▼由街区看江景,viewing the river from the district

▼GATE M梦中心,GATE M West Bund Dream Center

▼滨水慢行区,waterfront walking area

MVRDV负责整个梦中心的总体规划,并亲自设计了南侧建筑群,其中包括核心建筑“M工厂(M Factory)”。基地北部的商业建筑由大舍建筑设计事务所设计,西岸Dome艺术中心则由Schmidt Hammer Lassen操刀,最北端的新“上海西岸剧院”也由其完成。在设计策略上,MVRDV选择尊重并保留场地中的历史遗存,避免因拆除与重建所造成的碳排放与建筑废料。
MVRDV designed the masterplan for the entire Dream Center site, and also created the architectural designs for the southern half of the site, including the centrepiece, the M Factory. The commercial buildings in the northern part of the site were elaborated by Atelier Deshaus, while Schmidt Hammer Lassen designed the West Bund Dome Art Centre, and the new Shanghai West Bund Theatre at the site’s northern end. In their design, MVRDV opted to work with all of these elements of the site’s history, minimising the carbon emissions and waste materials associated with demolishing and rebuilding the structures.
▼GATE M梦中心立面,facade of the GATE M Dream center

▼GATE M梦中心外观,exterior view of the GATE M Dream center

▼亮橙色楼梯,Bright orange stairs



▼近景,closer view

▼近景,closer view

▼近景,closer view

▼GATE M梦中心内部,interior of the GATE M Dream Center

▼GATE M梦中心内部,interior of the GATE M Dream Center

▼GATE M梦中心内部楼梯,interior staircase of the GATE M Dream Center

▼亮橙色楼梯,Bright orange stairs

▼亮橙色楼梯,Bright orange stairs

▼室内,interior

▼亮橙色楼梯内平台,landing of the bright orange stairs

▼露台,terrace

▼露台,terrace

改造后的工业筒仓与工厂建筑成为新区域的视觉核心。这些粗犷而富有纪念性的混凝土体量,在亮橙色楼梯与电梯井的点缀下获得了强烈的视觉识别度。在巨大的“M工厂”底层设有“BLOOMARKET”复合餐饮空间,融合了集市与高端用餐体验;而通过原有传送带改造的橙色楼梯可通往上层的多功能无柱文化空间,可用于展览、会议、时装秀与演出等活动。原筒仓则被改造成室内攀岩馆,其外立面设有攀岩路线,引导人们登上屋顶或一层露台,俯瞰江景。
The remaining industrial silos and factory buildings form the focal points of the new zone. These raw, monumental concrete structures bring a clear sense of history and identity, made more striking by the addition of bright orange staircases and elevator shafts to their exteriors. On its lower floor, the massive M Factory building hosts BLOOMARKET, which combines a food market and a fine dining experience, while the upper floor – accessible via an orange staircase created from what was once a conveyor belt – hosts a large, column-free cultural space that can be used for anything from exhibitions and conferences to fashion shows and stage performances. Meanwhile, the large silo building has been converted internally to become a centre for rockclimbing, with orange routes on the exterior that invite people to viewing platforms on the roof and a first-floor balcony.
▼改造后的工业筒,the remaining industrial silos


▼沿江视角,view along the waterfront

▼粗犷而富有纪念性的混凝土体量,rough and monumental concrete volume

▼筒仓,Silo

▼筒仓与亮橙色楼梯,Silo and Bright orange staircase

▼外观,exterior view

▼底部空间,ground floor space

▼筒仓与其它建筑的衔接,The connection between the Silo and other buildings

▼细部,details

在这些具有标志性的工业遗构之间,原未完工建筑则被改造成商铺、餐厅与酒店,采用中性立面、绿色屋顶与室外露台。它们围合出滨水公共空间,并由Field Operations完成整体景观设计。
Around these enigmatic industrial buildings, the more recent unfinished structures have been completed as shops, restaurants, and hotels, with neutral façades, green roofs, and outdoor terraces. They define a public space that capitalises on its waterfront location, with a landscape design by Field Operations.
▼鸟瞰,aerial view

▼鸟瞰,aerial view

▼屋顶绿化与露台,green roof and terrace

作为西岸新兴的公共活力节点,“GATE M梦中心”迅速成为城市热点地标。其中,庞大的“M工厂”也成为最理想的城市广告牌,吸引人们参与场内活动。该项目已获得“城市更新年度大奖”、“上海优秀城市更新项目奖”以及“IDEAT未来大奖”等多项荣誉。它也清晰地表明:为了彻底焕新城市,我们或许并不需要建造那么多新的建筑。
Providing an active and exciting public space on this part of the riverbank for the first time, the GATE M Dream Center has already proven a popular destination, and the huge frame of the M Factory has served as an ideal billboard for attracting people to the events taking place inside. The success of this transformation has already helped propel the project to award wins in the China Urban Renewal Annual Award, the Shanghai Excellent Urban Regeneration Projects Awards, and the IDEAT China Future Awards – clearly demonstrating that to emphatically renew our cities, we may not need to build many new structures at all.
▼滑板公园,Skate park

▼沿江步道,walking area along the river

GATE M梦中心是全球城市发展趋势的缩影:原本位于城市边缘的工业地块,正被城市扩展所吸纳,必须适应新的城市语境。世界各地不断思考,如何将工业遗产转化为新的功能载体,成为邻里生活的一部分。MVRDV的实践亦不断回应这一趋势:目前正在进行的项目包括杭州与马托西纽什的炼油厂更新、焚烧厂改造计划,以及荷兰艾默伊登钢厂的未来愿景。过往案例如“Roskilde音乐文化园区”将一座水泥厂改造成集校园、节日与流行文化博物馆于一体的活力场所。这些实践证明:创造性地再利用,既可赋能城市空间,也能重塑社区生活。
The GATE M Dream Center is an example of a broader global trend in which former industrial sites are absorbed by the expansion of cities and must adapt to their new urban contexts. Around the world, growing cities are rethinking how industrial structures can be transformed to serve new purposes and become better neighbours as they shift from isolated industrial estates to thriving neighbourhoods. MVRDV’s portfolio reflects this development: the firm is currently working on transformations of an incinerator, of oil refineries in Hangzhou and Matosinhos, and has proposed a vision for a steel factory near IJmuiden. Past projects include the Rockmagneten masterplan, which turned a concrete factory into a cultural and educational campus including the Roskilde Festival Højskole and the Ragnarock museum of pop, rock, and youth culture. Each of these projects demonstrates the value that creative reuse can bring to both the urban environment and the communities around it.
▼GATE M梦中心夜景,night view of the GATE M dream center



▼筒仓夜景,Night view of silo

▼筒仓夜景,Night view of silo

▼筒仓场地平面图,Silo site plan

▼筒仓一层与二层平面图,Silo floorplan level 1 + 2

▼筒仓三层与玻璃屋顶平面图,Silo floorplan level 3 + glass roof

▼筒仓四层与屋顶平面图,Silo floorplan level 4 + roof

▼筒仓北立面与东立面,Silo elevations north + east

▼筒仓南立面与西立面,Silo elevations south + west

▼筒仓剖面图,Silo sections

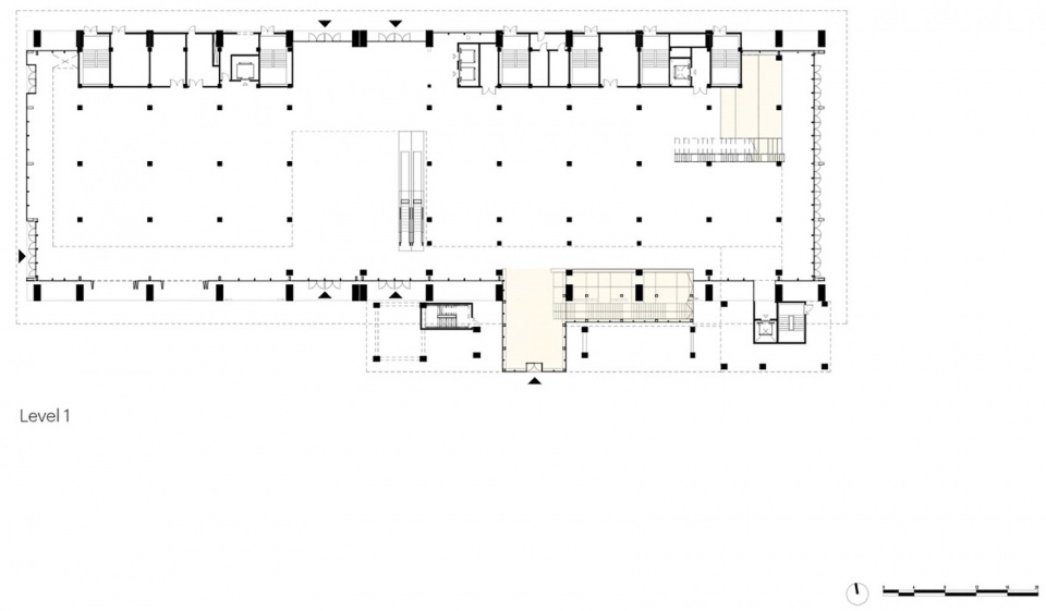
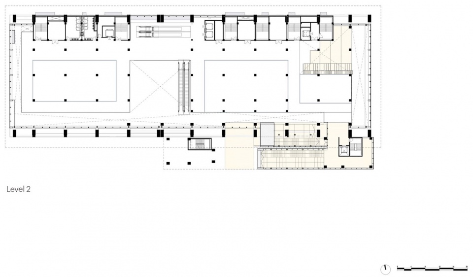
▼厂房场地平面图,Factory site plan

▼厂房一层平面图,Factory floorplan level 1

▼厂房二层平面图,Factory floorplan level 2

▼厂房三层平面图,Factory floorplan level 3

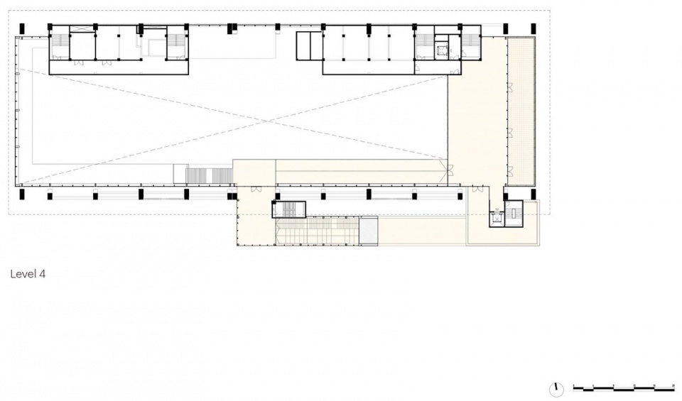
▼厂房四层平面图,Factory floorplan level 4

▼厂房屋顶平面图,Factory floorplan roof

▼厂房东立面与北立面,Factory elevations east + north

▼厂房西立面与南立面,Factory elevations west + south

▼厂房剖面图,Factory sections

Facts
Project Name: Shanghai Gate M West Bund Dream Center
Location: Shanghai, China
Year: 2021–2025
Client: Hua Zhi Men Capital
Size and Programme: 45,000 m2 Retail, Cultural, Hospitality
Credits
Architect: MVRDV Founding Partner in charge: Jacob van Rijs
Partner: Wenchian Shi
Design Team: Kyo Suk Lee, Peter Chang, Sredej Bunnag, Luca Xu, Shanshan Wu, Yunxi Guo, Albert Parfonov, Amanda Galiana Ortega, Americo Iannazzone, Dorota Kaczmarek, Echo Zhai, Edvan Ardianto, Haocheng Yang, Jiameng Li, Jiani You, Kevin Zhao, Kristina Knauf, Meng Yang, Ming Kong, Martin Chen, Sen Yang, Shushen Zhang, Siyi Pan, Steven Smit, Tanja Dubbelaar, Xiaoliang Yu, Yayun Liu, Yihong Chen, Evan O’Sullivan, Peilu Chen
Visualisations: Antonio Luca Coco, Jaroslaw Jeda, Luca Piattelli, Marco Fabri, Stefania Trozzi
Director MVRDV Shanghai: Peter Chang
Copyright: MVRDV Winy Maas, Jacob van Rijs, Nathalie de Vries
Partners:
Co-architect: AISA
Landscape architect: Field Operations
Structural: engineer: ARUP, AISA
Façade: consultant: RFR
Interior architect: CL3, Xu Studio
Lighting design: RDI
Photography: Xia Zhi, Liu Guowei, Tian Fangfang, Sanqian Visual Image Art














