10套公共住宅,西班牙 / Javier Gavin Arquitectura + Juan Moreno + Siddartha Rodrigo + DATAAE
位于马略卡岛北部小镇圣玛尔加利达,本项目提出建设一座包含10套公共住宅单元与10个多功能空间的建筑,采用本地材料和/或低环境影响材料进行建造。建筑外部结构采用来自当地采石场的马雷斯砂岩,形成坚固耐久的构造,同时确保建筑与周边环境的融合。室内部分则通过水平向的预制木结构板体系与垂直向的本地砖承重墙结构加以实现,从而提升项目的经济可行性。
Located in Santa Margalida, a small town in the north of Mallorca, the project proposes a building with 10 social housing units and 10 multipurpose spaces, constructed using local and/or low environmental impact materials. The exterior structure is built with marés sandstone from local quarries, resulting in a robust and durable construction that ensures the building’s integration into its surroundings. The interior is resolved through a horizontal structure of prefabricated timber panels and a vertical structure of load-bearing walls made of locally sourced brick, facilitating the project’s economic feasibility.
▼项目远景,Site overview


项目的技术研究重点在于优化结构构件的厚度,并尽可能减少现场材料用量。在此基础上,通过在相邻开间中交替旋转楼板,使荷载得到最大程度的分配,并实现整体结构的咬合,从而可以采用更为纤细的承重墙并降低建造成本。同时,木楼板被设计为预制板系统,以便于装配并加快现场施工进度。板材的H形截面确保在火灾情况下,水平板可保护搁栅上部,从而在无需添加剂或防火涂料的前提下减少木材用量——完全依赖构件几何形态实现防火性能。
▼预制木楼板构造分解示意,Exploded diagram of prefabricated timber slab system

▼施工过程,Construction process

The project’s technological research focuses on optimizing the thickness of these structural elements and minimizing the amount of material used on site. In this regard, the rotation of floor slabs in alternating bays allows loads to be distributed to the greatest extent and ensures the interlocking of the whole, enabling the use of more slender load-bearing walls and reducing construction costs. Likewise, the timber slabs are designed as a prefabricated panel system, facilitating assembly and speeding up on-site execution. The H-section of the panels ensures that, in the event of fire, the horizontal board protects the upper part of the joists, reducing the amount of timber used in the slabs without the need for additives or fire-retardant varnishes—relying solely on the geometry of its components.
▼建筑立面,Building facade



针对法规中“每户需配置一个停车位”的要求,并考虑到该小镇实际停车需求较低,项目在首层设置了一组多功能空间,用以服务住宅单元并同时满足停车要求。这一策略将规范约束转化为设计机遇,避免了地下车库的建造,从而减少生态负担及额外经济成本(如土方工程、挡土结构等)。最终形成10个直接与街道及后方花园相连的多功能空间,可作为车库、工作坊、附属空间使用,亦可在未来法规允许的情况下转化为最多5套新增住宅单元。
In response to regulatory requirements mandating one parking space per dwelling, and given the low actual demand for parking in the town, the project creates a set of multipurpose ground-floor spaces that support the housing units and can also fulfill this requirement. This strategy turns regulatory constraints into opportunities, avoiding the construction of an underground parking garage and, consequently, the associated ecological footprint and additional economic cost (earthworks, retaining structures, etc.). The result is a system of 10 multipurpose spaces in direct contact with the street and the rear garden, capable of functioning as garages, workshops, complementary spaces, or even accommodating five additional housing units in the future should regulations allow.
▼首层多功能空间与街道开口,Ground-floor multipurpose space opening to the street


▼半室外通道与遮阳顶,Semi-outdoor passage with shading roof structure


▼楼梯间,Staircase

在上部楼层中,建筑较小的进深被用于构建双朝向住宅,实现交叉通风,强化“在室外之间生活”的理念。房间以错动方式组织,形成住宅内部的空间结构。各类户型围绕中央核心布置,形成环形动线,使空间使用更加灵活,并通过长视线延展室内空间感。空间的使用随着一天中太阳的移动而发生变化。
On the upper floors, the building’s limited depth is used to create dual-aspect dwellings with cross ventilation, reinforcing the idea of “living between outdoors.” The staggered arrangement of rooms structures the internal organization of the homes. The typologies are articulated around a central core, generating circular routes that allow flexible use and long sightlines that expand the perception of interior space. The movement of the sun accompanies the use of the spaces throughout the day.
▼室内空间,Interior space


▼室内木结构顶面与自然采光,Timber ceiling structure with natural daylight


▼砖墙围合的厨房空间界面,Kitchen space defined by brick walls

项目通过建筑形体本身来回应舒适性需求,借助被动式系统(如交叉通风、日光廊道、热容量等),实现非可再生一次能源消耗的降至零。在此基础上,所有住宅优先采用东南朝向,并利用立面廊道在寒冷季节作为能量获取空间。在炎热季节,通过卷帘系统为这些空间提供遮阳,阻隔太阳辐射。平面组织形成进深较浅的双朝向住宅,确保交叉通风并充分利用主导风向。
The project seeks to meet comfort demands through the architectural form itself, achieving—through the use of passive systems (cross ventilation, solar galleries, thermal mass, etc.)—a reduction of non-renewable primary energy consumption to zero. In this sense, southeast orientation is prioritized in all dwellings, using façade galleries as energy-capturing spaces during colder months. In warmer months, a system of roller blinds shades these spaces, blocking solar radiation. The floor plan organization results in shallow, dual-aspect dwellings, ensuring cross ventilation and taking advantage of prevailing air currents.
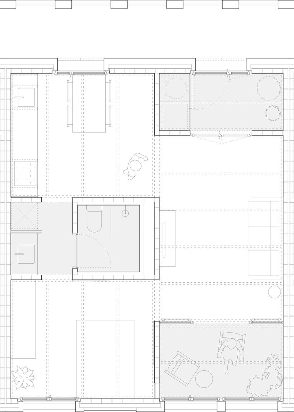
▼平面图,Floor plan


▼公寓平面图,Unit floor plan

▼剖面图,Section

DEVELOPER :
IBAVI (Institut Balear de la Vivienda)
YEAR:
2020-2025
LOCATION:
Santa Margalida, Mallorca, Spain
AREA:
1.111,92m2
AUTHORS:
Javier Gavín, Juan Moreno, Siddartha Rodrigo, DATAAE
TEAM:
QUANTITY SURVEYOR: Maria Antonia Ribas
STRUCTURES: MVA Despatx d’arquitectura i estructures
BUILDING SERVICES: L3J
ENVIRONMENTAL CONSULTANCY: Societat Orgànica
ACOÚSTICS: Àurea acústica
CONTRACTOR:
Construccions Agustí Mascaró SL
PHOTOGRAPHY:
I. Clara Torres González
Joan Cantallops Busquets












