Plantagegatan公寓改造,瑞典 / mnmt
本项目位于瑞典哥德堡一栋历史建筑中,旨在在保留20世纪初原有建筑特质的基础上,通过材料选择、空间组织和居家生活方式的当代表达实现现代更新。设计强调触感材质、柔和过渡和定制木作,在与建筑历史对话的同时,为当代生活赋予新意。
Located in a historic building in Gothenburg, this apartment renovation seeks to balance the building’s early 20th-century character with a contemporary approach to materiality, spatial organization, and domestic life. The design prioritizes tactile surfaces, soft transitions, and custom joinery to reinterpret the apartment for modern living while maintaining a dialogue with its past.
▼入口玄关,entrance area


▼走廊,hallway

▼储存空间,storage


原始布局经过重新规划,改善了功能性与采光流动;材料运用上精心挑选,营造出统一且温暖的空间氛围。全屋铺设赤陶地砖,不仅提供耐用、手工质感的表面,也将不同空间统一起来,节奏感强的图案为空间增添秩序感,同时隐约呼应地中海风格。
The original layout was reconfigured to improve functionality and light flow, while the material palette was carefully curated to create warmth and continuity throughout the space. Terracotta tiles were introduced across the floors, offering a durable, handcrafted surface that unifies the apartment and connects its various rooms. Their rhythmic pattern adds a subtle spatial order and a visual link to Mediterranean influences.
▼客厅入口,entrance of the living room

▼客厅,living room

▼书桌细部,details of the study area

厨房部分,红色陶瓷砖从工作台延伸至防溅墙,下柜则以深钴蓝色的窗帘代替传统门板,向斯堪的纳维亚传统厨房致敬。定制的白蜡木搁架结合未经处理的MDF滑门,软化了整体视觉效果,并提供充足的收纳空间。
In the kitchen, red ceramic tiles continue across the worktop and backsplash, paired with a curtain in deep cobalt blue that replaces lower cabinet doors—a nod to traditional Scandinavian kitchens. Custom shelving in ash with sliding doors in untreated MDF softens the overall aesthetic while providing generous storage.
▼餐厅厨房入口,entrance of the kitchen-dining

▼餐厅厨房,the kitchen-dining

▼布帘系统,curtain system

▼厨房细部,details of the kitchen


▼细部,details


浴室采用简洁的哑光白色瓷砖网格铺设,辅以集成松木木作及半透光浴帘,让光线柔和渗透,构建出宁静、实用的氛围。这一空间与项目整体追求的材料真实感与空间清晰度相呼应。
The bathroom features a minimal, grid-tiled interior in matte white, with integrated pine joinery and a semi-translucent shower curtain that filters light. This quiet, functional space aligns with the project’s overall emphasis on material honesty and spatial clarity.
▼浴室,bathroom


色彩使用克制却极具用意——鼠尾草绿的门与管道对比粉调墙面与地砖,在保持宁静色调的基础上,微妙地点亮空间的层次感。
Color is used sparingly but intentionally—sage green doors and piping contrast with the pink-toned walls and floors, subtly highlighting thresholds and adding depth without overwhelming the calm palette.
▼鼠尾草绿的门与管道对比粉调墙面与地砖,
sage green doors and piping contrast with the pink-toned walls and floors



通风管道、暖气片等裸露设施保留可见,并统一刷成与主色调协调的色彩,进一步凸显项目内敛而实用的美学。定制家具、织物隔断与嵌入式书架,共同营造出一个兼具功能性与氛围感的居家环境。
Exposed utilities, such as ventilation ducts and radiators, are left visible and painted in tones that integrate with the palette, further emphasizing the project’s restrained, utilitarian elegance. Custom furniture, textile partitions, and built-in shelving complete a space that is as functional as it is atmospheric.
▼卧室入口,entrance of the bedroom


▼细部,details

▼由卧室看客厅,viewing the living room from the bedroom

此次改造并非对空间施加全新身份,而是将原有建筑气质自然延续至当代语境中。通过温和的干预与精致的细节处理,设计强化了日常生活的仪式感,欣赏材料的自然肌理,营造出一个宁静、永不过时的家。
This renovation aims not to impose a new identity but to extend the apartment’s original character into a contemporary context. Through modest interventions and thoughtful detailing, the design enhances daily rituals, embraces material imperfection, and offers a calm and timeless domestic environment.
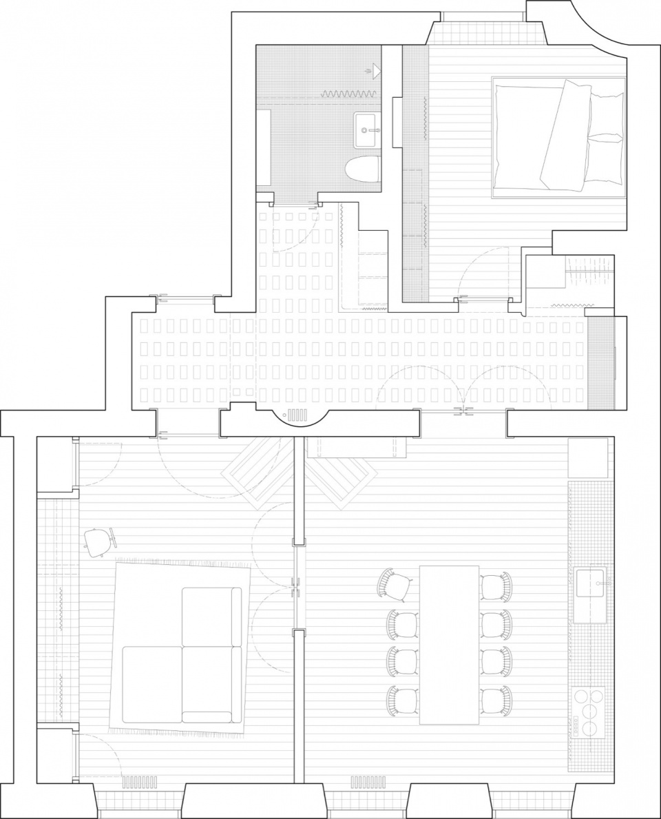
▼平面图,plan

Project name: Plantagegatan
Office name: mnmt
Website: http://www.mnmt.se/
Contact e-mail: mathias@mnmt.se
Project location: Gothenburg, Sweden
Completion Year: 2024
Photo credits: Roger Sandberg / @ryssfoto (Instagram)














