安仁里社区,成都 / 中国建筑设计研究院有限公司 胜景几何设计研究中心(原李兴钢建筑工作室)
安仁里社区位于四川成都近郊安仁古镇的外围,比邻安仁5A级游客中心(由遗存民国时期文保建筑廖维公馆改扩建而成)、安仁客运站、城镇主干道,用地面积64265.24㎡,总建筑面积69873.57㎡,容积率1.09,为商住混合功能。
Located on the outskirts of Anren Ancient Town, Chengdu, Sichuan, the Anrenli Community is adjacent to the Anren 5A Tourist Center (expanded from the preserved cultural relic building, Liao Wei Residence, from the Republic of China era), the Anren Passenger Station, and the main urban thoroughfare. Covering a land area of 64,265.24㎡, the community boasts a total construction area of 69,873.57㎡ and a floor area ratio of 1.09, serving mixed commercial and residential purposes.
▼社区东侧鸟瞰,Aerial view from the east side of the community

▼社区东南侧鸟瞰,Aerial view from the southeast side of the community

▼东北侧鸟瞰,Aerial view from the northeast side of the community

项目所处的位置是城镇扩张和自然农田的交接处。社区比邻的廖维公馆被作为历史遗存改造利用,作为游客中心为外来游客提供接待和配套服务,并激发了包括本项目在内的周边新兴社区建设,正如同安仁古镇本身因商业聚集而扩张和演变。但历史建筑的轴向与新规划城镇道路存在轴向差异,反映出自上而下的城镇规划与历史遗存之间疏离的关系。设计选择从场地的历史本底出发,在空间格局和功能定位上将公馆作为起点,由此生发出建筑、街道、广场与景观,形成与场地历史基因联结的社区。
▼场地轴线冲突分析图,Analysis diagram of site axis conflicts

The location of the project is at the junction of urban expansion and natural farmland. The Liao Wei Mansion adjacent to the community has been transformed and utilized as a historical relic, serving as a tourist center to provide reception and supporting services for visitors from outside. This has also stimulated the construction of emerging communities in the surrounding areas, including this project, just as the Anren Ancient Town itself has expanded and evolved due to commercial agglomeration. However, there is an axial difference between the historical buildings and the newly planned urban roads, reflecting the estrangement between the top-down urban planning and the historical relics. The design choice starts from the historical background of the site. In terms of spatial layout and functional positioning, the mansion is taken as the starting point, from which buildings, streets, squares and landscapes are generated, forming a community that is connected with the historical genes of the site.
▼居住组团鸟瞰,Aerial view of the residential cluster

▼独栋院落住区,Single-family courtyard residential area

▼独栋院落林盘组团,Linpan cluster formed by single-family courtyards

文化基因:由历史遗存衍生而成的社区Cultural Heritage: A Community
Derived from Historical Relics
在安仁古镇乃至川西聚落演变的过程中,产生了多种与地方气候人文联系密切的聚落类型,包括与农业和自然联系的林盘、与商业和城镇化联系的场镇等。设计将这些聚落类型作为历史参照,塑造了社区中不同的套型建筑、开敞空间类型,并与当代的居住和商业方式匹配,塑造了缩微的、具有历史文化文脉的当代商住市镇。聚落类型的传承利用并非仅仅聚焦于建筑单体塑造,更在于群体性外部环境。在气候与文化的作用下,川西各种聚落类型先天对外部环境有着独特的塑造力,通过类型的集聚所塑造的社区公共空间具备了通常新建社区难以企及的丰富性、层次性与多义性。不同类型建筑的高度、尺度各异,通过精心布局,社区实现了由外部市井襁褓向内部山水田园的自然过渡。
▼安仁古镇生长演变示意,Schematic diagram of the growth and evolution of Anren ancient town

▼场地原貌,Original site appearance

During the evolution of Anren Ancient Town and even the settlements in western Sichuan, various settlement types closely linked to local climate and culture emerged, including Linpan (a traditional rural settlement surrounded by bamboo groves and water) connected to agriculture and nature, and Changzhen (market towns) connected to commerce and urbanization. These settlement types serve as historical references in the design, shaping diverse residential building types and open space types within the community, matching contemporary living and commercial patterns, and creating a miniature contemporary commercial and residential town with historical and cultural context. The inheritance and utilization of settlement types focus not only on individual building shaping but also on the collective external environment. Influenced by climate and culture, various settlement types in western Sichuan inherently possess unique shaping capabilities for the external environment. The communal public spaces shaped by the aggregation of these types exhibit richness, layering, and polysemy that are often unattainable in newly built communities. With varying heights and scales of different building types, the community achieves a natural transition from bustling external market streets to serene internal landscapes through careful layout.
▼社区商街外界面鸟瞰,Aerial view of the external interface of the community commercial building

▼社区商街中部公共空间,Public space in the middle of the community commercial building

▼社区商街大台阶,Grand staircase in the community commercial building

以林盘作为历史参照,在地块中心设置了由五个组团组成的独栋院落住区。各组团通过独栋建筑的错落布局围合出一个内部的半私密围院,各住宅向内开口通过围院间接与社区主要步道联系,塑造了一个具有稳固社区关系的居住组团。独栋院落式住宅设有两种面积段套型(117㎡和88㎡),与红砖和灰砖两种色彩进行组合,每栋均为独立户,以高度的集成单元化形成丰富的外部空间形态。
▼社区生长示意图,Schematic diagram of the growth and evolution of the community

▼功能空间类型分布与流线公共层级示意,Schematic diagram of functional space type distribution and public hierarchy of circulation routes

Using Linpan as a historical reference, a detached courtyard residential area consisting of five clusters is set up in the center of the plot. Each cluster encloses an internal semi-private courtyard through the staggered layout of detached buildings. Each residence opens inward, connecting indirectly with the community’s main walkways through the courtyard, creating a residential cluster with strong community ties. The detached courtyard houses come in two area ranges (117㎡ and 88㎡), combined with two colors of red and gray bricks. Each house is an independent unit, forming a rich external spatial form through highly integrated modularization.
▼院落组团,Courtyard cluster

▼独栋院落住宅,Single-family courtyard house

▼独栋院落住宅,Single-family courtyard house

以场镇作为历史参照,在地块东侧临游客中心和商业部分设置两列联排商住区,与商业区、独栋院落区之间形成三条尺度和氛围各不相同的街道。两个套型竖向叠拼一个三层高商住单元(57㎡、63㎡),入户门和入口庭院在首层并置;两个单元背靠组合为完整建筑体量。
Using Changzhen as a historical reference, two rows of terraced commercial and residential areas are set up on the east side of the plot, adjacent to the tourist center and commercial section, forming three streets with varying scales and atmospheres between the commercial area and the detached courtyard area. Two unit types are vertically stacked to form a three-story commercial and residential unit (57㎡ and 63㎡), with entrance doors and courtyards juxtaposed on the ground floor; two units are combined back-to-back to form a complete building volume.
▼联排商住区,Townhouse commercial-residential area

▼联排商住区,Townhouse commercial-residential area

以楼院作为历史参照,在用地外围设置5栋5层高、一梯两户的单元式集合住宅。两种主户型(面积段90㎡、100㎡)南北通透,主要居室面向社区中心花园景观。以传统院集作为历史参照,使商业活动在多个楼层依靠游廊与院落展开。不同楼层在院落和游廊的渗透下呈现多样业态。
Using Louyuan (multi-story residential buildings with shared courtyards) as a historical reference, five five-story unit-type apartment buildings with one staircase per two households are set up on the periphery of the land. The two main unit types (90㎡ and 100㎡ in area) are transparent from north to south, with main living rooms facing the central garden landscape of the community. Using traditional courtyard and street complexes as a historical reference, commercial activities are carried out on multiple floors relying on verandas and courtyards. Different floors present diverse business formats under the infiltration of courtyards and verandas.
▼单元式集合住宅,Unit-type collective housing

▼单元式集合住宅,Unit-type collective housing

▼单元式集合住宅,Unit-type collective housing

新型社区邻里关系:多层级公共空间与交往系统New Community Neighborhood Relations:
Multi-level Public Space and Communication System
社区的居民主要由两类人群组成,本地居民将此作为改善型住房长期生活,外来居民或将此作为周末度假屋,或将此作为投资性产权进行民宿等与古镇文旅相关的轻商业经营。设计通过建筑、空间类型与套型、户型特征有机结合,营造多层次、多尺度,具有公共性和私密性级差,又相互渗透和可适时灵活转换的公共空间系统,塑造了鼓励邻里交往、城乡交流、具备文化认同感的社区邻里关系。
The community’s residents mainly consist of two groups: local residents who use it as improved housing for long-term living, and external residents who either use it as weekend getaways or for light commercial operations related to cultural tourism in the ancient town, such as homestays, as investment properties. Through the organic integration of architectural and spatial types with different residential unit characteristics, the design creates a multi-level, multi-scale public space system with varying degrees of publicity and privacy, which is also interpenetrating and can be flexibly converted as needed, fostering community neighborhood relations that encourage neighborhood interaction, urban-rural exchange, and cultural identity.
▼居住组团间的街巷,Streets and alleys between residential clusters

▼联排商住区内巷,Internal alleyways in the townhouse commercial-residential area

社区外围的联排与商业建筑之间形成了公共性的商街,一端联系商业主入口,一端通往社区人行入口广场,后者由社区寨门和作为游客中心和社区活动中心的公馆围合而成,并设有戏台,是社区最为公共的开敞活动场所。在此处,邻里之间、居民和游客可共同开展商业和休闲活动。
A public commercial street is formed between the terraced and commercial buildings on the periphery of the community, connecting one end to the main commercial entrance and the other to the community pedestrian entrance square, which is enclosed by the community gate and the residence serving as the tourist center and community activity center, and features a stage. It is the most public open activity space in the community, where neighbors, residents, and tourists can jointly engage in commercial and leisure activities.
▼寨门,Entrance gate to the residential area

▼进入寨门后的住区公共景观,Public landscape after the entrance gate

中心院落住区与四周的联排、集合住宅之间距离宽敞,限定出环绕社区一周的步道,社区内所有居民都在此处漫步活动,它虽是几类住区之间的边界,但亦是不同住区居民进行公共交往的场所。
The central courtyard residential area and the surrounding terraced and apartment buildings are separated by wide distances, defining a walkway that encircles the community. All residents in the community stroll here, and although it serves as a boundary between several residential areas, it is also a place for public interaction among residents of different areas.
▼街巷向林盘式住区过渡,Transitional space from streets and alleys to the Linpan-style residential area

环路向联排塑造的街巷延伸,公共性逐渐降低,活动人群逐渐向联排居民限定。环路围合的中心院落住区并非一个密不透风的整体,而是由5个组团组成,组团之间形成3条蜿蜒曲折的园路。它们既在环路之间为全社区居民提供了便捷路径和颇具私密感和意趣的休憩场所,也是林盘组团居民的归家必经之路。
The ring road extends into the streets and alleys shaped by the terraced buildings, with gradually decreasing publicity and a gradually limited activity crowd towards the terraced residents. The central courtyard residential area enclosed by the ring road is not a monolithic entity but consists of five clusters, between which three winding garden paths are formed. They not only provide convenient paths and private and interesting resting places for all community residents between the ring roads but also serve as the necessary routes home for residents of the Linpan clusters.
▼院落组团间公共空间,Public space between courtyard clusters

院落住区每个林盘组团内都有一个内向围院,它与园路有谨慎和不经意的联系,所有独栋住宅的入口向内开设于此,它是社区内私密性最强的公共空间,强化了林盘组团内邻里关系的向心性,鼓励了小范围但是精确的邻里交往活动。
Each Linpan cluster in the courtyard residential area has an inward-facing courtyard, which is cautiously and casually connected to the garden paths. The entrances of all detached residences open inward here, making it the most private public space in the community, strengthening the centripetal nature of neighborhood relations within the Linpan clusters, and encouraging small-scale but precise neighborhood interaction activities.
▼独栋院落住区园路,Garden paths in the single-family courtyard residential area

设计通过单元式集合住宅的围合,塑造了四周向中心跌落的空间盆地,借由错落有致的院落住宅和丰茂乔灌融合,塑造了林盘一般的中心花园景观,草地如田野、步道如田埂穿梭期间,并伴有潺潺流水,营造了远离城市喧器、栖居乡野的生活意趣。同时,院落、联排和集合住宅的首层套型均有独属于居民的小院可供自发种植。每个居民都参与了社区景观可控而又充满自发性的营造活动中,这正是安仁林盘邻里聚集、生长扩展的人文精神延续。
Through the enclosure of unit-type apartment buildings, the design creates a spatial basin that falls towards the center. By integrating staggered courtyard residences with lush trees and shrubs, it shapes a central garden landscape reminiscent of Linpan, with grassy areas like fields and walkways like ridges meandering through, accompanied by the gentle sound of flowing water, creating a lifestyle interest of residing in the countryside away from the hustle and bustle of the city. Meanwhile, the ground-floor units of the courtyard, terraced, and apartment buildings all have private courtyards exclusively for residents’ spontaneous planting. Each resident participates in the controlled yet spontaneous creation of the community landscape, which is precisely the continuation of the humanistic spirit of Anren Linpan’s neighborhood gathering, growth, and expansion.
▼独栋院落围合的半私密院坝空间,Semi-private enclosed courtyard outside the single-family courtyard

▼独栋院落围合的半私密院坝空间,Semi-private enclosed courtyard outside the single-family courtyard

社区精神:祠堂引导的文化身份重构Community Spirit: Cultural Identity
Reconstruction Guided by Ancestral Halls
廖维公馆是安仁里社区建筑与空间设计和生发的起点,甚或进一步影响未来周边社区的规划建设。建成之后的社区,居民的公共生活又最终回到廖维公馆,在这里开展多种多样有组织的亦或自发的社区公共活动。公馆之于社区,如同安仁古镇的祠堂之于整个家族群落,发展的根源和血脉从这里出发,开枝散叶后的归家精神又最终回到此处。
The Liao Wei Residence serves as the starting point for the architectural and spatial design and development of the Anrenli Community, and even further influences the planning and construction of future surrounding communities. After completion, the public life of community residents ultimately returns to the Liao Wei Residence, where various organized or spontaneous community public activities take place. The residence is to the community what the ancestral halls of Anren Ancient Town are to the entire clan community—the root and lifeblood of development emanate from here, and the homecoming spirit after branching out ultimately returns to this place.
▼商街内界面与商住街巷的衔接,Connection between the inner interface of the commercial building and the commercial-residential alleys

▼社区商街内界面,Internal interface of community commercial buildings

▼总平面图,Masterplan

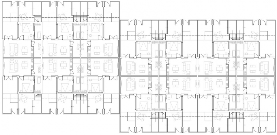
▼社区组合平面图,Community composite floor plan

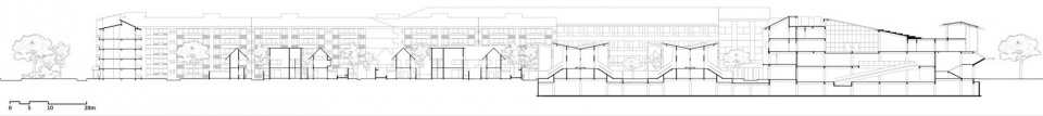
▼社区剖面图,Community composite section

▼独栋院落平面图,Ground floor plan of detached courtyard house

▼联排商住平面图,Ground floor plan of townhouse with commercial and residential functions

▼集合住宅平面图,Floor plan of apartment complex

▼商街二层、三层平面图,Plan of the second and third floors of the commercial street

Project Name: Anrenli Community
Project Type: Planning/Architecture/Landscape
Project Location: Anren, Chengdu, Sichuan, P. R. China
Completion Status: Completed
Design Period: October 2018 – August 2019
Construction Period: August 2019 – July 2022
Land Area: 64,265㎡
Building Area: 69,874㎡
Client: Chengdu Anren OCT Renjia Cultural Tourism Development Co., Ltd.
Design Firm: China Architecture Design & Research Group Co., Ltd., Scenery Geometry Design and Research Center (formerly Li Xinggang Architecture Studio)
Project Leaders: Li Xinggang, Liu Zhen
Project Manager: Tan Zeyang
Architectural Design: Hou Xinjue, Yu Anran, Sun Zhixing, Li Yunle, Li Mingyan, Li Yunqian, Liang Yixiao
General Layout Design: Gao Zhi, Zhou Qingzhao
Landscape Design: Guan Wujun, Lu Lu, Feng Ran, Wei Xiaoyu, Liu Binying, Zhao Jinliang
Collaborative Design and Consulting Firms
Architectural Construction Drawing Design: China Building Technique Group Co., Ltd.
Landscape Construction Drawing Design: Chengdu Sina Yulian Architectural Design Co., Ltd.
Construction Firm: The Third Construction Co., Ltd. of China Construction Eighth Engineering Division
Materials: Textured Bricks, Stainless Steel, Cement Boards, Wood Veneer Panels, Paint
Photographer 1: Tian Fangfang
Photographer 2: Chengdu Anren OCT Renjia Cultural Tourism Development Co., Ltd.
Video Copyright: STUDIO FANG














