「神仙俱乐部GODCLUB」,重庆 / 有物空间设计
项目定位与精神内核Project positioning and core spirit
「神仙俱乐部GODCLUB」坐落于重庆人气景区“下浩里”,是一座以东方神话为精神内核的沉浸式策展型商业空间。我们通过重构传统神仙文化与当代潮流语境的对话,打造集新中式美学、潮玩社交、文化体验于一体的“神仙游园会”。我们希望创造一个放松、好玩的歇脚处,让这里成为人海景区里的“曲径通幽CHILL处”
“GODCLUB” is located in the popular scenic spot “Xiahaoli” in Chongqing. It is an immersive curatorial commercial space with Eastern mythology as its spiritual core. By reconstructing the dialogue between traditional immortal culture and the contemporary trend context, we have created the “Immortal Garden Party” that integrates new Chinese aesthetics, trendy social interaction, and cultural experience. We hope to create a relaxing and fun place to rest, making it a “secluded and CHILL spot” in the human Sea scenic area.
▼项目概览,overall of the project

历史建筑与场域新生The rebirth of historical buildings and sites
项目的建筑本身始建于1911年开埠时期的白理洋行,结合项目产品属性,我们在这两栋中西合璧的建筑之间,巧妙植入了一个充满东方气质的林院,清晨醒脑的咖啡和傍晚微醺的暧昧,皆在此间流转发生。氤氲的薄雾不时会弥漫院中,届时,落座的客人仿佛与这喧闹的景区,短暂隔离开来,游走于“境”与现实的双重世界。
The building of the project itself was originally constructed by the Baili Trading Company during the opening of the port in 1911. In line with the product attributes of the project, we ingeniously incorporated a forest courtyard with an Oriental charm between these two buildings that blend Chinese and Western styles. The refreshing coffee in the morning and the slightly tipsy atmosphere in the evening all take place here. From time to time, a misty haze would fill the courtyard. At that moment, the guests who had taken their seats seemed to be temporarily separated from this bustling scenic area, wandering in a dual world of “environment” and reality.
“古”与“今”的连接
The connection between “ancient” and “modern”.
▼外观夜景,night view of exterior

▼户外空间,outdoor terrace


制作咖啡和精酿的小楼阁,作为一个新生体,搭建于两栋百年建筑之间,它的身份,像是一个年轻的后辈,首次牵起了两栋百年建筑的手,使其在繁华闹市中苏醒,同时又保留着那一份独有的宁静。这份自然宁静,也吸引着周围的小动物们。图中这只猫名字叫“麻圆”(来自我们下浩里另一个项目),便常爱在此流连,于人来人往的路边或竹林间安然酣睡。
▼小猫“麻圆” &细部,the cat and details

The small pavilion for making coffee and craft beer, as a new entity, is built between two century-old buildings. Its identity is like that of a young successor, holding the hands of the two century-old buildings for the first time, awakening them in the bustling city while still retaining that unique sense of tranquility.
This natural tranquility also attracts the small animals around. The cat in the picture is named “Ma Yuan” (from another project of our Xihaoli), and it often lingers here, sleeping peacefully by the busy roadside or among the bamboo groves.
▼制作咖啡和精酿的小楼阁,the small pavilion for making coffee and craft beer


▼制作咖啡和精酿的小楼阁,the small pavilion for making coffee and craft beer


入境之径The route to entry
通往室内的入口,有一小段石板步道,我们用常见的熏蒸竹竿规整了它整个稍显迂回的路径,末端则穿插着一些现代质感的金属竹竿,从院口的竹林,经步道步入室内,路径上仿佛无形中带过了一些时间的证据,从新生,到老去……
At the entrance to the interior, there is a short stone-paved walkway. We have arranged the entire slightly winding path with common fumigated bamboo poles, and at the end, some modern-textured metal bamboo poles are interspersed. From the bamboo forest at the entrance of the courtyard, one enters the interior through the walkway. It seems as if some evidence of time has passed along the path, from birth to old age…..
▼入口石板步道,entrance to the interior


▼入口空间一角,a corner of the entrance

▼金属竹竿,the metal bamboo pole

▼细部,details


洞见“仙踪”Insight into “Traces of Immortality”
山中有洞,洞中有仙,进入室内的第一眼是我们和工人师傅以及甲方伙伴一起,现场用泡沫,铁丝,和黑色腻子手工削,凿出来的“洞”艺术装置。
There are caves in the mountains and immortals in the caves. The first thing that catches the eye when you enter the room is the “cave” art installation that we, along with the workers and the client partners, have hand-carved and chiseled on the spot using foam, iron wire and black putty.
▼室内空间,interior space

▼从银色葫芦看“洞”,viewing the hole from the silver gourd

而此“洞”,也将成为空间中的精神分界点。以“洞”为界限,左边是带给人们财富,希望的财神爷专属空间,潮玩达人们可在此虔诚祈愿。右边是能带给人们福气,福禄的银色葫芦镇场神器,其周边陈列着各类精美的潮玩IP商品。神仙俱乐部本身有很多自己研发设计的东方神话人物IP形象,他们也都分别镇守于墙面的壁龛内,静待与有缘且心怀善念的人相遇。
And this “hole” will also become the spiritual dividing point in the space. With the “hole” as the boundary, on the left is the exclusive space of the God of Wealth, which brings people wealth and hope. Here, trendsetters can sincerely pray. On the right is a silver gourd that can bring people good fortune and prosperity as the main attraction. Around it are displayed various exquisite trendy IP products. The Immortal Club itself has many IP images of Eastern mythological figures developed and designed by itself. They are all respectively stationed in niches on the wall, waiting to meet people with a karmic connection and good intentions.
▼“洞”艺术装置,the “hole”

▼细部,details


▼细部,details


▼细部,details


▼一角,a corner

穿境而归Return through the realm
当游走完室内空间,回望来路,与不远处的东水门大桥遥遥相望,缓步而出,仿佛完成了一次从“境”向现实的穿越。如果是在傍晚桥未亮灯时步入室内,而步出时恰好看到桥灯初亮的一刻,目睹山城魔幻夜景被瞬间点亮,这份独特的浪漫与震撼,必将是一场难忘的体验。
After wandering through the interior space and looking back at the way I came, I saw the Dongshuimen Bridge not far away. Walking out slowly, it seemed as if I had completed a journey from the “environment” to reality. If you step into the room before the bridge lights up in the evening and just happen to see the bridge lights come on when you step out, witnessing the magical night view of the mountain town being instantly illuminated, this unique romance and shock will surely be an unforgettable experience.
▼山城夜景,night view

▼景观,landscape


▼细部,details


▼夜景,night views


▼施工过程,construction process




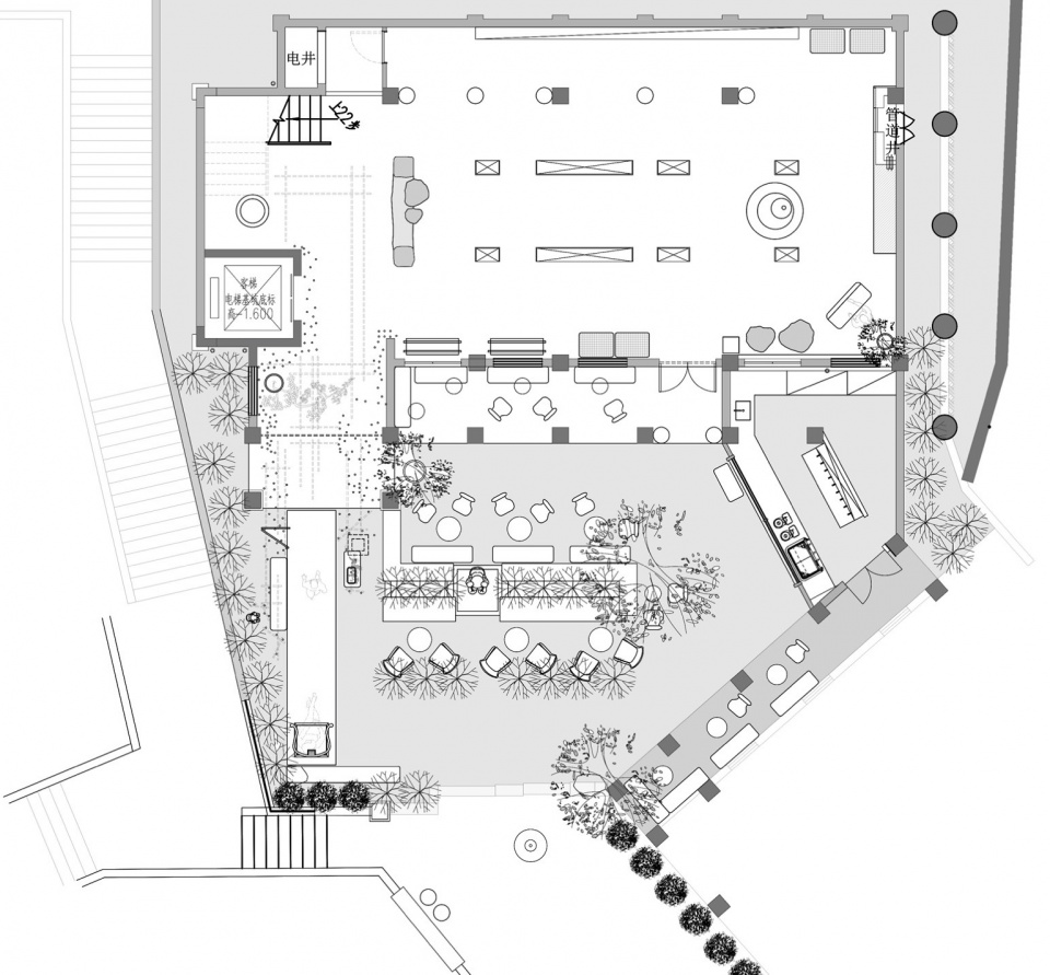
▼平面图,plan

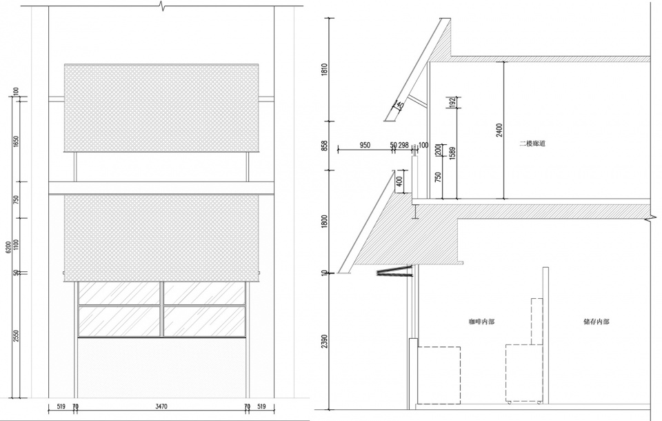
▼立面图与剖面图,elevation and section

Project name: GODCLUB
Project type: Commercial Space
Design: Youwuu Space Design
Contact e-mail: 30961146@qq.com
Design year:2025.4
Completion Year:2025.6
Leader designer & Team: Que Guiping, HuangLei,Pi Honglin
Project location: Chongqing
Gross built area: 280㎡
Photo credit: Pianfang Photography (Shi Zifeng)














