铁门关华山中学新校区一期设计 / 中锐华东荣朝晖工作室 + 趣锐(上海)建筑设计有限公司
大漠Desert Wilderness
华山高级中学位于塔克拉玛干沙漠北缘的铁门关市 —— 一座年轻的城市。尽管城内绿树成荫,不远处寸草不生的裸岩山体却提醒着这里年降水量不足 20mm 的严酷底色。在这样的土地上,人类的存在本身就是一首英雄史诗,而以华山教育联盟为主体的学校便是这片土地上最温暖的庇护所。
Huashan High School is located in Tiemenguan City, on the northern edge of the Taklamakan Desert – a young city. Although the city itself is shaded by green trees, the barren, rocky mountains nearby starkly remind us of the harsh reality of an annual rainfall below 20 millimeters. In such a land, human existence itself composes a heroic saga, and schools under the Huashan Education Alliance serve as the warmest sanctuaries upon this terrain.
▼鸟瞰图,Aerial View

▼鸟瞰图,Aerial View

正交网格是对抗极端环境最有效的武器,但我们并未将其做成均质刻板的系统。通过尺度的变异与多重网格的叠加,建筑群落自然生长出不同尺度的户外空间 —— 它们既是抵御风沙的屏障,也是学生们奔跑、停留的乐园。
▼正交网格的变异,The variation of orthogonal grids

The orthogonal grid is the most effective weapon against the extreme environment, but we avoided creating a homogeneous, rigid system. Through variations in scale and the superposition of multiple grids, the building complex naturally gives rise to outdoor spaces of diverse sizes – serving as both barriers against wind and sand, and playgrounds where students can run and linger.
▼高一高二教学楼,Teaching Building

▼学生食堂,Canteen

▼室内空间,Interior

▼室内空间,Interior

▼室内空间,Interior

▼室内空间,Interior

高中High School
高考的压力迫使高中生 70% 的时间留在行政班内,校园空间因此呈现 “以普通教室为核心” 的热度递减规划格局。与中小学生不同,高中生虽学业繁重,交往模式却已趋近成人,空间也需更具社会属性。“看起来像一所大学”成了设计的核心目标 —— 既要满足高强度学习需求,也要呈现出成年人般的自主与交往空间。
▼以活动热度为基础的规划格局,A planning pattern based on the popularity of the event

The pressure of the Gaokao (National College Entrance Examination) forces high school students to spend 70% of their time within their assigned classroom groups. As a result, campus planning exhibits a pattern of diminishing intensity radiating outwards from the core of standard classrooms. Unlike primary and middle school students, although burdened with heavy academic workloads, high schoolers’ interaction patterns already resemble those of adults. Their spaces consequently need to possess stronger societal characteristics. “Looking like a university” became the core design goal – aiming to both accommodate the demands of intensive study and present spaces for adult-like autonomy and interaction.
▼教学楼,Teaching Building

▼内院,Courtyard

▼内院,Courtyard

▼灰空间,Grey Space

▼灰空间,Grey Space

▼中庭空间,Atrium

▼中庭空间,Atrium

教学Teaching
教学楼的设计是一个有趣的套叠模式:从班级组到年级组再到群组,分级结构让建筑有了明显的生长性与模块互换可能。高一、高二组团是教学区的核心,与北侧的高三组团、南侧的功能教室组团、东侧的对外交流中心共同围出一方水院。每个单元又带着独立的小院,让学生在穿梭中撞见不同的光影与尺度,空间的变化中藏着学生成长的层次和交往的差异。
▼有趣的套叠模式,An interesting nesting pattern

The design of the teaching building employs an intriguing tiered nesting pattern: from class groups to grade groups, and then to clusters. This hierarchical structure lends the architecture distinct organic growth potential and modular interchangeability. The clusters for Grade 10 and Grade 11 form the core of the teaching zone. Together with the Grade 12 cluster to the north, the specialized classroom cluster to the south, and the external exchange center to the east, they enclose a serene water courtyard. Each unit further incorporates its own smaller courtyard, allowing students to stumble upon diverse plays of light and shadow, and experience shifting scales as they move through the spaces. Within these spatial transformations lie reflections of the students’ developmental stages and the nuances of their social interactions.
▼内院,Courtyard

▼交流中心,Communication Center

▼内院水景,Courtyard Pool

▼活动平台,Roof Platform

▼内院,Courtyard

▼室内空间,Interior

宿舍Dormitories
宿舍并未按常规以年级为单位划分:先将高三独立出来,再把高一、高二学生按性别组合成大组团。这样一来,既降低了管理成本,更让不同年级的同龄人有了更多相遇的可能。
The dormitories break from the conventional practice of grouping strictly by grade level: Grade 12 students are housed independently, while Grade 10 and 11 students are organized into large, gender-based clusters. This approach not only reduces management costs but, more importantly, significantly increases opportunities for serendipitous encounters among peers across different grade levels.
▼宿舍楼,Dormitory

▼宿舍楼,Dormitory

▼宿舍楼,Dormitory

宿舍内部藏着 “收与放” 的空间策略:寝室空间极致集约,把更多面积留给公共区域 —— 共享书桌、讨论角、休憩区…… 这些开放空间打破了传统宿舍的封闭感,让学习、聊天、独处各得其所。毕竟,未来的学习从不止于教室,宿舍也可以是思想碰撞的场所。
Within the dormitories lies a spatial strategy of “compression and release”: Sleeping quarters are designed with extreme efficiency, maximizing compactness to liberate significantly more area for shared communal zones – shared study desks, discussion nooks, relaxation areas… These open spaces shatter the traditional sense of confinement typical of dorms, creating distinct places tailored for focused study, lively conversation, or quiet solitude. After all, learning in the future transcends the confines of the classroom; the dormitory, too, can become a vibrant space for the exchange of ideas.
▼室内空间,Interior

▼室内空间,Interior

▼室内空间,Interior

食堂Dining Hall
三餐是校园生活的 “快乐时光”,我们把最好的位置留给了食堂。它坐落在教学区与宿舍区的连接点,东侧正对着校园核心中央景观。建筑向东层层退台,目的就是让学生饭后走到户外,触摸阳光,感受云彩,在大漠的底色里,多一分与自然相处的松弛。
Mealtimes are the “joyful moments” of campus life, and we reserved the prime location for the dining hall. Situated at the pivotal junction connecting the teaching zone and the dormitory area, it faces the campus’s core central vista directly to the east. The building steps back in eastward terraced setbacks – a deliberate design to draw students outdoors after meals, inviting them to embrace the sunshine, feel the clouds drift by, and find a moment of unwinding amidst nature within the vast desert backdrop.
▼食堂,Canteen

▼食堂,Canteen

▼食堂,Canteen

建造Construction
在地性的很多因素是由当地的建造能力决定的。在新疆做了几个项目后,我们发现当地施工团队擅长处理大块面结构,而在精细收口处略显能力不足。于是华山高中的设计选择了接受这个“现状”:用最简单的手法,靠虚实对比与比例关系来呈现建筑的力量和美感。在“大虚大实” 的张力里,藏着与大漠呼应的英雄气概;局部山墙面外挂的水泥压力板,又为这份硬朗添了几分独特的质感。
Many aspects of contextual response are dictated by local construction capabilities. After completing several projects in Xinjiang, we observed that local construction teams excelled at handling large-scale structural elements, yet often struggled with precise detailing and finishes. Consequently, the design for Huashan High School consciously embraced this reality: employing the simplest means possible, relying solely on the juxtaposition of solid and void forms and proportional relationships to manifest the building’s power and aesthetic appeal. Within the tension of this bold solid-and-void composition, lies a heroic simplicity echoing the vast desert. Meanwhile, the cement-bonded particle boards cladding sections of the gable end walls introduce a unique texture to this robust framework, adding a distinct layer of character.
▼教学楼,Teaching Building

▼宿舍楼,Dormitory

▼教学楼,Teaching Building

▼教学楼水泥压力板立面,Teaching Building Facade

街市Street Market
几个功能区块的侧面自然衔接构成了校园的 “街市”。在酷热与严寒并存的大漠一侧,这里成了全校最热闹的公共客厅。空间以一种超尺度的方式诉说着一种积极向上的情绪,每一个角落日后都会成为学生拓展课程的基地。空间坚毅而有力,温柔呵护着每一个学生。
The seamless integration of several functional zones along their edges creates the campus’s vibrant “Street Market.” Positioned on the desert edge, enduring both scorching heat and bitter cold, this space transforms into the school’s most animated communal living room. Its design speaks an uplifting language through bold, oversized gestures, with every corner intentionally poised to become a future hub for expanded curriculum activities. Resolute and robust, the space cradles each student with quiet tenderness.
▼室内空间,Interior

▼室内空间,Interior

▼室内空间,Interior

▼室内空间,Interior

▼室内空间,Interior

▼室内空间,Interior

▼室内空间,Interior

▼室内空间,Interior

▼室内空间,Interior

殿堂Sanctuary
街市的中心是一个殿堂,虽然这两者的物理界面是连续的,但殿堂通过光影与尺度的转换,产生一种空间室内外不断转换的错觉,迅速让人情绪从沉静转为激昂。这个中心不止是知识的殿堂,更是人的殿堂:它是辩论赛的舞台,是画展的展厅,是毕业典礼的会场…… 设计在此歌颂的不只是知识的神圣,更是对人自身无限可能的赞美。
At the heart of the Street Market lies a Sanctuary. While physically continuous with its surroundings, this space masterfully employs shifting light, shadow, and scale to create an illusion of perpetual transition between interior and exterior. This orchestrated experience swiftly elevates the mood from profound stillness to exhilarating upliftment. This center is not merely a sanctuary of knowledge, but fundamentally a sanctuary of humanity: it serves as the stage for debates, the gallery for art exhibitions, the hall for graduation ceremonies… The design here sings a hymn not only to the sacredness of knowledge, but to the boundless potential residing within each human being.
▼室内空间,Interior

▼室内空间,Interior

▼室内空间,Interior

▼室内空间,Interior


▼室内空间,Interior

▼室内空间,Interior

▼室内空间,Interior

阳光Sunlight
新疆从不缺阳光,但我们要的不是直射的灼热,而是 “晴日满窗” 的温润。高处的侧窗漏进条状光带,屋顶的圆洞洒下光斑,狭缝里挤入的光线在墙面游走…… 阳光以不同的姿态铺满教室、宿舍、走廊,让室内永远明亮。哪怕室外黄沙漫卷,室内仍是一片祥和 —— 这是建筑给学子们的温柔呵护。
Xinjiang never lacks sunlight, but what we sought was not the scorching direct glare, rather the gentle warmth of “sun-drenched windows”. Slivers of light filter through high side windows, dappled patterns spill from rooftop oculi, and beams squeezed through narrow slits dance across walls… Sunlight, in its varied guises, floods classrooms, dormitories, and corridors, ensuring interiors remain perpetually bright. Even when raging sandstorms swirl outside, a serene sanctuary persists within – this is architecture’s gentle embrace for its students.
▼室内空间,Interior

▼室内空间,Interior

▼室内空间,Interior

▼室内空间,Interior

▼室内空间,Interior

▼室内空间,Interior

▼室内空间,Interior

▼室内空间,Interior

▼室内空间,Interior

▼室内空间,Interior

▼室内空间,Interior

结语Epilogue
设计希望校园成为 “情绪的容器”:既能抚慰压力下的疲惫,更能点燃向上的力量。
投标时读到但丁的诗句,觉得与这片土地的气质格外契合:
“我们一起攀登,
直到我透过一个圆洞,
看见一些美丽的东西显现在苍穹。
我们于是走出这里,
重见满天繁星。”
这所学校,便是大漠里的 “圆洞”—— 让每个走进来的少年,都能在严酷中望见晴朗,在成长里遇见星光。当然这个奇迹背后的关键因素还是要有一群愿意为之奋斗的人,一个让人尊敬的优秀团队:华山教育联盟。
The design aspired for the campus to become a “vessel for emotion”: one that could soothe the weariness borne of pressure, yet also ignite an upward-striving energy.
During the bidding process, we came upon Dante’s lines, finding them profoundly resonant with the spirit of this land:
“We climbed, he first and I behind,
Until through a circular opening
Some of the lovely things of Heaven appeared in the heavens.
Thence we came forth to see again the stars.”
This school, then, is the “circular opening” within the vast desert – enabling every young soul who enters to glimpse the clear sky amidst harshness, and encounter the starlight through their growth. Certainly, the key factor behind this miracle lies in the presence of a group of people willing to strive for it—an admirable and excellent team: the Huashan Education Alliance.
▼设计前期中厅效果图,Renderings of the central hall in the early design stage

▼总平面图,master plan

▼高三宿舍平面图,plans of the dormitories for Grade 12







▼高一高二宿舍平面图,plans of the dormitories for Grade 10 and Grade 11






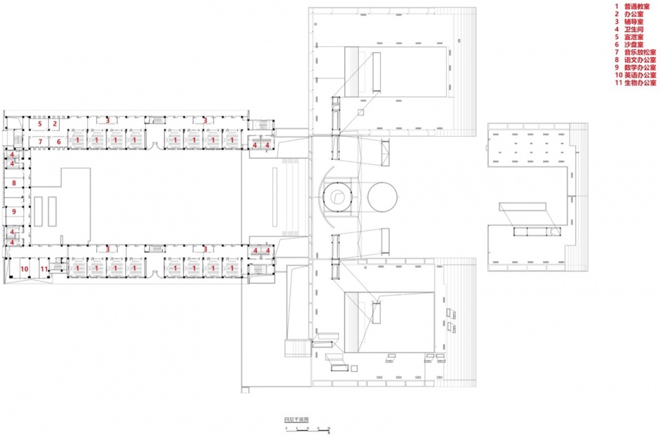
▼教学组团平面图,plans of teaching cluster





▼食堂平面图,plans of the canteen




▼高三教学楼立面图与剖面图,elevations and sections of the teaching building for Grade 12

▼高三宿舍立面图与剖面图,elevations and sections of the dormitories for Grade 12

▼高一高二教学楼立面图与剖面图,elevations and sections of the teaching building for Grade 10&11

▼高一高二宿舍立面图与剖面图,elevations and sections of the dormitories for Grade 10&11

▼交流中心立面图与剖面图,elevations and sections of the communication center

▼科技楼立面图与剖面图,elevations and sections of the science center

▼食堂立面图与剖面图,elevations and sections of the canteen

▼学习中心立面图与剖面图,elevations and sections of the learning center

Project name: Tiemenguan Huashan High School
Project type: Education
Design: Jiangsu Provincial Zhongrui East China Institute of Architectural Design and Research Co.,Ltd.
Qurui (Shanghai) Architectural Design Co.,Ltd.
Website: http://www.zradi.com/
Contact e-mail: tianqicui93@qq.com
Design year: 2022
Completion Year: 2024
Leader designer & Team: Zhaohui Rong; Aitian Gu; Yakun Tian; Tianqi Cui; Chao Gao; Kaicheng Wang; Yangfan Chen; Xuefeng Wang; Zhihao Wang; Chao Wang, Yongping Liu
Gross built area: 62000㎡
Photo credit: Arch Exist, Fangzhou
Partner: Construction Drawing Design: Xinjiang Urban-Rural Construction Engineering Design Co., Ltd. Interior Design:Shenzhen Boundary Design Co., Ltd. Jiayi Hu; Zhishan Su; Xin Zhong; Zheng Wen; Chunxin Qiu; Junjie Ye; Yayao Wu; Xiaocheng Zhang; Huaixin Chen; Jiahua Chen; Junfeng Zhai
Clients: Tiemenguan Huashan High School
Marterials: High-Pressure Cement Board
Brands: Xichao














