东来印象·简阳文体中心 / 中国建筑西南设计研究院有限公司 郑勇工作室 + 设计二院
随着世界运动会即将在四川成都盛大开幕,全球目光再次聚焦这座充满活力的城市。这是世运会首次在中国大陆举办,也是成都继第31届世界大学生夏季运动会后迎来的又一国际综合性体育盛会。东来印象·简阳文体中心曾在大运会期间以卓越的建筑美学与先进的功能设计惊艳世界,如今,它以更加完备的姿态服务世运会,以川人特有的热情与包容,迎接来自五湖四海的运动健儿,为这场国际赛事注入独特的“川味”魅力。
项目总规模约42万平方米,涵盖“八馆三中心两园一家一大剧院”等多元功能,通过立体复合的设计手法,打造了一座充满活力的城市立体公园。这里不仅是赛事的舞台,更是市民文体生活的鲜活载体,将成都“公园城市”的理念与市井烟火完美融合。
▼夜景鸟瞰图,aerial view at night

设计理念
打造公园城市里的立体公园
1.1 融入城市绿道系统
设计秉承”公园城市”的规划理念,将项目有机嵌入成都市天府绿道网络体系,实现与沱江滨江公园、鳌山公园的景观连续性。通过构建总长10公里的分级绿道系统,统筹自行车骑行与步行尺度需求。绿道驿站节点采用均衡分布策略,形成完整的慢行网络覆盖,显著提升场所的可达性与空间趣味性,塑造具有持续吸引力的城市活力核心。
▼“公园城市”中的文体中心,Cultural and Sports Centre in the ‘Park City’

▼“公园城市”中的文体中心,Cultural and Sports Centre in the ‘Park City’

▼日景鸟瞰图,Aerial view at daytime

1.2 “双环嵌套”的地面公园结构
创新性构建”内心外环”的多层级公园体系:以建筑组团围合形成150亩核心绿地,外围通过30-50米建筑退界打造80亩环形景观带,设置银杏长廊与健身步道。通过七条放射状景观通廊连接内外环,整合形成450亩的城市中央体育公园,构建中心城区完整的绿色空间系统。
▼“内心外环”双层公园结构,Double-layer park structure with an inner ring and outer ring

▼体育公园夜景鸟瞰,Aerial view of the sports park at night

1.3 多维度的立体公园系统
通过地面绿化、6米标高1.2公里空中活力环及3000平方米屋顶花园的多标高绿化体系,构建连续立体的公园系统,将建筑与自然有机融合,打造出无界化的沉浸式生态空间。各标高层面相互渗透,形成层次丰富的立体公园体验。
▼多标高绿化分析,Multi-elevation greening analysis

▼建筑与自然有机融合,Architecture and nature organically integrated

▼中央公园透视,Central Park Perspective

▼建筑与自然有机融合,Architecture and nature organically integrated

打造有机生长的活力环系统
2.1串联整合不同建筑单体
设计以6米标高架空活力环为空间主轴,整合南北区功能模块。通过将主要入口设于活力环层,将地面空间完整归还城市,形成连续的公共界面。释放出约5000平方米的完整地面空间,使城市公共活动自然渗透至建筑内部,形成全天候的城市活力场所。上部通过不同标高的室外阳台及屋顶花园建立体公共空间序列,既满足观演、休闲等复合需求,又创造了多层次的建筑体验。
▼建筑布局生成分析,Building layout generation analysis

▼与城市周边互动,Interaction with the surrounding city

▼图书馆沿水面透视,Perspective view of the library along the waterfront

▼大剧院与美术馆白天透视,Perspective view of the Grand Theatre and Art Museum during the day

2.2 融合市井烟火与赛事功能的弹性空间设计
▼市民活动空间,Community activity space


▼大剧院与活力环透视,Perspective of the Grand Theatre and Vitality Ring

打造集约复合的城市综合体
3.1高效整合的城市综合体
通过市政道路与广场的有机衔接,实现南北文体功能板块的空间整合。空中连廊系统与地下通道构成立体交通网络,高效串联商业、赛事、休闲、停车及景观功能,形成集约化、多元复合的文体综合体范式。
▼多功能复合设计分析,Multifunctional composite design analysis

3.2剧场空间的创新设计
大剧院采用岛式包厢池座布局,通过单元化包厢的错位排布,打破传统观演空间的平面单调性,构建具有丰富层次感的立体观演体验。配套空间采用共享式布局:一层集中设置演艺功能区,实现音乐厅与大剧院后台资源共享;二、三层通过休息厅的空间串联,优化流线组织,显著提升空间使用效率。
▼大剧院室内透视,Perspective view of the interior of the Grand Theatre

▼音乐厅室内透视,Perspective view of the interior of the concert hall

▼大剧院室内透视,Perspective view of the interior of the Grand Theatre

3.3体育馆的多功能适应性
创新性地采用空间复合模式,使体育馆具备比赛、健身、演艺、展会等多场景转换能力。墙顶一体化的连续曲面造型,既满足功能共享需求,又实现形式与功能的统一表达。跳台采用清水混凝土整体现浇工艺,通过精细化施工控制,完美呈现材料自然肌理,同时解决色差、水波纹等技术难题,实现结构表现性与功能性的高度统一。
▼体育馆多功能模式,Multifunctional mode of sports hall

▼体育馆休息厅透视,Perspective view of the sports hall lounge

▼游泳馆室内透视,Indoor view of the swimming pool

川味蜀韵的设计表达
4.1立面肌理的文化转译
建筑立面系统通过参数化设计手法,对”折扇灯笼”与”瓷胎竹编”非遗技艺进行现代转译,形成分层次的空间表达。针对文体中心多体量,大规模,整体造型采用“合而不同”的设计策略——体育馆与大剧院作为核心建筑,采用折叠式几何逻辑强化体量表现,其余附属建筑则以六边形编织肌理展开,形成主从有序的立面层级关系。广电中心塔楼延续线性编织语言,通过竖向构件的韵律排布建立立面秩序。整体采用白色基调,构建统一的建筑语境,为动态的文体活动提供中性背景。
基于环境性能模拟,幕墙系统采用参数化渐变开孔策略,开孔率根据功能需求在5%-50%区间变化,形成兼顾遮阳性能(较常规提升30%-60%)与自然采光的自适应表皮系统,实现了传统文化元素与现代建筑性能的有机融合。
▼“合而不同” 的建筑立面,Architectural facades that are ‘united yet distinct’

▼“折扇灯笼”建筑立面,‘Folding Fan Lantern’ Building Facade

▼“瓷胎竹编” 建筑立面,‘Porcelain Bamboo Facade’ Building Facade

4.2 景观设计“川西林盘”神韵再现
▼与景观融合的运动场地,Sports grounds integrated with the landscape

▼建筑群体沿水面透视,Perspective view of buildings along the waterfront

结语
从大运会到世运会,简阳文体中心以“公园城市”为骨,以“川味蜀韵”为魂,成为赛事与生活交融的舞台。它不仅承载着国际赛事的荣耀,更以立体公园的姿态,串联起城市的生长与市民的闲逸生活。在世界运动会的聚光灯下,简阳文体中心将再次向世界展示成都的创新活力与人文温度,书写功能与美学交融的新篇章。
▼建筑群体夜景透视,Perspective view of buildings at night

▼总平面图,site plan

▼大剧院二层平面,Second floor plan of the Grand Theatre

▼大剧院立面,Elevation of the Grand Theatre

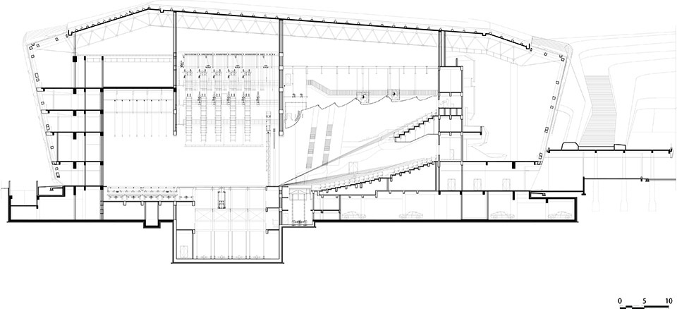
▼大剧院剖面,Section of the Grand Theatre

▼体育馆二层平面,Second floor plan of the sports hall

▼体育馆立面,Facade of the sports hall

▼体育馆剖面,Section of the sports hall















