鄂尔多斯乐园店,内蒙古 / waa未觉建筑
整个设计注入了充满趣味的元素,以此提升购物体验。色彩被用作一种超脱现实的形式,这一理念借鉴自约瑟夫·阿尔伯斯在《色彩的相互作用》中的探索。
Playful devices have been used throughout the design to enhance the shopping experience. Colour has been utilized as a form of other worldliness and escapism. Referencing Joseph Albers ‘Interaction of Colour’
▼项目概览,Overall view of the project


▼轴测图,axonometric drawing

设计概念Mood Implications
设计中粉色调的环境柔化了空间氛围。这些色彩的搭配产生出微妙的光学振动,让空间显得更加轻盈、富有趣味。特意挑选的颜色旨在传递欢乐与愉快的感受。通过强调高光色调,同时让色彩自然交融,确保了服装始终成为视觉的焦点。
Pink surrounds soften the perceived mood, with frames in these tones creating optical vibrations that lend a lighter, more playful quality. Colors were chosen specifically to convey joy and happiness. This effect is achieved through emphasis on highlight tones, while allowing mixtures of color combinations that keep garments as the target.
▼概念图,concept

一条连续的高耸粉色丝带衣架贯穿空间,既是核心展示装置,也承担着照明和引导动线的功能。它不仅提供展位所需的光线,还巧妙引导顾客在店内的移动路径,有效应对了超大型零售店中商品繁多、展示规模大的挑战。
A Tall continuous pink, pigmented, ribbon-like rack acts as the central device. It supports the task lighting for booths, provides wayfinding to guide visitors’ engagement through the shop, and frames as well as controls the inevitable high quantity and scale of items to be displayed in this factory store.
▼粉色丝带,pink ribbon

▼照明和引导动线,lighting and guiding flow lines


▼核心展示装置,the central device

▼粉色室内细节,the pink details


项目描述General description of program
ERDOS LAND 是一家位于鄂尔多斯市郊总部园区内的超大型直销店,坐落于品牌总部大厦中。新空间包含2600平方米的购物区域,汇集公司旗下所有品牌,并设有700平方米的配套功能区,包括儿童游乐区、咖啡馆和旅游中心。
ERDOS Land is a large factory store positioned within the company’s new facility, located inside the headquarters complex on the periphery of Ordos city within the autonomous region. The new facilities comprise of 2,600 sqm of shopping space that brings together all of the company’s brands, supported by an additional 700 sqm of functions including a children’s play area, a café, and a tourist center.
▼综合的购物体验,comprehensive shopping experience

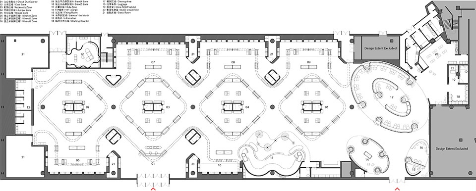
作为品牌目前最大的单层零售空间,该店预计在高峰期每日可接待超过700名顾客,展示超过4000件商品,涵盖五大品牌系列。动线设计成为关键:平面布局以四个中央岛台为核心,使购物过程既可以形成连续的循环体验,也可以通过相互连接的“8”字形路径完成。
As the brand’s largest single-floor shop, the store is expected to accommodate more than 700 visitors per day during peak seasons, while displaying over 4,000 items across five brand labels. Circulation is therefore central to its success, with the floor plan organized around four central islands that allow the act of shopping to be experienced as either a continuous loop or through interconnected figure-of-eight clusters.
▼中央岛台,the central islands

▼岛台细部,the central islands details

周边对称分布的展位陈列各品牌产品,中央岛台则专注于特定品类——围巾、毛衣、配饰和成衣。试衣间嵌入分隔展位的柱体中,儿童系列区域则将游乐设施直接融入零售环境。
Along the perimeter, opposite booths house the different brand labels, each island focusing on a distinct garment type—scarves, jumpers, accessories, and general wear. Aggregate pillars separating the booths incorporate fitting rooms, while one alcove dedicated to the children’s range integrates play facilities directly into the retail environment.
▼对称分布的展位,symmetrically distributed booths

除了基础照明,整个商店采用统一的背光膜天花。这一连续的光膜表面不仅提升了整体照明水准,还有效减少了生硬阴影,为商品陈列增添柔和氛围,营造出开放而愉悦的购物体验。
Complementing the task lighting, the entire shop is unified beneath an uninterrupted barrisol ceiling, its seamless surface enhancing and controlling light levels suitable for retail, reducing harsh shadows and adding softness to the clothes display to create an open and positive
▼统一的背光膜天花,the uninterrupted barrisol ceiling

定制化 — 游玩与空间的交互Customization – Play and Architecture Cross-Over
在儿童展区内,游乐设施与服装展示完美结合,呼应了商店的整体设计理念。特色吊灯既作为装饰,也充当衣物挂架;扭曲流动的“巴瑞索膜”天花与简洁的几何灯光形成鲜明对比。部分管状结构被设计为可攀爬装置,让空间在视觉和体验上都充满趣味。
A children’s booth incorporates play amenities within the clothing displays, adapting and exaggerating elements from the wider store. Feature chandeliers are integrated into the displays, doubling as supports for garment rails. A contorted “barrisol” ceiling with a fluid form contrasts with the simple rhythmic geometry of the store’s lighting and color range. Pipes acting as climbing structures and ensure the scheme remains both visually and physically playful.
▼儿童展区,the children’s booth


贯穿整个项目的趣味装置,从色彩互动的视觉游戏,到动线与陈列的规划,再到儿童区的互动设施,都确保了建筑在满足商业功能的同时,带来丰富而积极的购物体验。
Playful devices appear consistently throughout the project to enhance the shopping experience. From applications of colour compositions under the guidance that “colour can deceive continually” Display arrangements employed in circulation routes and planning arrangement. To more directly incorporating a play devices directly for children ensuring in this project architecture supports both commerce without negatively impacting experience.
▼趣味装置,the playful devices

▼平面图,floor plan

项目基本信息 FACT SHEET
Project Name:ERDOS LAND
Client:ERDOS
Concept Design:waa未觉建筑
Construction Design:waa未觉建筑
Design Team:Zhang Di, Jack Young, Cai Youjun, Wu Yiwen, Li Sean
Contractor:DeZhou Tian Chi Interior Contractor
Lighting Consultant: RESENSE Lighting
Photographer:Zhu Yumeng
Video: whyseeimage
Design Area:3260 sqm
Design Period:2024.12-2025.05
Construction Period:2025.04–2025.08
Project Address:1, Qingfang Road, Hantai, Dongsheng District, Ordos, Inner Mongolia, China














