匣倍inbox·日风食集,深圳 / 向生设计事务所
匣倍Inbox日风食集,以日式料理为核心,融合寿司、刺身、铁板等多种品类的全品类多场景集合日料品牌,以「游赏日风,加倍惊喜」为初衷,融合寿司、刺身、铁板、烹物。从“匣”的珍藏、精致和惊喜感出发,臻选食材与匠心技艺,以现代融合的创意视角,碰撞、解读、新叙日式料理的纯粹。在一种在特定的时间空间内,感受美景、体味风物,并从中获得心灵愉悦的过程和体验的过程。多重交错的“匣”结构。移步换景层层推进的游赏体验。
Inbox,with Japanese cuisine at its core, integrates multiple categories such as sushi, sashimi, and teppanyaki, forming a comprehensive multi-scenario collective Japanese dining brand. Driven by the original intention of “Travel and Appreciate the Japanese Style, Double the Surprise,” it blends sushi, sashimi, teppanyaki, and cooked dishes. Starting from the sense of collection, exquisiteness, and surprise inherent in “InBox,” it meticulously selects ingredients and employs masterful craftsmanship, using a modern, integrated creative perspective to collide, interpret, and newly narrate the purity of Japanese cuisine. It is a process and experience of sensing beautiful scenery, appreciating the atmosphere, and thereby attaining spiritual joy within a specific time and space. A multi-layered, intersecting “InBox” structure creates a touring experience where the scene changes with every step, unfolding layer by layer.
▼项目实景,Project scene

拯救一棵树 Save a tree
关于设计的善意。初次见面,被甲方告知要先毒死左侧这棵树,才能利用侧面空间放置‘苹果仓’以增加客座数。是言之凿凿的务实需求,不然客座数不够经营上势必会出现问题,甲方小姐姐悄悄说‘已经和物业打好了招呼’我们看着这棵有“身份编码”的大树在深圳的风中摇曳,洒下光影斑驳,我们心想,树是不能死的,客座数也是需要满足的。
Regarding design goodwill. At our first meeting, the client informed us that we must first poison the tree on the left to utilize the side space for an ‘Apple Pod’ to increase seating capacity. This was stated as an unequivocal, pragmatic necessity; otherwise, insufficient seats would inevitably cause operational issues. The client representative quietly mentioned that ‘they had already reached an agreement with the property management.’ We looked at this large tree with its “identity code” swaying in the Shenzhen breeze, casting dappled shadows, and thought to ourselves: the tree cannot die, and the seating capacity must also be met.
▼原始现场,Original site

来到现场,原始空间室内外隔离,内部封闭,外部坐不住人,整个店很难有生机。尽管是在人流量很大的鸽子广场,我们需要先解决空间骨架的问题。
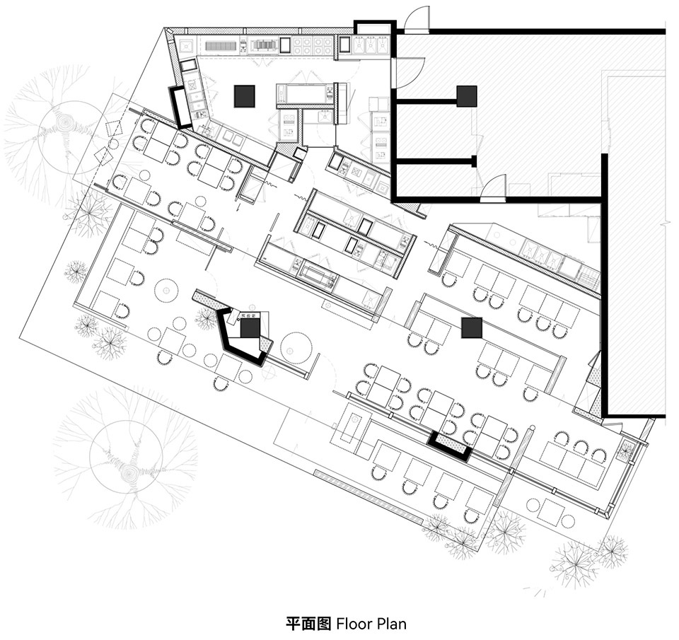
▼空间平面图,Spatial floor plan

Arriving at the site, the original space was segregated indoors and outdoors: the interior was enclosed, the exterior was unwelcoming for seating, and the entire store lacked vitality. Despite being in the high-traffic Pigeon Square, we first needed to address the spatial framework.
▼外立面,Facade

我们重新构建了动线逻辑,让一个木匣子平行于大门基准线,贯穿中段空间,木匣整体抬高 大门正对日式料理岛台,左右分别是包房和卡座区,最初的那棵大树 正好成为包房的端景。
We reconfigured the circulation logic, allowing a wooden box to run parallel to the main entrance’s baseline, piercing through the middle section of the space. The entire wooden box was raised. The entrance directly faces the Japanese cuisine island counter, with private rooms and booth seating areas on its left and right respectively. That initial large tree perfectly became the terminal scene of the private room.
▼外立面,Facade

抹掉室内外生硬边界,抬高室内并设置外挑屋面和对应檐下空间,形成第二个开放式的‘玻璃匣子,原始外墙固定玻璃全部更换成可开启窗扇。
Erasing the harsh boundary between indoors and outdoors, the interior was raised and outfitted with a projecting roof and corresponding eaves space, forming a second open ‘glass box.’ All original fixed glass on the external walls was replaced with openable windows.
▼檐下空间,Space under the eaves


打开室内,让室外的风和阳光,自由流淌,围绕抬高空间,杂木系植物丰盈包围,让原始冰冷的外摆切换成亲人的廊下美学空间。
Opening up the interior allows the wind and sunlight from outside to flow freely. Surrounding the raised platform, lush ‘Zakki-style’ plants abundantly envelop the area, transforming the originally cold exterior into an intimate, aesthetic corridor space.
▼开放就餐区,Open dining area

两个‘匣子’的叠级穿插,让客座数极致压缩,且层级丰富。可临窗感知日光,可在檐下落座,杂木自然环绕,也可在包间内一同举杯。在不同情境下有不同的体感,常来常新,而这些树,帮助我们完成想要的松弛和自由。
The overlapping and interlocking of the two ‘boxes’ allow for maximally compressed yet richly layered seating capacity. One can sit by the window perceiving the sunlight, under the eaves, surrounded naturally by ‘Zakki-style’ plants, or raise a glass together inside a private room. Different situations offer different sensory experiences, making each visit feel new. And these trees help us achieve the desired relaxation and freedom.
▼开放就餐区,Open dining area

重构当代的阴翳之美 Reconstructing the contemporary beauty of shadows and light.
日本的物哀和阴翳之美,有着独特的文化属性和民族差异,我们欣赏它的美,但它不完全属于我们。在匣倍,同样需要被重构。
Japan’s Mono no Aware and the beauty of shadows (In’ei no Bi) possess unique cultural attributes and national differences. We appreciate their beauty, but they do not entirely belong to us. At InBox, they likewise need reconstruction.
▼杂木与粗石,Miscellaneous wood and coarse stones


石料粗野自然。‘小满’黑色如水,表面似盈盈涌出的一汪水,粗粉野生石料亦被工匠驯服,是独一无二的自然力。金箔吧台与暖黄灯光、粗粝石材,木质桌椅共同营造出一个静谧而富有层次的场景。
The stone material is rugged and natural. ‘Almost’ black stone is like water, its surface resembling a brimming pool welling up; even the coarse, wild stone material is tamed by craftsmen, representing a unique natural force. The gold-leaf counter, warm yellow lighting, rough stone materials, and wooden tables and chairs collectively create a tranquil and richly layered scene.
▼吧台,Bar

金箔的华美与食材的本真相互呼应,让人不禁放慢节奏,专注于眼前的每一道料理。
The splendor of the gold leaf and the authenticity of the ingredients echo each other, making people unconsciously slow their pace and focus on each dish before them.
▼走道,Walkway


黑色石材从庭院入户一直延展到室内,黑色打底,以凸显木匣。
The black stone extends from the courtyard entrance all the way indoors, using black as the base to highlight the wooden box.
▼靠窗就餐区,Window dining area

▼自然光线,Natural light

刺子绣以其手作的温度,细腻的半立体触感和低调的色彩,为空间铺陈出一层温暖而静谧的底色。
Sashiko, with its handcrafted warmth, delicate semi-three-dimensional texture, and subdued colors, lays down a layer of warm and quiet undertone for the space.
▼刺子绣墙面,Sashiko the wall with thorns

烛台黑色锋利,金箔在结构缝隙间闪烁。金箔的局部应用,不是浮夸,是平衡黑色石料的点睛。所有元素提炼后再恰当植入 是阴翳之美和当代活力的平衡与重构。
The black candlesticks are sharp and sleek, with gold leaf shimmering within the structural gaps. The partial application of gold leaf is not ostentatious; it serves as a pinpoint accent that balances the black stone. All elements are refined and then appropriately implanted, achieving a balance and reconstruction between the beauty of shadows and contemporary vitality.
▼植物花艺,Plant floral art


牛马之都的打野之地 The wild ground for office workers
深圳,作为有名的牛马之都,务实、快节奏、让人步履匆匆眉头紧皱。匣倍自开业以来,慢慢运营 在自然力加持下,让花成花,让树成树。
Shenzhen, known as a city of hard work, is pragmatic and fast-paced, often making people rush about with furrowed brows. Since its opening, InBox has operated at a gentle pace. Blessed with natural elements, it lets flowers be flowers and trees be trees.
▼大树下的匣倍,inbox under the large tree

人气最旺的时候,反而是午餐时段,附近写字楼的白领们,倚靠木栏一人食。或者下午戴着工牌相约下来喝点。到了晚餐时段,空间就要交还给更年轻的用户,人来人往间,不到一年,稳定蝉联大众点评双榜首。做好一家店,用心能被感知。
The busiest times are actually during lunch hours, when office workers from nearby buildings lean against the wooden railings for a solo meal, or come down in the afternoon wearing their work IDs for a drink. By dinnertime, the space is handed over to younger patrons. Amid the constant flow of people, within less than a year, it has consistently ranked first on both lists of Dazhong Dianping. To run a good store, the sincerity and effort put into it can be felt.
▼大树下的匣倍,inbox under the large tree

我们都深知,那棵在风中摇曳的大树,见证了这座城市、这家店的汹涌和日常。
We all deeply understand that large tree swaying in the wind has witnessed the surges and the daily life of this city and this store.
▼户外就餐区,Outdoor dining area


▼外立面夜景,Facade at night


▼平面图,Floor plan

Project Name:inbox
Project Type:Commercial space/dining space
Design Company:Reborn Design
Leader Design:Takiyah
Brand Design:Meng Wan,Yin Cheng
Design Team :Ke Xinyu, Wang Xintong, Lin Zhilei
Lighting Design:SIKI
Floral Design:TT flowers
Stone sculpture:Shang Xiang
Year Finished:2025.03
Project Address:2nd Floor, Zone C, Junshang Shopping Center, Zhonghang City, Shenzhen, China
Project Area:280㎡
Main Material:Black Mountain Stone,artistic coating,wood veneer,gold foil
Photography:Mu Biao
Video:Ran Lijing
Photo & Video Copyright:©Mu Biao|©Ran Lijing
Design Drawings Copyright:©Reborn Design
Company Website:http://www.reborndesign.cn/
Contact Email:xiangsheng_0514@163.com














