里斯本Alcoutins住宅,葡萄牙 / Paulo Martins Arquitectura e Design
Alcoutins住宅位于里斯本一处高尔夫球场内的坡地上,场地高差达七米,这一特征决定了该项目的空间组织方式。
This residence is located on a sloped plot within a golf course, with a seven meter level difference that shapes its spatial organization.
▼标志性的屋顶,A highly distinctive roof


▼场地高差,level difference


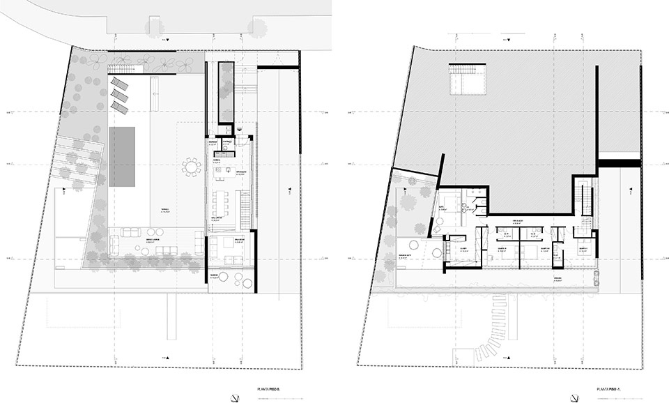
住宅主入口位于上层,而最低层则容纳了停车区与技术空间,并可直接通向草坪。住宅的私人区域被安置在中间层。
The main entrance is at the upper level, while the lowest floor houses the parking and technical areas with direct access to the green. Private areas are positioned on the intermediate level.
▼住宅楼层概览,residential Floor Overview



住宅向景观敞开,同时巧妙屏蔽了来自邻里的视线。泳池所在的侧向露台与一系列阳台共同定义了项目的建筑姿态:流动、开放、界限模糊的空间,旨在呼应业主对更自由、更具联结感生活方式的愿景。
The house opens toward the landscape and shields itself from neighboring views. A lateral terrace—home to the pool—and a series of balconies define the project’s architectural gesture: fluid, open spaces with blurred limits that reflect the clients’ vision of a freer, more connected way of living.
▼向景观敞开,opens toward the landscape


▼泳池区平台,swimming pool and terrace


▼泳池,swimming pool


▼侧向露台,the lateral terrace


住宅顶部是极具特色的屋顶,其灵感来自葡萄牙乡村建筑、热带植被与悠闲生活方式。屋顶展开为一片折叠的双坡屋面,外覆锌板,内衬胡桃木。屋顶的几何形态中精心布置了开口,通过木格栅,为住宅提供了富有诗意的天空掠影。
Crowning the house is a roof inspired by Portuguese rural architecture, tropical vegetation, and a relaxed lifestyle. It unfolds as a folded surface of gabled forms, clad in zinc on the outside and walnut on the inside. Strategically placed openings in its geometry offer poetic, filtered views of the sky through wooden slats.
▼木格栅的光影效果,the light and shadow effects of wooden slats




住宅的社交空间则位于入口层,通过一处大面积内凹的开口与主露台无缝相连。卧室与套房则位于下一层,在经过较为收敛的入口之后,到访者的视线与情感将在高尔夫球场的绝佳景观面前得以充分释放。
Social areas are located on the entry level and connect seamlessly with the main terrace through a large recessed opening. Bedrooms and suites are placed on the level below, where a more subdued entrance enhances the visual and emotional impact of the views over the golf course.
▼社交空间,the social areas

▼卧室与套房,bedrooms and suites




该项目采用了克制的材料与色调。在室外,主要为为白色灰泥与铁木,室内这是微水泥与胡桃木。这样的搭配旨在突显建筑本身、空间氛围与自然环境之间的平衡。
A restrained material palette—white plaster and ipê wood outdoors, microcement and walnut indoors— emphasizes the balance between architecture, atmosphere, and the natural setting.
▼克制的材料与色调,the restrained material palette



▼灰白的色调,grey and white tones


▼平面图,floor plan

▼剖面图,section plan


Nome do Projeto . Project name: Casa dos Alcoutins . Alcoutins House
Atelier de Arquitectura . Architecture Office: Paulo Martins Arquitectura e Design
Arquiteto responsável . Main Architect: Paulo Martins
Colaboração . Collaboration:
Website: https://paulomartins.com.pt/
E-mail: geral@paulomartins.com.pt
Facebook: https://www.facebook.com/PAULOMARTINSARQDESIGN
Instagram: https://www.instagram.com/paulomartinsarqdesign/
—
Localização . Location: Lisboa, Portugal
Ano de conclusão da obra . Year of conclusion : 2024
Área total construída (m2) . Total area: 375 m2
–
Construtora . Builder
Fiscalização . inspection:
Engenharia . Engineering: R5 Engenharia
Paisagismo . Landscape:
–
Projeto Luminotécnico . Light Design:
Acústica . Acoustic Design:
Hidráulica . Fluids Engineering :
Térmica . Thermal Engineering:
Identidade Visual . Visual identity:
Ilustrações . illustrations:
Decoração de interiores . Interior Design:
–
Fotógrafo . Architectural photographer: Ivo Tavares Studio
Website : www.ivotavares.net
Facebook: www.facebook.com/ivotavaresstudio
Instagram: www.instagram.com/ivotavaresstudio














