Lavan别墅,西班牙 / Fran Silvestre Arquitectos
Villa Lavan是一座由两个单层、狭长体量构成的住宅,旨在赋予整体以人性化的尺度。这两个体量之间呈轻微的旋转关系,这一策略主要出于三方面的考虑。
Villa Lavan is a residence composed of two single-story, elongated volumes, conceived to bring a human scale to the whole. These volumes are slightly rotated in relation to one another, a strategy that responds to three main reasons.
▼住宅鸟瞰,aerial view of the residence



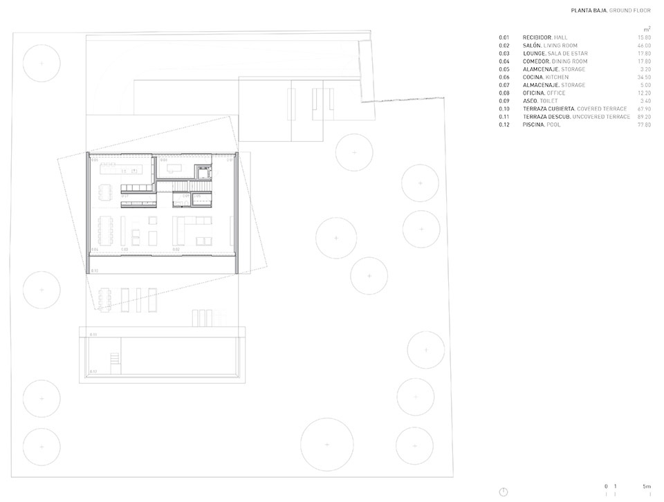
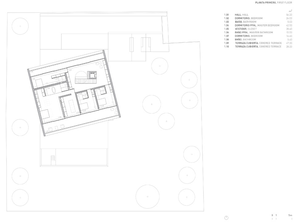
首先,是为了优化住宅各层的景观视野:底层包含日间活动空间,朝向花园布置;而上层则布置夜间休憩空间,面向仅在该高度才能望见的邻近湖泊。其次,是为了提供遮荫的室外空间,以抵御马德里强烈的日照。体量的旋转生成了带顶的露台。第三个原因或许更为主观,但同样重要:赋予住宅独特的身份。体量之间的倾斜关系在一日之中形成不断变化的三角形阴影,增添了空间的动态感。
▼模型,model


The first is to enhance the views from each level of the house: the ground floor, which contains the daytime areas, is oriented towards the garden, while the upper floor, where the nighttime areas are located, opens up to a nearby lake, visible only from that height. The second reason is to provide shaded outdoor spaces, essential for protection from Madrid’s intense sun. The rotation between the volumes generates covered terraces. The third reason, perhaps more subjective but equally relevant, is to give the house its identity. The inclination between the volumes creates shifting triangular shadows throughout the day, adding dynamism.
▼体量之间的倾斜关系,The rotation between the volumes


▼形成不断变化的阴影,creates shifting triangular shadows

每个体量的两侧为厚重的承重墙,另两侧则完全敞开,从而便于采光、通风与南北向的交叉通风。交通核心横向布置,将与高处邻居相邻的后侧划分为相对更具公共性的区域。
Each of the bodies is built with two solid structural sides, while the other two are left completely open, which facilitates orientation and north–south cross ventilation. The circulation core is laid out transversally, dividing the rear part —more public— due to its relation to a neighboring dwelling situated at a higher level.
▼便于采光、通风与南北向的交叉通风,facilitates orientation and north–south cross ventilation

▼客厅区域,living room

▼落地窗带来宽旷视野和采光,Floor-to-ceiling Windows offer a wide view and abundant natural light


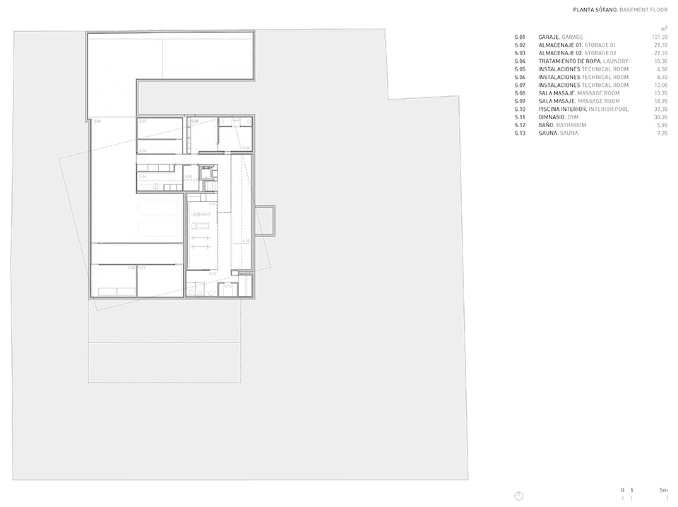
体量的旋转关系还体现在上层的圆形天窗中,该天窗由整体浇筑而成。在地下室则设置了车库以及健康与康养空间,并通过天窗引入自然采光,以符合当地的城市规划规定。
The rotation of the volumes is also expressed in the circular skylight on the upper floor, executed from a single piece. In the basement, the garage and spaces dedicated to wellness and health are located, naturally illuminated through a skylight, as required by the area’s urban planning regulations.
▼通往二层楼梯,staircase towards the upper level

▼二层的圆形天窗,the circular skylight on the upper level



▼整体浇筑而成的圆形天窗,the circular skylight executed from a single piece


▼地下室康养空间,spaces dedicated to wellness and health are located in the basement

▼地下室天窗引入自然光线,the skylight introduces natural light

▼浴室空间,bathroom

本项目的构思源自“跨世代性”的理念。目标是打造一种清晰而持久的空间结构,一份可感知的遗产,能够被不同世代的居住者依据当下需求加以重新诠释。住宅在技术、功能与美学层面都力求长期保持相关性。面对快速的淘汰趋势,建筑在此选择了“持久”。在这一意义上,采用天然且高度耐久的材料不仅能使建筑随时间增值,也能激发人们对空间的呵护。而被呵护的空间,才会得以长存。
This project was conceived from the idea of transgenerationality. The aim is to create a clear and lasting spatial structure, a perceptible legacy that can be reinterpreted by different generations of inhabitants according to the needs of each moment. The house seeks to remain relevant technically, functionally, and aesthetically. Against obsolescence, permanence is embraced.In this sense, building with natural and highly durable materials can add value over time. It is a way of encouraging care for the space. And what is cared for, remains.
▼夜晚灯光下的住宅,the house under lighting at night



▼夜晚灯光下的住宅鸟瞰,the aerial view of the house under lighting at night

▼地下室平面,basement floor plan

▼一层平面,ground floor plan

▼二层平面,first floor plan

▼屋顶平面,roof floor plan

▼东立面及南立面,south and east elevation

▼剖面,section


ARCHITECTURE FRAN SILVESTRE ARQUITECTOS
PROJECT TEAM Fran Silvestre | Principal in Charge
María Masià | Collaborating Architect
Estefanía Soriano | Collaborating Architect
Carlos Lucas | Collaborating Architect
INTERIOR DESIGN ALFARO HOFMANN
DEVELOPER 37 THREESEVEN
TECHNICAL ARCHITECT Jorge Carrión Ponce
José Miguel Cota San Andrés
STRUCTURAL ENGINEER Estructuras Singulares
PHOTOGRAPHER Fernando Guerra
LOCATION La Moraleja, Madrid
YEARS OF CONSTRUCTION 2022 – 2024
BUILT AREA 1034 m2














