古蔺茅溪酱酒九坝项目配套生态文旅基地(一期)项目,泸州 / 同济大学建筑设计研究院(集团)有限公司
1.应势而起,赤水河畔寻酱香 Rising with the Momentum: In Search of Sauce Aroma by the Chishui River
1.1.地利:“美酒河”与中国白酒的邂逅 Geographical Advantage: Where the “River of Fine Wine” Meets Chinese Baijiu
赤水河——酱酒的母亲河。在海拔400-600米处,距河5公里以内的河谷地带,茅溪镇与茅台镇隔河相望,坐拥酿酒的天成宝地。这里山峦围合,地势低洼,造就了“湿闷”的微气候,是微生物生长繁殖的温床。优质的水源流经喀斯特地貌,携矿物质滋养酵母,再配以紫色钙质土窖池和沿袭千百年的自然节律——“端午制曲,重阳下沙”,孕育了这不可复制的酱酒之源。
The Chishui River—the mother river of sauce-aroma baijiu. Situated at an altitude of 400-600 meters within a 5-kilometer radius of the river in the valley, Maoxi Town faces the renowned Maotai Town across the river, occupying a natural treasure for winemaking. Encircled by mountains and featuring low-lying terrain, the area possesses a humid and stifling microclimate, acting as an ideal incubator for microorganisms to thrive. High-quality water sources flow through the karst landscape, carrying minerals that nourish the yeast. This, combined with purple calcareous soil fermentation pits and the natural rhythm followed for millennia—”Qu-making on the Dragon Boat Festival, and grain-fermenting on the Double Ninth Festival”—gives birth to this irreplicable origin of sauce-aroma baijiu.
▼园区东侧整体鸟瞰,Overall view of the eastern side of the park

1.2.天时:文化、产业、环境的三元汇聚 Timely Opportunity: Convergence of Culture, Industry, and Environment
依托这片优质的水土,我们顺应“文旅+产业”融合的时代浪潮,实现从“酿造之地”到“心灵目的地”的跃升,以沉浸式路径与叙事性空间,将文化、产业、环境深度融合。一期规划酿酒生产、文化展示、窖藏及接待服务等建筑,旨在打造一座融合高端酱酒生产、酒文化沉浸体验与生态漫游的特色产业综合体。
▼文化、产业、环境的三元汇聚图,A triadic convergence map of culture, industry, and environment

Building upon this superior natural endowment, we align with the contemporary trend of integrating cultural tourism and industry. This facilitates an evolution from a mere “place of production” to a “destination for the soul,” achieving a profound integration of culture, industry, and environment through immersive pathways and narrative spaces. The first-phase plan includes buildings for baijiu production, cultural exhibition, aging cellars, and guest services, aiming to create a distinctive industrial complex that blends premium sauce-aroma baijiu production, immersive cultural experiences, and eco-friendly exploration.
▼沿赤水河整体鸟瞰,Aerial view along the Chishui River

1.3.人和:对场地的哲思 Human Harmony: Philosophical Reflection on the Site
聚焦项目基地,它既是白酒黄金产区,更是国家级生态保护重点范围。山地巨大的高差、脆弱的生态底线、遗留的古老窖池与苛刻的建设条件,皆成为我们须郑重回应的课题。如何在规划中重织场地秩序,实现天人共鸣的建造境界,正是我们设计的核心追寻。
▼项目一期建设范围及概况,Phase I Project Scope and Overview

Focusing on the project site, it is not only located within the golden production area for baijiu but also falls within a key national ecological protection zone. Significant elevation differences in the mountainous terrain, a fragile ecological baseline, preserved ancient fermentation pits, and demanding construction conditions are all challenges that we must be earnestly addressed. How to reweave the site’s order through planning and achieve a state of construction that resonates with nature lies at the very core of our design pursuit.
▼赤水河对岸整体鸟瞰,Aerial view of the opposite bank of the Chishui River

2.自然营造,时空之旅叙古今 Natural Construction: A Journey Through Time Narrating Past and Present
2.1.“一座绿水青山的生态公园” “An Ecological Park in Harmony with Lucid Waters and Lush Mountains”
顺地势·化形隐迹:我们尊重场地肌理,顺势布局,使建筑在自然中生长。在梳理场地等高线的基础上,借土方平衡策略营造多层台地,建筑沿山势面向赤水河舒展,宛若玉带轻轻系于山水之间。
Aligning with the Terrain, Blending Forms and Traces: We respect the site’s context, arranging the layout in accordance with the topography so that the architecture appears to grow naturally from the landscape. Based on an analysis of the site’s contour lines, we employ an earthwork balancing strategy to create multi-leveled terraces. The buildings unfold along the mountain slope facing the Chishui River, akin to a jade ribbon gently tied between the mountains and water.
▼整体航拍总图,Overall aerial overview map

融自然·无界共生:我们注重建筑与自然的融合。在游走的路径中,地形高差为建筑提供了多级平台,不同标高的连廊、屋顶皆成为观景驻足点,实现人与山水无界对话的诗意场景。
Integrating with Nature, Boundless Coexistence: We emphasize the fusion of architecture and nature. Along the moving paths, the elevation changes of the terrain provide multi-level platforms for the buildings. Linkways and roofs at different heights become viewing points and places to pause, creating poetic scenes that facilitate a boundless dialogue between people and the landscape.
▼航拍局部总图,Aerial view of the local overall plan

2.2.“一场穿梭古今的时空之旅” “A Journey Through Time, Traversing Past and Present”
循历史·再续古今:我们保留场地基因,重组空间秩序,构建从赤水河岸向山体延伸的时间轴线。规划特意保留老窖池,复建原场地明末清初与清末民初古酒作坊作为生产空间;文化展示的地景建筑结合地形连接80年代生产车间,高处则矗立着颇具现代雕塑感的接待中心与藏酒库。游览路径沿明代、清代、近代至现代的时间脉络展开,自赤水河岸开始拾级而上,形成沉浸式的历史体验序列。
Following History, Reconnecting Ancient and Modern: We preserve the site’s DNA, reorganize the spatial order, and construct a temporal axis extending from the banks of the Chishui River into the mountains. The plan intentionally retains old fermentation pits and restores ancient distillery workshops from the late Ming/early Qing dynasty and the late Qing/early Republic of era to serve as production spaces. A landform-building for cultural exhibition connects with the 1980s production workshop, while a reception center and a storage cellar with a modern sculptural quality stand at the higher elevation. The visitor route follows a chronological timeline from the Ming and Qing dynasties, through the modern era, to the contemporary age. Starting from the riverbank and ascending step by step, it forms an immersive historical experience sequence.
▼80年代生产车间室外景观阶梯,1980s production workshop outdoor landscape steps

2.3.“一座酱酒文化的活态博物馆” “A Living Museum of Sauce-Aroma Baijiu Culture”
“12987”·有无相生:我们融合有形的酿造空间与无形的匠人技艺,让传统的静态陈列成为活态循环。这里绝非传统意义上的参观目的地,而是通过感知“有形”之景,体验“无形”之境,领悟背后蕴藏的中国智慧。它将中国哲学思想具身于生产生活,成为一处可亲历、可感知、可共鸣的文化场域。
▼场地剖面及80年代生产车间、地景展厅剖面,Site Section through 1980s Production Workshop and Landscape Exhibition Hall

“12987”·The Interdependence of Substance and Non-Substance: We blend the tangible brewing spaces with the intangible craftsmanship, transforming traditional static displays into a living cycle. This is far from a traditional sightseeing destination; it is a place where, by perceiving the “tangible” scenery, one experiences the “intangible” essence, comprehending the underlying Chinese wisdom. It embodies Chinese philosophical thought within production and daily life, becoming a cultural realm that can be personally experienced, felt, and resonated with.
▼80年代生产车间室外景观阶梯,1980s production workshop outdoor landscape steps

3.沉浸体验,匠造空间览技艺 Immersive Experience: Crafted Spaces Revealing Artistry
中国酿酒工匠对于酿酒品质孜孜不倦的追求,对于工艺的精益求精,项目建筑群的建构、材质、光影无不体现出对这种匠人精神的传承和致敬。
The architecture of the project complex, through its construction, materiality, and interplay of light and shadow, embodies and pays homage to the unwavering pursuit of quality and relentless refinement of craftsmanship that define Chinese brewing artisans.
▼80年代生产车间半室外公共空间,Semi-Outdoor Public Space in the 1980s Production Workshop

▼80年代生产车间架空参观走廊,Raised walkway for factory tour in the 1980s

3.1.砖木史诗:明末清初、清末民初古作坊 Brick-and-Wood Epic: Ancient Workshops from the Late Ming/Early Qing and Late Qing/Early Republic Periods
游览的起始段是复建的古作坊。作坊融入川南民居形制,复原木构架形态,将游客的感知牵引至明清酿酒场景。区别于传统做法,为更好地还原历史酿造场景,受力构件采用钢结构外覆防火防腐饰面保障风貌的同时以满足现代消防安全。
The tour begins with the restored ancient workshops. These structures incorporate the architectural style of Southern Sichuan vernacular dwellings and replicate traditional wooden framing, transporting visitors’ perception to the brewing ambiance of the Ming and Qing dynasties. Departing from conventional methods, and to better restore the historical brewing environment, the load-bearing components utilize a steel structure clad with a fireproof and anti-corrosion finish. This approach preserves the authentic appearance while meeting modern fire safety requirements.
▼正面整体鸟瞰看三个时代的生产车间,A frontal overall view of the production workshop across three eras

▼生产车间坡屋顶,The sloped roof of production workshop

清代茅溪频现徽商酒贸,场地遗存风韵。清末民初作坊引入徽派建筑语汇,复原马头墙与门头形制,成为游览线上一处标志性的入口记忆。室内空间沿用手工青砖与木构材料,复原场景,仿佛时光在此凝滞、酒香依旧缭绕。
Frequent trade by Huizhou merchants in Maoxi during the Qing period left its cultural imprint. The late Qing/early Republic workshop introduces Huizhou architectural elements, restoring the horse-head walls and gateway forms, creating a landmark entrance memory point along the tour route. The interior spaces continue the use of grey brick and wood materials, recreating scenes as if time has stood still and the aroma of wine still lingers.
▼清末民初古作坊徽派门头,Ancient Workshop Huizhou-Style Shopfront at the End of the Qing Dynasty and the Beginning of the Republic of China

▼清末民初古作坊室内照片,Photographs of the interior of ancient workshops at the end of the Qing Dynasty and the beginning of the Republic of China

3.2.酒仙楼阁:80年代生产车间 Pavilion of the Wine Immortals: 1980s Production Workshop
三座80年代生产车间静立于古作坊群之上,成为游览序列的高潮,集酿酒生产、游览参观、展厅库藏和管理办公于一体。建筑汲取西南山地聚落之形,连绵起伏的屋顶轮廓呼应地域特征和酒坊意象,也为车间带来良好的通风。立面通过木构架与窗洞的韵律组合,形成富有节奏感的立面表情。光影流转间宛如一场酒曲发酵的无声交响。
Three production workshops from the 1980s stand quietly above the cluster of ancient workshops, forming the climax of the tour sequence. They integrate brewing production, visitor tours, exhibition storage, and administrative offices.The architecture draws inspiration from the forms of mountainous settlements in Southwest China, with undulating roof profiles that echo both regional characteristics and the imagery of a distillery, while also providing excellent ventilation for the workshop. The facade, through a rhythmic interplay of wooden frames and window openings, creates a cadenced architectural expression. The interplay of light and shadow within resembles a silent symphony of fermenting Qu.
▼80年代生产车间室外照片,Outdoor photo of a production workshop in the 1980s

室内意象取自藏酒洞,转折处倒角处理柔化了连续构件带来的生硬感,是匠人对酿酒时间流淌的自然哲思。平滑的曲线形体在光影韵律中将人与窖池共同包裹于山体,天窗与侧窗精准引入自然光线,在湿润的环境中向匠人投射出一道道光束,此刻,天、地、人、酒融为一体,成为游览过程中极具仪式感的体验节点。
The interior concept is inspired by ancient wine storage caves. Chamfered details at turns soften the abruptness of continuous components, reflecting the craftsmen’s natural philosophy regarding the flow of time in brewing. Smooth curved forms, orchestrated by light and shadow, envelop both people and fermentation pits within the mountain. Skylights and side windows precisely introduce natural light, casting beams into the humid environment upon the workers. Here, heaven, earth, people, and wine merge into one, becoming a highly ritualistic experiential node in the tour.
▼80年代生产车间室内照片,Indoor photo of a production workshop in the 1980s


“生产即展示”——活态展示传统手工酿造工艺,打造中国酱香白酒首条“可视化的活态酿酒历史长廊”。完整见证从投料、制曲、发酵到蒸馏的全程工艺,感受温度、湿度、微生物环境的微妙变化,体验“活态酱酒博物馆”独特魅力,打造独一无二的空间体验。
“Production as Exhibition” — dynamically showcasing traditional manual brewing techniques to create China’s first “visualized living historical corridor of sauce-aroma baijiu production.” Visitors can fully witness the entire process from ingredient feeding, Qu-making, and fermentation to distillation, perceive the subtle changes in temperature, humidity, and microbial environment, and experience the unique charm of this “living sauce-aroma baijiu museum,” crafting a truly distinctive spatial experience.
▼80年代生产车间室内光影,Indoor photo of a production workshop in the 1980s

▼80年代生产车间室内构件倒角处理,Chamfering of indoor components in the production workshop in the 1980s

屋顶洒落的自然光与井然排列的结构构架交织出庄重而富有韵律的光影场景,引导人们展开一场与时空的对话。
Natural light filtering through the roof interweaves with the orderly structural framework to create a solemn, rhythmic play of light and shadow, guiding visitors into a dialogue with time and space.
▼80年代生产车间室内构件倒角处理,Chamfering of indoor components in the production workshop in the 1980s

▼80年代生产车间内天、地、人、酒合一之境,The realm where heaven, earth, people, and wine unite in the production workshop of the 1980s

3.3.时空纽带:地景展厅 Temporal Link: Landform Exhibition Hall
地景建筑连接古作坊与上世纪80年代车间,连接上下约18米的场地高差,涵盖文化展览、休憩交流等功能,是游览途中的文化驿站。建筑以清水混凝土为语汇,质感轻盈而肃穆,顺应台地起伏,悄然融于自然肌理。三片折形屋面依山叠升,屋面嵌入步道与阶梯,既引导游人上行,也可驻足观景,实现人与山水的诗意交织。
The landform architecture connects the ancient workshops with the 1980s workshops, bridging an approximate 18-meter elevation difference across the site. It houses functions such as cultural exhibition, rest, and exchange, serving as a cultural way-station during the tour. Employing fair-faced concrete as its primary language, the building’s texture is both lightweight and serene. Conforming to the terraced landscape, it subtly blends into the natural texture of the site. Three folded roof planes stack upwards along the mountain slope. Embedded with footpaths and stairs, these roofs not only guide visitors upward but also offer places to pause and enjoy the views, achieving a poetic integration of people and landscape.
▼地景建筑室外架空连廊下照片,Photo of the landscape building under the overhead corridor

▼地景建筑内螺旋楼梯,Landscape Architecture Building Spiral Staircase

室内延续清混凝土基调,空间简约而专注。大阶梯、螺旋楼梯与通高中庭交织出丰富的视觉对话,在“看”与“被看”之间,强化了观展的沉浸体验。
The interior continues the fair-faced concrete theme, creating simple and focused spaces. A grand staircase, a spiral staircase, and a full-height atrium intertwine to create a rich visual dialogue, enhancing the immersive exhibition experience through the interplay of “seeing” and “being seen.”
▼地景建筑室内公共空间,Indoor Public Space of the Landscape Architecture Building

▼地景建筑室内展示厅大阶梯,Landscape Architecture Interior Exhibition Hall Grand Staircase

▼地景建筑室外露台,Photo of the outdoor terrace of the landscape building


3.4.时间银行:山间配套建筑群 Bank of Time: Mountain Support Building Cluster
位于山腰上的接待厅与藏酒库,作为整个游览序列的终点与至高点,是面向未来的“时间容器”。
Located on the mountainside, the Reception Hall and Storage Cellar serve as the endpoint and highest point of the entire tour sequence – a “vessel of time” facing the future.
▼接待中心与藏酒库,Reception Center and Wine Cellar

“洞藏山间月”——接待厅圆形的视窗犹如山间初升的月轮,成为场地中具有雕塑感的视觉焦点。人们于此凭栏远眺,众山渐次入怀,情感也随之升华,抵达一方开阔之境。
“A Cave Housing the Mountain Moon” – The circular viewport of the Reception Hall resembles a rising full moon amidst the mountains, becoming a sculptural visual focal point for the site. Here, leaning on the railings and gazing into the distance, the surrounding mountains gradually embrace the viewer, elevating emotions and leading to a state of expansive openness.
▼接待中心室外平台,Reception Center Outdoor Terrace

▼接待中心室外平台,Reception Center Outdoor Terrace

4.结语 Conclusion
我们打造的,不仅是一个生产车间或旅游景点,而是超越传统工业建筑限制的沉浸式体验的产业综合体,也是新时期面向未来的充满东方哲思的酱酒文化活载体。
What we are creating is not merely a production facility or a tourist attraction. It is an industrial complex offering immersive experiences that transcend the limitations of traditional industrial architecture. It is also a living carrier of sauce-aroma baijiu culture, imbued with Eastern philosophy and oriented towards the future in this new era.
▼夜景整体鸟瞰,Overall night view bird’s-eye view

▼80年代生产车间入口空间,Entrance space of the production workshop in the 1980s

▼80年代生产车间室立面窗与构架,1980s production workshop facade windows and frameworks

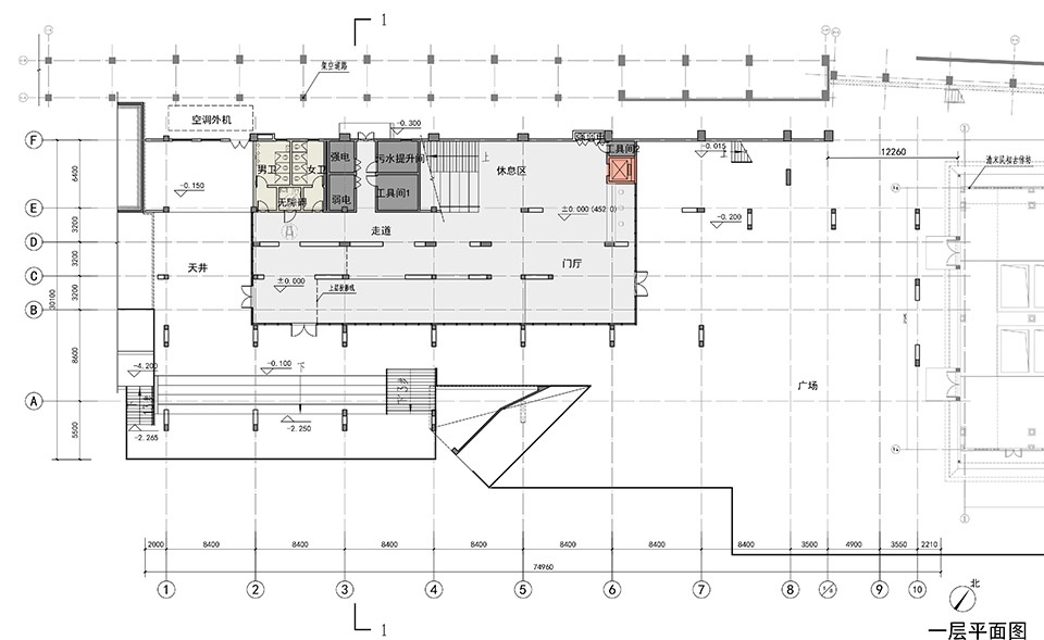
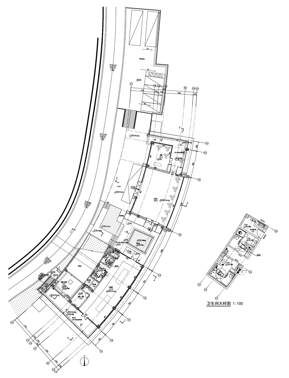
▼80年代生产车间一层平面图,ground-floor layout plan of the production workshop in the 1980s

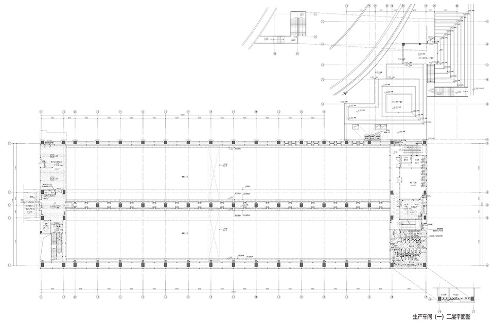
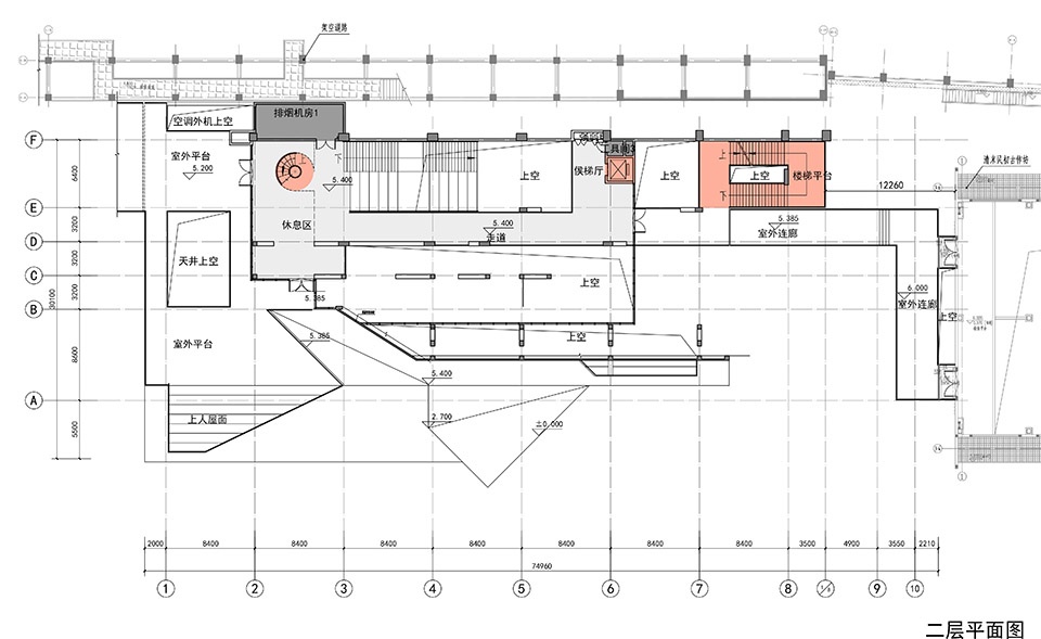
▼80年代生产车间二层平面图,Second-floor layout plan of the production workshop in the 1980s

▼80年代生产车间三层平面图,Third-floor layout plan of the production workshop in the 1980s

▼80年代生产车间屋顶平面图,1980s production workshop roof plan

▼80年代生产车间一东立面,East elevation of the production workshop in the 1980s

▼80年代生产车间一南立面,South elevation of the production workshop in the 1980s

▼80年代生产车间一西立面,West elevation of the production workshop in the 1980s

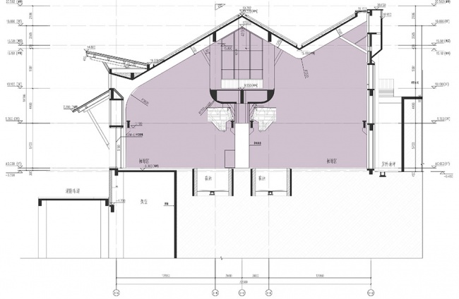
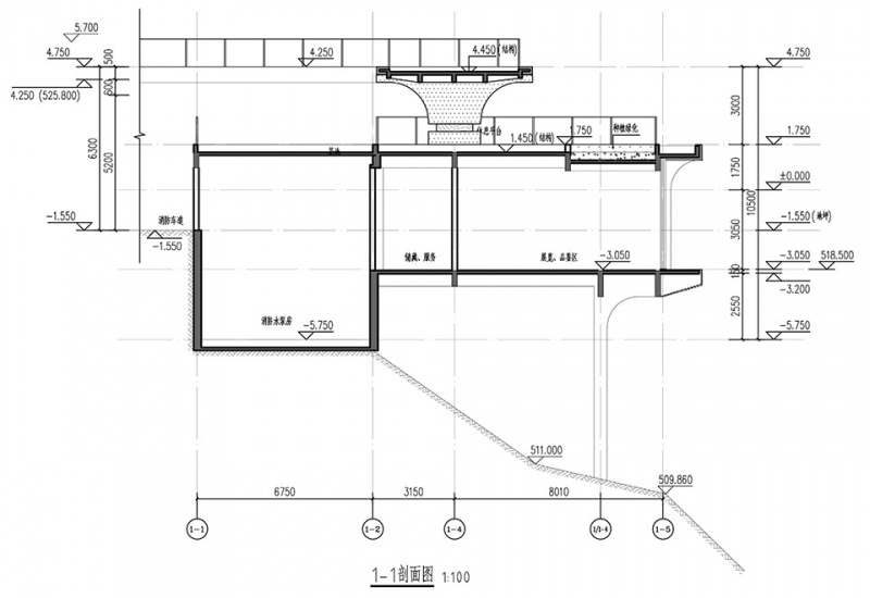
▼80年代生产车间一剖面,A cross-section of a production workshop from the 1980s

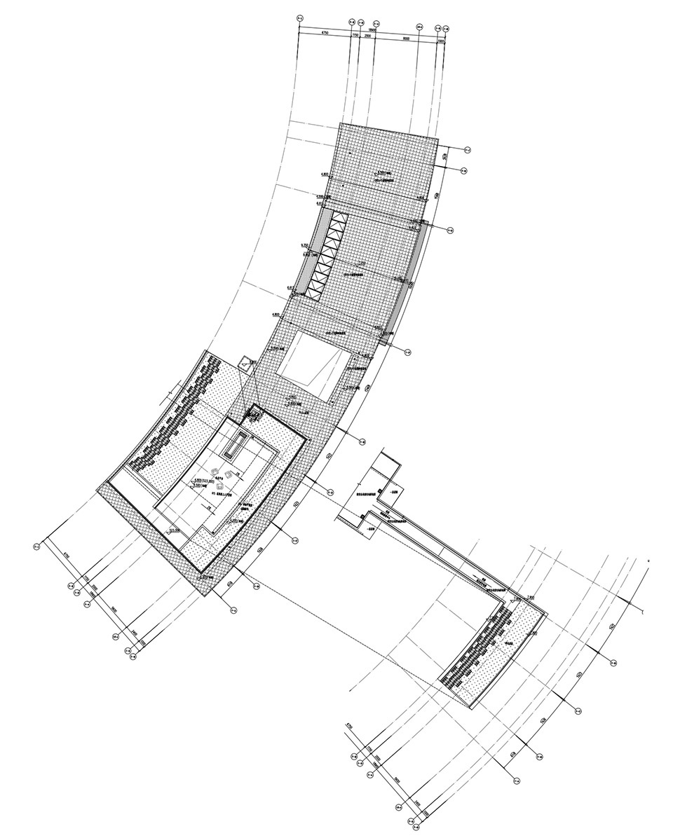
▼藏酒库平面图,Wine Cellar Floor Plan

▼地景建筑一层平面图,Landscape Architecture Ground Floor Plan

▼地景建筑二层平面图,Landscape Architecture Second Floor Plan

▼地景建筑三层平面图,Landscape Architecture Third Floor Plan

▼地景建筑剖面图,Landscape Architecture Section Drawing

▼接待中心一层平面图,Reception Center First Floor Plan

▼接待中心二层平面图,Reception Center Second Floor Plan

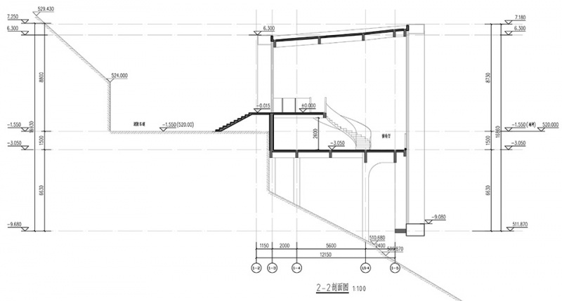
▼接待中心剖面图,Reception Center Section


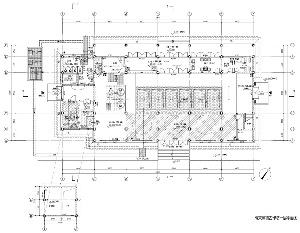
▼明末清初古作坊一层平面图,Floor plan of an ancient workshop from the late Ming and early Qing dynasties

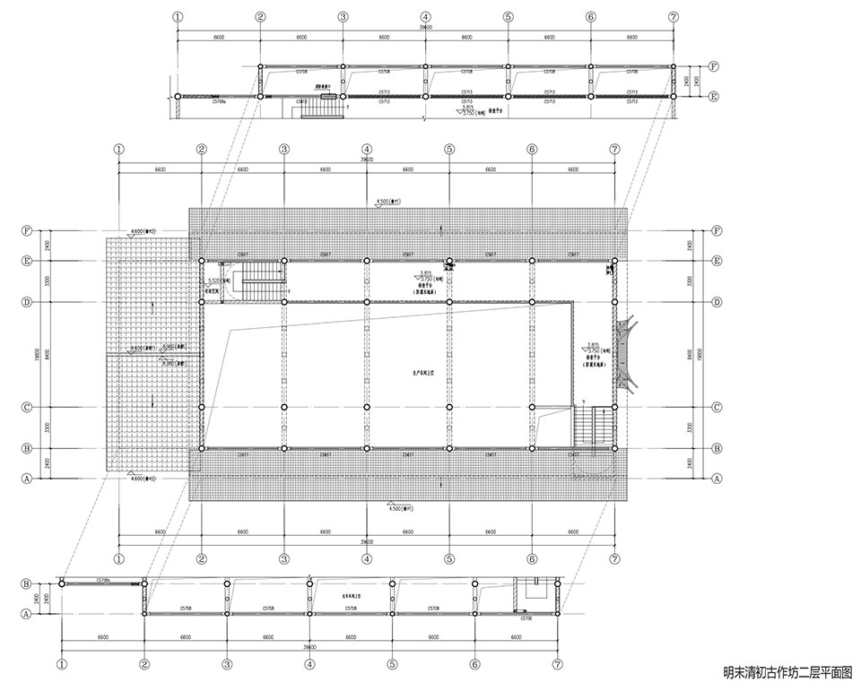
▼明末清初古作坊二层平面图,Two-story floor plan of an ancient workshop from the late Ming and early Qing dynasties

▼明末清初古作坊东立面,East facade of an ancient workshop from the late Ming and early Qing periods

▼明末清初古作坊南立面,South facade of an ancient workshop from the late Ming and early Qing periods

▼明末清初古作坊剖面,Section of an ancient workshop from the late Ming and early Qing periods

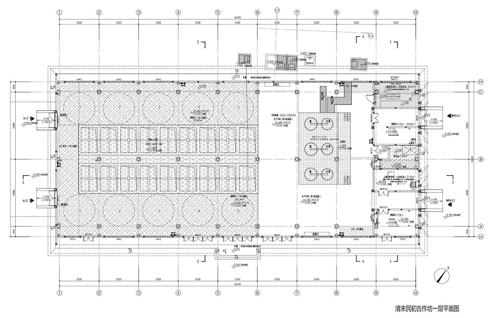
▼清末民初古作坊一层平面图,Floor plan of an old workshop from the late Qing Dynasty and early Republic of China

▼清末民初古作坊二层平面图,Second plan of an old workshop from the late Qing Dynasty and early Republic of China

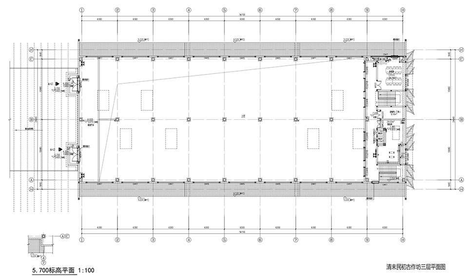
▼清末民初古作坊三层平面图,Third plan of an old workshop from the late Qing Dynasty and early Republic of China

▼清末民初古作坊东立面,East Elevation of an Ancient Workshop from the Late Qing and Early Republican Period

▼清末民初古作坊南立面,South Elevation of an Ancient Workshop from the Late Qing to Early Republican Period

▼清末民初古作坊剖面图,Cross-sectional diagram of an ancient workshop from the late Qing and early Republican period

Project name:Gulin Maoxi Jiangjiu Jiuba Project Supporting Ecological Cultural Tourism Base (Phase I) Project
Project type:Industrial Architecture
Design: TJAD
Website: http://www.tjad.cn/
Contact e-mail: tjcdfy@163.com
Design year:2023
Completion Year:2024
Leader designer & Team:Architecture: Jiang Limin, Tan Jinsong, Dai Yuhang, Lu Li, Chen Yi, Wang Mei, Peng Yiwei, Zhang Xiang, Fu Zheyuan, Xiong Zhuozhi, Ye Lei, Song Yang, Hong Yali, Wang Ke, Chen Xiao, Chen Liyao, Gan Zhichao, Wang Tianqi, Shu Shihao, Li Anhong, Feng Cuilan, Li Yijing.
Structural Engineering: Wang Ning, Gao Jian, Dai Chongmin, Su Yiting, Leng Yanlin, Kang Hao, Xie Mingguang, Song Tiange
Plumbing and Drainage: You Bolin, Li Li Ping, Tao Linyong, Zhu Binyao
HVAC: Wang Yu, Li Jing, Chen Kaiyuan, Bu Yinghui
Electrical and Weak Current: An Shichao, Qiu Ling, Song Haijun, Chen Lei, Wang Lei, Li Yanwen, Zhang Yize, Ma Lin
Landscape: He Qiang, Wang Mei, Fan Xianting, Zhou Yi, Zhuang Guowei, Zhao Hua, Li Yating
Curtain Wall: Jin Ying, Tian Lijun, Li Feng, Zhang Lei
Interior Design: Chen Yu, Bian Wei, Guo Yan
Road Engineering: Liu Lifang, Wang Chang, Wu Yonghai, Wu Tao
Project location:Maoxi, Gulin, Luzhou
Gross built area:21,903.52 ㎡
Photo credit: Zhang Yang
Partner:Ancient Architecture: Chengdu Yunhe Ancient Architecture Engineering Design and Consulting Co., Ltd.
Slope Support: Guiyang Building Survey and Design Co., Ltd.
Process Design: Sichuan Commercial Architectural Design Institute Co., Ltd.
Clients:Sichuan Jianxing Park Operation and Management Co., Ltd.
Materials:Blue brick, stone, wood, aluminum panel, concrete, glass curtain wall














