BIG BILL宠物空间,西安 / MOS木石设计
01 项目背景
Project Background
位于西安北池头的量子晨商业街区,前身是西安太阳锅巴厂,家喻户晓的太阳锅巴和阿香婆牛肉酱,是许多西安人儿时的味觉回忆。
Liangzichen Plaza , located in the Beichi Head district of Xi’an, was transformed from the former Xi’an Sun Crispy Rice Factory . The iconic Sun Crispy Rice snacks and A’xiangpo Beef Sauce produced here are household names, evoking the taste of childhood for generations of Xi’an locals
▼项目概览,overview of the project


▼红砖门头,red brick doorhead

在城市产业升级和存量更新的背景下,量子晨在2020年完成厂区建筑改造,从初期以电竞、LIVE音乐潮牌阵地为主,到如今容纳多元商业业态,逐渐成为聚集Z时代的潮流街区。
Amid urban industrial upgrading and stock regeneration, Liangzichen Plaza completed its architectural renovation in 2020. Evolving from an initial focus on esports and live music/streetwear brands, it now embraces diverse commercial formats, gradually transforming into a trendsetting district that gathers Generation Z.
▼室内看向街道,view to street

BIG BILL是一个围绕人宠社交平台创立的全新品牌,首店选址在西安量子晨,品牌主理人委托MOS木石设计,希望通过线下空间链接城市养宠群体,解决群体的社交和休闲痛点,打造轻松、愉悦的城市人宠生活方式。
BIG BILL is a new brand built around a human-pet social platform. Its flagship store is located at Quantum Plaza in Xi’an. Commissioned by MOS Design, the brand founder aims to connect urban pet owners through this physical space, addressing their social and leisure needs while fostering a relaxed, joyful urban lifestyle for both humans and pets.
▼通过线下空间链接城市养宠群体,connect urban pet owners through this physical space

02 场地条件Core Concept
烟囱和水塔,是量子晨保留下来的太阳锅巴厂两个标志性元素,BIG BILL所在基地紧邻红砖烟囱,与水塔相距数十米,场地外围广场有一定角度的缓坡。
▼量子晨街区的两个标志性元素,Two iconic elements of the Quantum Morning Block

The chimney and water tower, preserved as iconic elements of the former Sun Crispy Rice Factory, define Liangzichen Plaza’s industrial heritage. The BIG BILL store anchors a site adjacent to the red-brick chimney, positioned tens of meters from the water tower. The surrounding plaza features a gently sloped terrain.
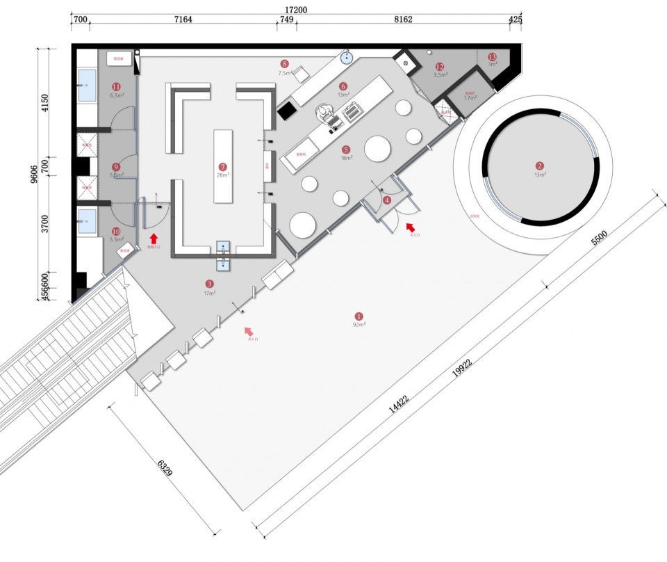
勘测场地后,我们发现项目所在场地主要存在两个问题:红砖烟囱虽然极具标识性,但与项目基地过近,产生逼仄、压迫感;原始场地呈三角形,又因其一侧的扶梯,形成一个有矩形缺口的三角形空间,这也是铺面长期被闲置的原因。
▼原始场地情况,original site condition

Our site survey revealed two primary challenges for the project location:The iconic red-brick chimney, while highly distinctive, stands excessively close to the site, creating a sense of confinement and oppression;The triangular plot features a rectangular void caused by an adjacent escalator structure, resulting in an irregular spatial configuration that contributed to the long-term vacancy of this retail space.
▼店铺概览,overview of the store

03 设计脉络
Design Context
场地条件决定了空间整体的设计脉络,红砖烟囱带着特定的年代和场所记忆,我们希望在设计一个新空间的同时,能够保留这一份历史遗迹,并以平衡取舍的原则碰撞出全新的感受。
The site conditions dictate the fundamental design framework. The red-brick chimney carries distinct temporal and spatial memory of its era. While designing a new space, we aim to preserve this historical relic and forge a novel spatial experience through balanced trade-offs.
▼在室内看向红砖烟囱,View towards the red-brick chimney

呼应红砖砌筑的烟囱,在外立面的设计上,选择陶土红砖拼装出门头,外延的地台则使用磨砂面红砖铺装,通过材质的协调,建筑空间与烟囱之间,消解了原本的割裂感和压迫感,产生“亲近”的链接。
Responding to the brickwork chimney, the façade design features terracotta bricks assembled into the storefront signage. The extended platform employs flamed-finish red bricks for paving. Through this material harmony, the architectural space dissolves the original spatial disconnection and oppressive feeling toward the chimney, establishing a perceptual closeness.
▼方盒子,Cores


BIG BILLl打造的“人宠物社交平台”,对功能的诉求主要有三方面:休闲社交、宠物用品零售区和宠物沐浴SPA区。对三块功能区的规划,最大的挑战便是场地不规则形状带来的空间尺度、锐角的不适,以及转折的自然度。
▼体块置入后的分析图,Analysis diagram

For BIG BILL’s “Human-Pet Social Hub”, functional requirements center on three zones:Interactive Leisure Zone、Pet Retail Zone、Pet Grooming & SPA Zone,The primary planning challenge lies in mitigating spatial constraints caused by the site’s irregular geometry—specifically, ergonomic strain from acute angles and compromised circulation fluidity at transitional junctures.
▼方盒子作为零售区,core as retail area

通过与量子晨街区物业的协商,允许设计团队对扶梯下方的区域加以使用。在拆除了原本扶梯下方的建筑玻璃幕墙后,扶梯下方增加的室外区域与室内构成了一个纵向空间场域,受到场地带来的启发,使我们萌生了在空间中置入一个方盒子的想法。
▼体块置入后的分析图,Analysis diagram

Through negotiations with Liangzichen Plaza property management, the design team secured authorization to utilize the area beneath the escalator. Following the removal of the original glass curtain wall under the escalator structure, the newly annexed outdoor zone and interior space collectively form a vertical continuum. This spatial condition inspired the conceptual insertion of a rectilinear volume within the void.
▼方盒子内的货架,shelves

向外部延伸的方盒子能够起到三重作用:首先,增加空间使用面积,满足品牌对多业态的需求;其次,方盒子的置入,使原本不规则形状的场地划分为三个相对规整的区域,规避了锐角和转折的问题;第三,外延的方盒子朝向街区的一面,可成为品牌空间的另一个展示面。
The cantilevered rectilinear volume achieves three core functions:Expanding usable area to accommodate the brand’s multi-program layout demands;Spatial rationalization by subdividing the irregular site into three orthogonal zones, eliminating residual acute angles and transitional conflicts;Enhanced street-front visibility via its outward-facing elevation, creating a secondary brand exhibition interface toward the urban precinct.
▼盒子向室外延展的一面成为空间的“第二立面”,extending to the outside becomes the “second facade” of the space


04 三个体块Three Diagrams
解决了设计之初的两个主要问题,三个功能区的划分便已十分清晰。连接主入口的区域,有着通透的玻璃幕墙,适宜将人宠社交、下午茶休闲时光放置在这里,释放室内场景,吸引过往路人。
With the resolution of the two primary design challenges, the tripartite functional zoning achieves definitive clarity. The area adjacent to the main entrance—featuring a visually permeable glass curtain wall—is optimally allocated to the human-pet socialization hub and leisure moments (e.g., afternoon tea), thereby amplifying interior activity visibility to capture street-level foot traffic.
▼社交休闲区,social area


建构的方盒子,有着四个立面、且立面的里侧和外侧均可使用,作为宠物零售区再合适不过,最里侧的区域则留给宠物洗护SPA。
▼分析图,analysis diagram

The constructed rectilinear volume features four bidirectional elevations — both interior and exterior surfaces being functionally utilizable — making it optimally suited for pet retail operations. The sequestered innermost zone is deliberately allocated to pet grooming and spa services.
▼导台专为宠物制作鲜食,designed for making fresh food for pets


我们在扶梯下的区域开辟了一条通道和入口,可直接通往这里,增加了洗护区的私密和独立性,避免了动线的干扰。此外,扶梯下方还开辟出泊狗处和宠物清洗池,这样一来,扶梯下的消极空间便成为一个公共、友爱且宣传品牌的窗口。
We have engineered a dedicated passage and entry point beneath the escalator, establishing direct access to this zone. This intervention enhances the privacy and operational independence of the grooming/spa services while eliminating circulation interference. Concurrently, the under-escalator space has been repurposed to incorporate a dog-parking station and pet-washing basin—transforming a previously residual area into a brand-positive civic interface that fosters public engagement.
▼洗护区,washing area

▼通道可直达宠物洗护区,passage to washing area

建构的方盒子,我们希望是轻巧且灵活多变的,材质以工字钢和木构为骨架,搭载透明PC波浪板,彩色的搁板则增添几分可爱俏皮。压低的顶面与下沉的地面共同作用,强化了盒子空间的体块和边界。
▼方盒子建构动态示意图,Dynamic diagram

The rectilinear volume is engineered to achieve structural agility and configurational versatility. Its framework employs I-beams and timber members as primary skeletons, overlaid with translucent polycarbonate wave panels. Chromatically vibrant shelving units introduce playful aesthetic accents. Strategically depressed ceilings and recessed floor planes synergistically intensify the volumetric presence and spatial definition of the boxed enclosure.
▼宠物饮水区,water area

如此,轻巧的方盒子,既是实用需求使然,更成为空间重构的契机。三个不同的功能区,摒弃了传统隔墙的限定,转化为可自由定义的流动空间场域。
Thus, the lightweight rectilinear volume emerges not merely in response to pragmatic exigencies, but as a catalyst for spatial reconfiguration. The three distinct functional zones deliberately reject conventional partition walls, transforming into freely definable fluid spatial fields.
▼透明PC波浪板,transparent PC corrugated board


BIG BILL自今年7月开业以来,每到一天的傍晚时分,便成为量子晨一道独特的“风景线”,爱狗人士在这里交换养宠心得,毛孩子们来回穿梭追逐,观察着属于它们的小江湖,空间内外,因这群生灵而焕发出别样的生机与活力。
Since its inauguration in July 2025, BIG BILL has consistently manifested as a distinctive landmark within the Quantum Plaza complex during evening hours. Canine enthusiasts convene here to exchange pet-care insights, while furry companions traverse and frolic freely, observing their own micro-society. This symbiotic interplay between occupants and architecture imbues the spatial environment with unparalleled vitality.
▼细部,details


▼原始平面图,original plan

▼平面图,floor plan















