不在山林·泸州梨花村,四川 / 小隐建筑
从泸州市区驱车二十分钟,喧嚣悄然退去,逐渐遁入一处山林幽谷。在蜀中名山方山的怀抱中,面对一片幽深的山谷梨园,「不在山林」悠然而居。这里是泸州江阳区丹林镇的梨花村,村内植有梨树四万余株,其中百年古树逾千,春日梨花如雪,故而得名“梨花村”。村子背靠的方山,是蜀东南佛教发祥地,山巅始建于唐的云峰寺中,供奉着全国唯一一尊“黑脸观音”,为这片山野更添一分禅意与神秘。
A twenty-minute drive from downtown Luzhou, the urban clamor quietly fades as you wind your way into a secluded wooded valley. Cradled by the famed Mount Fangshan of Sichuan and overlooking a deep, tranquil valley of pear trees, Buzzy Sunny rests serenely. This is Danlin Town’s Pear Blossom Village in Jiangyang District, Luzhou, home to over 40,000 pear trees, including more than a thousand ancient ones over a century old. In spring, the pear blossoms resemble a blanket of snow, giving the village its name. The village is backed by Mount Fangshan, the birthplace of Buddhism in southeastern Sichuan. At its summit stands Yunfeng Temple, originally built during the Tang Dynasty, which enshrines China’s only statue of the “Black-Faced Guanyin,” adding a layer of Zen mystique to this wild landscape.
▼项目鸟瞰,aerial view of the project


这是继泸州叙永·山岫民宿之后,小隐建筑在川南泸州打造的又一处山野度假作品。延续了小隐建筑一直以来乡野建筑营造的基调,低调内敛而又特立独行,适宜的融于山林之中。川南民居的现代演绎,汇集了传统川南民居的各种建筑特点,梨花瓣意象转化的点缀,将东方美学洒落在这片川南山野之中。山林、山花、雨雾、晚霞的浸润,赋予了不在山林诗意与灵气,在山野间演绎隐逸之美。
▼项目原貌,original view of the project

Following our earlier project, Shanxiu Homestay (Mountain Retreat) in Xuyong, Luzhou, this is another one crafted in southern Sichuan’s Luzhou by Archermit. It continues the studio’s consistent approach to rural architecture—understated, introverted, yet distinctive—integrating appropriately into the mountain forest. The design presents a modern interpretation of Southern Sichuan vernacular architecture, incorporating its characteristic elements, while touches inspired by the imagery of pear blossom petals sprinkle Eastern aesthetics across this Southern Sichuan landscape. Steeped in woods, mountain flowers, rain mist, and sunset glows, Buzzy Sunny is endowed with poetry and ethereal charm, embodying a reclusive beauty within the wilderness.
▼项目鸟瞰,aerial view of the project

▼建筑及庭院,building and courtyard

▼观景台远眺,distant view of the viewing platform

整个建筑基本保留原有民房的空间格局,宽阔巨大的瓦屋面将一层间断的建筑串联成一个整体,梨花瓣叩开一个类椭圆的异形庭院,相较于传统的方形院子更显灵动、柔美,屋檐下的天空形随人动,变化万千,为人们带来更加生动有趣的山野生活体验。二楼屋顶的彩钢棚也改成了瓦屋面,让整个建筑更加和谐统一。屋顶的观景台,犹如乌黑的梨树枝上一颗含苞待放的白色花苞,轻悠的悬在空中,赋予了不在山林独特的形象识别性。同时也为客人提供了一处俯瞰梨园幽谷和观看山林日落的绝佳场所。
▼意向生成,concept generation

The structure largely preserves the original spatial layout of the old farmhouse. A vast, sweeping tile roof unites the intermittently spaced single-story buildings into a cohesive whole. An almost elliptical, atypically shaped courtyard, inspired by the form of a pear blossom petal, feels more dynamic and soft compared to traditional square courtyards. The sky framed under the eaves shifts with one’s movement, offering ever-changing, vivid experiences of wild living. The second-floor’s original color steel sheet canopy was replaced with a tiled roof, enhancing the building’s overall harmony and unity. The rooftop viewing platform, resembling a white, budding blossom on a dark pear branch, hovers lightly in the air, imbuing Buzzy Sunny with a distinctive visual identity. It also provides guests with a perfect spot to overlook the serene pear orchard valley and witness the mountain sunset.
▼观景台俯瞰院子,overlook the courtyard

▼梨花瓣砸出的院子,courtyard looks like pear blossoms

▼白日的不在山林,Buzzy Sunny at daytime

▼屋面局部,roof detail


▼梨花瓣院子,courtyard like Pear blossoms

停车信步,迎着巨石的指引拾阶而上,隔着敦实的毛石院墙,便窥见不在山林的侧脸。踏过石板桥,攀上狭窄的石巷楼梯,迎头撞见空中白色的观景台挂在幽远苍翠的幕布之前。步入灵动闲适的小院,青石板铺设的院子,原石砌筑的院墙,暖白色的稻草漆外墙,木结构的屋架,秩序俨然的小青瓦屋面,将传统川南建筑松弛的神韵勾勒出来。顺着院子开口的方向望去,开阔的山谷尽收眼底。扑面而来的巨幅画卷和隐蔽的入口形成了强烈的反差,这种曲径通幽处的豁然开朗让人心旷神怡。
Parking your car and strolling upwards, guided by boulders, you catch a glimpse of Buzzy Sunny’s profile beyond the sturdy, rustic rubble wall. Crossing a stone slab bridge and ascending a narrow stone staircase, you encounter the white viewing platform suspended against a backdrop of distant, lush greenery. Stepping into the lively and leisurely courtyard—with its bluestone paving, original stone walls, warm white straw-painted exteriors, wooden structural frames, and orderly small blue-grey tile roofs—the relaxed essence of traditional Southern Sichuan architecture is outlined. Looking out through the courtyard’s opening, the expansive valley unfolds before you. The sweeping panorama forms a striking contrast with the discreet entrance, evoking the delightful surprise of finding a serene haven after a winding path—a truly uplifting experience.
▼隔着石墙望见不在山林,Seen across the stone wall

▼屋檐局部,roof detail

入院后的身心 自然松弛 看似随意的窗洞、廊架和隙口,都精心框取着一幅幅如画山色,画随人动
Body and Mind Naturally Unwind Upon Entry. Seemingly casual window openings, corridor frames, and gaps meticulously frame mountain scenes that shift as you move.
▼屋檐局部,roof detail

▼院子里的框景,The framed view in the courtyard

▼院子的曲线屋檐,The curved eaves of the courtyard

▼餐厅廊下望向院子,The restaurant porch looks towards the courtyard


▼院子里的框景,The framed view in the courtyard

▼后院局部,Part of the backyard

「不在山林」仅打造4间客房,每间客房各具特色。一楼带小院的亲子房,天窗的光倾泻而下,如月光柔和的洒满房间,谓之明月。二楼的套房出阳台便可俯瞰整个院子和山谷,屋内恰好看到青瓦分水的屋脊如山峦伸向远方,谓之望岳。精致素雅的餐厅,老屋留下的木梁把远去的岁月又拉回了现实;阶梯式的多功能茶室,粗犷原生的小酒吧,惬意野趣的户外汤池,满足不同客群的出行需求。室内整个空间延续了阴翳淡然的气质,淡雅柔和的色调与温润的木材结合,将度假感和自然感巧妙融合在了一起。通透的落地门窗将室外自然引入室内,每一个角落都散发出不动声色的拙雅之美。一件家具、一扇窗、一束花、一缕光..……没有繁复的装修,却处处尽显东方美学。
Buzzy Sunny offers only four guest rooms, each with its unique character. The family room on the ground floor features a small courtyard, with light from a skylight pouring in like soft moonlight, aptly named “Bright Moon”. The suite upstairs opens onto a balcony overlooking the entire courtyard and valley; inside, one can see the ridgeline of the grey-tiled roof stretching into the distance like mountain peaks, hence “Gazing at Peaks”. The refined and elegant restaurant, with wooden beams retained from the old house, brings bygone years back to reality; a tiered multi-purpose tea room, a rustic raw-style bar, and a delightfully wild outdoor hot spring pool cater to the diverse needs of different travelers. The interior spaces continue the tranquil, subtly shadowy ambiance. A palette of soft, elegant tones combined with warm wood seamlessly blends a sense of leisurely retreat with nature itself. Full-height doors and windows merge the outdoors with the interior, allowing every corner to emanate an unassuming, rustic elegance. A piece of furniture, a window, a floral arrangement, a ray of light… devoid of ornate decoration, yet Eastern aesthetics are evident throughout.
▼餐厅空间,Dining hall

▼茶室,Tea room

▼餐厅空间,Dining hall


▼客房空间,Guest room



▼客房空间,Guest room



树林摇曳发出莎莎的声响,清晨的鸟语、白日的虫鸣、夜晚的蛙声挂满山林 正是“树林阴翳,鸣声上下” 萦绕在充满梨香的空气中,更透着些许山野禅意。
The rustling of trees swaying, the morning birdsong, the daytime chirping of insects, and the nightly chorus of frogs adorn the mountains. It is truly “where trees cast shadows and myriad sounds of nature rise and fall.” Lingering in the pear-scented air, it carries a subtle sense of mountain Zen.
▼酒吧夜景,night view of the bar

▼酒吧夜景,night view of the bar

偶得幽闲境,遂忘尘俗心。始知真隐者,不必在山林。
Stumbling upon this serene retreat, One forgets the mundane world’s strife. One can thus realize that a true recluse Need not retreat to the mountains and forests.
▼夜景,night view

▼夜景,night view


不在山林,以诗而名,山野入画。在这方乡野的山林间,感受它独有的避世感,栖居在白居易悠然闲适的诗中。
Buzzy Sunny — named in poetry, painted with wilderness. In this rustic landscape, Feel its unique sense of seclusion, Dwelling within the leisurely verses of Bai Juyi.
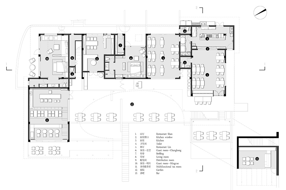
▼一层平面,ground floor plan

▼二层平面,first floor plan

▼屋顶平面,roof plan

▼立面,elevation

▼剖面,section

建筑主创团队:小隐建筑事务所
主持建筑师:潘友才
设计总监:杨喆(合伙人)
技术总监:陈仁振(合伙人)
设计团队:杨锐、胡沁梅、赵亚线、苟源君
施工图团队:成都美厦建筑设计有限公司
业主单位:泸州市江阳区丹林镇人民政府
施工单位:泸州兴阳建川实业有限公司
摄影:存在建筑-建筑摄影、形在空间摄影、小隐建筑
撰文:潘友才
项目地址:四川省泸州市江阳区梨花村不在山林
建筑面积:590平方米
建筑材料:白色真石漆、钢化单银中空超白玻璃、钢结构(木纹漆)、实木椽条、实木望板、小青瓦、氟碳漆
建成时间:2024年12月
Architectural Design Team: Archermit
Principal Architect: Pan Youcai
Design Director: Yang Zhe (Partner)
Technical Director: Chen Renzhen (Partner)
Design Team: Yang Rui, Hu Qinmei, Zhao Yaxian, Gou Yuanjun
Construction Documents Team: Chengdu Meisha Architectural Design Co., Ltd.
Client: The People’s Government of Danlin Town, Jiangyang District, Luzhou City
Construction Unit: Luzhou Xingyang Jianchuan Industrial Co., Ltd.
Photography: Arch-Exist, HereSpace, Archermit
Copywriting: Pan Youcai
Project Location: Buzzy Sunny, Pear Blossom Village, Jiangyang District, Luzhou City, Sichuan Province
Gross Floor Area: 590㎡
Primary Materials: White sand-textured paint, Tempered single silver low-E coated ultra-clear insulating glass, Steel structure (wood grain paint), Solid wood rafters, Solid wood sheathing, Small blue-grey tiles, Fluorocarbon paint
Date of Completion: December 2024














