帕维洛斯塔住宅,拉脱维亚 / MADE arhitekti
该项目被设计定义为一个宽敞的聚会空间。住宅设有大型客厅和客房,作为紧邻的业主的主住宅的扩展部分。
The Pāvilosta house (Latvia) is designed as a spacious gathering space with a large living room and guest rooms, serving as an extension to the client’s main residence located next door.
▼项目概览,project overview


▼与主住宅的关系,the relationship with the main residence

帕维洛斯塔住宅的建筑概念为:位于“中间空间”中。设计概念的一方面是帕维洛斯塔传统的山形屋顶风格,另一方面是狂野海洋的力量和风的自由。帕维洛斯塔正是一个人们定居的地方,在这里人们与风、海、波浪建立了紧密的关系,成为自然奔放力量的一部分。房子就像是无尽海滨景观的一部分。沿街的建筑外形尊重传统轮廓,然后轻轻扭转,变成一个充满动感的向量。
▼项目模型,project model


The architectural concept of the Pāvilosta house is located in the in—between space. On the one hand, the traditional gabled character of Pāvilosta architecture, on the other hand, the power of the wild sea and the freedom of the wind. It is not for nothing that Pāvilosta is a place where people settle, who form close relationships with the wind, sea, waves and become part of the unbridled power of nature. The house is like a part of the endless seaside landscape. Along the street, it respects the traditional building profile, then with a light twist turns into a dynamic vector.
▼与海滨景观的紧密关系,the close relationship with the seaside landscape


▼扭转的建筑形态,twisted architectural form



▼传统的屋顶风格,the traditional gabled character


在与业主的讨论中,设计团队明确意识到空间特性与生活在海边的情感同样重要。房屋的建筑不可避免地受到海洋的影响。尽管其是用木材建造的,基础为混凝土,但动态空间的扭曲则是对风与水存在的致敬。似乎风与水塑造了房屋的几何形态,就像它们永远塑造和改变着帕维洛斯塔的沙丘一样。
In discussions with the owner of the house, it became clear that spatial qualities are equally important as the emotions that accompany life by and on the sea. The architecture of the house is inevitably influenced by the sea. Although it is built of wood on a concrete foundation, the dynamic spatial twist is a tribute to the presence of water and wind. It would seem that wind and water have shaped the geometry of the house, just as they eternally shape and transform the Pāvilosta dunes.
▼屋顶与外立面,roof and facade

▼立面的圆形开窗,circular windows on the facade


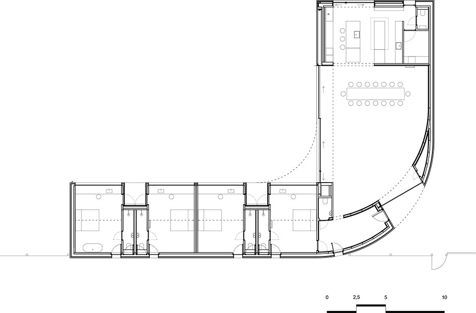
建筑的中央是一个供私人活动使用的大空间,厨房位于北端并与之相连。这个大空间开设有一个10米宽的、朝向西侧庭院的窗面,呈现出与外部空间微妙的融合趋势。住宅沿街设置了四间成对分布的卧室,并围绕两个从庭院进入的入口。建筑的承重墙结构采用了CLT和胶合木材,屋顶则采用木结构并覆盖天然石板。
In the center of the building is a large space for private activities, to which the kitchen is connected at the northern end. The large space has the potential to merge with the outside space, opening a 10m wide window display to the courtyard, facing west. Along the street there are 4 bedrooms, grouped in pairs around two entrances from the courtyard. The building’s load—bearing wall structures are CLT and glued timber, the roof is in wooden structures with a natural slate covering.
▼供私人活动使用的大空间,a large space for private activities


▼室内外空间的呼应,the correspondence between indoor and outdoor



▼卧室,bedroom

▼室内细部,interior details


▼总平面图,site plan

▼平面图,floor plan

Architecture — MADE arhitekti www.made.lv
(Miķelis Putrāms, Linda Krūmiņa, Māra Starka, Krists Lūkins)
Location — Pāvilosta, Latvia
Photos by Jānis Vēveris
Size — 300,9 m2
Cost — private information
Year (finished building) — 2025














