痴謎者咖啡,山东青岛 / 春田空间设计工作室
从原始建筑图能看到,建筑面积是三间加起来20平米的原热力公司传达室,内在角度看,对于咖啡店来讲,没有任何优点,但是有一个缺点“小” ,容不下一个吧台区的功能,更不要说客座区!当然这个房子外在角度看,对于商铺有非常大的优势,临街、独立(这在市区也非常的难得)、当然更打动我的是旁边有一棵靠拢的梧桐树 。
From the original architectural drawings, it can be seen that the building area is three 20 square meter original heat company reception rooms. From an internal perspective, there are no advantages for a coffee shop, but there is a disadvantage of being “small” and unable to accommodate the function of a bar area, let alone a guest area! Of course, from the external perspective, this house has a great advantage for shops. It is street facing and independent (which is also very rare in the urban area). Of course, what impressed me more is that there is a close wutong tree next to it.
▼项目概览,Project overview

设计理念:这次我想传输的就是建筑与自然、品牌价值共存,所以这次我放弃过多材质的堆砌,希望统一色彩体块与建筑结构的关系,更简单直接的把建筑内外与自然相依共存,建筑与人物关系更加明确。
Design concept: This time, I want to convey the coexistence of architecture, nature, and brand value. Therefore, I have given up excessive material stacking and hope to unify the relationship between color blocks and building structures, and more simply and directly coexist the interior and exterior of buildings with nature, making the relationship between buildings and characters more clear.
▼统一的体块,The unified volume



▼门头细部,Details of the facade


改造难点,解决咖啡吧台的功能需求,一个专业的咖啡吧台,是一个专业咖啡师的战斧,所以根据园区规划,扩充了一个完美的吧台功能区!这样原有两间大一些的开间作为客座区,最小的两平米开间作为了设备间储物间!而且把戶外客座区落在了屋檐下,这样一来增大了建筑体积,二来客座区遮阳避雨,客人会更加舒适!原有窗洞以下的非承重墙拆除,改为玻璃窗,尽可能增加室内采光和视野,建筑由此变得通透!
The difficulty of transformation lies in solving the functional requirements of the coffee bar. A professional coffee bar is the battle axe of a professional barista. Therefore, according to the park planning, a perfect bar function area has been expanded! In this way, the original two larger rooms were used as guest areas, and the smallest two square meter room was used as an equipment storage room! And the outdoor seating area is placed under the eaves, which increases the building volume. In addition, the seating area provides shade and shelter from the sun, making guests more comfortable! The non load bearing walls below the original window openings have been removed and replaced with glass windows to increase indoor lighting and visibility as much as possible, making the building more transparent!
▼客座区,Guest Area

▼服务吧台,Service Bar Area


▼手冲吧台,Hand-brewed coffee counter


吧台区的天窗,原有建筑屋顶都是平顶,但吧台区这间是钢结构扩充的,所以屋顶我想要达到最高,在最接近梧桐树的地方开了一整块玻璃天窗,没有任何边框的分割,只要整整一块!这样客人站在吧台区都会不自觉的仰望太空中的那棵梧桐树 ,心情不仅有咖啡带来的快乐,还有自然带来的治愈!
The skylight in the bar area, the original roof of the building is flat, but this room in the bar area is expanded by steel structure, so I want to reach the highest roof. I opened a whole glass skylight in the place closest to the wutong tree, without any border division, just a whole piece! In this way, guests will unconsciously look up at the wutong tree in the space when standing at the bar area, feeling not only the happiness brought by coffee, but also the healing brought by nature!
▼吧台区天窗,Skylight in the bar area

外墙内墙共用了一款白色软石,室内外屋顶使用了同色号白色涂料,虽然室内木墙板和室外木纹岩板不是一种材质,但是纹理和颜色,我们选择了一样的,在加上地面室内外的一款白色瓷砖,这样大家明白了,就是室内外材质的共用与贯穿,透过落地玻璃的视野,使得这个建筑具有了延展性,看起来体积变大了。面积变大了!这就是这次改造的重要思路!
The exterior and interior walls share a white soft stone material, and the indoor and outdoor roofs use the same color white paint. Although the indoor wooden wall panels and the outdoor wood grain rock panels are not the same material, we have chosen the same texture and color. In addition, we have added a white ceramic tile on the ground for indoor and outdoor use, so everyone understands that it is the sharing and penetration of indoor and outdoor materials. Through the view of the floor to ceiling glass, this building has extensibility, and it looks like the volume has increased and the area has increased! This is the important idea of this renovation!
▼夜景,Night view


梧桐树下的街边卡座,是坐下来喝杯咖啡,看看行人走过,也许能体会到城市中其实还是有很多值得的事。
The street seat under the wutong tree is to sit down and have a cup of coffee to watch the pedestrians walk by. Maybe you can realize that there are many worthwhile things in the city.
▼咖啡桌细部,Details of the coffee table


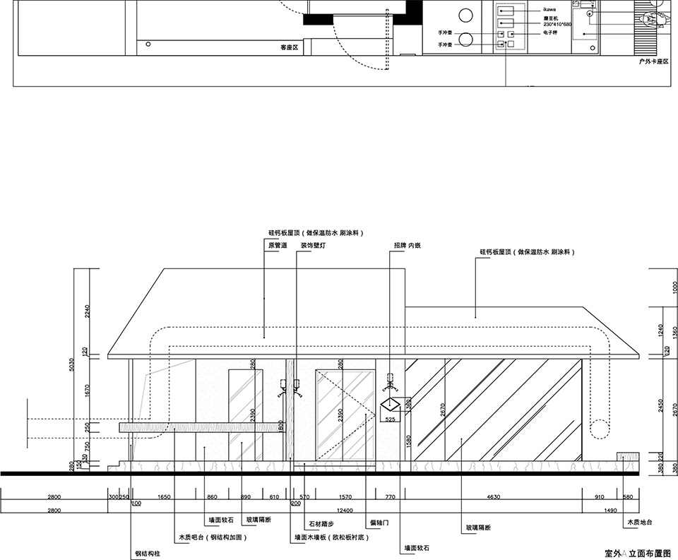
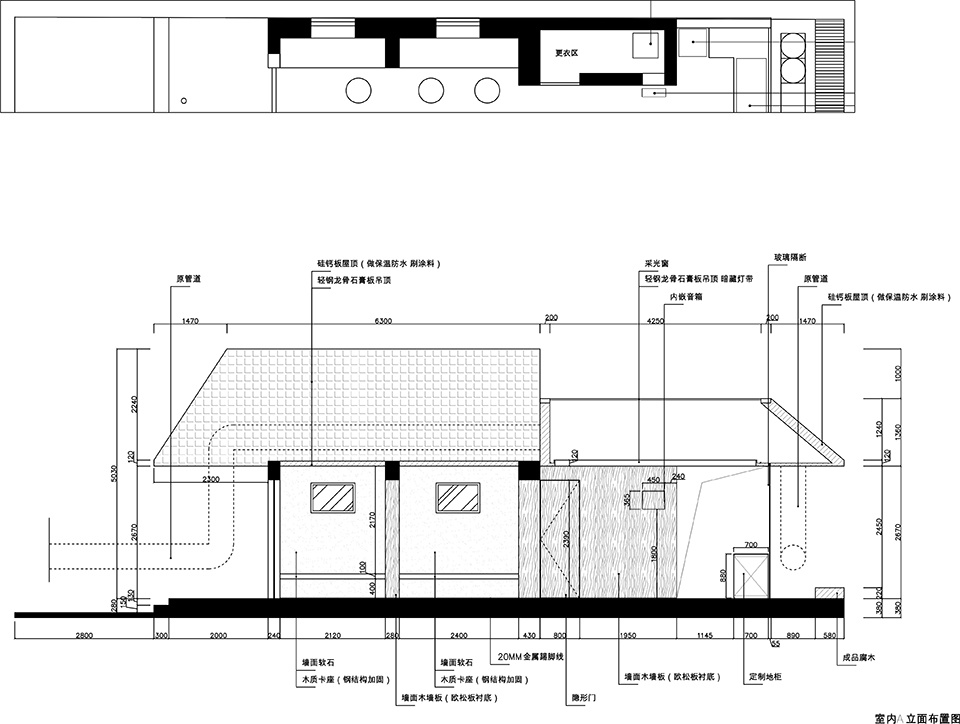
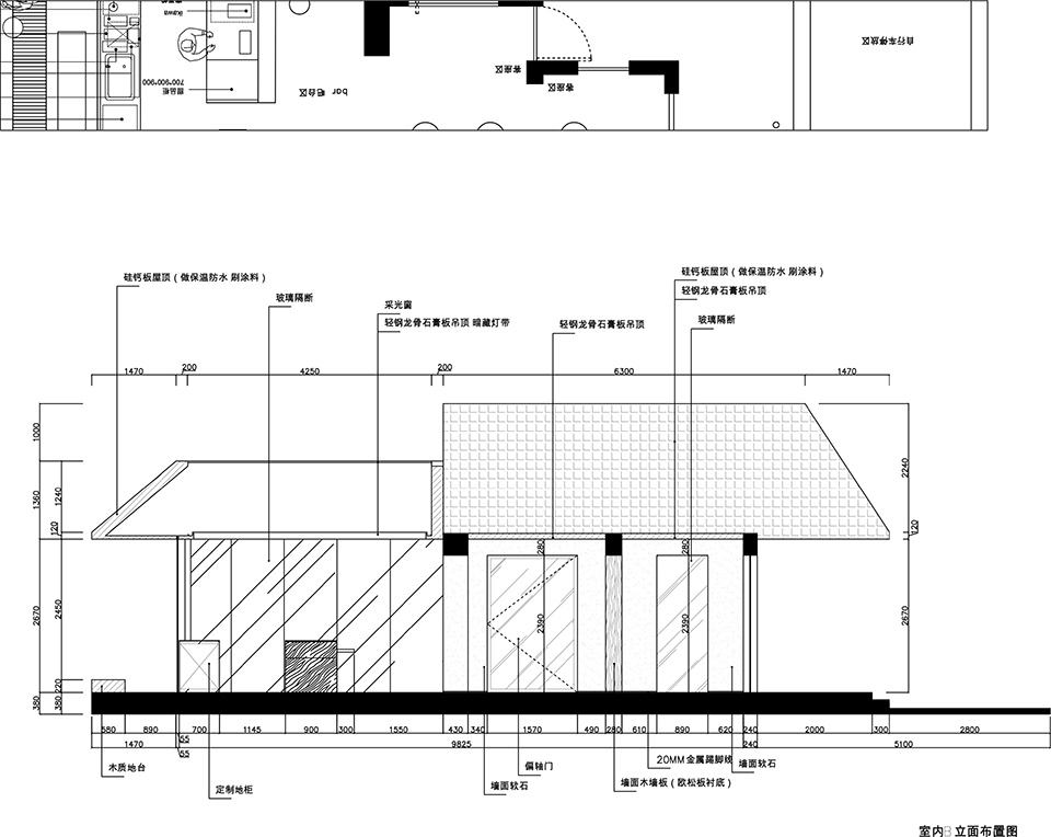
▼平面布置图,Floor plan

▼立面图,Elevation drawing



項目名稱:痴謎者咖啡
項目地址:12,漳浦路,市南区,青岛,山东,中國
項目類型:建築,室內設計和景觀
建築和室內設計師:春田空間設計工作室
設計時間:2025年7月-2025年8月
建築面積:20平米
建築材料| 软石 木
室內主材|软石 木
Project name | ADDICT COFFEE
Address | 12, Zhangpu Street, Shinan district , Qingdao , Shandong, China
Project Type | Architecture, Interior Design and Landscape
Architect & Interior Designer | Spring Space Design Studio.
Design Period | July 2025– August 2025
Gross Area |20 sqm
Architectural Materials | Soft rock and Wood
Interiors Materials | TSoft rock and Wood
Spring Space Design Studio
tj_spring@163.com














