米兰青年俱乐部,意大利 / co.arch studio
位于米兰西北部的Certosa区,这片由RealStep推动的城市更新区域,如今已成为米兰最具活力的美食聚集地。这里矗立着一座建于二十世纪初的别墅,但它曾经是一座屠宰场,也一度沦为非法占据的空间,是城市中被遗忘的片段。而如今,它重生为米兰青年俱乐部,一个融合餐饮、聆听酒吧与现场音乐的多元空间。
In the Certosa District – located in the north-west of Milan, an area undergoing a major regeneration project promoted by RealStep and today Milan’s most vibrant gastronomic hub – stands an early 20th-century villa that has been many things over time: a slaughterhouse, a squat, a forgotten fragment of the city. Today, it is Club Giovanile Milano, a space that brings together dining, a listening bar, and live music.
▼项目外观,Project appearance

▼室内概览,Interior overview

该项目由RealStep推动,旨在为社区注入新的活力。设计委托给co.arch studio(建筑师Andrea Pezzoli与Giulia Urciuoli),他们面临的挑战明确而大胆:在不削弱历史性的前提下保留别墅的原貌,并通过鲜明的当代介入来放大其个性。
The project, promoted by RealStep, stems from the idea of bringing fresh energy into the district and was entrusted to co.arch studio (arch. Andrea Pezzoli, arch. Giulia Urciuoli), who embraced a clear challenge: to preserve the historic character of the villa without taming it, and instead highlight it through openly contemporary interventions.
▼鲜明的当代介入,Openly contemporary interventions

讲述故事的修复A restoration that tells stories
原有的建筑材料,诸如水泥地砖、灰泥、历史字迹等都被悉心修复。而建筑的设备系统则刻意外露,如金属脉络般穿梭于墙体与天花之间,营造出一种介于工业风、达达主义与赛博朋克之间的视觉氛围。设计意象不难追溯至Terry Gilliam的《巴西》、日本动画《Akira》以及多种复古未来主义的反乌托邦想象。
The original materials – cement tiles, stuccoes, period lettering – were carefully restored. Yet the building systems, deliberately left exposed, cut across ceilings and walls like metallic veins, evoking an industrial, Dadaist, cyberpunk aesthetic. Unsurprisingly, the references range from Terry Gilliam’s Brazil to Akira to retro-futuristic dystopias and visionary imaginaries.
▼外露的设备系统,Exposed equipment system


▼独特的视觉氛围,Unique visual atmosphere


▼未来主义的反乌托邦,The futuristic dystopias

在这里,Genuit的外露钢制管道不再只是技术解决方案,而是一种为空间添加了新“表皮”的叙事性设计装置。金属的反射、折射与中断在不规则的表面间交织,突出了过去与当下之间的时间张力。
The Genuit exposed steel ducts here become more than a technical solution: a design device capable of layering the narrative, adding a new skin to the walls. The metal reflects, interrupts, and converses with irregular surfaces, underlining the temporal gap between past and present.
▼叙事性设计,The narrative design

两种灵魂,一个舞台Two souls, one stage
建筑内部包含两间大型大厅,用于现场音乐演出与聆听专场。声学系统由Labirinti Acustici精调,室内设计则由OTS–Off the Shelf完成,在技术精准与创意自由之间取得平衡。白天,这里是一间餐厅与聆听酒吧;夜晚,它则化身为都市舞台。
Inside, two large halls host live music and dedicated listening sessions. The acoustics, fine-tuned by Labirinti Acustici, intertwine with interiors designed by Ots – Off the Shelf, balancing technical precision with creative freedom. By day it works as a restaurant and listening bar; by night it turns into an urban stage.
▼白天的室内空间,Indoor space during the day


▼夜晚的都市舞台,The night urban stage

被揭示的表皮A revealed skin
建筑外壳遵循相同的设计逻辑:别墅被“剥离”回原始形态,清除多余层叠后显露出檐口、装饰框架,以及刻在立面上的历史铭文SUINI DA MACELLO(意为“待宰猪”)。这是一次既讽刺又激进的设计动作——让新功能与旧记忆相互呼应,而非彼此取代。
The building envelope follows the same logic: the villa was “stripped back,” freed from accumulated layers to reveal cornices, decorative frames, and the historic inscription SUINI DA MACELLO (“pigs for slaughter”), a memory etched into the architecture itself. An ironic yet radical gesture that ties the new function to its past without erasing it.
▼立面上的历史铭文,The historic inscription

▼入口,Entrance

当代的嫁接Contemporary grafts
两处介入重新定义了立面:一是面向街道的大型橱窗,既将城市景象引入室内,又承载了俱乐部的霓虹招牌;二是由钢与穿孔金属板构成的外部楼梯,连接两层大厅并延伸至露台,使建筑的垂直流线也成为音乐体验的一部分。
Two interventions redefine the façade: a large shopfront window opening onto the street, drawing the city inside while hosting the neon sign of the club, and an external staircase in steel and perforated sheet metal, connecting the halls and extending into a terrace that becomes part of the musical experience.
▼霓虹招牌,The neon sign

一座逆流而行的别墅A villa against the current
Club Giovanile Milano毗邻La Forgiatura,那是一个同样由RealStep推动的城市更新项目。然而,这里采用了刻意对比的语言。若说La Forgiatura是创新的当代园区,那么这座别墅则像一件拒绝被同化的1930年代遗迹,以“异类”的姿态安坐于新街区之中,强调自身的独立与差异。
Club Giovanile Milano sits alongside La Forgiatura, another RealStep-promoted redevelopment. Yet here the language is intentionally contrasting. If La Forgiatura is a contemporary campus of innovation, the villa plays the card of anomaly: as if a 1930s relic had landed in the middle of the new district, refusing assimilation and instead amplifying its difference.
▼保留的建筑细部,The retained architectural details




▼家具细部,Details of furniture


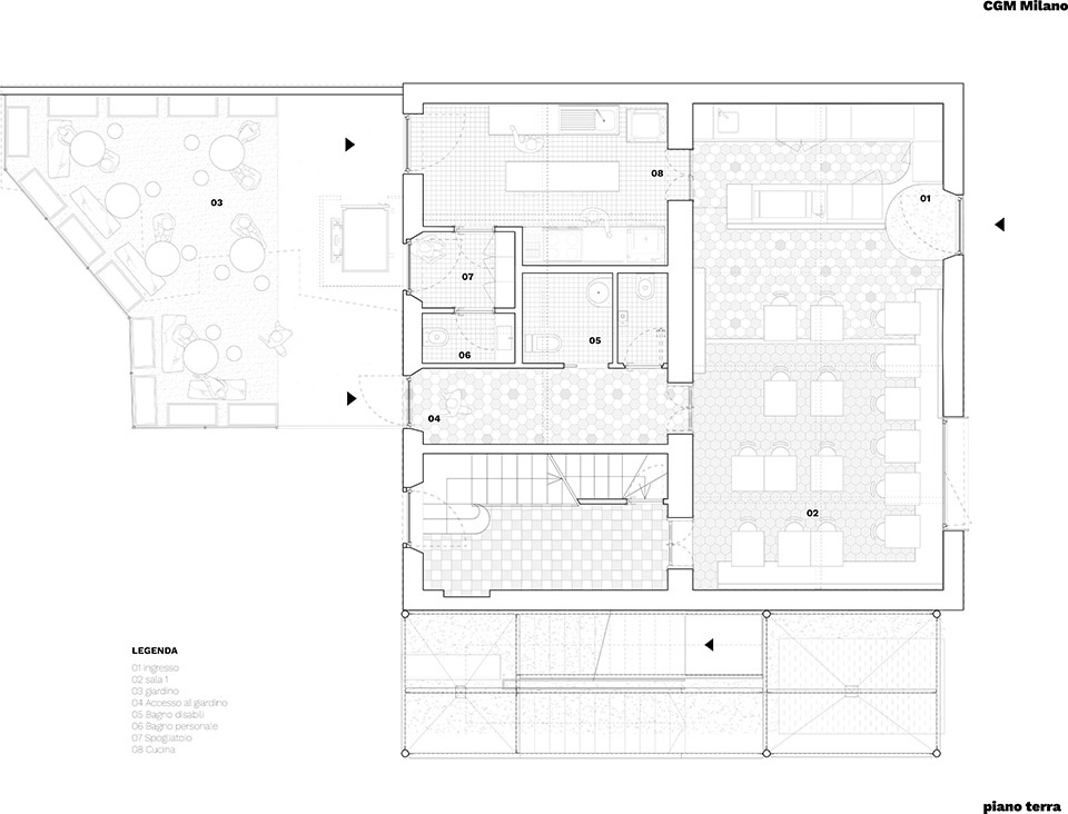
▼一层平面图,Ground floor plan

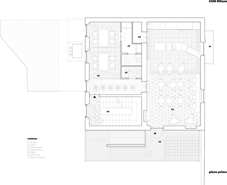
▼二层平面图,Second floor plan

▼剖立面图,Elevation & Section

CREDITS
Un progetto di co.arch studio / A project by co.arch studio
ARCHITETTURA PROGETTO DEFINITIVO, ESECUTIVO E DIREZIONE ARTISTICA
ARCHITECTURE , EXECUTIVE DESIGN AND ARTISTIC DIRECTION
arch. Andrea Pezzoli e arch. Giulia Urciuoli
team collaborators
Matteo Torti, Gaia Uslenghi, Federica Leonardi, Beatrice Perin
http://www.coarchstudio.it
https://www.instagram.com/co.arch.studio/
INGEGNERIA
Progetto strutturale _ ing. Gianluca Puccetti
progetto elettrico – P.I. Francesco Vaghi
progetto impianti meccanici – P.I. Emanuele Mandelli
ALLESTIMENTI INTERNI E ARREDI / INTERIOR FURNITURE
OTS – Off the shelf
ACUSTICA/ACUSTIC DESIGN
Labirinti acustici
DIREZIONE LAVORI/PROJECT MANAGEMENT
Studio Bossi – Ing. Naima Nocito, Ing. Naima Nocito,
Ing. Sonia Zani, Ing. Mario Andrita
Photos by Simone Bossi
https://www.simonebossi.it/photographer/
https://www.instagram.com/simonebossiphotographer/
Photos by Mario Marcantonio
https://www.marmocreative.com/portfolio/cgm/
General Contractor – RCM S.r.l. (edile, pavimento, impianti, serramenti e strutture)
Impianti elettrici – Future Energy Sync
Impianto elettrico a vista – Genuit
Soffitto acustico – Sonaspray
LUCI / LIGHTS
Egoluce
Artemide
COMMITTENTE/CLIENT
Proprietario – Realstep
Tenant – Setali














