武汉麓客岛餐厅 / 大料建筑
23年初,麓湖要在武汉开新盘,我们之前合作过多次,比如成都的一片森林儿童博物馆、伊甸岛建筑、CPI规划,海南的世纪海角商业街、骑楼老街规划等,大家熟门熟路的,也就又做了一个为儿童游乐场配套的餐厅。
In early 2023, LUXELAKES planned to launch a new project in Wuhan. Having collaborated on multiple previous projects—such as Dotsss Children’s Museum, Edenland Architectural, and CPI Planning in Chengdu, as well as The CAPE Commercial District and Qilou Historic Street Planning in Hainan—we were already familiar with each other and worked together seamlessly. As a result, we collaborated again to design a restaurant within a children’s playground.
▼树林中的餐厅,The restaurant in the woods

▼餐厅外观,The exterior of the restaurant

▼勇者小屋环抱着儿童游乐场,The Brave Cabin surrounds the children’s playground

前期策划这个餐厅叫“勇者小屋”,因其周围多是有些难度的娱乐攀爬设施,希望激发孩子们克服困难的勇气之意吧。房子不大,室内不到200平米,但期望能延展出大量的半室外空间,供游人纳凉休息。并且它作为游人进岛的门户,远远就能被看到。
During the preliminary planning phase, the restaurant was named “The Brave Cabin,” as it was surrounded by challenging recreational climbing equipment. We hoped the building would inspire children’s courage to overcome difficulties. With an indoor area of less than 200 square meters, the building has a relatively small footprint. Our goal was to create ample semi-outdoor spaces where visitors could relax in the shade. Additionally, thanks to its prominent location at the island’s gateway, the building is visible from a distance to arriving visitors.
▼勇者小屋与周边的攀爬设施, The Brave Cabin and the surrounding climbing equipment

▼通透的室内空间,A transparent interior space

▼大屋顶下的荫凉空间,The shady space under the large roof

▼餐厅位于园区的门户位置,The restaurant is located at the entrance of the park

那段时间我总看南宋蒋捷的词,尤爱一些直接直白的表达,比如“在何处,闲游闲玩“;”梦也梦也,梦不到,寒水空流“;”红了樱桃,绿了芭蕉“,总有种说不清的轻快奇异。于是乎,在做这个设计时,多少受些影响,没多想,就想,做一座山–”跳舞的小山“。
At that time, I often read the poems of the Southern Song Dynasty poet Jiang Jie, and was particularly drawn to his straightforward yet vivid expressions. There’s an indescribable lightness and peculiar charm to them. While working on this design, I was more or less influenced by this direct way of expression. Without overthinking, I simply wanted to create a mountain—a small, dancing mountain.
▼跳舞的小山,The dancing hill


而如何让小山跳起舞来呢?想起两张画,一张是马蒂斯在40岁时画的《舞蹈》,另一张是王希孟18岁画的《千里江山图》,试着捕捉其中的生命力和少年意气。造型模仿也好,气韵意会也罢,总之要转化到建筑空间上,多次尝试后,我和徐丹分别画了张画,我用毛笔画了个母题,规律叠加渐变后似树林似山峦似云彩;在这基础上徐丹直接用色块画出了有空间尺度的形体。
How can a mountain be made to dance? I recalled two paintings: Henri Matisse’s “Dance,” created when he was 40, and Wang Ximeng’s “A Thousand Li of Rivers and Mountains,” painted when he was just 18. I sought to capture the vitality and youthful spirit embodied in these works—whether through formal imitation or an intuitive grasp of their essence—and ultimately translate it into architectural space.
▼Henri Matisse《Dance》(左)&王希孟《千里江山图》(右),Henri Matisse《Dance》(left) and Wang Ximeng’s “A Thousand Miles of Rivers and Mountains” (right)

▼毛笔母题(左)&色块形体(右),Brush motif (left) & color block shape (right)

慢慢的糅合场地、功能、尺度、构造、材料等进来,更重要的是调整视觉符号与身体感受的关系,终于捏出了建筑方案,甚至是两个方案。第一种用氧化铜板,第二种用实木条,显然,第一种出现了大面积的双曲面造型,过于昂贵了,所以最终以第二种全平面的方案来实施。
We then integrated considerations of site layout, functional requirements, scale, construction methods, and materials into this design. More importantly, we adjusted the relationship between visual symbols and physical perception, ultimately leading to the realization of the architectural design—even two designs. The first design planned to use oxidized copper panels, while the second used solid wood strips. However, the first design involved extensive double-curved surfaces, which made it very expensive. Therefore, the second design, which used entirely flat surfaces, was ultimately selected.
▼两种方案,Two schemes

因为是武汉麓客岛最先开放的单体建筑之一,多少要起到门面的作用,所以建筑布局沿着岛的边界微微弯曲展开的同时,建筑高度需要够饱满,透过树林远远在河对岸就可望到。顺着开放的草坪,穿梭林间,慢慢靠近建筑时,“小山”的形态十分突出,吸引着游人一探究竟。
As one of the first standalone buildings to open on LuxeIsland, this building serves as a showcase for the LuxeIsland. Accordingly, the layout gently curves and extends along the island’s shoreline, while the building’s height was designed with so much mass that it remains visible from across the river through the gaps in the foliage. As visitors walk across the open lawn and weave through the woodland, gradually approaching the building, the “little mountain” stands out prominently, inviting them to explore further.
▼建筑布局弯曲展开,The architectural layout bends and unfolds

▼饱满的建筑形体,A plump architectural form

▼“小山”形态突出, The “small hill” shape is prominent

▼林间的“小山”,The “small hill” in the forest

爬上一段草坡,建筑突然完全出现眼前,巨大的实木体量漂浮于地面之上,一座座三角椎相互拉着手,舞动摇曳。孩子们往往会被眼前的巨物刺激的兴奋起来,飞奔过去,冲向十几米大的悬挑屋顶,建筑又像一座飞船正待飞起,情绪和身体也再次被带向高潮。
As visitors walk across a grassy slope, the structure suddenly unfolds before them—massive solid wood volumes floating above the ground, with triangular pyramids connecting hands, swaying and dancing. Children will be thrilled by the sight of this colossal form, dashing toward the cantilevered roof that spans over ten meters. The building, reminiscent of a spacecraft poised for takeoff, once again elevates both mood and sensation of visitors to a climax.
▼草坡之上的巨大实木三角椎,A huge solid wood triangular vertebra on the grassy slope

▼穿过树林建筑完全展现,The building is fully revealed as it passes through the woods

▼巨大的悬挑屋顶,A huge cantilevered roof

▼正待飞起的飞船,The spaceship is about to take off

▼正待飞起的飞船,The spaceship is about to take off

随后而来的家长们倒也自在,悠然在如巨树遮蔽下的荫凉里闲坐漫聊,眼前展开孩子们奔跑跳跃的身影,时不时叫他们过来休息喝水,隐在通透玻璃内的餐水吧生意也便兴隆了起来。
The parents who follow their children enjoy some leisure time, chatting beneath the eaves, which stretch out like a giant tree. With their children running and playing in front of them, the parents occasionally call them over to rest and get a drink. Behind the fully transparent glass, the restaurant and water bar are also bustling with activity.
▼家长在屋檐下闲坐漫聊, The parents were sitting idly and chatting under the eaves


▼餐厅围合着攀爬设施,The restaurant is surrounded by climbing facilities

▼通透的餐厅室内,The interior of the spacious dining room

▼草坡上的餐厅,The restaurant on the grassy slope


为了使建筑层层叠叠的山形屋顶仿佛从大地里蹦跃而起,主体结构采用了四束组合钢柱来支撑,并且通过外包岩板来分别成为户外座椅,外卖档口,洗手台等功能。上部屋顶为钢网架结构,来实现大的跨度及悬挑,通体外包实木板条,并设置了一些光孔,随之室内的灯具和空调口也在孔内,而厨房和空调等大型设备也皆隐藏于屋顶。
To make the layered, mountain-like roof appear as though it is leaping up from the ground, the main structure of the building is supported by four clusters of composite steel columns. These columns are clad in black stone panels, with parts of the cladding extended to form functional features such as outdoor seating, takeout counters, and wash stations. The roof adopts a steel space frame structure to achieve long spans and cantilevers. Its entire exterior is clad in solid wood strips, which are interspersed with triangular openings that also house indoor lighting and air conditioning vents. Large equipment, such as kitchen and HVAC systems, is entirely concealed within the roof structure.
▼钢结构外包岩板的造型,The shape of the external rock plate of the steel structure


▼钢网架结构的悬挑屋顶,Cantilevered roof of steel grid structure

▼屋顶细部的实木板条,Solid wood slats for the roof details

▼室内天花板的光孔,The light holes on the indoor ceiling

在设计阶段中,曾设想屋顶内也可以进人,增加餐饮位置及多样体验,但后来从运营角度考虑取消掉了,但造型还是保留,毕竟不是只有人进入的空间才是有功能性的,人们的视觉体验以及园区整体空间层次的考量也是功能性的一部分。
During the design phase, we initially envisioned the roof structure as a rooftop terrace to increase dining seating capacity and enrich spatial experiences. However, this concept was later abandoned due to operational considerations. Nevertheless, the roof’s form was preserved, as functionality is not solely defined by physical accessibility. Visual experience and the overall spatial hierarchy of the park are equally integral to a space’s functional value.
▼“小山”造型屋顶,”Small hill” shaped roof

▼从河、路到餐厅和游乐场的整体空间层次,The overall spatial hierarchy from rivers and roads to restaurants and playgrounds

我们人类本身并不健全,需要外挂的帮助,比如我们需要鞋来帮助奔跑,需要筷子来帮助进食,需要汽车让我们移动更快,需要电脑让我们更聪明,这些貌似功能性的外挂,帮助我们成“人”。同样,我们的心智也是不健全的,我们需要崇高需要谦逊,需要尊严需要勇气,这些也需要外挂的帮助,比如音乐比如艺术,同样建筑也承担这一部分功能,来帮助我们成为更完整的人。
We humans are inherently incomplete, reliant on third-party tools to supplement our capabilities. For instance, we need shoes to run, chopsticks to eat, cars to travel faster, and computers to enhance our thinking—these seemingly functional extensions help us become “human.” Similarly, our minds are not self-sufficient; we require nobility, humility, dignity, and courage, which also depend on external support—such as music and art. In the same way, architecture serves this very purpose: to help us become more whole as individuals.
▼人、动植物、建筑的关系,The relationship among humans, animals, plants and buildings

▼休息的人们,People taking a rest


这个设计的着眼点,于我而言更偏后者,并通过人们的“本能”来驱动。首先,我们先看到“小山符号“时,固有的记忆、情感被本能的唤起,引导我们进入有关自然和童真的情境;之后,走近建筑,巨大的体量、舞动的姿态和奇特的造型,肾上腺素刺激着身体感知本能调动了起来,使得我们进入到某种兴奋活跃的状态;在这种状态下,我们人类心智的那些空洞被放大,也许孩子们会更勇敢的冲向一座座攀爬设施,在玩乐间去探索去挑战,这也许就是勇者小屋的意义所在。
For me, the focus of this design leans more toward the latter and is driven by people’s “somatic intuition.” First, when we initially perceive the “little mountain” form, inherent memories and emotions are instinctively evoked by this symbol, drawing us into a context of nature and childlike innocence. Then, as we approach the building, its substantial volume, dynamic posture, and unusual shape engage our physical senses, immersing us in a state of excitement and activity. In such a state, the inner voids within the human psyche are magnified—children may become braver, dashing toward climbing structures to explore and challenge themselves through play. This, perhaps, is the true meaning of the Brave Cabin.
▼“小山”符号,”Little mountain” symbol

▼随着光线总在变化的色彩表情,The ever-changing color expressions along with the light


▼一层平面图,ground floor plan

▼屋顶平面图,roof plan

▼东立面图,east elevation

▼剖面图,section

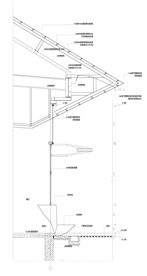
▼墙身大样图,wall detail

位置:武汉,麓客岛
时间:2023-2025
功能:餐厅
面积:200㎡
业主:成都麓湖文化旅游开发有限公司/武汉麓华房地产有限公司
建筑+内装: 大料建筑 (刘阳,徐丹,胡祎伟)
施工图设计:上海联创设计集团有限公司
商家内装设计:武汉十二平方设计咨询有限公司
景观设计:WTD纬图设计
摄影:朱雨蒙
Location: Hubei, Wuhan, LuxeIsland
Date:2023-2025
Function: Restaurant
Area: 200㎡
Client: Chengdu Luhu Cultural Tourism Development Co., Ltd.& Wuhan Luhua Real Estate Co., Ltd.
Architecture/Interior: DL Atelier (Liu Yang, Xu Dan, Hu Yiwei)
Construction Documents: UDG
Tenant Interior Design: Wuhan Shi Er Ping Fang Design Consulting Co., Ltd.
Landscape Design: WTD GROUP
Photography: Zhu Yumeng














