跳海酒馆杜甫江阁店,湖南长沙 / R-BAS大栋建筑
▼项目概览,Overall view

跳海酒馆杜甫江阁店坐落于长沙湘江河畔文庙坪,旨在为向观光产业转型的该市蓬勃的青年社群提供啤酒餐饮服务,并试图在此老旧居民街道营造一隅跨越边界的多元文化空间。
▼外立面开合状态,The opening and closing state of the facade

Perched upon the bank of the Hunan River at Wenmiaoping in Changsha, Drunk N’ Jump (TIAOHAI) Du Fu Pavilion seeks to serve the burgeoning youth community while the city undergoes an economic structural reform into a tourism-centric destination — offering not only F&B amenities but also building a multicultural boundary-transcending space for this old residential neighborhood.
▼入口,Entrance

文庙坪是长沙市历史文化街区,因清代长沙府学宫得名。第二次世界大战文夕大火中,作为湖南首府的长沙城市界面被彻底烧毁,并于社会主义时期被工业化地应需重建。R-BAS大棟建築再次受邀操刀跳海酒馆设计。品牌希望在基地构筑回应湖湘特色的室内,为之赋予满足营运的功能,同时与当下「网红」餐饮形成差异化。
▼轴侧立面,AXONOMETRIC FACADE

Wenmiaoping is a historic cultural block in Changsha, named after the prefectural Confucian temple from the Qing Dynasty. In the wake of World War II, the urban fabric of Changsha, Hunan’s capital, was all but consumed by the Wenxi Fire, leading to its industrialised reconstruction throughout the socialist era. R-BAS was again commissioned to design Drunk N’ Jump. Here the brand aspired to craft an interior that responds to the vernacular culture of Chu-Hunan region — equipping the space with programmatic necessities while distinguishing it from the prevailing wave of ephemeral ‘internet-famous’ F&B style.
▼室外饮用区,Outdoor drinking area


▼操作台,Operation console

设计灵感源自20世纪在地现代主义建筑记忆——长沙火车站的水平立面、竖向幕墙杆件及网格平面组织型式。朝北的入口和大屋面则体现楚辞记载的民居范式。R-BAS将铺地抬高,组成多级高度不一、虚实相间的台阶、栽有南方蕨类植物的花池、座椅。室内外增设了漂浮桌板,让利用场景灵活化。三角落水管被引入,「水周兮堂下」,使立面与休憩家具有机结合。
The design draws inspiration from the collective memory of 20th-century local modernist architecture, referencing the horizontal façade, vertical curtain wall framing, and modular grid organisation of Changsha Railway Station. The north-facing entrance and expansive eaves embody the residential archetype documented in the ancient Elegies of the South. R-BAS then lifted the floor slabs to create a multi-level landscape of steps, fixed planters with native ferns and seating of varied heights — an interplay of solid and void. Floating tabletops were introduced into the interior and exterior for different using scenarios. The triangular downpipe forges a multi-functional furniture along with the building’s envelope, evoking the poetic imagery of ‘around the house, oh! the water flows’.
▼室内饮用区,Indoor drinking area

▼座椅近景,Seating area close view

▼蓝色十字柱梁,Blue cross-shaped columns


局部裸露的旧结构与由角钢制作的色彩跳跃的蓝色十字柱梁共同强调了历史和当下的对话。十字柱梁亦为照明灯具提供支撑。出于商业文化原则,跳海酒馆杜甫江阁店被定义成一间「野生美术馆」。从而在该项目,设计师致力将「反思性怀旧」理念贯彻始终。场地主要材料选择了80年代流行的纸皮马赛克砖、随磨随浇水混凝土及钴蓝玻璃。这是深思熟虑的结果,令酒馆得以完美融入朴素日常的社区环境,而非开天辟地式地创造一个社交媒体「打卡」点。
Partially exposed original structures, together with chromatic blue cross-shaped columns and beam made of angle bars, accentuate a continuing dialogue between history and the contemporary moment. The cross-shaped column-beam system also provides structural support for integrated lighting fixtures. Guided by the brand’s philosophy, Drunk N’ Jump Changsha has been conceived as a ‘gallery of folks’. Thus throughout the project, the designer sought to depict the concept of ‘reflective nostalgia’. The primary materials selected for the construction — glazed mosaic tiles, heavy-exposed aggregate concrete with continuous wet-grinding finish and cobalt-blue glass, all prevalent in the 1980s — were the result of deliberate consideration. This intentional materiality allows the bar to blend seamlessly into the unpretentious, everyday cityscape of the neighbourhood, rather than establishing itself as a ‘check-in’ spot for social media only.
▼十字柱梁,Crossed Shaped Column

▼灯具细部和落水管,Lamp detail and furniturised downpipe

▼花池和地面细部,Fixed Planters and ground details

为了尊重城市的既有工业化脉络,空间有意使用大量不锈钢材。不同碳含量的钢材在室内分别承担吸附宣传物料看板与结构装饰件的功能。R-BAS对老式钢窗节点进行反复研究和转译,发明了一套同隔墙、天花、固定家具合为一体的三重门窗套—框—扇肋系统,使旧日建筑以当代手法轻盈地呈现。
In pursuit of echoing the city’s industrialised lineage, the interior incorporates a large number of stainless steel elements. Steels with varying carbon contents are employed to fulfil distinct roles — from attracting magnetic posters/boards to forming decorations themselves. Through meticulous study and reinterpretation of classical steel window joints, R-BAS developed a consolidated trilayered opening system, merging with partition walls, ceilings, and built-in furniture. In doing so, the architectural recollection of Changsha’s past is articulated with a voguish lightness.
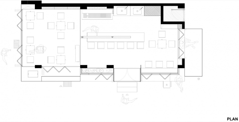
▼平面图,Plan

▼立面A,ELEVATION A

▼立面B,ELEVATION B

▼立面C,ELEVATION C

▼剖面A,SECTION A

▼剖面B,SECTION B

▼三层窗-家具-天花板对话图,DIAGRAM OF TRILAYERED WINDOW-FURNITURE-CEILING DIALOGUES















