蓝橙(国际)科创中心,杭州 / gad杰地设计
蓝橙(国际)科创中心位于杭州市萧山区潇滨一体化核心区的科创办公园区,是“两带两廊”创新产业布局中“风情科创走廊”的重要空间节点。
As a science and innovation office park in the integrated Xiaoshan-Binjiang development core area of Xiaoshan District, Hangzhou, the Blue Orange (International) Science and Technology Innovation Center is a key spatial node in the “Style Science and Technology Innovation Corridor” under the “Two Belts and Two Corridors” innovation industry layout.
▼园区及一期鸟瞰,aerial view of the Phase I campus

项目共分三期,gad对项目进行总体规划及单体设计。已竣工的一期项目中,gad作为EPC总承包牵头单位及设计主导方参与其中。一期项目总建筑面积约10.2W㎡,由两栋地上22层、地下2层(含局部夹层),高度约100m的办公塔楼组成。作为园区首批落地项目,设计不仅需要保持项目设计与施工的独立性与完整性,也要为园区二、三期的建设留下互通、交织、生长的空间。
The project is divided into three phases, with gad undertaking the overall planning and individual building design. In the completed Phase I project, gad participated as the lead EPC contractor and design lead. With a total construction area of approximately 102,000 ㎡, Phase I consists of two 22-story above-ground office towers (with 2 basement floors including partial mezzanines) and reaches a height of about 100 meters. As the first batch of projects to be implemented in the park, the design not only needs to maintain the independence and integrity of the project’s design and construction but also reserve space for the interconnection, integration, and “growth” of Phases II and III of the park.
▼城市公园视角,City park view


一期项目紧邻城市道路,主入口布局于两楼中间并形成贯通园区东西的广场。广场不仅将成为高效组织园区不同建筑与场所的主要交通空间,其大尺度、开放的空间特质也使其成为园区重要的公共活动空间,并与跟园区一街之隔的城市公园形成空间连续性,为城市提供了一个尺度适宜、安全的公共活动空间。而公园景观也因广场的视觉通畅性成为园区的一部分,提升园区景观品质的同时放大了园区的感知尺度。
Phase I is adjacent to urban roads, with its main entrance positioned between the two towers, forming a plaza that runs east-west through the park. This plaza not only serves as the main circulation space for efficiently organizing various buildings and spaces within the park but also, due to its large-scale and open spatial characteristics, acts as an important public activity space for the park. It forms spatial continuity with the urban park across the street from the park, providing the city with a public activity space of appropriate scale and safety. Meanwhile, the park landscape becomes part of the campus thanks to the unobstructed visibility of the plaza, which enhances the landscape quality of the park while expanding the perceived scale of the campus.
▼建筑立面,building facade

▼建筑立面细部,building facade detail

我们通过设计“可灵活分隔的办公模块”的方式,让办公空间能匹配多样的租赁需求。面积约1850㎡的标准层平面被分隔成四个规整且可分合的空间,设计通过建筑体块的分割、错动,让四个独立空间都拥有三面采光的景观视野。
Through the design of “flexibly separable office modules,” the office spaces can meet diverse leasing needs. The standard floor, with an area of approximately 1,850 ㎡, is divided into four regular and combinable spaces. By segmenting and offsetting the building masses, the design ensures that each independent space has a scenic view with natural light from three sides.
▼园区广场,Campus plaza

▼从室内看园区广场,Campus plaza from interior space

错动的体块也改变了同尺度下规整板楼的视觉宽度,让建筑显得修长、挺括。重复排列的虚实相间的锯齿状幕墙单元,不仅解决了室内采光、通风等使用需求,也进一步拉长了立面视觉比例,并让建筑呈现“步移景异”的动态形式。
The offset building masses also change the visual width of a regular slab building of the same scale, making the building appear slender and neat. The repeated arrangement of zigzag curtain wall units with alternating solid and void sections not only meets functional requirements such as indoor lighting and ventilation but also further elongates the visual proportion of the facade, endowing the building with a dynamic form where “the view changes with every step.”
▼错动的体块,The offset building masses


▼步移景异的动态形式,The dynamic form of changing scenes as one moves


建筑工程组织模式的升级 Upgrade of Construction Project Organization Model
蓝橙(国际)科创中心是gad继浙江建德空港航空产学研基地后承接的第二个EPC项目。相较于首个完全由“设计主导”的EPC项目,这次作为“EPC总承包牵头单位”,gad在工程过程中并不占有绝对主导权,与施工团队的合作属性更强,这便需要我们在建筑的高品质落地与施工团队的利益诉求之间寻得平衡。
The Blue Orange (International) Science and Technology Innovation Center is gad’s second EPC project following the Zhejiang Jiande Airport Aviation Industry-Academia-Research Base. Compared with the first EPC project which was completely “design-led,” this time, as the “lead EPC contractor,” gad did not hold absolute dominance during the project execution process. Instead, it featured a stronger cooperative nature with the construction team, which required us to strike a balance between the high-quality implementation of the building and the interest demands of the construction team.
In addition to gad’s unique project management team being on-site throughout the entire process, we also focused on in-depth control of key nodes in key processes during the project advancement, including design disclosure, design site inspections, change management, and sample control.
▼左:浙江建德空港航空产学研基地(2018)右:浙江冶金数字贸易产业园效果图(2024),Zhejiang Jiande Airport Aviation Industry-University-Research Base(left), Renderings of Zhejiang Metallurgical Digital Trade Industrial Park(right)


除了gad特有的项目管理团队全过程驻场,我们也着重对工程推进过程中关键流程的关键节点进行深入管控,包括设计交底、设计巡场、变更管理、样板控制。设计交底,即在项目施工前,将相关设计图与施工团队充分沟通,确保施工团队充分理解设计意图并能按图施工。设计巡场,即设计师有主动性地参与项目建造过程,关注项目成本、工期并配合解决现场问题。变更管理,即对业主或施工单位提出的设计修改进行修改必要性分析,并对可能产生的效果、成本、工期等变更进行预判,再对是否修改、如何修改进行评估。样板控制,即让设计师与业主参与工程全周期中材料、设备的选样、定样,有效控制项目落地品质。
Design Disclosure: Before the project construction commences, fully communicate the relevant design drawings with the construction team to ensure that the construction team fully understands the design intent and can construct in accordance with the drawings.Design Site Inspections: Architects proactively participate in the project construction process, pay attention to project costs and schedules, and cooperate in solving on-site problems. Change Management: Conduct an analysis of the necessity of design modifications proposed by the owner or the construction unit, predict the possible effects, costs, schedules, and other impacts of the changes, and then evaluate whether to make the modifications and how to implement them. Sample Control: Involve architects and the owner in the selection and finalization of materials and equipment throughout the entire project cycle to effectively control the implementation quality of the project.
▼施工细节,Construction detail


gad有不同建筑工程组织模式的实践经验。除了浙江建德空港航空产学研基地(2018)、蓝橙(国际)科创中心一期(2019)、梅山小筑改造/南太湖山庄会议中心二期(2020)、凤栖江河商务中心(2022)等已落地的EPC项目;也实践了留风轩项目(含gad总部大楼)(2017)、四堡七堡12班幼儿园(2023)、浙江冶金数字贸易产业园(2024)等建筑师负责制项目。但无论哪种模式,我们关注的核心并未改变,即充分发挥建筑师的积极性、主动性、统筹性,确保设计在品质、成本、进度均可控的前提下,实现方案的高还原度落地。
gad has practical experience in various construction project organization models. In addition to the completed EPC projects such as Zhejiang Jiande Airport Aviation Industry-Academia-Research Base (2018), Blue Orange (International) Science and Technology Innovation Center Phase I (2019), Meishan Small Building Renovation / South Taihu Villa Conference Center Phase II (2020), and Fengqi Jianghe Business Center (2022); It has also implemented architect-led projects including the Liufengxuan Project (including gad Headquarters Building) (2017), Sibao Qibao 12-Class Kindergarten (2023), and Zhejiang Metallurgy Digital Trade Industrial Park (2024). However, regardless of the model, gad’s core focus remains unchanged: to give full play to the enthusiasm, initiative, and coordination of architects, and ensure the high-fidelity implementation of the design scheme under the premise that quality, cost, and schedule are all controllable.
▼左:梅山小筑改造/南太湖山庄会议中心二期(2020)右:凤栖江河商务中心效果图(2022),Meishan Xiaozhu Renovation/Phase II of Nan Taihu Mountain Villa Conference Center(left),Renderings of Fengqi Jianghe Business Center(right)


▼左:留风轩项目(含 gad 总部大楼)右:四堡七堡 12 班幼儿园效果图(2023),gad Headquarters(left), The renderings of Class 12 kindergarten in Sibao and Qibao(right)


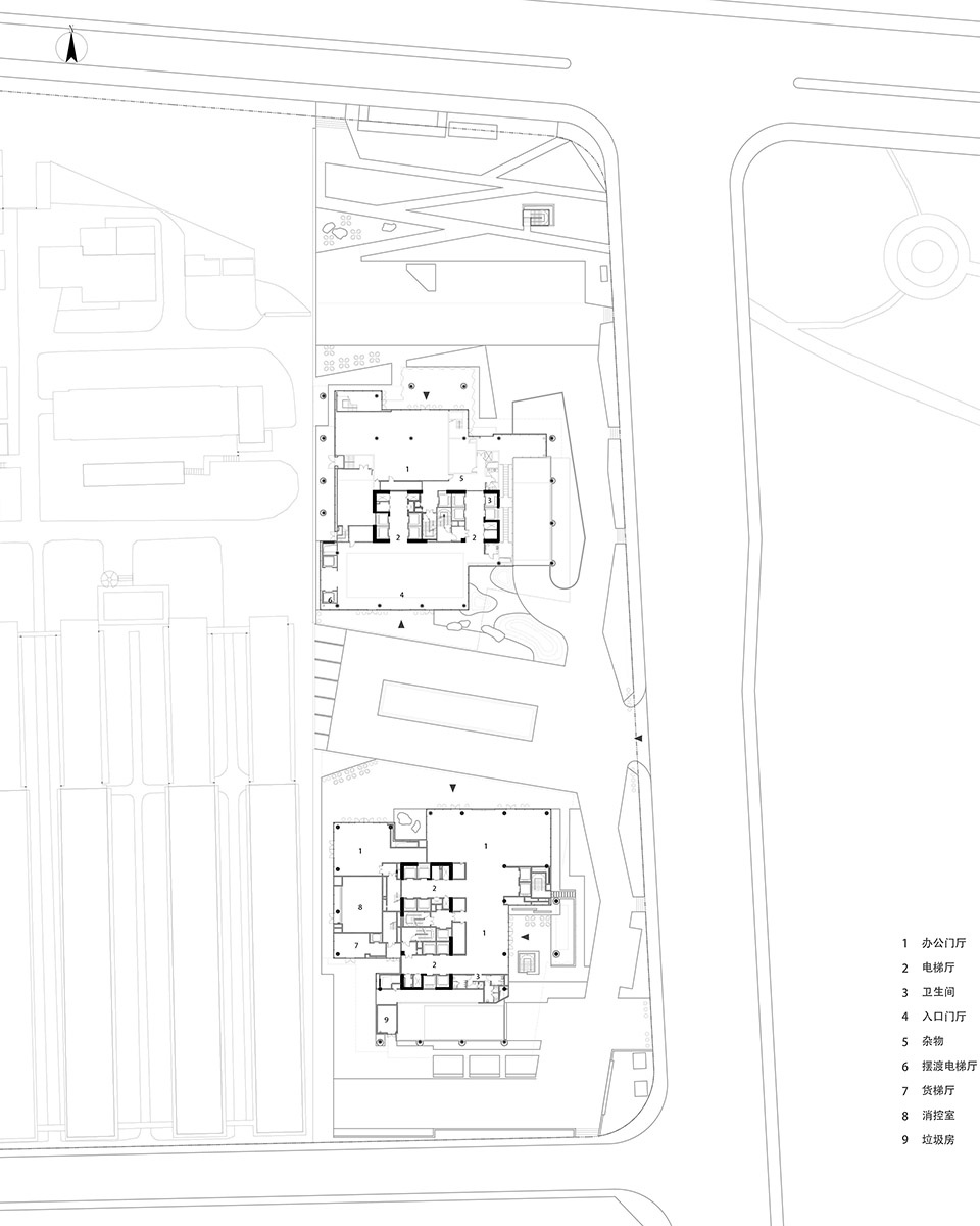
▼总平面图,site plan

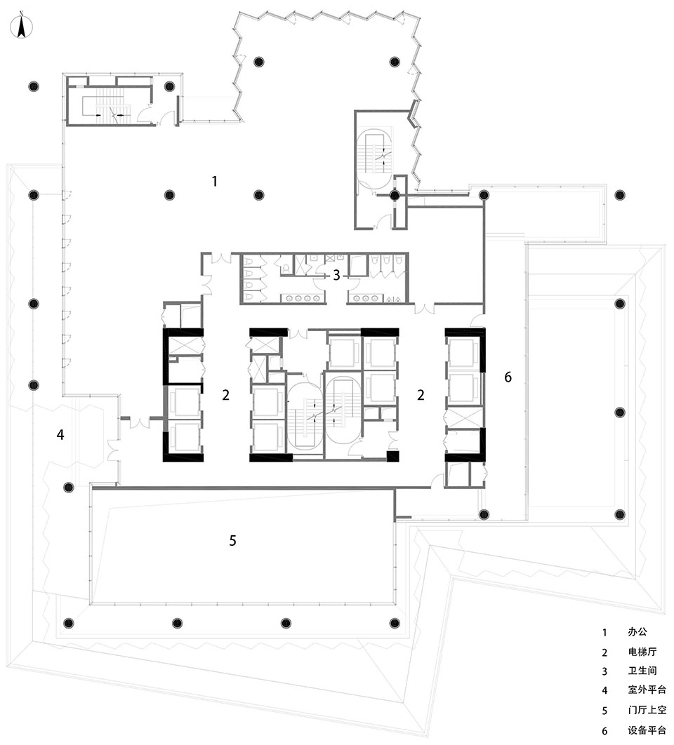
▼一层平面图,ground floor plan

▼1# 标准层平面图,Building 1 standard floor plan

▼1# 二层平面图,Building 1 first floor plan

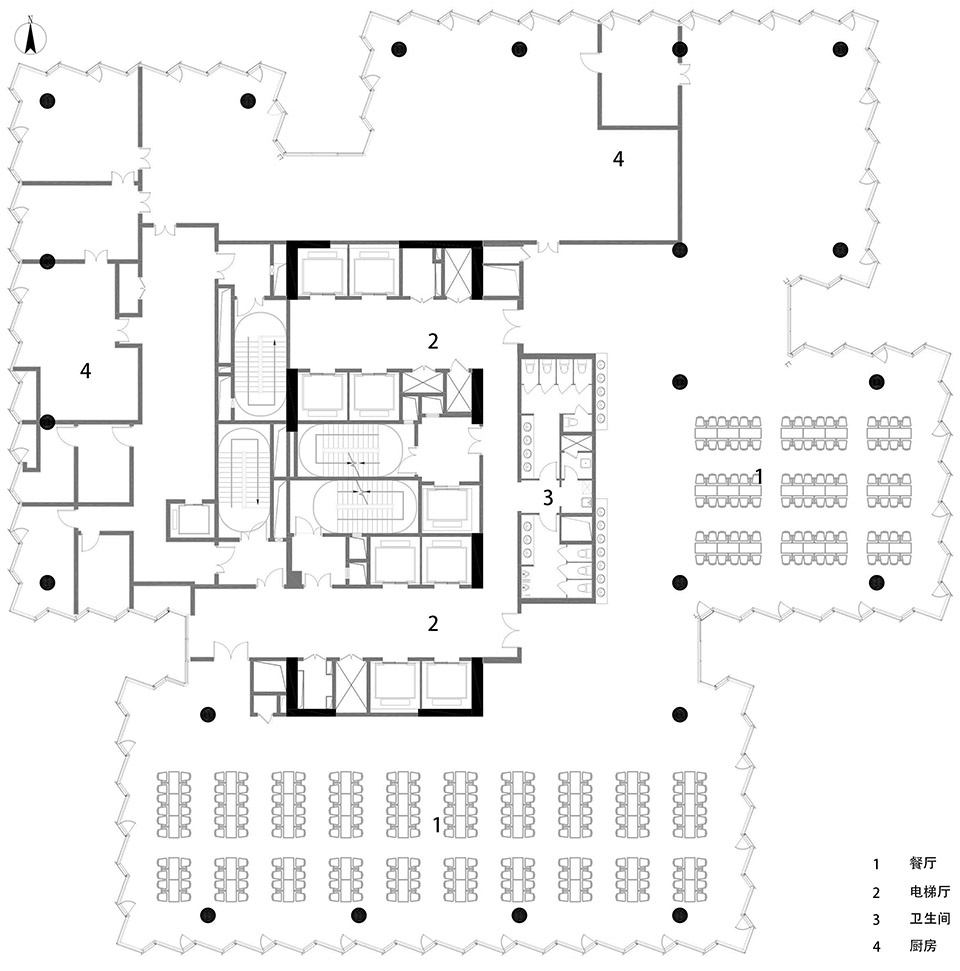
▼2# 二层平面图,Building 2 first floor plan

▼2# 四层平面图,Building 2 fourth floor plan

▼剖面图,section

Project Name: Blue Orange (International) Science and Technology Innovation Center Phase I (EPC)
Location: Hangzhou, Zhejiang
Address: Intersection of Jincheng Road and Xiaoyou Road, Xiaoshan District, Hangzhou
Project Type: Office
Year of Completion: 2024
Land Area: 12,567.0 ㎡
Floor Area: 102,372.10 ㎡
Plot Ratio: 6.57
Owner: Hangzhou Xiaoshan Environment Investment Development Co., Ltd.
Designed By: gad
Interior Design: gad
Landscape Design: gad
Lighting Design: Zhejiang Ruilin Light Environment Group Co., Ltd.
Curtain Wall Design: gad
Electromechanical Design: gad
Project Management: gad
Design Team: Zhang Wei, Yang Jian, Wu Kesuo, Guan Shengzu, Tao Siliang, Wu Xue, Lu Huiting, Hu Jingyang, Liang Jianmei, Hou Jinghui, Wu Xuefeng, Hu Di, Qian Zijun, Hong Zhiyan, Lu Baiqing, Zhuo Zhuhang, Gu Kaiwei, Chen Guoping, Cui Daliang, Zhang Zhenhuan, Xia Fenghui, Liu Qianlong, Chen Changqing, Zou Qiaoshan, Wang Pu, Wang Luxi
Construction Management: Wu Yingdong, Zhang Yanhong, Ge Tiancheng, Zhang Lifen, Guo Yu, Huang Xing, Li Zhiyan, Hong Shengzhe, Li Xiaohong, Li Tao, Dong Shiyi, Guo Quanbao, Zhou Jiale, Zhou Jiang, Li Xiangnan
Photography: Right Angle Image














