Oeiras之家,葡萄牙 / OODA
该住宅最大的限制在于地块的面积,但设计团队借助项目所在的坡地地形构思了设计灵感。坡地这一地形特点使Oeiras之家得以在更高标高处消解不利的环境因素,也成为在场地中植入建筑体块的契机。
The house is conditioned by the size of the allotment, but motivated by an existing slope, useful even in the elimination of an uninteresting and inconvenient environment, implanted at a higher level.
▼项目鸟瞰,bird ‘s-eye view of the project


▼林地中的建筑体量,the building volume in the forest land

设计策略在于直面并调和人工与自然要素,通过一个具有调节与分配功能的庭院来实现建筑的生成与组织。理性主义的几何体量突显了有利于居住空间的自然与环境价值。最终将看似消极的地形因素转变为设计理念的原材料。
The strategy involves confronting and reconciling artificial and natural data, believing in the affirmation and configuration of architecture through a regulating and distributing patio for the program. A rationalistic geometry and volumetry highlights natural and environmental values that are favourable to the domestic space. Apparently hostile, the topography is the raw material of the idea.
▼调和人工与自然要素,reconcile artificial and natural data

▼居住空间的自然与环境价值,natural and environmental values

水景泳池弥补了入口庭院因半地下布局带来的采光不足。中央空庭由三侧围合,并与地形相融:一侧承载公共功能,另一侧为私人功能。这两者通过透明与虚化的空间在中心相连,借以消解与衔接入口。厚重且牢牢锚固于坡地的体量,则通过“漂浮”的姿态让土地自由流动,并在外部与庭院中心之间借助植被的统一与连续来强化空间的延续与整体性。
A water feature as a scenic pool compensates for the lighting and the half-buried condition of the entrance patio. The central void is formed by three sides that are diluted in the terrain, one with social uses and the other with individual uses, joined to the centre by a transparent and absent spatiality that dematerializes to articulate the entrance. Dense and strongly anchored on the slope, the mass levitates to let the soil flow and progress between the exterior and the centre of the patio, with the unity and continuity of the vegetation.
▼水景泳池,the swimming pool

项目横断面呈现出的的静态水平感因对角线的交错动势而被激活,进而形成不同层次的透明性,而这种透明性由倾斜且可通行屋顶的“负形”所确证。正是地形赋予屋顶更多维度与功能,从而延展了住宅的叙事。所采用的材料贯穿整个建筑围护体系,也进一步强化了项目的整体性与全局感。建筑在此展现出一贯的变革性,同时也为场地带来稳定与品质。
The static horizontality of the transversal section is animated by diagonal cross movements, and is generated by different transparencies confirmed by the negative of the sloping and accessible roof. This is due to the topography that adds dimensions and uses to the roof that prolong the narrative of the house. The materiality adopted goes through the closings of the house and confirms this total and global dimension. The architecture appears, as always, transformative, but also capable of adding stability and quality to the place.
▼良好的室内采光,good indoor lighting

▼起居室,living room

▼厨房,kitchen


▼卫生间,bathroom

▼走廊,corridor

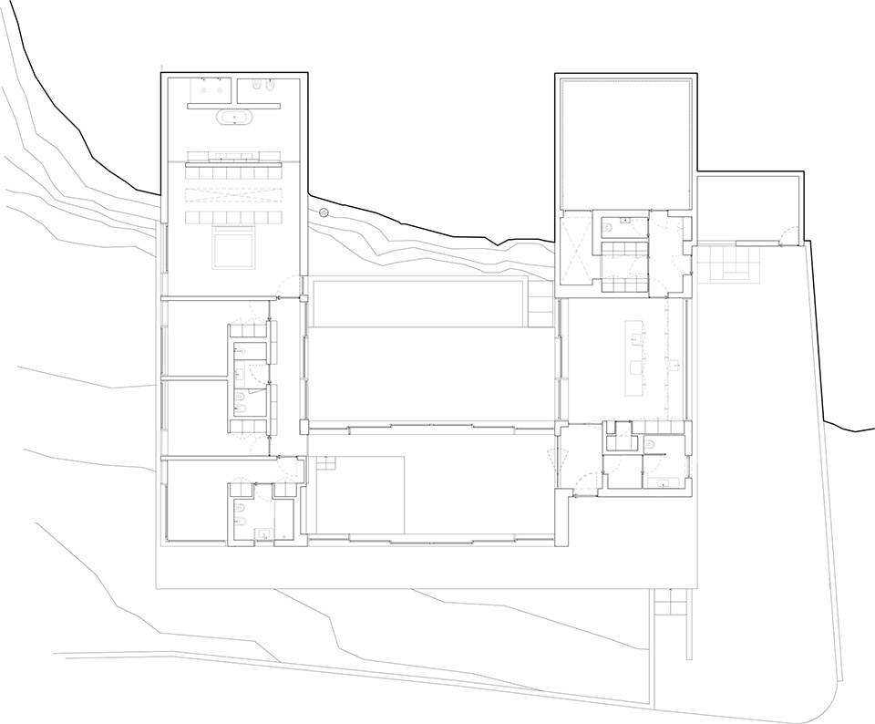
▼平面图,site plan

▼细部图纸,details drawing

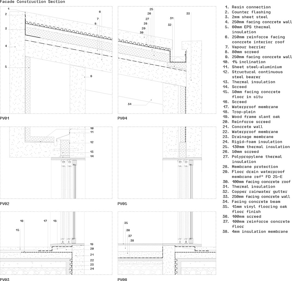
▼外立面剖面图,facade construction section

Technical sheet
Date: 2018-2024
Location: Oeiras, Portugal
Size: 350 m2
Status: build
Landscape: p4 Engineering Tekk, A3R Lda
Photography: Fernando Guerra | fg+sg














