卡达尔特农庄住宅,西班牙 / FRAN SILVESTRE ARQUITECTOS
是否有可能复原一种生活方式?能否以修复古物般的细腻去完成?
Is it possible to restore a way of life? Can it be done with the same delicacy used to recover an ancient object?
这个项目首先源于“理解”,然后仅在必要的地方进行“介入”。项目位于Serrat de la Cadalt的腹地,任务是更新一座废弃的农舍,使其能够适应当代生活的需求。
This project was born first from understanding, and then from intervening only where necessary. Located in the heart of Serrat de la Cadalt, the commission consisted of updating an abandoned farmhouse and adapting it to contemporary needs.
▼外观概览,Exterior view


▼鸟瞰,Bird’s eye view


▼周边环境,Surrounding context



▼顶视,Top view


通过对传统的再诠释,原有的体量与类型学得以保留,仅转化最为关键的部分。设计尊重了原有空间的尺度,并将每个空间对应到新的功能之中。新的居住者离开伦敦的生活,在赫罗纳开启新篇章——被树林、宁静与光线所环绕。或许,这个项目也很好地诠释了一个始于20世纪90年代的理念:在任何地方工作皆有可能。他们在伦敦开展的职业活动如今依旧如常,只不过转移到了一个非凡的自然环境中。
Through a reinterpreted tradition, the original volume and typology are preserved, transforming only what is essential. The scale of the existing spaces has been respected, aligning each one with a specific part of the new program. The new inhabitants left their life in London to begin a new chapter in Girona—surrounded by trees, calm, and light. Perhaps this project is also a good example of an idea that began to take shape in the 1990s: the possibility of working from anywhere. The professional activity they developed in London continues unchanged, but is now carried out in an exceptional natural setting.
▼建筑近景,Close view



入口层设有厨房——融合了原塔楼的三层通高空间——以及面向Sierra de la Cadalt景观的起居室。上层布置了两间卧室,而下层则将曾经饲养牲畜的空间重新诠释为多功能厅。相邻的体量原用于存放农具,如今被改造成车库,上层为设计师Terence Woodgate的工作室。
On the entrance level are the kitchen—incorporating the triple height of the existing tower—and the living room, oriented toward views of the Sierra de la Cadalt. On the upper floor, two bedrooms have been arranged, while the lower level reinterprets the former space once used for animals as a multipurpose room. The adjacent volume, which once housed farming equipment, has been repurposed as a garage, with an upper-floor studio where designer Terence Woodgate now carries out his work.
▼建筑立面,Facade


▼入口处,Entrance

▼俯瞰泳池,Swimming pool

这种赫罗纳地区常见的传统农舍建造体系,在整个Empordà区域都十分普遍,其结构基于以不规则石灰石砌成的承重墙,并以石灰砂浆粘结。建筑的转角、过梁与门框则采用精细切割的方石砌筑,为整体提供结构的精确与稳定。室内墙面通常以石灰与砂浆抹面,并覆以熟石灰涂层——既便于清洁,更重要的是改善了空间的明亮度。在此次改造中,修复石灰石承重墙后,增加了一层以软木为基础的保温层,以提升能效。室内形成了一层“第二表皮”,以增强亮度、改善维护条件,并隐蔽地整合当代生活所需的各种设施。地面采用石灰石铺设,使材料语言贯穿始终。
The traditional construction system typical of these Girona farmhouses, common throughout the Empordà region, is based on load-bearing walls made of irregular limestone masonry bonded with lime mortar. The corners, lintels, and jambs were built with finely cut ashlar blocks, providing structural precision and stability to the whole. Inside, walls were typically finished with a lime and sand plaster, topped with a layer of slaked lime. This finish made cleaning easier and, above all, improved the brightness of the interior spaces. In the current intervention, after reconstructing and repairing the limestone bearing walls, a layer of cork-based thermal insulation was added to ensure better energy performance. Inside, a second skin was created to increase brightness, improve maintenance conditions, and discreetly integrate all the necessary systems for contemporary living. The limestone flooring maintains material coherence throughout the project.
▼室内起居空间,Living space

▼厨房,Kitchen


▼餐厅,Dining area



室内空间被设想为介于建筑与产品设计之间的存在。在这一意义上,电源插座与墙面齐平,构造节点在一点上精准相交,每一个决定都力求忠实于施工的时代——从而在“现存”与“当代”之间建立起精确的对话。
The interior has been conceived as a space suspended between architecture and product design. In this sense, electrical outlets are flush with the walls, construction elements meet at a single point, and every decision seeks to be honest with the era in which the intervention was carried out—creating a precise dialogue between the existing and the contemporary.
▼上层空间,Upper floor space

▼休闲空间,Leisure space

▼浴室,Bathroom


在能源与用水方面,这座住宅实现了完全的自给自足。通过安装带蓄电池的光伏面板及定制设计的蓄水系统,建筑达到了高度的自主性。其中一个蓄水池被改造为泳池,用以消暑。周围的土地部分用于耕种,足以为这对居住在农舍中的英国夫妇提供充足的食物。
The house is completely self-sufficient in terms of energy and water. Thanks to the installation of photovoltaic panels with batteries and a system of custom-designed cisterns, the home achieves a high level of autonomy. One of the cisterns has been transformed into a pool for cooling off. The surrounding hectares of land, some of them cultivated, produce more than enough food to meet the needs of the British couple who live in the farmhouse.
▼框景室外,Looking outside

▼楼梯,Stairs

▼室内设计细部,Design details


人们常说,当一个人开始一项创造性事业时,他的朋友与敌人、家人、记忆、恐惧与欲望都会出现在他的工作室里。但若给予足够的时间,它们会逐渐离去,而幸运的话,最终“自我”也会消失。
It is often said that when someone begins a creative endeavor, their friends and enemies, family, memories, fears, and desires are all present in their studio. But if one takes the necessary time, they all gradually leave, and with luck, in the end, the self disappears too.
▼夜览,Night view



我们愿意相信,这个项目正是以这种态度完成的:以自然的方式修复破损之处,仅补足那些缺失的部分。
We like to think that this project was developed from that same attitude: with the naturalness of restoring the damaged pieces and adding only those that were missing.
▼地下层平面图,basement floor plan

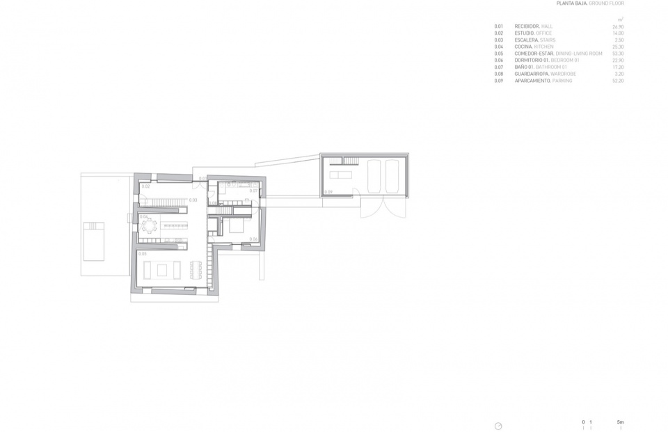
▼首层平面图,ground floor plan

▼二层平面图,first floor plan

▼屋顶层平面图,roof plan

▼立面图,elevation


▼剖面图,section


MAS CADALT
D’ADRI, GIRONA
ARCHITECTURE: FRAN SILVESTRE ARQUITECTOS
PROJECT TEAM: Fran Silvestre | Principal in Charge
María Masià | Collaborating Architect
Susana León | Collaborating Architect
INTERIOR DESIGN: ALFARO HOFMANN
DEVELOPER: TERENCE & PAULA WOODGATE
TECHNICAL ARCHITECT: Xavier Baldrich
STRUCTURAL ENGINEER: Windmill Structural Consultants
PHOTOGRAPHER: Fernando Guerra
VIDEO: Jesús Orrico
GENERAL CONTRACTOR: CONSTRUCCIONS COSTA BURCH S.L.
COLLABORATORS
Pablo Camarasa | Collaborating Architect
Ricardo Candela | Collaborating Architect
Estefania Soriano | Collaborating Architect
Carlos Lucas | Collaborating Architect
Sevak Asatrián | Collaborating Architect
Javi Herrero | Collaborating Architect
Facundo Castro | Collaborating Architect
Anna Alfanjarín | Collaborating Architect
Laura Bueno | Collaborating Architect
Toni Cremades | Collaborating Interior Designer
Susana León | Collaborating Architect
David Cirocchi | Collaborating Architect
Neus Roso | Collaborating Architect
Nuria Doménech | Collaborating Architect
Andrea Raga | Collaborating Architect
Olga Martín | Collaborating Architect
Víctor González | Collaborating Architect
Pepe Llop | Collaborating Architect
Alberto Bianchi | Collaborating Architect
Andrea Blasco | Collaborating Interior Designer
Laura Palacio | Collaborating Architect
Carlos Perez | Collaborating Architect
Jovita Cortijo | Collaborating Architect
Claudia Escorcia | Collaborating Architect
Diana Murcia | Collaborating Architect
Olga Fernández | Collaborating Interior Designer
Daniel Fenollosa | Collaborating Architect
Andrés Jiménez| Collaborating Architect
Álvaro Navarro | Collaborating Architect
Diana Chilingaryan | Collaborating Architect
Maria Barberá | Collaborating Architect
Roberto Marañón | Collaborating Architect
Ana de Pablo | Director of the Finance and Administration Department
Sara Atienza | Director of the Marketing and PR Department
Valeria Fernandini | Finance Department
José María Ibañez | Business developer CCG and Mexico
Andrea Álvarez | Marketing and PR Department
Néstor Bolinches | Business Developer
LOCATION: Canet, d’Adri, Girona
YEARS OF CONSTRUCTION: 2020 – 2025
BUILT AREA: 385 m2
PLOT AREA: 675.746 m2
PRODUCT TYPOLOGY: Single-Family Home














