Kaloki Nyamai工作室,肯尼亚 / Adjaye Associates
坐落于内罗毕Karen的林地景观之中,Kaloki Nyamai工作室被构想为一个集艺术创作、沉思与居住于一体的场所。项目位于一块狭长的1.33英亩场地上,地势缓缓向山谷倾斜,使建筑在与周边自然环境建立安静联系的同时,也得以保持对道路的私密性。
Set within the wooded landscape of Karen, Nairobi, Kaloki Nyamai Studio is conceived as a place of artistic production, reflection and dwelling. The project occupies a narrow 1.33-acre site that slopes gently toward a valley, allowing the building to establish a quiet relationship with the surrounding landscape while maintaining privacy from the road.
▼项目鸟瞰,aerial view of the project



设计汲取了传统非洲建筑在空间清晰性与气候适应性方面的智慧,参考了社区性结构与粮仓的形态特征,其有力的体量与材料表达塑造了项目的整体构成与组织方式。建筑结合结构的持久性与贴近土地的材料体系,整体与结构柱均覆以土质抹灰,并采用低碳混凝土结构,辅以夯土砖填充。建筑通过混凝土桩基架空于地面之上,轻触倾斜地形,既保留自然排水路径,也使空气能够在建筑下方自由流动。
The design draws from the spatial clarity and climatic intelligence of traditional African architecture, referencing communal structures and granaries whose strong forms and material presence informed the project’s massing and organisation. Combining structural permanence with an earth-bound material palette, the building and structural columns are coated with earth plaster and constructed from low-carbon concrete with compressed earth brick infill. Raised on concrete piles, the structure lightly touches the sloping terrain, preserving natural drainage and allowing air to move beneath the building.
▼建筑通过混凝土桩基架空于地面之上,
the structure lightly touches the sloping terrain raised on concrete piles


▼使空气能够在建筑下方自由流动,
allowing air to move beneath the building

▼建筑轻触倾斜地形,
the structure lightly touches the sloping terrain


紧凑而富于雕塑感的体量位于场地较低的一侧。抵达路径通过一段渐进的景观体验展开:一条林荫小径从公共道路引导至工作室,最终抵达一条抬升的入口坡道,在进入建筑之前形成一个可远眺山谷的停顿时刻。
The compact, sculptural volume sits toward the lower edge of the site. Arrival unfolds as a gradual transition through the landscape, along a tree-lined path that leads from the public road toward the studio. This sequence culminates in an elevated entry ramp, framing expansive views across the valley and establishing a moment of pause before entering the building.
▼一条林荫小径从公共道路引导至工作室,
along a tree-lined path that leads from the public road toward the studio



▼渐进的景观体验,a gradual transition through the landscape

建筑核心为一处双层通高的工作室空间,宽敞明亮,适用于大型艺术创作。经打磨的低碳混凝土与土质地面实现了室内外空间的连续性。通过对自然光的控制与灵活的流线组织,该空间可同时作为创作、展示与存档之所。内嵌式储存系统支持多样的工作方式,包括用于纸本作品的平抽式储藏,以及用于大型悬挂作品的滑动式架体。
At its centre a double-height studio provides a generous, light-filled space for largescale works. A polished low carbon concrete and earthen floor creates continuity from outside to in. Controlled daylight and flexible circulation allow the room to operate simultaneously as a place of production, display and archive. Integrated storage systems support the working processes of the studio, including flat drawer storage for works on paper and sliding racks for large hanging pieces.
▼经打磨的低碳混凝土与土质地面实现了室内外空间的连续性,
a polished low carbon concrete and earthen floor creates continuity from outside to in


▼双层通高的工作室空间,a double-height studio space


▼灵活的流线组织,flexible circulation


辅助空间围绕主体体量布置,包括厨房、卫生间、办公区及额外储藏空间。这种布局在满足日常功能需求的同时,保持了中央工作室的开敞性。一处面向山谷延展的露台从工作室延伸而出,既可作为户外创作空间,也为使用者提供一处与自然对话的静思之所。
Ancillary spaces are arranged around the main volume, including a kitchen, bathroom, office and additional storage. This arrangement preserves the openness of the central studio while accommodating the practical requirements of daily work. A terrace extends from the studio toward the valley, providing an outdoor workspace and a quiet place for reflection within the landscape.
▼面向山谷延展的露台,A terrace extends from the studio toward the valley


上方设置了一处紧凑的睡眠夹层,在引入基本居住功能的同时,仍然保持工作室作为建筑核心的主导地位。项目通过被动与主动策略的结合来实现环境性能优化。
Above, a compact sleeping loft introduces a modest residential element while maintaining the primacy of the studio as the building’s central purpose. Environmental performance is addressed through a combination of passive and active strategies.
▼通往睡眠夹层的楼梯,staircase towards the sleeping loft

▼享受充足阳光的房间,the room enjoying abundant sunlight


建筑的热惰性有助于调节室内温度:在白天吸收热量,并在气温下降时缓慢释放。精心布置的开口促进自然通风,将山谷中的凉爽空气引入室内,同时使热空气从高处排出。太阳能板提供现场电力,而雨水收集系统则用于储存并再利用水资源,用于景观灌溉及其他用途。
The building’s thermal mass moderates indoor temperatures, absorbing heat during the day and releasing it as temperatures fall. Carefully positioned openings promote natural ventilation, drawing cooler air from the valley and allowing warmer air to escape at higher levels. Solar panels provide on-site electricity generation, while rainwater harvesting
systems collect and store water for reuse and landscape irrigation.
▼夜间灯光下的工作室,studio under lighting at night

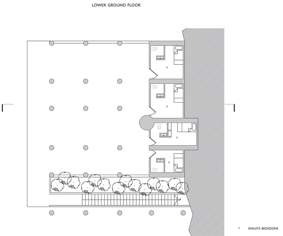
▼低层平面图,lower ground floor plan

▼一层平面图,ground floor plan

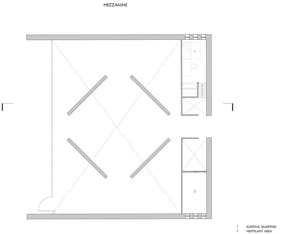
▼夹层平面图,mezzanine floor plan

▼北立面,north elevation

▼南立面,south elevation

▼西立面,west elevation

▼东立面,east elevation

▼剖面图,section

Site area
57, 935 sq ft / 5,382sqm
Building Footprint
3,477 sq ft / 323 sqm
Total floor area
6,900sq ft /641 sqm
Program
Conceived as an artist-led compound,
the studio brings together spaces for
production, display, residence and
reflection within a flexible, integrated
environment














