星麻哥花椒工坊,四川 / 研筑舍建筑设计工作室
一:场地现状 1: Current situation of the venue
项目位于四川盆地威远县高石镇石牛村入口处,功能为新建花椒深加工工坊,属乡村常见工业建筑类型。本设计以“西南欠发达地区乡村日常建筑的群落空间营造”为目标,旨在建立“乡村环境—建筑群体—建筑细部”从环境到细部的整体设计方法,探索中大尺度建筑与传统乡村建筑肌理之间的共融路径。
▼场地原状,Original condition of the site

The project is located at the entrance of Shiniu Village, Gaoshi Town, Weiyuan County, Sichuan Province. Its function is to build a new Sichuan pepper deep processing workshop, which is a common industrial building type in rural areas. The goal of this design is to create a community space for daily rural architecture in underdeveloped areas of Southwest China. The aim is to establish a comprehensive design method for “rural environment building group building details” from environment to details, and explore the integration path between medium and large-scale architecture and traditional rural architecture texture.
▼北侧鸟瞰,Aerial view from the north

▼东北侧鸟瞰,Aerial view from the northeast

▼高铁上鸟瞰石牛村,Aerial view of Shiniu Village from the high-speed train

▼沿池塘全景,Along the pond scene

二:群体关系 2: Group relations
1.村庄肌理与尺度
近年来,随着乡村工业发展,尺度较大的生产及仓储建筑强势介入传统乡村肌理,实现二者和谐共融成为本设计的重要议题。设计采用尺度分级拆解与竖向分层消解双重策略,平衡功能需求与乡村空间尺度。平面维度上,建筑群划分为三级尺度:加工车间及仓库为大尺度,冻库及办公为中尺度,其他非生产性建筑为小尺度。竖向维度上,通过底层基座与上部建筑的分层设计削减体量。三级建筑尺度与周边环境精准适配:大尺度邻近省道,中尺度面向水塘,小尺度贴近聚居点。由此使大、中型建筑远离现状聚居点,同时将非生产性建筑化整为零,拆解为与民居尺度相近的小型单元,融入聚居点。
1. Texture and Scale of Villages
In recent years, with the development of rural industry, large-scale production and storage buildings have strongly intervened in the traditional rural texture, achieving harmonious integration between the two has become an important issue in this design. The design adopts a dual strategy of scale classification and vertical layering resolution to balance functional requirements and rural spatial scale. On the plane dimension, the architectural complex is divided into three levels of scale: processing workshops and warehouses are at a large scale, freezers and offices are at a medium scale, and other non productive buildings are at a small scale. In the vertical dimension, the volume is reduced through the layered design of the lower base and upper building. The scale of the third level building is precisely adapted to the surrounding environment: the large scale is adjacent to the provincial road, the medium scale faces the pond, and the small scale is close to the settlement. As a result, large and medium-sized buildings are moved away from the current settlement, while non productive buildings are broken down into smaller units similar in scale to residential buildings and integrated into the settlement.
▼沿省道全景,Scene along the main road

▼非生产区西北侧场景,Scene on the northwest side of the non production area

▼非生产区西侧场景,Scene on the west side of the non production area

▼非生产区沿省道场景,Scene along the main road in non production areas

▼冻库及办公建筑,Frozen storage and office buildings

2.场地记忆与环境整合
基地原状为废弃煤矿堆场及农家乐,场地呈多级高差台地布局,临近道路交叉口保留一栋2层办公宿舍建筑及一株黄葛古树。设计延续场地记忆并连通公共空间,构建工坊建筑群与场地的关联。保留原有台地标高,通过道路系统与建筑布局实现台地有机衔接;改扩建既有2层建筑为面向村口的餐饮建筑;疏通边角空间,增设架空栈道,串联餐饮建筑、黄葛树下尽端休息区及工坊非生产性建筑,形成环形公共路径,破解原有村口空间拘束与割裂的现状,实现空间的整合与拓展。
2. Integration of venue memory and environment
The original state of the base consists of an abandoned coal mine yard and a farmhouse. The site is arranged in a multi-level terrace layout, with a 2-story office dormitory building and an ancient Huangge tree preserved near the road intersection. Design to continue the memory of the site and connect public spaces, creating a connection between the workshop complex and the site. Maintain the original elevation of the terrace and achieve organic connection between the terrace and the building layout through the road system; Upgrade and expand the existing 2-story building to a dining facility facing the village entrance; Clear the corner space, add elevated walkways, connect catering buildings, rest areas at the bottom of Huangge trees, and non production buildings in workshops, form a circular public path, break the constraints and fragmentation of the original village entrance space, and achieve spatial integration and expansion.
▼面向内街的二层外廊,Second floor external corridor facing the inner street

▼非生产区二层露台,Terrace on the second floor of the non production area

3.建筑界面与视廊
分散式建筑布局所留出的建筑间通道,形成两个层级的景观视线通廊,建立了场地四向与建筑之间的景观联系;同时这些通道亦兼具停留休憩与观景眺望的空间。
3. Architectural interface and visual corridor
The inter building passages left by the decentralized architectural layout form a two-level landscape sight corridor, establishing a landscape connection between the four directions of the site and the buildings; At the same time, these channels also serve as spaces for rest and observation.
▼架空廊道 Elevated corridor

▼视线通廊,Visual Corridor

三:设计策略 3: Design Strategy
西南欠发达地区日常乡村建筑项目常面临经费不足、工匠技艺有限、人工成本攀升及施工管理难等约束,精细化完成度难以实现。为此提出“低造价—易维护、能容错—可生长”的适宜性策略,通过合理组织使建筑呈现可控的生动效果,而非依赖高造价追求精致表现。
Daily rural construction projects in underdeveloped areas of Southwest China often face constraints such as insufficient funding, limited craftsmanship, rising labor costs, and difficult construction management, making it difficult to achieve refined completion. To this end, a suitability strategy of “low cost easy maintenance, fault-tolerant growth” is proposed, which aims to present a controllable and vivid effect of the building through reasonable organization, rather than relying on high cost to pursue exquisite performance.
▼电商中心室内 E-commerce Center Interior

1.低造价—易维护
采用小面砖、金属波纹板等常规材料,减少材料种类并简化交接节点;立面以中小窗为主、大窗点缀,摒弃玻璃幕墙,形成实多虚少的形式;屋顶采用钢/混凝土梁与金属夹芯板组合的斜屋面,减少混凝土用量,显著降低建造成本。管线不刻意隐蔽,室外露明雨水管便于检修;浅色面砖及防锈涂层波纹板耐候易清洁,降低后期维护费用。
1. Low cost – easy to maintain
Using conventional materials such as small bricks and metal corrugated plates to reduce material types and simplify handover nodes; The facade is mainly composed of small and medium-sized windows, with large windows as embellishments, abandoning glass curtain walls and forming a form of more solid and less virtual; The sloping roof adopts a combination of steel/concrete beams and metal sandwich panels, reducing the amount of concrete used and significantly lowering construction costs. The pipeline is not deliberately concealed, and the outdoor exposed rainwater pipe is easy to maintain; Light colored bricks and anti rust coated corrugated boards are weather resistant and easy to clean, reducing maintenance costs in the later stage.
▼沿池塘全景,Along the pond scene

2.能容错—可生长
采用加法式体块组织,包容施工误差与日后扩建;设置檐廊等半室外空间,使半户外活动与光影成为第一立面,外墙平整度和外窗精细度等缺陷退居其次。屋面差异化设计:高屋面为不可扩建的坡屋面,低屋面为可扩建的平屋面,满足使用中扩容生长需求,同时保障天际线可控。
2. Fault tolerant – able to grow
Adopting additive block organization to accommodate construction errors and future expansion; Setting up semi outdoor spaces such as eaves and corridors, making semi outdoor activities and light and shadow the first facade, and reducing defects such as exterior wall flatness and window refinement. Differentiated roof design: The high roof is a non expandable sloping roof, while the low roof is an expandable flat roof, meeting the expansion and growth needs during use while ensuring controllable skyline.
▼仓库室内场景,Warehouse interior scene

四:屋顶形态 4: Roof form
设计采用“两类基本型+两类变形”的坡屋面体系,其形式源于日常与传统,经当代演绎形成丰富的变化,削弱工业天际线生硬感。连续长短坡折线屋面由农业大棚弧形屋面发展而来,转化为折线屋面,应用于加工车间及仓库;在冻库与办公屋面作拓扑变形,演变为高低错落式长短坡折线屋面。斜向屋脊镜像双坡屋面源自民居对称双坡屋面,用于小尺度非生产性屋面;部分屋面拓扑变形,形成开口式斜向屋脊双坡屋面,开口处布置消防水箱等设备,以减少设备对外观影响。
▼屋面形态演变,Evolution of roof form

The design adopts a sloping roof system of “two basic types+two types of deformations”, which originates from daily life and tradition, and forms rich changes through contemporary interpretation, weakening the stiffness of the industrial skyline. The continuous long and short slope folded line roof is developed from the curved roof of agricultural greenhouses and transformed into a folded line roof, which is used in processing workshops and warehouses; Topological deformation was carried out on the frozen warehouse and office roof, evolving into a high-low staggered long and short slope folded line roof. The oblique ridge mirror double sloping roof originates from the symmetrical double sloping roof of residential buildings and is used for small-scale non productive roofs; Partial roof topology deformation has resulted in an open sloping ridge double slope roof, with fire water tanks and other equipment arranged at the opening to reduce the impact of equipment on the appearance.
▼使用后屋顶扩建,Expand on the roof after use

▼斜屋面开口,Roof opening

五:结语 5: Conclusion
本设计立足西南欠发达地区乡村现实基底,以建筑与乡村环境和谐相融为首要目标,适配本地乡土建筑中的常见形式、材料与做法进行适度转化并赋予当代表达,探索适宜、得体、和谐的本土化乡村日常建筑。
This design is based on the reality of underdeveloped rural areas in Southwest China, with the primary goal of achieving harmonious integration between architecture and rural environment. It adapts to common forms, materials, and practices in local vernacular architecture through moderate transformation and contemporary expression, exploring suitable, appropriate, and harmonious localized rural daily architecture.
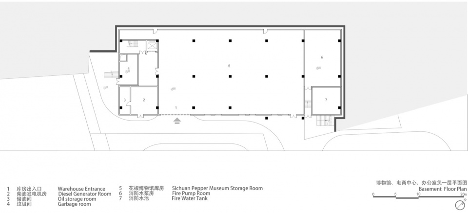
▼博物馆、电商中心、办公室负一层平面图,
Museum, e-commerce center, office basement floor plan

▼博物馆、电商中心、办公室一层平面图(-1.20标高),Ground floor plan of museums, e-commerce centers, and offices (elevation -1.20)

▼博物馆、电商中心、办公室一层平面图(0.00标高),Ground floor plan of museums, e-commerce centers, and offices (elevation 0.00)

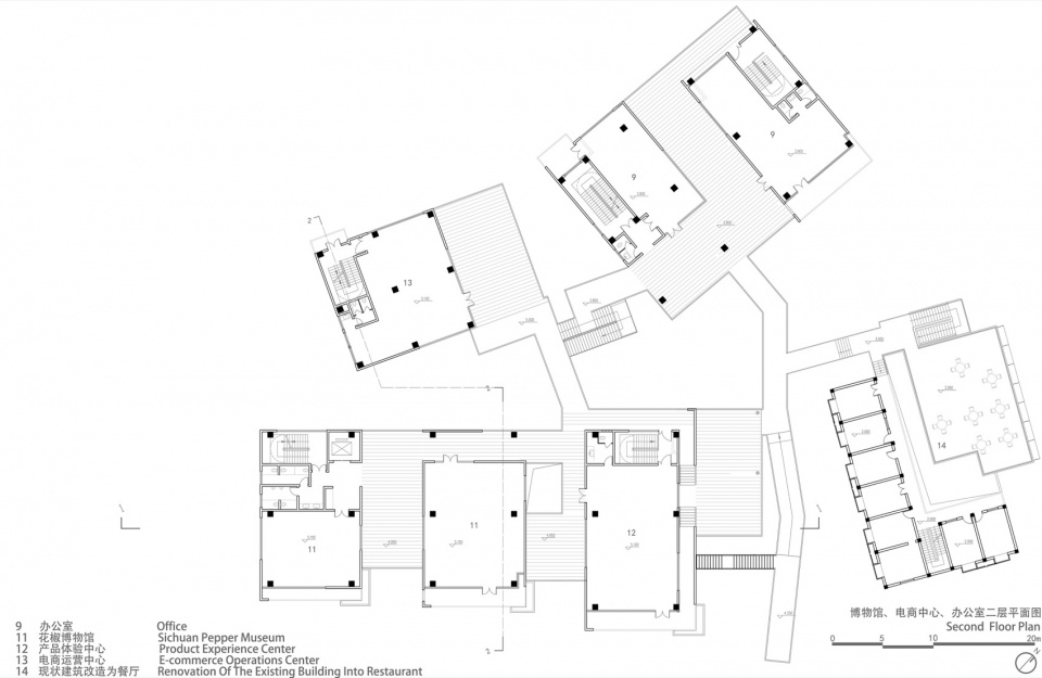
▼博物馆、电商中心、办公室二层平面图,
Second floor plan of museums, e-commerce centers, and offices

▼博物馆、电商中心、办公室三层平面图,
Three floor plan of museum, e-commerce center, and office

▼博物馆、电商中心、办公室剖面图,Sections of museums, e-commerce centers, and offices

▼冻库及办公建筑一层平面图,First floor plan of freezer and office

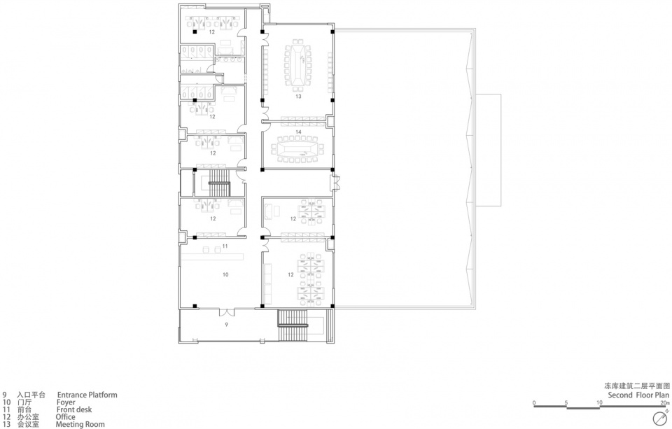
▼冻库及办公建筑二层平面图,Second floor plan of freezer and office

Project name:Xingmage Pepper Workshop
Project type:Industrial building
Design:Contemplative Space Architectural Design Co., Ltd.
Contact e-mail:originalspace@163.com
Design year:2020
Completion Year:2023
Principal architect: Yang Baoxin
Leader designer & Team:Wu Shaoqing,Wang Heng,Li Jing
Drawing team:He Dongxuan,Li Ming
Project location:Shiniu Village, Gaoshi Town, Weiyuan County, Sichuan Province
Gross built area: 10492㎡
Photo credit: Contemplative Space Architectural Design Co., Ltd.
Partner:Sichuan Shengchang Construction Engineering Design Co., Ltd
Clients:Sichuan Xingmage Food Co., Ltd












