帕尔马的30+8套社会保障住房,西班牙 / Vivas Arquitectos
由Vivas Arquitectos设计的位于马略卡岛帕尔马 Josep Togores 街的“30+8社会保障住房”项目,从植根于地域性的可持续视角出发,回应了社会对可负担住房的迫切需求。该住宅群共包含38个单元,分布在两栋建筑中。项目通过采用本地生产的夯土块(CEB)与木质楼板,将创新与传统相结合,既减少了碳足迹,又强化了岛屿的建筑特征与文化认同。
The 30+8 social housing project on Josep Togores Street in Palma de Mallorca, designed by Vivas Arquitectos, responds to the need for affordable housing from a sustainable perspective rooted in the territory. With a total of 38 units distributed across two buildings, the complex combines innovation and tradition through the use of locally produced compressed earth blocks (CEB) and wooden slabs, reducing the carbon footprint and reinforcing the island’s architectural identity.
▼建筑概览,Overview

住房围绕内庭院与外廊布置,旨在促进社区交流、实现自然交叉通风,并提升气候舒适性。建筑通过紧凑且符合生物气候学原理的设计,优化了空间利用并提升了日常生活品质,在同一居住模式中实现了能源效率、可持续性与社会凝聚力的平衡。
Organised around interior courtyards and exterior walkways, the dwellings encourage community interaction, cross ventilation and climatic comfort. Their compact and bioclimatic design optimises the use of space and enhances everyday life, reconciling energy efficiency, sustainability and social cohesion in a single model of living.
▼建筑沿街视角,building street view

土地利用与转化Land Use and Transformation
项目基地位于帕尔马北部的一个异质性区域,该地区经过多个阶段的发展。目前的土地利用以低密度住宅和农业用地为主。其结构解决方案受到传统建造方式的启发,建筑自身的结构既构成空间又限定空间,将承重与功能融为一体。
The site is located north of Palma, in a heterogeneous area that has been developed in several phases. The current land use is dominated by low-density housing and agricultural areas. The structural solution is inspired by the traditional solution, in which the building’s own structure houses and delimits the living spaces, integrating the functions of load and space.
▼周边环境,Surrounding environment

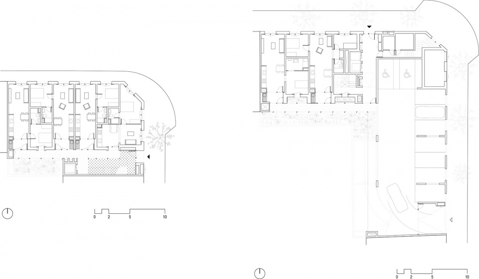
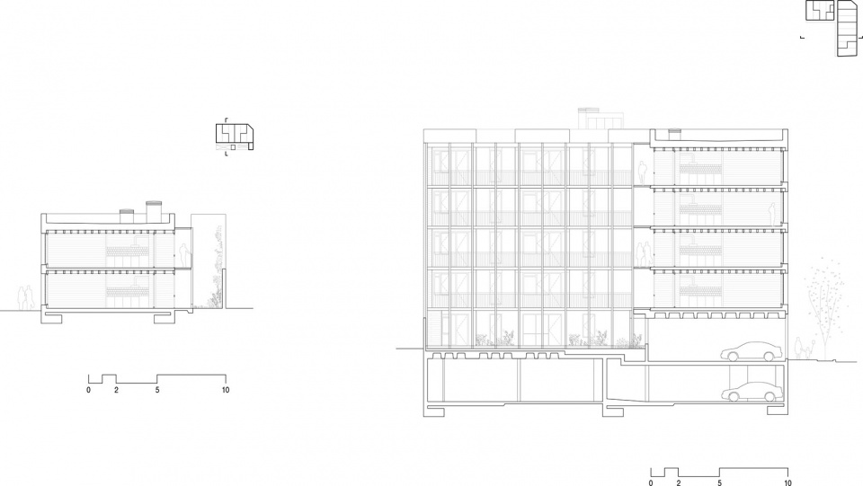
项目聚焦于两个核心方面:一是恰当地融入城市与自然环境,二是实现符合功能需求的空间布局。主楼包含30 套住房单元,位于街角地块,呈“L”形布置,建筑进深为11.5米。其地上部分包括底层及四层住宅空间,地下层及部分底层用于停车,共提供30个车位。第二栋建筑位于矩形地块上,地上两层共包含8套住宅。
The project focuses on two fundamental aspects: proper integration into the urban and physical environment, and a functional solution in line with the programme’s requirements. The main building, with a total of 30 housing units, is located on a corner plot in an “L” shape with a buildable depth of 11.5 meters. It consists of a ground floor and four upper floors dedicated for residential use, while the basement and part of the ground floor are used for parking, providing 30 parking spaces. A second building, located on a rectangular plot, features a ground floor and a first floor with a total of eight dwellings.
▼住房立面,Building facades


社区过渡Community Transition
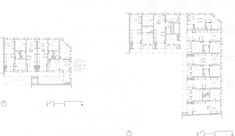
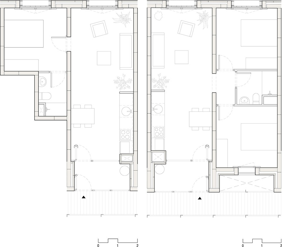
住房的出入口通过一处大厅连接至内部庭院,各单元通过带顶走廊分布。这样的布局强化了邻里之间的联系,并形成从公共到私密的空间过渡。公寓设有一到两间卧室,均为双向采光设计,采用无走廊的优化平面布局,中央厨房与客厅在视觉上连通。位于西南侧的多功能廊道保障私密性并提升热舒适性——冬季作为太阳能集热体,夏季则促进交叉通风。
Access to the dwellings is through a lobby that leads to an interior courtyard, from which the units are distributed via covered walkways. This scheme reinforces the neighbourhood relationship and establishes a gradient of privacy from communal to private space. The apartments, with one or two bedrooms, have double orientation and an optimised corridor-free layout, with a central kitchen visually connected to the living room. A multifunctional gallery on the southwest side ensures privacy and improves thermal comfort, acting as a solar collector in winter and facilitating cross-ventilation in summer.
▼带顶走廊,Covered walkways

▼内部庭院,Interior courtyard

高效建造与运行Efficient Construction and Operation
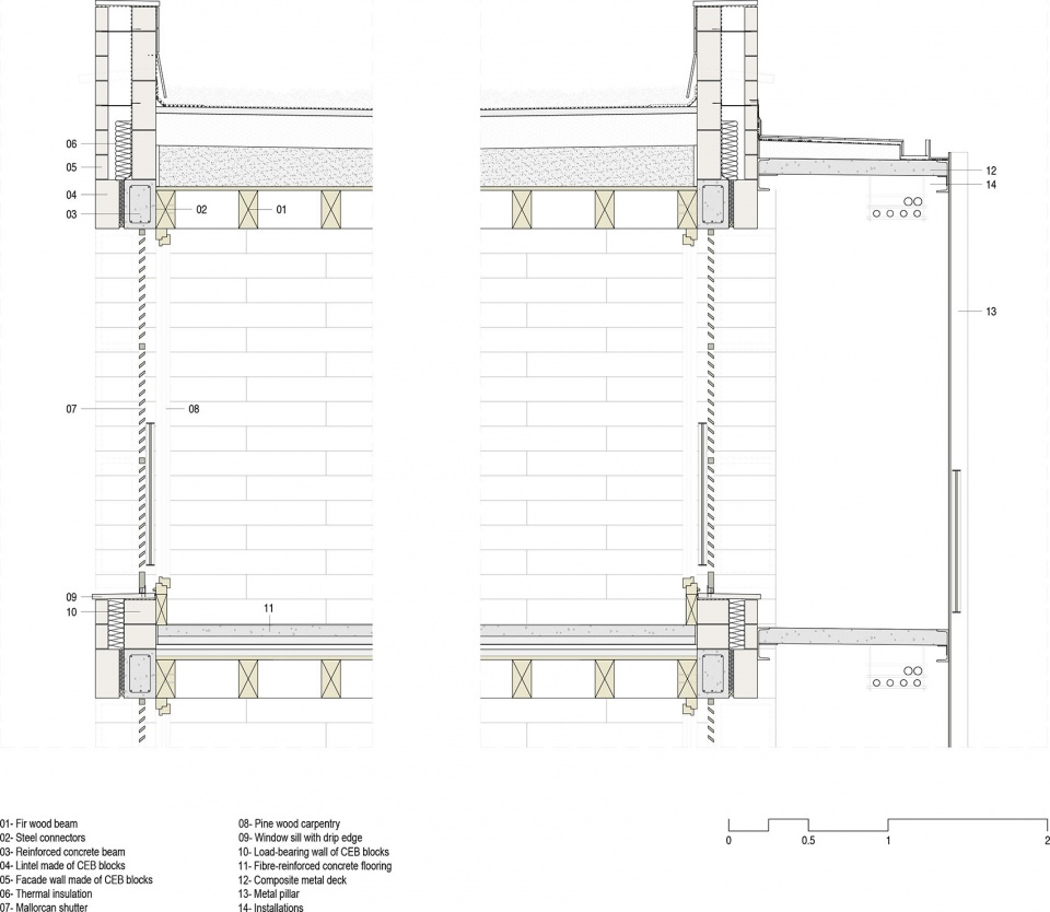
建筑结构由木质楼板与夯土块(CEB)承重墙组合而成。CEB是一种可持续且高效的解决方案,为项目带来多重优势。从环境角度看,其在马略卡岛的“零公里”本地生产(Km0)减少了运输相关的二氧化碳排放,同时促进了地方经济。此外,CEB不需要高温烧制,从而降低能耗与碳足迹。其多孔特性使墙体能够“呼吸”,改善室内空气质量并防止冷凝现象。
▼施工轴测,Constructive axonometry

The structure combines wooden slabs and load-bearing walls made of CEB (compressed earth blocks). CEB is a sustainable and efficient solution that brings multiple benefits to the project. From an environmental point of view, its Km0 production in Mallorca reduces CO2 emissions associated with transport and promotes the local economy. Moreover, as it does not require cooking at high temperatures, it reduces energy consumption and the carbon footprint. Its porous nature allows the walls to breathe, improving indoor air quality and preventing condensation.
▼多功能廊道,Multifunctional gallery

在能源效率方面,CEB 以其高热惯性著称,能逐步吸收与释放热量,以维持室内稳定温度,从而减少人工空调的使用需求并显著节能。其良好的隔热性能还可减少声热传导,提高居住舒适度,降低对额外保温材料的依赖,进一步减少建筑能耗。
In terms of energy efficiency, the CEB stands out for its high thermal inertia, absorbing and releasing heat gradually to maintain a stable temperature inside the home. This reduces the need for artificial air conditioning and contributes to significant energy savings. Its insulating capacity also minimises acoustic and thermal transmission, increasing user comfort, reducing the need to add other insulating materials and reducing the energy consumption of the building.
▼木质楼板与夯土块承重墙,Wooden slabs and CEB load-bearing walls

从结构角度来看,CEB具备高抗压强度,可建造耐久且维护成本低的承重墙体。该材料不易老化,且具有优良的防火与防虫性能,从而提升了建筑的安全性与使用寿命。与其他结构体系(如停车区的钢筋混凝土与木结构楼板)结合使用,使建筑实现平衡、适应性强且可持续的建造策略。
From a structural point of view, CEB offers high compressive strength, which allows the construction of durable load-bearing walls with low maintenance. It is a material that does not degrade easily and is highly resistant to fire and pests, thus improving the safety and useful life of the building. Its combination with other construction systems, such as reinforced concrete in parking areas and timber floor slabs, enables a balanced, adaptable and sustainable construction approach.
▼内部空间,Interior


美学特质与文化融入 Aesthetic Qualities and Cultural Integration
在马略卡岛使用夯土块延续了岛屿的传统建造文化,与传统住宅及使用本地材料的“马雷斯石”(marés)工艺相呼应,这些技术旨在让建筑更好地适应地中海气候。在这些传统方法中,建筑结构本身常常定义生活空间,将材料与环境融为一体。
The use of CEB-blocks in Mallorca continues the island’s building traditions, such as those seen in the traditional houses and other similar techniques, including the construction with marés, where local materials were used to adapt buildings to the Mediterranean climate. In these traditional methods, the structure itself often defined the living spaces, integrating the material with the environment.
▼细部,Detail


在气候危机背景下,作为一种本土材料,夯土是一种可持续的选择,既降低碳足迹,又充分利用地方资源。这种方法不仅延续了马略卡的文化身份,同时也回应了当代环境挑战,促进人们与其土地之间的责任关系。
In the context of the climate crisis, earth, as an autochthonous material, is a sustainable option that reduces the carbon footprint while using local resources. This approach not only preserves Mallorca’s cultural identity but also addresses environmental challenges, fostering a responsible connection between people and their territory.
▼场地平面,Site plan

▼一层平面,Ground floor plan

▼标准层平面,Standard floor plan

▼住房单元平面A(左)&平面B(右),Dwelling unit A(Left) & B(right) plans

▼剖面,Section

▼构造剖面,Constructive section

Cost: 3.376.000 €
Client: IBAVI, Instituto Balear de la Vivienda
Authors of the project: Vivas Arquitectos
Construction company: Constructora ALEA and Constructora del Cardoner
Collaborators:
Structures: Manuel Arguijo and Asociados SL
Installations: Estudis d’Enginyeria de Les Illes SL
Sustainability: Dekra
Executive management: Marco Menéndez and Missió 21 Arquitectes
Photography: José Hevia














