OAKV诊所,加拿大 / AtelierCarle
医疗诊所长期以来一直深植于冷冰、无菌的空间传统中。近年来,特别是在专注于美容治疗的医生中,逐渐出现了一种趋势——为病人提供一个更温暖、更放松的环境,反映了将医学实践人性化的愿望。
Medical clinics have long been rooted in a tradition of cold, sterile spaces. More recently, and especially among physicians specializing in aesthetic treatments, there has been a shift toward providing care in a warmer, more relaxed environment, reflecting a desire to humanize medical practice.
▼前台,Front Desk

▼候诊区,Waiting Area

对我们而言,这一愿景最初通过一种空间组织策略得以实现,这一策略是基于场地的局限性而形成的。该诊所位于多伦多郊区,位于一个普通的、没有吸引力的商业中心,面积为700平方米,面临隐私有限和自然光不足的双重挑战。为了创造出符合客户需求的新氛围,这两个问题需要重新规划。因此,概念性方案的核心是通过光线与私密感的艺术化表达,建立两者之间的层次关系,并与项目功能相呼应。我们设计了一个分层的空间,将治疗区域围绕一个双层高的中央空间;并通过大天窗引入柔和的光线,光线弥漫至整个空间,增强了空间的宏伟感。接待区主要以胡桃木包覆,其温暖的质感与外部荒凉的停车场景观形成鲜明对比。
For us, this vision first took shape through a spatial organisation strategy based on the site’s constraints. Located in a Toronto suburb, in a generic, uninviting business center, the 700-square-meter space faced simultaneous challenges of limited privacy and insufficient natural light. Both conditions required reconfiguration in order to establish an environment attuned to the new atmospheres sought by the client. The conceptual approach was thus grounded in the articulation of light and intimacy, establishing a hierarchy between them in dialogue with the programmatic components. A stratified spatial organization was developed to arrange the treatment areas around a central, double-height volume; the insertion of a large skylight diffusing diaphanous light extends across the entire space, enhancing its sense of grandeur. Walnut cladding predominates, its warmth at the reception area forming a counterpoint to the arid exterior landscape, composed largely of vast, inhospitable parking expanses.
▼就诊区,Consultation Area

▼公共空间,Public Space


▼试妆区,Testing Area


▼试妆区细部,Testing Area Details


与主功能相关的两个功能区位于这个“中央”区域的侧面,为设施增添了更加公共的空间:一个为工作人员和患者提供使用的咖啡馆,以及一个配有试妆台的化妆品专柜。这三个区域共同形成一个公共区域,确保了进入治疗室的自然过渡。人们通过柔和、低调的光线所照亮的流动走廊进入治疗室,使得临床体验更接近于一个放松的水疗中心,而非传统的医疗环境。光线在不同功能空间之间起到了过滤作用:从入口到治疗室的过渡,营造了一种独特的空间体验,呼应了当今医疗与健康环境设计中日益突出的价值观。
Two functions related to the main program occupy the lateral spaces of this “central” area, providing a more public dimension to the facility: a café designed for use by staff as well as patients, and a cosmetics boutique equipped with a testing counter. These three spaces together operate as a public zone, ensuring a gradual transition toward the treatment rooms. These areas are accessed via circulation corridors bathed in very soft, muted light, making the clinical experience feel closer to that of a relaxation spa than a conventional healthcare setting. The light acts as a filter between spaces of varying activity: a progression from the entrance to the treatment rooms creates a sensitive spatial experience that resonates with the emerging values in the design of medical and wellness environments today.
▼咖啡区入口,Café Entrance

▼咖啡区细部,Café Details


▼走廊,Corridor


▼卫生间,Restroom

▼顶部采光,Skylight

▼展示柜,Display Counter


▼金属的纯粹之美,The Pure Beauty of Metal


▼材料饰面,Material Cladding


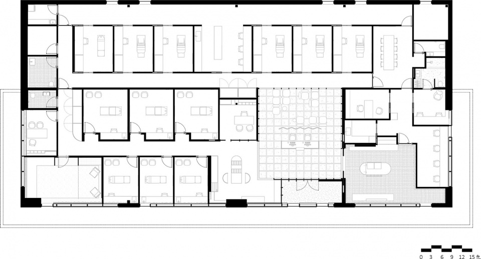
▼平面图,Floor Plan

GENERAL INFO:
Location: Oakville, ON, Canada
Program: Medical and Aesthetic Dermatology Clinic
Year of completion: 2025
Area: 2286 m2 / 7500 pi2
TEAM :
Alain Carle / Founding architect
Alexandre Lemoyne / Project architect
Laurie Elfassy / Architect
Thomas Guilhen / M. Arch
COLLABORATORS:
General contractor : Boszko & Verity
Mechanical engineer: Tristar Engineering Ltd.
PHOTOS CREDIT:
Alex Lesage, alexlesage.com














