OND桑拿房,日本 / AMANE ARCHITECTS
AMANE ARCHITECTS在桑拿中,陌生人几乎赤裸地并肩而坐,形成潜在的亲密感。然而,在日本,公共桑拿并未真正孕育出这种社区感。通过契合日本独特的亲密感文化,我们希望创造一种“向心式(sociopetal)”空间,鼓励共享理解而非强迫亲近。“非侵入式”的墙体在连接与分隔之间取得平衡;它们的垂直性呼应森林,而其间距则将自然引入,并调节邻人之间的亲疏程度。
In a sauna, strangers sit nearly naked in close proximity, creating potential intimacy. Yet in Japan, public saunas haven’t fostered this sense of community. By aligning with Japan’s unique sense of closeness, we aim to create a sociopetal space, encouraging shared understanding without forced intimacy. “Non-intrusive” walls balance connection and separation; their verticality resonates with the forest, while their spacing draws nature in and modulates closeness among neighbors.
▼入口小广场,Entrance plaza

▼木桑拿房鸟瞰,Aerial view of the wood sauna

树木不断向上生长,这一概念反映在环绕桑拿房的垂直外墙中。螺旋状的路径通向屋顶的休憩空间,呼应了建筑的形态。桑拿入口位于GL+250,冷水池平台位于GL+1000,而屋顶位于GL+3250,因此从桑拿、冷水池到露天空间的过渡遵循了垂直的动线。以树冠的高度眺望森林,使人能够共享其生长的节奏。
▼眺望森林的视线,Sightlines toward the forest

▼建筑与森林的关系,Building–forest relationship

▼空间开放性分析,Spatial openness analysis

▼交流密度对比,Communication density diagram

▼装配结构示意,Discrete structural diagram

Trees grow endlessly upward, a concept reflected in the vertical exterior walls clustered around the sauna room. A spiraling path leads upward to a rooftop relaxation space, mirroring the building’s form. The sauna entrance is at GL+250, the cold plunge deck at GL+1000, and the rooftop at GL+3250, so the transition from sauna to cold plunge to open air follows a vertical flow. Viewing the forest at treetop height allows one to share in its growth rhythm.
▼木桑拿房外观,Exterior of the wood sauna

▼建筑与森林相互呼应,The structure echoes the surrounding forest

▼周边景观,Surrounding landscape

▼户外休憩空间,Outdoor relaxation area

不规则的多边形平面引导视线,创造出多样的景观视角。研究表明,当人们以90度角而非并排坐时,交流频率会增加一倍。在此,陌生人并肩而坐,因此我们选择钝角的座椅布局,以在互动与私密之间取得平衡,鼓励交流而不过分干扰。多样的座位形式提供了不同层次的互动,而围绕火源的整体布局则营造出共享的体验。
An irregular polygonal floor plan guides sightlines, creating varied scenic views. Research shows conversations are twice as frequent at 90 degrees versus side-by-side. Here, strangers sit together, so we chose obtuse-angled benches to balance interaction and privacy, encouraging conversation without intrusion. Varied seating allows for different levels of interaction, while the overall arrangement around a fire fosters a shared experience.
▼阳光穿透的内部空间,Interior space filled with natural light

▼垂直外墙,Vertical exterior walls


▼螺旋状的路径,Spiraling path

▼冷水池,Cold plunge

▼室内休息区,Interior resting area


▼钝角的座椅布局,Obtuse-angled benches

▼屋顶休憩空间,Rooftop relaxation area

采用不规则平面布局,是为了延展视线并调整亲密程度,这一设计通过150毫米厚的CLT(交叉层压木)楼板得到了合理解决。取消梁结构消除了非垂直节点,从而节约了现场施工的人力成本。标准化尺度模数的墙体被离散组装,而CLT楼板将其连接起来。这种结构形式本身便可被视为一种“向心式结构(sociopetal structure)”。
The irregular plan was chosen to allow the passage and expansion of the line of sight and to adjust the degree of intimacy, which was rationally solved by the 150mm CLT floor slab. The elimination of beams has eliminated non-perpendicular joints in the structure, contributing to labor savings in site work. The rational walls of the scale module are discretely assembled and the CLT slab connects them. This structural form itself can be described as a sociopetal structure.
▼夜景,Night view

▼总平面图,Site Plan

▼一层平面图,Ground Floor Plan

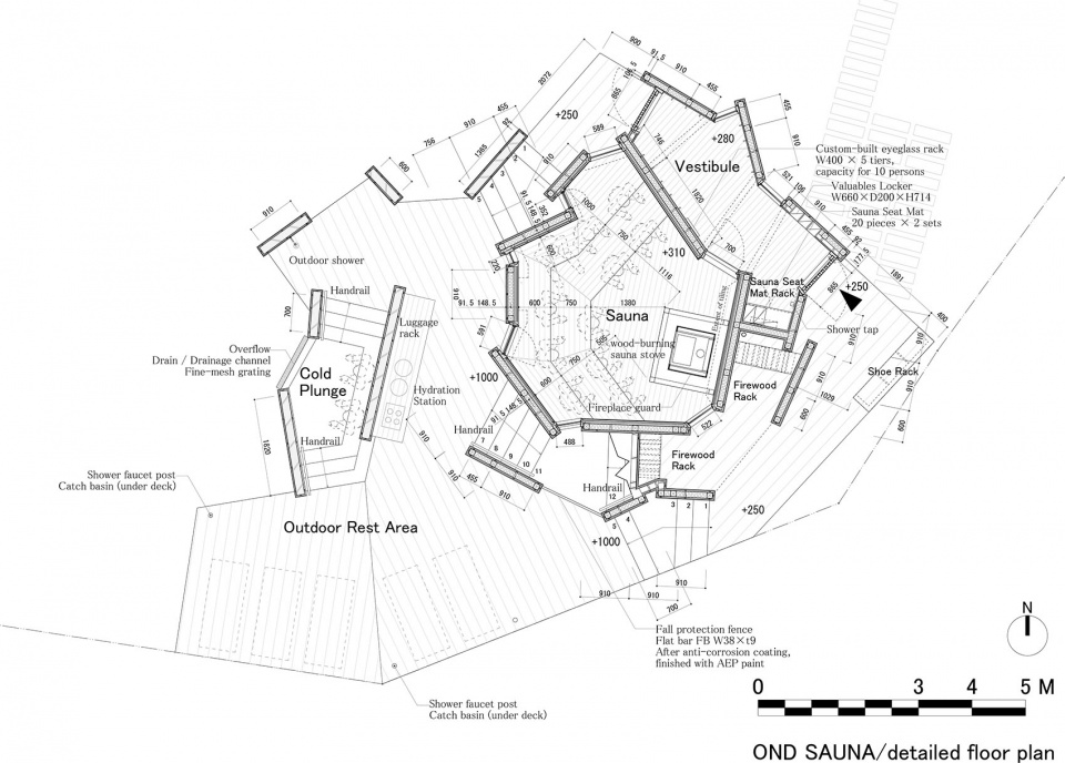
▼详细平面图,Detailed floor plan

▼屋顶平面图,Roof Plan

▼立面图,Elevation

▼剖面图,Section

▼剖面透视图,Sectional perspective

Project Name:OND SAUNA
Architects(firm):AMANE ARCHITECTS
Principal Architects:Taro Shimokawa
Structural Engineering:Kuroiwa Structural Engineers
Contractor:Asahi I&R Construction Co., Ltd.
Character of Space:public bath
Client:Asahi I&R Holdings Co., Ltd.
Principal Occupation of the Consumer:All genres
Principal Age of the Consumer:All ages
Each Floor Area(㎡):30.51㎡
Total Floor Area(㎡):30.51㎡
Building Area(㎡):34.52㎡
Site Area(㎡):3751.22㎡
Principal Materials:
Exterior Finish:
Roof: Hinoki (Japanese cypress) t30 oil stain finish, FRP waterproofing, flexible board t5, CLT panels t150, glass wool 24K, 200 mm
Exterior Walls: Sugi (Japanese cedar) t15 with oil stain finish, ventilated battens t15, breathable waterproof sheet, structural plywood t9, glass wool t100 infill
Interior Finish:
Floor: Abachi t30, unfinished
Walls: Sugi t15, unfinished
Principal Structure:Traditional timber construction (partially CLT structure)
Location:Takeo City, Saga Prefecture, Japan
Cost:39 million JPY
Photos:
Akinobu KAWABE / helico
Kazuyoshi MIYAMOTO / fusion graphic














