Pasewalk社区中心,德国 / augustinundfrank/winkler ARCHITEKTEN
可持续的实用性Sustainably Useful
该社区中心项目由欧洲区域发展基金(ERDF – European Regional Development Fund)资助。项目的目标在前期规划阶段就已被纳入设计考量之中。
The community center is a grant-funded project by the ERDF – European Regional Development Fund. The project’s goals were integrated already in the preliminary planning phase.
▼项目概览,overall view of the project


实用性Useful
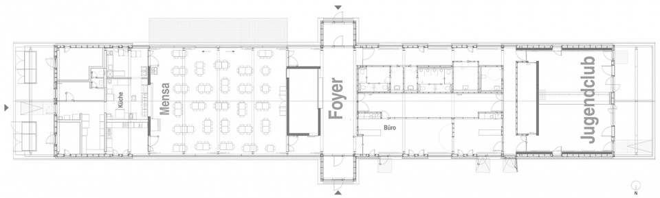
为毗邻的欧洲学校建造的新食堂不仅是校园基础设施的扩充,更以其多样的使用功能,成为帕瑟瓦尔克(Pasewalk)“东城区”的全新公共聚点,为各年龄层群体提供活动场所。它为周边居住区提供了实用的配套设施:包括带厨房与配餐区的食堂、带有遮蔽户外空间的青年俱乐部活动室,以及市政社会服务部门的办公空间。食堂的用餐大厅亦可作为多功能空间使用,并可直接通向户外。建筑将这些不同的功能整合在同一个屋顶之下。
▼卫星图,site plan

The new school cafeteria for the neighboring European School is not only an infrastructural addition to the school site. With its extended range of uses, it also creates a new meeting place in Pasewalk’s “Oststadt”, offering facilities for all age groups. It provides useful infrastructure for the surrounding residential area: the cafeteria with kitchen and food serving area, rooms for the youth club with an adjoining covered outdoor space, and offices for on-site branches of municipal social services. The cafeteria’s dining hall also serves as multifunctional space with direct access to the outdoors. The building unites all these different activities under one roof.
▼建筑沿街立面,street view facade


▼立面细节,facade details


这是一座单层建筑,屋顶采用不同高度的人字形结构,其轮廓在外部呈现出空间的差异特征。屋顶体量为不同的功能空间提供了多样的层高,同时容纳了外露的技术设备。在屋檐挑出的区域下方,设置了为食堂配送和俱乐部活动提供的遮蔽空间。
The structure is single-story, featuring gabled roofs of varying heights, whose silhouettes express the individual spatial characters to the exterior. The roof volume provides diverse spatial heights, tailored to the functions of the rooms. It also houses the exposed technical installations. Beneath the gabled cantilevers, covered areas are provided for cafeteria deliveries and for the club’s event space.
▼食堂空间朝向绿地,Cafeteria facing greenery


倾斜的屋顶起到了“第五立面”的作用。这一点在该场地尤为重要,因为周围多层建筑主要从上方俯视新建筑。屋顶与外墙采用轻盈反光的金属包层,共同形成清晰统一的体量。外墙与内墙的不同程度透光性,既促进了建筑内部各使用者间的交流,也加强了建筑与周边环境的对话。凭借其建筑语言与尺度,建筑自然融入城市肌理,同时以契合其功能的全新形象丰富了场地。它在保持视觉存在感的同时,也在室内外之间建立了多重联系。从城市层面与功能延展角度来看,这座新建筑为区域带来了持久的空间与社会改善。项目用地范围延伸至学校校园、未来城市公园的绿地以及相邻住宅区。
▼结构轴测图,structure axon diagram

The sloped roof functions as a fifth facade. This aspect is particularly important in this location, where views of the new building are mainly from above, given to the surrounding multi story buildings. Together, the roof and outer walls form a clear, unified figure with their light, reflective metal cladding. The graded optical permeability of both outer and inner walls encourages dialogue – internally among the various users, and externally with the surrounding context. With its architectural appearance and scale, the building fits into the existing urban fabric, enriching it with a new image appropriate to its program. It has the presence and visual impact required at the site while allowing diverse orientations and connections between interior and exterior spaces. In urban terms and through its extended functional options, the new building brings lasting spatial and social improvement to the area. The site’s perimeter extends to the school campus, the green space of the future city park, and the adjacent residential developments.
▼入口与标识,Entrance signage

可持续性Sustainable
建筑概念基于对结构外壳与装修构件的系统化与优化。其核心原则“结构即饰面(raw equals finished)”旨在减少后期装修工序,从而实现快速建造。木结构混合体系结合了多种材料的潜能:少量钢筋混凝土与钢材提供稳固的基础、实现荷载传递、支持构件热激活并提供热惰性。墙体与屋顶完全采用木板或木框架预制构造,室内装配部分也主要以此方式完成,并通过螺栓、钉或铆钉连接。鉴于场地位置开阔,建筑以波纹金属板包覆的通风外壳保护木纤维保温结构。建筑的所有构件与层次——包括屋顶空间中外露的技术设备——都可以按类别拆解并再利用。
The building concept is based on qualifying and systematizing both the structural shell and the finishing elements. The principle of “raw equals finished” serves to minimize finishing work and allows fast-track construction. The timber-hybrid construction combines the potential of the materials used. A small amount of reinforced concrete and steel provides a solid base, supports load transfer, enables thermal activation of components, and offers thermal mass. Walls and roofs are entirely, and interior fittings largely, prefabricated using timber panel or timber frame construction, assembled with screw, nail, and rivet connections. Given the exposed location, the wood-fiber-insulated structure is enclosed by an outer, ventilated weather skin made of trapezoidal sheet metal. All components and layers of the structure – including the visibly technical installations within the roof space – can be dismantled by type and reused.
▼外露的技术设备,The visibly technical installations

▼大厅视野,View from the hall


▼内部走廊光影,Corridor shadows

通过“低技术”(low-tech)理念与建筑围护结构的协同作用,实现了生命周期性能与运行效率的最优平衡。外层围护系统的各层在物理性能上互相重叠、补充与渗透。地坪板的热调节结合不同透气性的墙体结构,使建筑在冬季通过太阳能获得热量与“瓷砖炉般的温暖”,而在夏季则实现自然夜间降温。
The optimization of life-cycle performance and operational efficiency results from a consistently applied “low-tech” concept in interaction with the building envelope. The various layers of the outer skin overlap, complement, and interpenetrate one another in their structural-physical effects. Component tempering in the ground slab, combined with differentiated wall permeabilities, provides solar gains and “tiled-stove warmth” in winter, as well as natural night cooling in summer.
▼平面图,plan

▼立面图,elevation

▼剖面图,section




▼细部节点,details















