茧宅:刘女士家,北京 / 金秋野建筑工作室
没做居室设计的时候,以为家家户户只是过日子而已。从未想过人们对生活有那么多奇怪的想法,住宅又有这么多的可能性。个体世界如此丰富,中国家庭如此多样,却被千篇一律的房地产售楼书和小红书样板间遮蔽了。这次的委托,又是个近乎“不可能完成”的任务。女主人语气笃定地说:“我要一个独立房间。里面要有一张大书桌,有我的化妆台、大衣柜,我一个人在里面安静做事不被打扰,又能看到外面”。套型格局已定,常规的三室两厅,十几米的进深,入口在中部,短走廊连着卧室和卫生间,功能房间都在尽端。除了夫妻俩,家里的老人和小朋友都要独立卧室,从哪里变出一个女主人房间呢?
Before ever designing a dwelling, I assumed that every household merely “got on with life.” I never imagined that people could harbour such eccentric ideas about living, nor that the domestic interior could admit so many possibilities. The private cosmos is so rich, Chinese families so various, yet all are flattened by the monotonous prospectuses of real-estate developers and the identical show-flat photographs on Rednote. The present commission was, once again, an “impossible” brief. The lady of the house stated, with absolute certainty: “I want a room of my own. Inside it a large desk, a dressing-table, a capacious wardrobe. I shall work in silence, undisturbed, yet still see what is happening outside.” The apartment’s skeleton was already fixed: a conventional three-bedroom, two-storey unit, fourteen metres deep, the entrance in the middle, a short corridor linking bedrooms and bathroom, all served rooms at the extremities. Apart from the couple, both the elderly parent and the child required independent bedrooms. Where was the lady’s room to be conjured from?
▼从玄关向南看客厅,
View toward the living room from the entrance, facing south

▼从玄关向北看餐厅,
View toward the dining room from the entrance, facing north

茧房的由来 The Genesis of the Cocoon
刚好原始户型在客餐厅之间塞了一个衣帽间,对主卧开门。也不知当初设计房子的人是怎么想的,这东西不仅是个黑房间,而且棱棱角角的,相当碍事,与正门之间的距离不远不近,成了垃圾空间。主人嫌它碍眼,必欲除之而后快。我想了下,不如干脆扩大成为女主人房,刚好在客餐厅间收拢视野,围出玄关。
By accident the original plan had wedged a walk-in wardrobe between living- and dining-room, entered directly from the main bedroom. Whoever designed the block had turned this into a dark, angular left-over, neither near nor far from the front door—pure junk space. The clients detested it and were determined to have it removed. I proposed, instead, to inflate it into the lady’s study: it occupied the exact visual hinge between public rooms, and its removal would allow an entrance vestibule to be wrapped around it.
▼从客厅看茧房,View of the Cocoon room from the living room

主人还说,不喜欢主卧和小朋友房间门对门,以及进入主卧的那条逼仄的L形走廊。她希望可以从客厅直接进主卧,这样沙发后那面墙因为有了一扇门,就不再是一道封闭的墙,而有了“深度”。这些想法,都被整合到“茧房”的构思中。
The client also disliked the main-bedroom door confronting the child’s door, and the mean L-shaped approach passage. She wished to enter the master suite directly from the living-room; a door in the sofa wall would give that surface “depth.” These desires were synthesised in the idea of the Cocoon.
▼从老人房走廊看茧房,
View of the Cocoon room from the corridor to the elderly room

其实第一版的“茧房”跟“茧”一点关系都没有,它只是借用了原来的衣帽间和短走廊形成的多边形房间,北边与儿童房的外墙相邻,南边对着客厅做成一扇大窗,里面正对女主人的书桌,窗台下放小朋友的钢琴,内部地坪因此抬高30cm。东侧与主卧相邻,门开在东南角,进去之后折一下让出卫生间过道。西侧为了围出玄关、收拢两侧视野,并嵌入玄关柜,形成了复杂的折线,延续这个动作,在北侧顺势划出餐厅范围,并让出60cm给小朋友房间做出入口。受这个初版茧房影响,客厅、餐厅、主卧和儿童房都有一条边变成折线,茧房内也分为两个区域——工作区和梳妆区。这个方案在客厅、女主人房、主卧结合处形成一个三角形的传送门,我反复设想它的形状和有趣的行走体验,直到方案提交给物业的那一天,得到否定的回复:不行,这道墙上不能开门。
The first Cocoon had nothing “cocoonesque” about it: it merely exploited the former wardrobe and stub corridor to make an irregular polygon. Northward it shared a wall with the child’s room; southward it opened to the living-room with a large window opposite the lady’s desk. Beneath the window the child’s piano was to stand, so the interior floor was raised 30 cm. Eastward it adjoined the master suite, its door set in the south-east corner, dog-legging to give clearance for the bathroom passage. Westward, to gather the entrance view and embed a coat cupboard, the perimeter was folded into a complex zig-zag; the same move defined the dining zone and, on the north, surrendered 60 cm for the child-room doorway. Influenced by this first Cocoon, living-room, dining, master and child bedrooms each acquired one canted edge. Inside, the room split into a work zone and a dressing zone. Where the three realms met, a triangular “portal” appeared. I lingered over its geometry and the choreography of passing through it—until the management office replied, in writing: “No door may be opened in this wall.”
▼从卧室看茧房门和小走廊门,
View of Cocoon room door and the corridor door from the bedroom

业主很恼火,物业早前口头承诺这里可以局部调整。据理力争一番,最终败下阵来。初稿中这个形状复杂的女主人房,对我来说颇难舍弃,它之所以长成这样,是种种条件制约下的必然结果,有逻辑又难揣摩,很“园林”。似乎空间已经被压缩到极致,无计可施了。业主说:“金老师,就看你的了!不过既然如此,我还有个新要求:新版方案,无论长啥样,希望进门不要看到墙角,最好圆润一点,哈哈”……说完就过春节去了。
The client was furious; the management, having earlier given verbal consent, now proved intransigent. Negotiation failed. The complicated first Cocoon was, for me, difficult to abandon: its warped form was the necessary outcome of a web of constraints—logical yet unfathomable, almost “gardenesque.” Space seemed compressed to the top; nothing appeared left to manipulate. The client laughed: “Professor Jin, it’s up to you! But since we’re forced to change, my new request is: whatever the next version looks like, I don’t want to see any sharp corners when I enter—make it rounder, ha!”—and she left for the Spring Festival.
▼客厅东墙,East wall of the living room

节日期间一派风和日丽,北京城一下子安静下来。我对着图纸想,如果卧室朝北开口,女主人房必须南移,不仅压缩客厅空间,原来极力避免的L形走廊就又出现了,而且比原来还长。还有别的办法吗?没有。那就不做他想,尽量优化。一个是女主人房,它要缩小,满足要求的基础上最小化,避免侵占太多客厅空间;一个是通往主卧的走廊,它必须不讨人嫌。
During the holiday Beijing fell silent under lucid winter sun. I studied the drawings: if the master bedroom were to open northward, the Cocoon had to slide south, eroding the living-room and resurrecting the L-shaped corridor—longer than before. Was there an alternative? None. I would optimise what remained. The Cocoon must shrink to the minimum that still fulfilled the brief; the passage to the master must become tolerable.
▼小走廊从玄关到关门的卧室,
Small corridor from entrance toward bedroom with the door closed

▼小走廊从玄关到进入卧室,Corridor from entrance toward bedroom





于是女主人房南移,变得饱满圆润,不再是之前奇奇怪怪的样子,终于成了一个“茧”。说圆润,也并不是圆弧或椭圆,而是折线小圆角,方便施工定位。上下两半错动一下,出现两个入口,一个面对餐厅,一个通往主卧,这样就可以不经由外走廊而直接进入房间。主卧入口特别狭小,刚够一人通行,衣帽柜的侧墙充当了“影壁”;书桌依然俯瞰客厅,东墙上是通高的书架,西墙上开了一个圆形的洞窗,用植物加以遮掩,这样女主人可以看到外面进出的人,却不容易被看到。茧房虽小但五脏俱全,占据了中央位置,像个连通器,同时也是全家的制高点,为了获得更好的采光,朝客厅开了大窗,有点像个室外窗,可以上旋打开。坐在这里,很舒服,很局气,真有俯瞰全屋的气概。男主人有点不好意思地说:我的需求是——卧室里的小衣柜;餐厅里的咖啡台。就这些。以上就是茧房的由来。
▼茧房轴测,Axonometric view of the Cocoon room

Thus the Cocoon migrated south, grew plump and smooth, and at last became a true “cocoon.” “Roundness” was not literally circular: small fillets on folded planes—easy for builders to set out. The upper and lower halves were staggered, creating two entrances: one facing the dining-room, one to the master bedroom. One could now move from sofa to bed without entering the public corridor. The master door is barely shoulder-wide; the flank of the wardrobe acts as a shadow wall. The desk still surveys the living-room; a full-height bookcase climbs the east wall; a circular porthole, veiled by planting, is cut in the west wall, allowing the occupant to glimpse arrivals without being seen. Though minute, the Cocoon is complete: a hinge at the apartment’s centre, a belvedere. Its living-room window, top-hung and outward-opening, behaves like an external casement. Seated inside one feels, in Beijing parlour idiom, “the host of the house,” serenely commanding the whole. The husband, almost apologetically, listed his needs: “A small wardrobe in the bedroom; a coffee station in the dining-room. That’s all.”
▼茧房内部,Interior of the Cocoon room


房子里的小巷 The Lane inside the House
茧房的宽度是由两个条件决定:客厅东墙北侧顶点的位置,和周围通行的宽度。正是这些极限尺寸,塑造了从玄关和餐厅通往主卧的小走廊的形式。从起点到终点,要绕一个回头弯,超过180度,这在住宅中是不寻常的。之前说过,主人不喜欢普通户型中的L形黑走廊。既然无法解决这个矛盾,就反其道而行之,继续延伸它的长度、打磨它的造型,人为制造节奏感,让“通行”成为一件有趣的事。
The Cocoon’s width is fixed by two parameters: the northern vertex of the living-room’s east wall and the minimum corridor width for circulation. These extreme dimensions shaped the micro-passage that curls from entrance to master bedroom. From start to finish one executes a hair-pin bend of more than 180 degrees—unusual in a dwelling. Since the client still detested the conventional dark L-corridor, we prolonged and refined it, turning mere movement into ritual.
▼小走廊从卧室到玄关,Corridor from bedroom toward entrance




茧房面向主入口一侧的外墙朝西北撇了一下,是为了营造入口围合,从这里向东,就进入小走廊的第一个段落。一侧是茧房抬高的入口,一侧是餐厅卡座双折的背墙。这道墙的双折,也是为了餐厅形成内聚的空间形式,恰好在南侧留出了一个三角形体量,顺势做成双向连通的壁龛,正面朝着餐厅,侧面向小走廊打开。人在行进的时候,可以透过壁龛中的姿态美妙的植物瞥见餐厅。到这里,光线已经很暗了。昏暗本来是消极的,但在这道弯曲的走廊中,却恰好唤醒了探索的预期,通过打开的主卧室门,看到端头明亮的书架。书架被两个方向的光线照亮:一是从拱门里透进来的主卧的光,二是上方儿童房高窗的光。两边都是间接采光,从暗处看去,恰到好处的柔和。这里的照明是在吊顶上挖了一个穹,它发出的光也是淡淡的。
The north-west face of the Cocoon was canted to cradle the entrance. From here the lane begins: on one side the raised threshold of the Cocoon, on the other the double-folded back of the dining banquette. The fold carves out a triangular niche, open both to dining and to the lane; a graceful plant inside is glimpsed sideways. Light is already dim; gloom, elsewhere undesirable, here awakens anticipation. At the far end the master door stands ajar, revealing a bright bookshelf lit indirectly from the bedroom arch and a clerestory above the child’s room. A shallow dome is scooped out of the corridor ceiling; its glow is equally soft.
▼从北向南看餐厅,View of the dining room from north to south

▼从南向北看餐厅,View of the dining room from south to north

卧室门选在这个位置,也是考虑到行进节奏,进了门就是小走廊的第二段,转90度弯后面对卧室。这道墨绿色的门上装了一个半球体高窗,既保护了隐私,也让高处的光弥漫到两边,透一口气。东北角墙体折了三下,呼应拐弯的走势,其实背后嵌着马桶和吊柜。转过弯来进入小走廊的最后一段,这里做了一个有深度的拱,压低了空间,也让视野更远。进入卧室回过头看,通往小走廊的拱门和茧房朝向卧室的狭窄入口紧紧挨在一起,像两个神秘的洞穴,通往未知的所在。从卧室往外走的途中可以更直接的看到儿童房高窗和餐厅双侧窗,为了保证私密,高窗内置了折叠木隔板,隔音玻璃形成一个透明盒子,收纳了窗扇。
▼餐厅的双向窗,Bi-directional window in the dining room

The door itself—dark green—carries a hemispherical glass bubble: privacy intact, yet upper light washes both sides. The north-east wall kinks three times, echoing the turn while concealing the WC and an overhead cabinet. A final arch compresses the head; beyond it the bedroom suddenly opens. Looking back, one sees two mysterious apertures side by side: the arch to the lane and the narrow mouth of the Cocoon—caves leading to unknown realms. Along the return journey the child’s clerestory and the dining-room’s bilateral window are more directly visible; folding timber shutters inside the double-glazed box preserve privacy.
▼通过双向窗从小走廊看餐厅,
View toward dining room through bi-directional window from corridor

▼双向窗的小走廊一面,Corridor side of the bi-directional window

6米长的小走廊,给房间中的通行带来了颇多乐趣,这是之前无论如何也想不到的。多亏物业,逼我把方案改成更好的样子。女主人房现在从四周墙体中剥离出来,不仅成了一个真正的“茧”,也方便使用者从各个方向去感受它的圆润与温柔。明暗交替的行走体验,成了乏味日常的有益调剂。因为这条“房子里的小巷”,生活多了点小小风景。
Six metres long, the lane lends the act of passing the suspense of a short story—an dividend we had never foreseen. Thanks to the management office, the Cocoon was extruded from the perimeter walls and became a true “cocoon,” approachable from every side; the alternation of gloom and glare turns daily routine into micro-landscape.
▼从小走廊看玄关,View toward the entrance from the small corridor

一点绿意,几处轩窗 A Touch of Green, Several Borrowed Views
使用需求驱动空间划分,空间划分造成限定,限定带来围合感,这时候需要适当透口气,让视线延伸出去。除了刚才提到的走廊门半球窗、儿童房玻璃盒子窗和餐厅背景墙双向窗,最特别的要数茧房面向入口处的花架镜窗。它其实是一个空间装置,一半漏空镶嵌玻璃,一半是镜面不锈钢和白色喷涂不锈钢交叉组成的“镜窗”,其中竖向不锈钢半圆托板有两片,呈锐角布置,避免正对入口。横板上放一盆蓬勃的日本雪莹,枝条从预留的扇形洞口悬垂下来。镜窗反射周围景物,圆窗透出茧房暖光,植物的叶子在镜中交叠,运动中看,成了一幅变幻迷离的小品册页。下面的三角形截面高脚花架上是一盆枝条舒张的密叶合欢,与镜窗顾盼相对,共同成为入口对景。餐桌是定制的,双折背景墙卡座靠背采用护墙板,竖向线条与对面餐边柜的绿色半圆截面瓷砖一起,烘托出家庭团聚的气息。双向窗中摆一盆姿态美丽的海岛春花,枝条舒展开来,撑满壁龛的宽度之后,又从侧面洞口向小走廊探出一枝。
▼小走廊门上的半球窗,Hemispherical window on the corridor door

▼儿童房盒子折窗,Children’s room box-folding window

▼入口处的花架镜窗,Flower-stand mirror window at the entrance

Programme drives zoning; zoning imposes limits; limits generate enclosure; enclosure demands relief. Beyond the bubble porthole, the child-room glass box and the dining niche, the most singular aperture is the mirror-shrine window facing the entrance. Half void, half mirror: alternating strips of mirrored and white-lacquered stainless steel form a vertical “mirror-niche.” Two semi-circular shelves meet at an acute angle, avoiding frontal reflection. A pot of Japanese Snow-rose spills its branches through a fan-shaped slot. The mirror doubles the surrounding foliage; the circle transmits the Cocoon’s lamplight; leaves overlap in motion like pages of an animated album. Below, a triangular-section pedestal holds a dense Acacia, answering the shrine across the void. The dining table is bespoke; the banquette backrest, paneled with vertical louvres, and the green semi-circular tiles of the sideboard conspire to domesticate the act of gathering. In the bilateral window a single Island Spring orchid thrusts a branch sideways into the lane.
▼半球窗,从玄关看卧室方向,
Hemispherical window, with view toward bedroom from the entrance

▼盒子窗,从儿童房看小走廊拱门,
Box window with view toward the corridor arch from children’s room

▼镜窗,Mirror window

为了让这座“居室小园林”更显活泼生动,我们为每个角落精心选配了植物。客厅西南角,正对玄关是一株较大的海岛春花,枝叶扶苏。沙发后面放佛罗里达蔓绿绒和绿天鹅绒海芋,茧房下方的钢琴被业主取消了,放一株蓝花楹,搭配松染海芋,高处架子上垂下一盆三色锦画球兰,通过一面玻璃与茧房高处的灯龛相望。客厅东北角书架下面斜出一笔,设一双人卡座,与沙发遥遥对坐,更强化了茧房大窗的户外感。走廊转角处的仙羽蔓绿绒、儿童房门口的万年青、次卧的海葡萄和主卧的密叶猴耳环,在窗间、在门后、在转角不经意闪现,为居室平添一份盎然的绿意。
To animate this “domestic garden” we distributed plants with curatorial precision. A larger Island Spring greets the entrance; behind the sofa, Florida philodendron and Alocasia green velvet; where the piano once stood, a jacaranda paired with Alocasia zebrina; above, a tri-coloured hoya cascades from a shelf, conversing through glass with the Cocoon’s lantern. A two-seat alcove at the north-east bookcase reinforces the window’s “outdoor” quality. Corridor turns sport Syngonium, child-door sentry is a ZZ plant, second bedroom owns sea-grapes, master bedroom shelters Archidendron. Greenery flickers at thresholds, corners, window-heads—an inadvertent luxuriance.
▼客厅西南角,Southwest corner of the living room

▼客厅东南角,Southeast corner of the living room

▼客厅东北角,Northeast corner of the living room

每个人都是一座“园林” Every Person a Garden
助手对我说:这么事无巨细的写,好像在给本科生上课,是不是习惯了老师这个角色,根本停不下来?其实这些细致琐碎的思考过程和设计心得,对建筑师来说属于入门常识,我把它记录下来,不是给专家看,而是给大众看的。每个人都有一个家,每个家都有一个样子。你的家该是什么样子?是售楼处的样板间,还是宜家家居的展示处?现代以来的技术理想主义者一直有一个预设,希望通过住宅的产品化,来实现居者有其屋的理想,于是有了预制化、产业化、装配式这些概念,说这些比较容易得到有关部门的支持,因为它的出发点是集体的、社会的、经济的,而不是个体的、生命的、体验的。但在社会性自我之外,另有一个更加本真、更加纯粹的存在性的自我,每个人的精神生活和生命体验的载体,正是在这个意义上,居室可以是人的存在之锚,是内在自我的外化,可以从居室的整洁美观程度看到一个人的精神水平,再进一步,居室空间的形式语言与主人的文化人格是联系在一起的。
My assistant teased: “Such minute documentation—are you lecturing first-years?” These reflections are indeed rudimentary for professionals; I record them for the lay public. Everyone has a home; every home has a face. Should yours resemble the developer’s showroom or an IKEA vignette? Since the early twentieth century, technological idealists have assumed that housing can be industrialised into a product—prefabricated, modular, assembled—because such language is collective, social, economical, and thus fundable. Yet beyond the social self lies an existential self, bearer of individual spirit and lived experience. The dwelling can be that self’s anchor, its externalisation; its order or chaos betrays the mind within. The formal language of the room is inseparable from the owner’s cultural persona.
▼从厨房看儿童房入口,
View toward the children’s room entrance from the kitchen

▼从儿童房入口看厨房,
View toward the kitchen from the children’s room entrance

我看春上村树早期小说中关于居室环境的细致描写,充满了对欧美文化的无限向往。从他写跑步那本书可以看出是非常自律的人,但在文化认同方面却谈不上高明。所有的形式语言都是文化性的,现代主义者主张的纯中性的“客观形式”并不存在。但我想暂时搁置这些讨论,谈谈功能与形式的关系。我把设计过程事无巨细的记录下来,是想告诉每一个人,你不是其他人而是你自己,随意选择一种“风格”来装饰你的空间,意味着对独一无二的个体性的不了解、不尊重、不认不负责。了解自己其实不难,就是把关于居住的想法和需求原原本本、不多不少地记录下来,然后与现实做一个比对。你会发现,几乎没有一个家庭的真实需求会在现有的居室格局中得到满足。这时候要让条件说话,认真面对,得到一两个有效的空间解答并不困难,这与艺术修养无关,纯属理性推演的范畴,有点像中学生解数学题,但不是为了考试,而是为了生活,值得每个人动动脑筋。
I think of Murakami’s early novels, their interiors saturated with longing for the West; from his running memoir one knows he is disciplined, yet culturally adrift. All form is cultural; the modernist dream of a neutral “objective form” is chimerical. But let me set aside that polemic and speak of function and form. I recount the design process in detail to insist: you are not “people,” you are this person. To pick a ready-made “style” is to ignore, disrespect and finally deny your own irreducibility. Self-knowledge is simple: list, without addition or subtraction, what you actually need and desire; compare that list to what exists. You will find that no stock plan answers you. Let the givens speak; face them; a handful of spatial solutions will emerge. This is not art but rational inference—like solving a secondary-school proof, except the stakes are life itself.
▼卧室门关闭时的餐厅背景墙,
Dining room feature wall with the bedroom door closed

我特别反对随便选一种现成的“风格”,在四壁做平面化的涂抹。一位已经毕业的学生给我留言:“你为个体差异化的生活方式量身定做,但在设计上还是秉持理性功能逻辑……追求极致功能反而呈现出了感性的形式”。就像这个设计中的茧房,如果不是业主的个性化需求,如果不是物业的出尔反尔,是不可能想象的、更不可能长成这个样子,而它的存在又催生了小走廊、环抱的餐厅和独特的玄关镜窗。这一切都不必诉诸于高深的设计理论和系统的建筑史知识,只要充分倾听自己的心声就够了。说到底,无论什么尺度、什么类型的设计,“任意性”是最可怕的。我并不反对感性,但听凭感性的驱使,不仅是不成熟的,而且是一种认识误区,是对形式语言的滥用和误用。
I oppose the casual application of a stylistic veneer. A former student wrote: “You tailor differentiated life-styles, yet remain ruthlessly functional; the pursuit of extreme function ends up generating poetic form.” The Cocoon exists only because of the client’s singularity and the management’s caprice; in turn it bred the lane, the embracing dining-room, the mirrored shrine. No theory, no history lesson was required—only listening.
▼细部合集, Details collection

金秋野
2025年11月5日
Qiuye Jin
5 November 2025
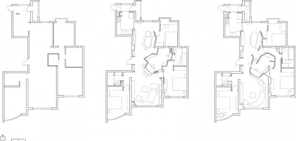
▼平面图(改造前、第一版方案、第二版方案),
Floor plans (before renovation, 1st edition, 2nd edition)

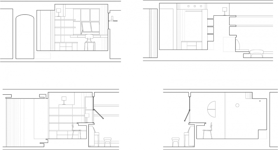
▼剖面,Section















