大理变压剧场 / 时境建筑
城市的觉醒
Resurrection
城市文脉Urban Context
洱海西南侧,大理城墙的边上,一座废弃的变压厂正在转换成为一个变压艺术场,予以人们空间对古城大理的过去,现在及未来进行创造性的解读。破旧的车间、仓储及办公将变成剧场、多觉艺术空间和新媒体餐厅。旧厂房、古建筑及新媒体的蒙太奇将给大理的旅人带来一场忠于自己心跳的觉醒之旅。同样期待觉醒的,还有大理的历史沉淀,大理古城沉睡于潜意识之下的灵魂,以及大理与生俱来的文化使命……而这一切,将由一场先锋派(Avant-Garde)的建筑戏剧揭开序幕。
Sited at the West-south of Erhai Lake, at the edge of ancient citadel of Dali, an abandon transformer factory is transformed into a theatrical park, allowing free interpretation of the past, present and future of Dali. The original workshop, storage and office are turned into theater, mutli-sensual art space and new media caterings. The collage of industrial factory, vernacular architecture, and visual art offers the travelers of Dali a resurrection journey that comes directly from one’s heartbeat. Meanwhile, the resurrection of the city’s history, the awakening of the sub-consciousnesses of the city and the culture mission of Dali are unveiled by an Avant-Garde show of the architecture.
▼项目鸟瞰,aerial view of the project


▼入口广场,plaza at the entrance

▼屋顶浮廊,roof corridor

起伏的文化初始地Undulating Tabula Rasa
建筑视野Architecture Vision
厂区的装配车间是大理古城最高的楼,车间屋面的西侧可眺望苍山,东侧可远观洱海。厂区高低错落的屋面由坡道与平台连接成一道无法遗忘的工业风景,与远处的苍山洱海隔空对话。跳跃、丰富,尺度变化的景观空间与大理白族民居的建筑体块相呼应。如同雅典的高原衍生出了雅典卫城(Acropolis)及整个西方文明,变压工场也竭力打造一个错落的高台,作为现代文明的始发地,续写大理与东方文化的芳华。
▼模型照片,model


The main workshop of the factory is the tallest building within the ancient city of Dali. While the west side of the roof terrace overlooking Cangshan Mountain, the east has a view over Erhai Lake. The high and low roofs of the factory are connected via pathways and platforms. An undulating industrial roofscape is formed that creates a dialogue with the distant landscape of Cangshan and Erhai. As the Athens plateau gave birth to the Acropolis and the Western culture, the transformer park aims to create an undulating urban plateau that brings Dali and Eastern culture back to live.
▼主立面,main facade


▼前广场立面,front plaza facade

▼入口广场立面,front plaza facade

▼过道局部景观,corridor landscape design

▼二层立面局部,upper level facade

▼主立面局部,partial main facade

城市的戏剧性Theatricality in the City
建筑形制Architecture Typology
项目的区位和设定给了一个特殊的机会,去打破以往大盒子般综合性剧院的建筑形制。“剧场”的定义,在此是一个更偏重于“场”的戏剧街区。这是此项目对建筑的贡献。剧场不再是皇家或精英阶层的代名词, 它可以是自由生长于市井之间的由下至上的形而上的存在。是的,普通人的日常也很重要。那些微不足道的平凡瞬间,有着无限的张力,折射着整个时代。借用Lewis Mumford的:“城市是一座博物馆,博物馆就是一座城”,我们互换了城市与剧场的概念:城市即剧场,剧场即城市。
▼体块分析,massing analysis

As the architecture “spaces out” from its pragmatic program, it creates “the other space” for illusion. The Heterotopia illusionary space is defined as the “theater.” The “theaters” could happen everywhere: some are within the roof, some are on the roof, some attach to the clerestory, and some grow out of the window to be a theatrical box. Every building in the factory donates part of the building to create the micro Heterotopia, which is a meditation space parallel to reality. As the micro Heterotopias are connected, they create a field beyond reality. As one passes through the field, one passes through the section of the city and the section of daily life.
▼屋顶坡道平台体系,roof ramp system

▼屋面平台,roof platform

▼入口广场鸟瞰,aerial view of the entrance plaza

▼剧场主入口,main entrance

超现实主义都市Surreal City
功能的再定义Redefining Program
当建筑游离于本体之外, 创造出有别于主体功能的承载幻象的异样空间, 这一异托邦式的幻象空间,就是建筑定义的“剧场”。所谓城市剧场,时而位于屋檐之中,时而躺露屋面,时而依附高窗,时而长出窗外,成为戏剧盒子。每个厂区建筑,除了被赋予的文旅功能,都贡献楼体的一部分构筑一系列微型的异托邦:一个平行于现实世界的反思空间。而这些微型异托邦连在一起,又形成了一个现实之外的场域:一个变压工场景框之下的戏剧都市。当人们在这异样的场域中穿梭的时候,不经意间,人们穿过了城市与生活的剖面。
▼瓦屋面生成,tile roof generation

▼瓦屋面语言,tile roof language

▼屋顶浮廊,roof platform


▼人们在屋顶浮廊上交流,people interact on the roof platform



▼坡道连接屋顶浮廊,ramp connects the roof platform

▼坡道连接屋顶浮廊,ramp connects the roof platform

▼屋顶折廊,the folding corridor on the roof

▼屋顶折廊,the folding corridor on the roof

▼主立面折廊,The main facade features a folded corridor

▼立面细节,facade detail

▼正面过道空间,main entrance corridor

▼正面凹槽空间,gap space

▼正面凹槽空间,gap space


工业美学Industrial Aesthetics
沉浸式剧场的空间定义Spatial Definition for Immersive Theater
原先的变压厂本来就是大理这个文化名城的异托邦。历史的偶然让它呈现在了这里。变压厂的工业美学与大理的“风花雪月”的差异性,重新定义了大理全域旅游的概念。专属于工业的特殊的线条、空间和材质的敏感度,将转化成独特的建筑语言,重新定义室内与室外的空间。在原有的古城、工厂和白族建筑的机理上,变压厂会被赋予自己的生命,经历跌宕起伏的空间戏剧,把游人带到一个又一个令人惊叹的瞬间, 塑造一个“变异的变压厂”的超现实主义都市。
▼剧场流线图,theatre circulation

▼序厅空间,Foyer space

▼序厅空间,Foyer space

▼变压厂的工业美学,industrial aesthetic



▼变压厂的工业美学,industrial aesthetic

▼序厅空间,foyer space

变压剧场戏剧与空间结构Theatric and Spactial Structure
方正的框架结构被光与城市的张力所切割, 形成若干个充满未知与潜力的工业空间碎片。 这些不规则的空间贯穿着室内外, 形成室内具有冲击力的四大主题空间。
室内空间:变压剧场的室内空间有四大秀场组成。这四个既是不同的消费空间也是不同的戏剧空间。四个空间可分可合,中间有一组悬置的空间穿越这四个剧场,为观众提供俯瞰的第二视角观看演出。
室外空间:悬挑于主体结构之外的室外廊道及多个屋面上的平台坡道,组合成一系列迂回曲折的室外景观空间, 供游人驻足、游玩、眺望、休闲及即兴戏剧的发生。游人还可以在能看苍山洱海的咖啡馆里享受大理的慢时光。室内悬置与室外空间连接在一起,在方整的厂房中创造出不规则的带有冲击力的空间,让游人感受厂房结构剖面的张力。
▼改造构造图,axonometric

▼记忆碎片局部空间,Local space of memory fragments

▼心音嗨场,theater space



▼彩排中的心音嗨场,theater space in rehearsal

▼心音嗨场酒吧区域,the bar on the upper level

▼心音嗨场地屏区域,Ground screen area

▼心音嗨场舞台区域,stage area


▼心音嗨场舞台区域,stage area


▼心音嗨场包厢区域,private room

▼心音嗨场酒吧二楼卡座,bar booth

▼心音嗨场酒吧区域,bar area

▼心音嗨场酒吧区域,bar area

“大理变压沉浸式剧场”是一场建筑与戏剧的辩证:建筑超越了本体,游离出功能之外的幻境空间,而这一异托邦式的幻境,就是建筑对戏剧最本质的定义。
▼心音工厂舞美分析图,axonometric

▼记忆碎片舞美分析图,axonometric

▼研发演绎空间,media space

▼欲望花园舞美装置,The stage design installation of the Garden of Desire






市井、工厂、旅途、断垣 —-似乎稀松平常的语境中,我们一直在寻找,潜藏在平凡表象之下的城市的灵魂。就像弗洛伊德曾经说过的精神与物质的双重性,很多项目所在城市的研究都可以被定义为“双城记”。历史的偶然中形成的城市肌理,它的欲望、幻想、记忆与期待在哪里? 它究竟想变成怎样?这似乎是一场贯穿大理过去的历史沉淀,现在的生活状态及未来文化使命的觉醒。
▼灵修空间演绎空间,Performance space


▼灵修空间演绎区域,Performance space


▼说话盒子演绎区域,Speaking box


▼睡眠悬舱演绎区域,Sleep suspension cabin

整个项目是基于大理历史片段中的工业文脉,我们一开始就在寻找工业机理下的灵魂和它潜藏的意识与欲望。基地的过去偏工业化,我们这次主要探讨的是自然与人、人与机器之间的博弈与较量,根据Robert Slutzky “艺术史即社会发展史”的论述,变压剧场是一场电子时代与AI时代之间的变压,是变迁时代中意识形态固化的一种尝试。
▼情绪酒吧演绎区域,Mood Bar performance space

▼情绪酒吧,Mood Bar

▼情绪酒吧,Mood Bar

波德莱尔(Baudelaire)作为古典主义与现代主义转折时期的一位关键性的诗人,让美超越了优雅与精致,进化为震撼人心的力量。这个项目展开的新的课题,就是如何从工业文脉的基础上来重建美学体系,场地上剩余了很多工业遗迹,很多有力量的东西:如浸油罐等变压厂的各种器具,装配车间的器具,还有地下的铁井,也许是专门用来炼铁地或者焊接的。这些器物有自己的, 金属和水泥碰撞的美感。这种陌生的美感诠释着黑暗之美或美的反面,如同波德莱尔的诗,是一个从美的悖论走向美的探索过程。
▼情绪酒吧,Mood Bar


▼情绪酒吧,Mood Bar

在建筑构建上,又如何去固化空间?它既不能是完完全全的现实,又不能是完完全全的幻象:必须有一种新的建筑语言,完整的表达现实与幻象之间的灰空间,去表达空间的复杂维度和层次。这些空间进化度的存在,让整个现实变得丰满立体。从我的理解,整个项目一直在探讨的是一个转换或者变压的过程。从现实到幻境,我们尝试让观众或抽离于现实的游人停留和反思的,是现实与幻境之间的各个灰度。
▼心音嗨场酒吧二楼卡座,Bar booth

我们把历史的错落和城市文脉碎片化的拼接建筑化,试图唤醒过去的时代记忆。我们用了一个建筑的切割,呈现工业遗迹在那个时代的空间结构,要把厂房深层次的时空挖掘出来,回答“我是谁”的建筑问题,这个复合的空间,它其实就是城市的异托邦,中间有很多没有被定义的模糊空间,比如养鸡舍和门卫楼之间的空间,也许拿来晒衣服,也许拿来炼铁,也许拿来组装配件,或是收发零件等等。这其中,许多平淡无奇的瞬间透着戏剧化的张力。
▼售票大厅,ticket hall

当阳光照进遗存的结构上的时候,过去被唤醒,当我们植入新的空间的时候,功能脱离了表象而引发了本质的变化。70年代的门卫小院的建筑语言已经从实用的构件上升到符号,而这些语言所指设的现实也从生产变为对生产的纪念—–历史被戏剧化了。正如德里达所述的“延异”——能指所指涉的事物只是幻象,而非事物本身。门卫小院破旧的门窗,虽也有真实的物理存在,但对于现在文创建筑的现实而言,只是幻象。项目中的四个空间既是戏剧结构也是空间结构,空间的模糊性与精确性,共同构筑了一个诗意磅礴的幻境。工业化的横平竖直的逻辑已被打破,碎片化空间的介入带来了新的空间解读的逻辑;项目中以小见大、碎片化切割空间又组合的方式——在有限中寻求无限。厂房的结构、旧时的门窗、古城传统的筒板瓦、白族民居的三段式这些错落的城市生活的碎片拼凑而成的平行时空,构筑了我们一直寻找的超现实:城市就是剧场,剧场就是城市。
▼灯光下的屋顶折廊,the folded corridor on the roof at night

▼夕阳下的入口广场,plaza at the entrance

▼正西向鸟瞰,aerial view from the west side

▼西南角鸟瞰夜景,aerial view from the west side at night

▼变压剧场总平面图, Dali Transformer Theater site plan

▼变压剧场一层平面图,Dali Transformer Theater ground floor plan

▼变压剧场二层平面图,Dali Transformer Theater first floor plan

▼变压剧场三层平面图,Dali Transformer Theater third floor plan

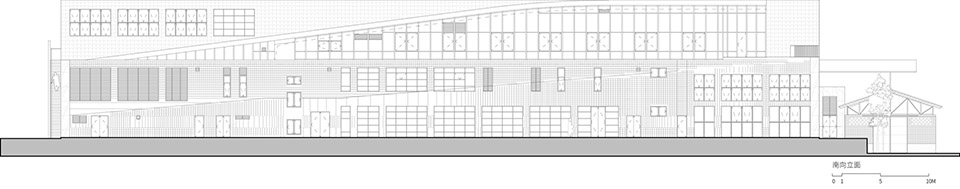
▼变压剧场立面图,Dali Transformer Theater elevation



▼变压剧场剖面图,Dali Transformer Theater section

Project Name: Dali Transformer Factory Theatrical District
Client: OCT Group, Dali
Project Operator: E-Vision Culture Co., Ltd
Area: 13,358 sqm
GFA: 9,751 sqm
Completion: May, 2023
Address: No.3 Pingdeng Rd, Dali, Yunnan, China
General Contractor: China Railway 18th Bureau Group Co., LTD.
Architecture Design: Atelier Alter Architects
Interior Design & FF&E: Atelier Alter Architects
Leading Architects: Yingfan Zhang, Xiaojun Bu
Team: Zhenwei Li, Ping Jiang, Si Miao, Teng Xue, Xinchen Yang, Yalan Tan, Jiaming Mei, Lidong Song, Li Jiang, Chunbiao Cao, Zhen Ni, Xiaoyan Liu, Jiayan Duan
LDI: Beijing Institute of Architectural Design Co., Ltd
Architect on Record: Run Zhou, Kai Qin
Team: Architecture: Wei Kong, Yan Pei, Han Bai | Structure: Wenfeng Li, Xingwang Li, Jun Liu |Mechanical & Electrical Engineering: Feng Qi, Lei Pei, Cheng Zhang, Yuting Li, Lin Jie | Sound: Jinjing Chen, Shuyun Wu
Interior Contractor: Guangzhou Bosha Institute of Architectural Design Co.,Ltd.
Leader: Jian Song
Team: Zhijun Zheng, Li Wen, Zhiyuan Liang, Junkan Wei; Secondary Mechanical & Electrical Engineering: Xinzhi Chen, Yuyan Xie
Landscape: YZscape
Lead Landscape Architect: Fanyu Meng
Team: Miaomiao Guan, Teng Wang, Zhenyu Wang, Zihan Zhao, Yue Hao, Ying Zhou
New Media Art: MOUJITI ART+TECH
Project Leader: Jun Fei
Team: Yu Qiu, Dan Xing, Jianyun Yan, Jinghai Sha, Kaiwen Zheng, Lei Shang, Yihan Sun, Sijing Wu, Tianze Tong, Yining Gong, Yafei Yang, Junjie Pan, XiaoqXi Huang, Yi Kang, Peng Wang, Renqing Wang, Jingyi Feng, Qin Wang
Stage Design: Atelier Alter Architects PLLC; MOUJITI ART+TECH; Tao Xiangju Film and Television Studio in Ningbo Xiangbao Cooperation Zone
Lighting: GD Lighting Design
Signage Consultant: MOUJITI ART+TECH; Degradation Design Laboratory
Curtain Wall Consultant: Chongqing Yinqiao Engineering Design (Group) Co., Ltd
Photographor: Xia Zhi , Highlite Images, Jin Weiqi, Atelier Alter Architects
Video: Xia Zhi Pictures
Photo Copyright: Atelier Alter Architects














