Keilepand 仓库改造,荷兰 / GROUP A + studioADAMS
2015年,当GROUP A与studioADAMS首次参观Keilepand时,他们认识到W. Kreis & Jüngst设计的建筑混凝土结构蕴含的潜力。怀着可持续改造的愿景,他们与市政府展开了关于建筑价值与未来的讨论。随后,他们与其他用户合作,于2019年成功收购了Keilepand,并在鹿特丹MerweVierhavens(M4H)未来发展中为企业家们争取到一个可负担的空间。
When GROUP A and studioADAMS visited the Keilepand for the first time in 2015, they recognized the potential of the building’s concrete design by W. Kreis & Jüngst. With a sustainable transformation in mind, they opened discussions with the municipality regarding the value and future of the building. They joined forces with other users, acquired the Keilepand in 2019 and managed to secure an affordable place for entrepreneurs in the future development of MerweVierhavens (M4H) Rotterdam.
▼项目鸟瞰,Aerial view of the project

▼项目外观,Project exterior

充满韧性的社区Resilient community
由GROUP A与studioADAMS设计的Keilepand改造项目为这座原建于1922年的仓库注入了新的活力。如今,Keilepand已成为一座多功能建筑,位于Makersdistrict的城市农场Voedseltuin旁,内设工坊、办公室、餐饮区及一个1100平方米的活动与展览空间。通过KeileCollectief,建筑师、木匠和食品创业者共同致力于创造更好的环境。
▼功能分析,Program analysis

The transformation of the Keilepand designed by GROUP A and studioADAMS has enabled new activities in the former 1922 warehouse. The Keilepand is now a multifunctional building located next to urban farm the Voedseltuin in the Makersdistrict with workshops, offices, catering and an event and exhibition space of 1100 m². United within the KeileCollectief, architects, carpenters and food entrepreneurs contribute to a better environment.
▼入口,Entrance

▼入口处木质楼梯,Entrance wood staircase

▼展览空间,Exhibition Space


▼FUR午餐厅,FUR lunchroom

舒适的建筑Comfortable building
自收购以来,Keilepand在与租户的密切磋商下进行了翻新,并为未来发展做好了准备。设计强调了仓库的建筑特色;自然凉爽的地下室被用作食品生产与存储,地面层配备了装卸平台和宽敞的入口门,方便内部元素的运输,日光充足的一层则用于设计各种活动。建筑的核心区域,一座宏伟的木材包覆楼梯提供了充足的空间用于会议、讲座和展览。使用橡木木材打造中央楼梯,并以黑钢材质制作栏杆和窗框,与这一坚固的历史性建筑形成了温暖且精致的对比。
Since the acquisition, the Keilepand has been renovated and future-proofed in close consultation with the tenants. The design enhances the architectural features of the warehouse; with the naturally cool basement being used for production and storage of food, the ground floor with loading dock and generous access doors for transport of interior elements, and the daylight flooded 1st floor for design activities. At the heart of the building, the monumental timber clad staircase provides ample space for meeting, lecturing and exhibiting. The use of characteristic materials including oak timber for the central staircase and black steel for balustrades and window frames, provides a warm and sophisticated contrast with the robust monument.
▼地下厨房,Underground kitchen


▼FUR灵感空间-多功能使用,FUR inspiration room for multifunctional use



能源中立Energy-neutral
可持续性是此次改造设计的核心。通过安装两台空气源热泵来提供供暖和空调,使用白色沥青饰面的屋顶外部隔热、室内墙体隔热、LED照明以及为每个空间配置热回收的空气循环系统,这座地标性建筑已于2020年获得了A级能源标签。屋顶安装太阳能面板并增加空气源热泵后,建筑将在2025年实现“脱离电网”,达到能源中立状态。
▼能源分析图,Energy analysis


Sustainability is central to the design of the transformation. With the installation of two air source heat pumps for heating and air conditioning, exterior roof insulation using white bitumin finish, interior wall insulation, LED lighting and heat recovery on the air circulation for each individual space, the landmark building has been awarded energy label A by 2020. The addition of solar panels on the roof and additional air source heat pumps will allow the building to go ‘off-grid’, with energy neutrality by 2025.
▼咖啡角,Coffee corner

▼建筑工作室,Architecture office



可持续城市发展Sustainable urban development
Keilepand是GROUP A与studioADAMS将建筑工具与他人知识和技能相结合的热情与努力的结晶。这一集体化改造方式不仅限于Keilepand,现已扩展到可持续城市发展领域。通过展览、讲座和辩论等活动,KeileCollectief促进并鼓励M4H利益相关者之间的交流、知识共享以及超预期的合作。
The Keilepand is the culmination of the enthusiasm and drive of GROUP A and studioADAMS to combine architectural tools with the knowledge and skills of others. This collective approach to transformation goes beyond the Keilepand and is now deployed for sustainable urban development. With activities such as exhibitions, lectures and debates, the KeileCollectief promotes and encourages meeting, knowledge exchange and unexpected collaborations between M4H’s stakeholders.
▼Keilepand的企业家活动,Keilepand’s entrepreneurs event

▼建筑作品欣赏与讨论,Architecture work critic

▼开会,Meeting

▼食物角,Food corner

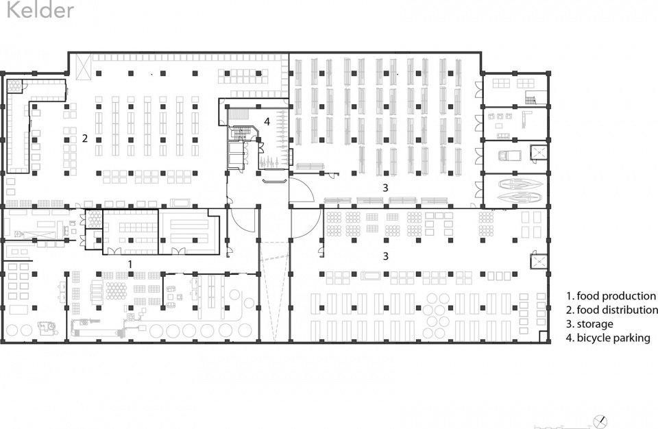
▼地下平面图,Basement Plan

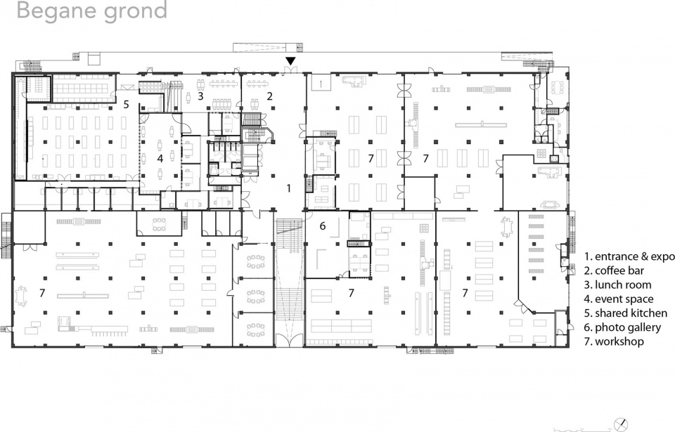
▼一层平面图,First floor plan

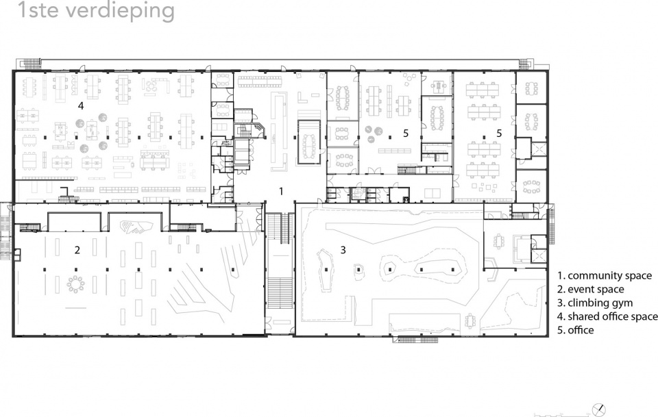
▼二层平面图,Second floor plan

▼剖面图,Section


Project facts
Client: KeileCollectief
Address: Keilestraat 9F, 3029 BP Rotterdam, NL
Architect: GROUP A i.s.m. studioADAMS
Contractor: Cordeel Nederland and KeileCollectief
Installations: Barth installatietechniek
Function: Offices, workshops, production, storage, hospitality, exhibition and event space and sport
Type: Transformation warehouse from 1922 in multifunctional building
Size: 14.500 m²
Design: 2015
Start construction: 1st phase: Q3 2015, 2nd phase: Q1 2020
Completion: 1st phase: Q1 2016, 2nd phase: Q3 2020
Photography: Frank Hanswijk
Energy label: 2020: G to A | 2025: energy-neutral














