厦门大学附属科技中学五缘校区,福建 / 一致建筑工作室(合立道工程设计集团)
在厦门五缘湾的城市肌理间,湿地公园的芦苇荡与 TOD 综合体的玻璃幕墙隔街相顾,坂美民俗文化园里闽南老宅的红砖,正与现代建筑的金属线条悄然对话——厦门科技中学五缘校区,便生长在这片自然与城市共生、传统与现代交织的土地上。场地既紧邻自然,又衔接城市高端商业住宅与湿地公园 TOD;东望厦金湾,西眺五缘湾,周边高端物业林立,既有现代都市的繁华,亦有地域历史的厚重,承载着丰富的场地信息。
▼区位图,Site location

Amidst the urban fabric of Xiamen’s Wuyuan Bay, the reeds of the wetland park and the glass curtain walls of the TOD complex face each other across the street. The red bricks of Minnan-style old houses in Banmei Folk Culture Park engage in a quiet dialogue with the metal lines of modern architecture — it is on this land, where nature and the city coexist, and tradition intertwines with modernity, that the Wuyuan Campus of Xiamen Science and Technology Middle School takes root. Adjacent to nature, the site also connects high-end urban commercial residences and the Wuyuan Bay Wetland Park TOD. Overlooking Xiamen-Jinmen Bay to the east and Wuyuan Bay to the west, it is surrounded by high-end properties, embodying both the prosperity of a modern city and the depth of regional history, and carrying rich contextual information of the site.
▼东南角沿街状态,Southeast street-front condition

▼校园主入口,Main entrance of the campus

▼主入口处三叉桥,Three-way bridge at the main entrance

本案未将自身打造成孤立的 “教育岛”,而是以 “城市露台・教学综合体” 为核心骨架,将五缘湾的波光、民俗园的记忆、学生的学习、生活与嬉闹,尽数编织进建筑空间,成为五缘湾畔一道可学、可游、可望、可忆的独特风景。
Instead of building an isolated “educational island”, this project takes “Urban Terraces & Educational Complex” as its core framework, weaving the glimmers of Wuyuan Bay, the memories of the folk culture park, and the students’ learning, life, and playfulness into the architectural space. It has thus become a unique scenic spot by Wuyuan Bay — a place for learning, wandering, viewing, and reminiscing.
▼主入口处通往礼堂运动馆的连桥,
Bridge linking the main entrance to the auditorium and sports hall

▼从教学楼看西面的五缘湾方向,View toward Wuyuan Bay from the Teaching Building

城市露台:衔接于自然、城市与建筑之间 Urban Terraces: Connecting Nature, City, and Architecture
厦门人素来偏爱听风看海,这所学校的设计便循着这份地域情愫,依托场地东北高、西南低的自然坡度,顺着不同尺度空间的需求,叠造出层层退台。每一层露台都能“接住”专属风景,承载多样活动:往西看,教学综合楼的退台逐级延伸至礼堂、运动馆,学生凭栏远眺,五缘湾湿地公园的景致与落日余晖尽收眼底;往东望,宿舍楼的平台与阳台朝向厦金湾,落日晚霞会将红砖铺就的连桥、平台与走廊,染成温暖的橙色调。
▼过程方案模型,Process scheme model

Xiamen locals have always loved listening to the wind and gazing at the sea. The design of this school follows this regional sentiment: leveraging the natural slope of the site (higher in the northeast and lower in the southwest) and adapting to the needs of spaces of different scales, it creates layered stepped terraces. Each terrace “captures” its own unique scenery and accommodates diverse activities: To the west, the stepped terraces of the teaching complex extend to the auditorium and sports hall. Leaning on the railings, students can take in the full view of Wuyuan Bay Wetland Park and the afterglow of the setting sun. To the east, the platforms and balconies of the dormitory buildings face Xiamen-Jinmen Bay. At dusk, the setting sun and sunset glow dye the red-brick corridors, platforms, and connecting bridges in a warm orange hue.
▼科创楼的退台,Terraced setbacks of the Science & Innovation Building


▼教学综合楼逐层内退的关系,Stepped terraces of the Teaching Complex

▼叠造出的层层退台,Creation of layered stepped terraces

架空的运动场如一块悬浮的巨型露台,腾跃于校园之上——向外,它承接湿地公园的一线绿意,可远眺环岛干道的街景;向内,能俯瞰跑道上奔跑的同学身影。自然、城市与校园,一边是自然,一边是城市,一边是校园,几个不同要素之间的距离被拉进。
The elevated sports field, like a huge floating terrace, rises above the campus: outwardly, it embraces the greenery of the wetland park and offers a distant view of the street scene along Huandao Avenue; inwardly, it overlooks students running on the track. This design narrows the distance between nature, the city, and the campus.
▼科创楼回望连桥及运动馆,
Science & Innovation Building looking back toward the bridge and sports hall

▼架空体育场,Elevated sports field

▼架空体育场近景,Elevated sports field close view

▼教学楼架空体育场与跑道的关系,
Relationship between the elevated sports field and the running track

▼跑道处望向北侧恒禾七尚方向,View from the track toward Henghe Qishang on the north

▼跑道处望向南侧湿地公园TOD方向,
View from the track toward the Wetland Park TOD on the south


教学楼的大弧线,来源于进入校门之后并把建筑的形体往民俗文化园方向衔接引导的大思路,逐级内推的大露台朝西敞开,四季流转间,每一时刻的落日风光都能被完整收纳。这些露台空间,终为在校师生筑起了高品质的自由活动场域。
The large curved shape of the teaching building stems from the design concept of guiding the building’s form toward Banmei Folk Culture Park after entering the school gate. The stepped terraces, which recede inward level by level, open westward, allowing the sunset scenery to be fully enjoyed at every moment throughout the four seasons. These terrace spaces ultimately create a high-quality, free activity area for teachers and students.
▼主入口望向教学综合楼,Main entrance view toward the Teaching Complex

▼三叉桥处望向教学综合楼,View toward the Teaching Complex from the three-way bridge

地脉留痕:让场地记忆长在建筑里 Trace of the Land: Letting Site Memories Live in Architecture
科技中学五缘校区的设计,没有让场地的“故事”消散:原场地的老建筑虽已迁址至紧邻的坂美民俗文化园,但设计通过空间的退让与视线的贯通,将民俗园的景致“请”入校园。
The design of Wuyuan Campus ensures that the “stories” of the site are not lost: although the old buildings on the original site have been relocated to the adjacent Banmei Folk Culture Park, the design “invites” the scenery of the folk culture park into the campus through spatial setbacks and unobstructed views.
▼艺术楼、连桥、科创楼与坂美民俗文化园,
Art Building, bridge, Science & Innovation Building and Banmei Folk Culture Park

科创楼双向退台与民俗园、湿地公园形成视线呼应——既在城市空间形态上衔接了东侧民俗园与西侧湿地公园,更成为师生课间思考、冥想的静谧角落。场地内的两棵古榕树均得以完整保留:教学楼前的古榕树,是校园主入口的重要对景,教学楼的大弧线亦在此收束;另一棵矗立在科创楼与跑道之间,枝叶如伞盖般垂落至跑道,成为校园西北角的关键空间节点。
The two-way stepped terraces of the Science and Innovation Building form a visual connection with the folk culture park and the wetland park — not only linking the folk culture park (east) and the wetland park (west) in terms of urban spatial form, but also serving as a quiet corner for teachers and students to reflect or meditate during breaks. Two ancient banyan trees on the site have been fully preserved: one, in front of the teaching building, serves as an important focal point at the main entrance of the campus, where the large curve of the teaching building also ends; the other stands between the Science and Innovation Building and the track, its branches and leaves drooping like an umbrella over the track, becoming a key spatial node in the northwest corner of the campus.
▼跑道与古树、连桥的关系,Relationship between the track, ancient tree and connecting bridge

▼保留古榕树处望向教学综合楼,
View of the Teaching Complex from the preserved ancient banyan tree

民俗园的红砖基因也被揉进材料选择:户外空间铺地大量采用红砖,指尖触之粗糙却温润,足尖踏之满是闽南老厝的温厚质感。行走其间,现代校园与记忆里的闽南街巷悄然建立情感联结,地域归属感便这样悄悄落在脚下。
The red-brick heritage of the folk culture park is also integrated into the material selection: red bricks are widely used for the paving of outdoor spaces. They are rough yet warm to the touch, and stepping on them evokes the gentle texture of traditional Minnan courtyard houses. Walking here, a subtle emotional connection is established between the modern campus and the Minnan streets in memory, quietly fostering a sense of regional belonging under one’s feet.
▼三楼平台望向艺术楼与架空足球场,
Third-floor terrace overlooking the Art Building and elevated football field

功能织构:教学、活动空间的大融合 Functional Fabric: Integration of Teaching and Activity Spaces
本案的教学空间布局集约且简明:音乐、美术、舞蹈教室集中设于艺术楼,所有普通教室、图书馆及各学科实验室,则均集中在教学综合楼内。教学综合楼中央的核心中庭,空间层次丰富、递进有序,且自然光线充沛,堪称教学楼的 “空间心脏”——以它为中心,聚合起所有教室、图书馆与实验室。未来这里的使用场景将多元而鲜活:可陈列学生的科创作品展,可举办小型读书会,甚至能让社团搭建临时舞台、开展各类展览活动,成为激发学生自由活动的 “场景引擎”。
The layout of teaching spaces in this project is concise and intensive: Music, art, and dance classrooms are concentrated in the Art Building.All regular classrooms, the library, and subject-specific laboratories are housed in the Teaching Complex. The core atrium in the center of the Teaching Complex, with its rich and well-proportioned spatial layers and abundant natural light, is known as the “spatial heart” of the teaching building — it serves as the center, integrating all classrooms, the library, and laboratories. In the future, this space will support diverse and vibrant scenarios: it can display students’ science and innovation works, host small book clubs, or even allow clubs to set up temporary stages and hold various exhibitions, becoming a “scenario engine” that inspires students’ free activities.
▼主入口望向艺术楼,Main entrance view toward the Art Building

▼教学楼的 “空间心脏”,”Spatial heart” of the teaching building

更值得一提的是,教学楼、艺术楼、宿舍、大礼堂与运动场,通过一系列环形交通动线串联;大大小小的露台空间则参与到动线建构中,最终将教学、艺术与生活空间,织就成一张紧密联动的交通网络。
More notably, the teaching building, Art Building, dormitories, auditorium, and sports field are connected by a series of circular traffic routes. Terraces of various sizes are also integrated into the traffic layout, ultimately weaving teaching, art, and living spaces into a tightly linked transportation network.
▼教学综合楼东侧立面,East façade of the Teaching Complex

▼教学综合楼首层架空空间,Ground-floor pilotis space of the Teaching Complex

▼教学综合楼庭院望向西侧,Courtyard of the Teaching Complex looking west

▼艺术楼,Art Building

▼大礼堂室内空间,Interior of the main auditorium

光影呼吸:让风与光成为校园的常客 Light and Shadow Breathing: Letting Wind and Light Become Regular Guests on Campus
厦门的夏季湿热难耐,设计希望在未来的校园里,风与光线能成为提升空间品质的核心力量。建筑之间与内部嵌套着多个不同体系、不同尺度的庭院,首层多采用架空设计——风可循着庭院渗入室内,再从庭院上部流转而出,让校园四季都拥有舒适的内部风环境。
Xiamen’s summers are hot and humid. The design aims to make wind and light core forces for enhancing spatial quality in the future campus. Multiple courtyards of different systems and scales are nested between and within the buildings, and most of the ground floors are elevated — wind can flow into the interior through the courtyards and circulate out from the upper parts of the courtyards, ensuring a comfortable internal wind environment on campus throughout the year.
▼教学综合楼中庭空间,Atrium space of the Teaching Complex


图书馆空间围绕中庭展开,入口处设双层挑空设计,顶部与庭院的开窗让阳光肆意洒入,为阅读营造出温暖而松弛的氛围。灯具藏于网状吊顶之后,入夜后,灯光透过张拉网洒满空间,勾勒出灵动而细腻的光影氛围。
The library space is arranged around the atrium, with a double-height design at the entrance. Windows on the roof and courtyard allow sunlight to pour in freely, creating a warm and relaxed atmosphere for reading. Lighting fixtures are hidden behind the mesh ceiling; at night, light spreads through the tensioned mesh, outlining a flexible and delicate light-and-shadow atmosphere.
▼教学综合楼图书馆内庭院空间,Library interior courtyard of the Teaching Complex

结构呈现:富有力量感的结构形式 Structural Expression: Powerful Structural Forms
体育馆的胶囊状立柱将各类管线包裹其中,既传递出富有秩序的力量感,又与体育馆的空间尺度完美契合;艺术楼与科创楼的连桥,采用梯形混凝土立柱结构,在光影交错间营造出极具体积感的空间氛围 —— 而柱与柱之间的座椅,亦成为结构的有机组成部分。
The capsule-shaped columns of the gymnasium enclose various pipelines, conveying a sense of orderly strength while perfectly matching the spatial scale of the gymnasium. The connecting bridge between the Art Building and the Science and Innovation Building adopts a trapezoidal concrete column structure, creating a highly volumetric spatial atmosphere amid the interplay of light and shadow — and the seats between the columns have also become an organic part of the structure.
▼连桥回望教学及生活区,Bridge looking back toward the teaching and living quarters

▼连桥望向科创楼,Bridge view toward the Science & Innovation Building

▼科创楼回望连桥及运动馆,
Science & Innovation Building looking back toward the bridge and sports hall


遗憾 Regret
教学综合楼的中庭空间,为营造良好的空间氛围与层次,设计团队在结构设计上付出了诸多努力与尝试。结构刚拆除脚手架时,也确实呈现出了较好的空间效果;可惜在后续建造过程中,这一空间效果未能得到妥善延续,成为本项目最大的遗憾。
▼原始结构,Original structure

To create a good spatial atmosphere and layering for the atrium of the Teaching Complex, the design team made considerable efforts and attempts in structural design. When the scaffolding was just removed, the space did present a good effect; unfortunately, this spatial effect was not properly maintained during the subsequent construction process, becoming the biggest regret of this project.
▼教学综合楼中庭空间近景,Atrium space of the Teaching Complex close view

后记 Postscript
这所学校最动人之处,并非华丽的造型,而是其贴合场地的策略与姿态——将城市风景、地域记忆与教育空间的需求妥善融合,既轻松又亲切。在这里,设计希望建筑不再是冰冷的载体,而是能陪伴学生成长的朋友、能与城市对话的纽带、能留存场地记忆与一代代学子高中岁月的容器。这大概就是校园该有的样子:让每一个踏入这里的人,都能由衷感受到——在这里,我既想专注学习,也想好好生活。
The most touching aspect of this school is not its gorgeous appearance, but its site-adapted strategy and posture — properly integrating urban scenery, regional memories, and the needs of educational spaces, making it relaxed and approachable. Here, the design intends for architecture to be no longer a cold carrier, but a friend that accompanies students’ growth, a link that communicates with the city, and a vessel that preserves site memories and the high school years of generations of students. This is probably what a campus should be like: letting everyone who steps into it sincerely feel — here, I want to focus on studying, and also want to live well.
▼总平面图,Master plan

▼一层平面图,1F plan


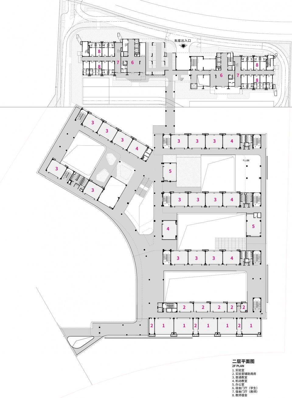
▼二层平面图,2F plan


▼三层平面图,3F plan


▼四层平面图,4F plan

▼五层平面图,5F plan















