迢音电报酒店,第比利斯市 / 如恩设计研究室
第比利斯旧电报大楼是格鲁吉亚苏联时期的标志性建筑遗产。该建筑由建筑师拉多·阿列克西-梅什基什维利(Lado Alexi-Meskhishvili)与泰穆拉兹·米卡沙维泽(Teimuraz Mikashavidze)于20世纪60年代设计,70年代建成,并于1983年荣获格鲁吉亚国家奖。作为粗野主义风格的地标建筑,它曾是第比利斯的中央邮局及电报局,不仅承担着基础设施的枢纽功能,更是社区聚集的公共空间,成为当地交流与公共生活的鲜明象征。
The former Telegraph Building in Tbilisi is a monumental piece of Georgia’s Soviet-era heritage. Designed in the 1960s by architects Lado Alexi-Meskhishvili and Teimuraz Mikashavidze and completed in the 1970s, this Brutalist landmark was awarded the State Prize of Georgia in 1983 along with the architects. Once serving as the city’s central post office and telegraph office, it was more than just an infrastructural hub, but also a nerve center for communication and a vital civic space where the community gathered, making it a powerful symbol of connection and public life.
在沉寂荒废数十年后,如恩受丝路集团(Silk Road Group)创始人George Ramishvili之邀,对该建筑进行改造,旨在实现历史遗产与当代建筑语言之间的自然融合。此次适应性再利用的设计策略,超越了物理层面的简单修复,肩负着更深层的使命:守护集体记忆,重新诠释建筑蕴含的社会意义。项目的核心理念是重塑社区活力,而这也是该建筑昔日的精神所在。
▼第比利斯旧电报大楼外观,The former Telegraph Building in Tbilisi

▼设计草图,Sketches by Lyndon Neri


Following decades of abandonment, Neri&Hu was invited by George Ramishvili, the founder of Silk Road Group, to transform the Telegraph Building, with the aim of creating a seamless fusion of historical preservation and modern architectural brilliance. In line with this vision, the design approach to adaptive reuse moves beyond mere physical preservation, embracing a deeper mission: the safeguarding of collective memory and the reinterpretation of the building’s inherent social significance. The guiding principle becomes the revival of the community, a notion once central to its role in communication.
▼酒店内庭院,Courtyard


如恩的设计改造并非传统意义上的“修复”,而是一场“批判性再适用”。这一方法受到斯维特拉娜·博伊姆(Svetlana Boym)“反思型怀旧”(reflective nostalgia)理念的启发,摒弃对过去的理想化重构,转而珍视碎片化、残缺感与诗意性的表达。设计没有掩盖岁月的裂痕,而是将其凸显,使建筑原有的混凝土结构与优雅的新增元素展开层次丰富的对话。这种方式并非将建筑封存为遗迹,而是让历史记忆以鲜活的姿态延续。正如建筑师阿尔多·罗西(Aldo Rossi)所言,此类建筑是城市记忆的永恒锚点。如恩通过重启建筑的连接功能,让记忆重新被激活,在当代城市语境中获得新的延续。
Neri&Hu’s transformative intervention is not an act of restoration but of “critical reinterpretation.” The approach is guided by Svetlana Boym’s concept of “reflective nostalgia,” which favors the fragmentary, the incomplete, and the poetic over a mythologized reconstruction of the past. Instead of plastering over the cracks of time, the design highlights them, creating a layered dialogue between the building’s raw, existing concrete structure and elegant new insertions. This method honors memory not by embalming the building as a relic, but by allowing its history to resonate through its new life. Aldo Rossi argued that such structures act as permanent anchors of civic memory. Neri&Hu activate this memory by re-animating the building’s core social function which is connection.
▼酒店接待区域,Reception


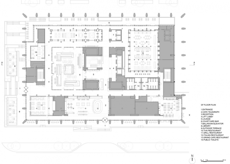
建筑首层被构想为城市公共空间的延伸:一系列交织的廊道,如同第比利斯的狭窄街巷,串联起餐厅、图书馆与俱乐部等公共设施,最终汇聚至中央庭院。这个经过重新诠释的室内城市广场,激活了建筑作为集会场所的传统,亦呼应了格鲁吉亚住宅中共用阳台的特色。设计体现了理查德·森内(Richard Sennett)所提出的“城市渗透性”理念,刻意模糊了室内与室外、公共与私密的界限。通过将“间(threshold)”转化为自发交流的平台,它孕育出活力城市赖以生存的社会互动,也在第比利斯的集体记忆中实现了新的延续。
▼设计草图,Sketches by Lyndon Neri


The ground floor is masterfully conceived as an extension of the city’s public realm. A network of corridors, evocative of Tbilisi’s narrow alleyways, organizes a sequence of public venues with a number of restaurants, a library, a club culminating in the central courtyard. Reinterpreted as an urban square, this interior yet civic space reactivates the building’s role as a gathering place, mirroring the communal balconies of Georgian residential complexes. This design embodies Richard Sennett’s ideal of “urban porosity,” deliberately blurring the boundaries between interior and exterior, public and private. By transforming the threshold into a platform for spontaneous encounter, the design fosters the very social engagement that is the lifeblood of a vibrant city, ensuring the building’s continuity in Tbilisi’s collective experience.
▼咖啡馆,Grand Café


▼舞厅,Ballroom

▼舞厅前廊,Ballroom Prefunction

▼意大利餐厅,Italian Restaurant


▼意大利餐厅入口,Italian restaurant entrance

▼咖啡馆Bell & Gray,Café_Bell & Gray



▼泰国餐厅,Northen Thai_Laan Thai


▼图书馆,Library

▼大厅,Lobby

▼烧烤店,The Grill


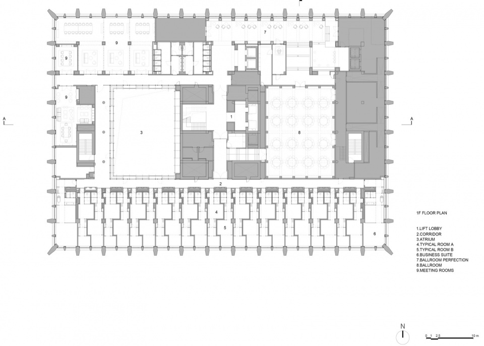
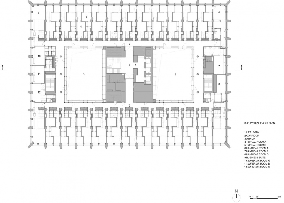
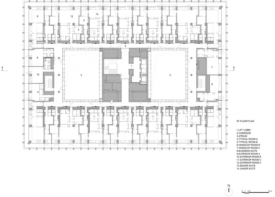
在上层空间中,客房布局遵循原有的结构网格。空间从入口延展至休憩区与窗边,呈现出线性的秩序与节奏,仿佛火车车厢的流动感,亦是对历史上的丝绸之路致敬。这一隐喻与作家保罗·鲍尔斯(Paul Bowles)在《遮蔽的天空(The Sheltering Sky)》中传递的主题深度呼应。书中区分了短暂途经的游客与寻求融入并渴望与当地建立联结的旅者。正如书中角色所言:“游客在抵达的瞬间便想着归途……而旅者或许永不回头。”如恩的设计有意识地为“旅者”打造一个可供沉思与休憩的空间,将旅程本身定义为真正的目的地。入住停留因此不再是简单的消费行为,而是一段关于移动与探索的叙事,使建筑昔日的通信功能与现代的旅行仪式紧密交织。
Within the upper floors, the guest rooms are organized within the existing structural grid. A linear, rhythmic arrangement moving from entrance to lounge to window evoking the experience of a railway carriage, a deliberate nod to the historic Silk Road. This metaphor is profoundly linked to the themes of Paul Bowles’ “The Sheltering Sky,” which distinguishes between the tourist, who merely passes through, and the traveler, who seeks immersion and connection with a place. As one character states, “A tourist is someone who thinks about going home the moment they arrive…a traveler might not come back at all.” Neri&Hu’s design consciously creates a destination for the “traveler”—a space for contemplation and rest that frames the journey itself as the destination. It transforms the act of staying there from a simple transaction into a narrative of movement and discovery, linking the building’s historic role in communication to modern rituals of journey.
▼客房,Guest room




▼客房角落,Guest room corner


电报酒店正是这一理念的典范。它并未将这座粗野主义地标当作历史遗迹封存,而是在致敬其过往的同时,为其赋予充满活力的新生。这种改造方式孕育了一种更深层次的文化旅游理念——访客不仅观看历史,更参与历史:他们成为第比利斯市民生活的临时参与者,深入感受历史的层积、物质的肌理与社会的意义。
The Telegraph Hotel is a quintessential example of this idea. It does not embalm the Brutalist monument as a relic; it gives it a new, vibrant life that honors its past. This approach fosters a form of deep idea of cultural tourism, where visitors are invited to engage with the layers of history, materiality, and social meaning. They don’t just see a historical site; they inhabit a continuing story, becoming temporary participants in the civic life of Tbilisi.
▼酒店内庭院,Courtyard


如恩的介入让这座建筑的历史叙事以全新的方式深刻回响。项目融合了公共参与的精神、旅者对真实体验的追寻,以及动态保护的理念,实现了出色的平衡。曾经作为电报通信枢纽的场所,如今被转化为关于社区、记忆与流动的多层建筑叙事空间,电报酒店不再是沉睡的纪念碑,而是充满活力、生生不息的公共空间,延续着第比利斯的城市精神与生活脉动。
Neri&Hu’s intervention allows the building’s historical narrative to resonate in profound new ways. By weaving together ideals of civic engagement, the traveler’s quest for authentic experience, and the ethos of living preservation, the project achieves a remarkable synthesis. What was once a site of telegraphic connection has become a layered architectural narrative of community, memory, and mobility. The Telegraph Hotel thus honors its legacy not as a dormant monument, but as an active, breathing civic space that continues to foster collective belonging in the heart of Tbilisi.
▼首层平面图,Gf floor plan

▼一层平面图,1F floor plan

▼2-4层平面图,Typical floor plan

▼5层平面图,5F floor plan

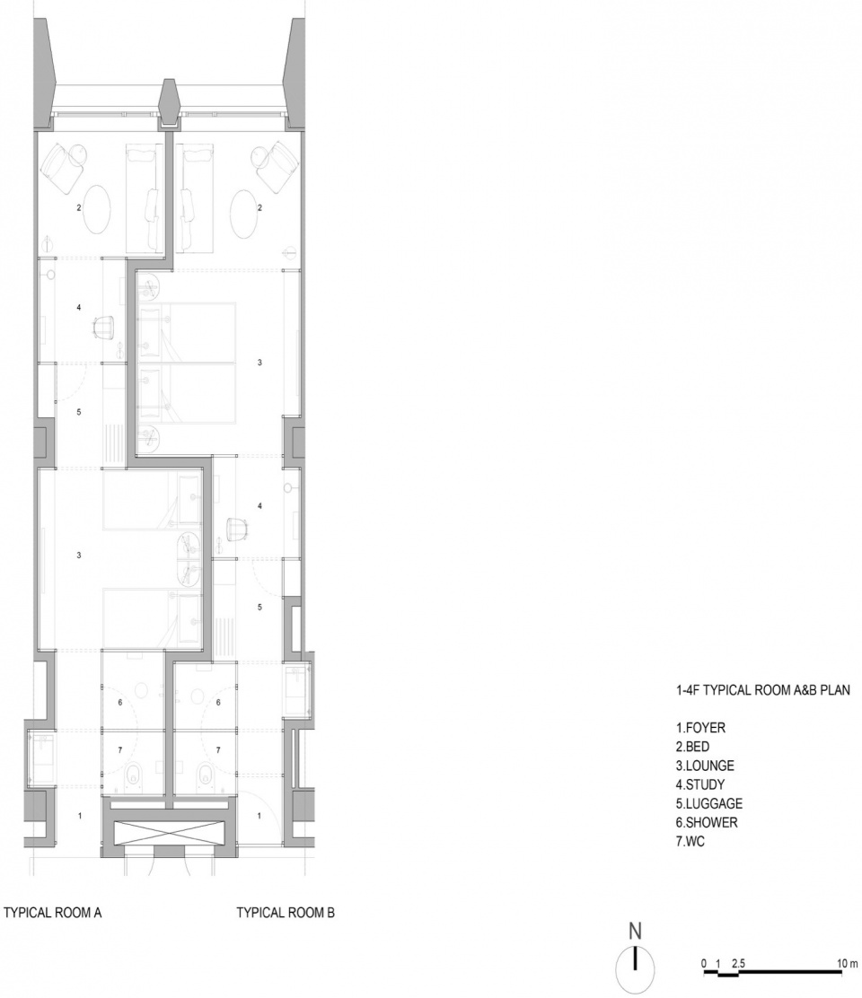
▼1-4层标准间A、B平面图,1-4F typical room A and B plan

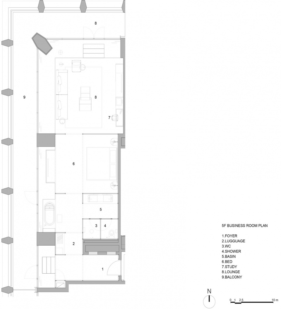
▼5层商务间平面,5F business room

▼1-4层标准间轴测,1-4F typical room iso

▼南立面图,South elevation

▼西立面图,West elevation

▼剖面图,Section

地点:格鲁吉亚第比利斯市
完成时间:2025年6月
业主:Silk Road Group
项目内容:建筑设计,室内设计,产品设计
项目功能:酒店
建筑总面积:30,608平方米
占地面积:4,395平方米
客房数:239
主持建筑师:郭锡恩,胡如珊
主持协理总监:Federico Saralvo
室内设计协理总监:Laurent Tek
产品设计资深协理:Ath Supornchai
设计团队:Dania Flores,Ambesh Suthar,Bernardo Tagliani,Lucia Esparza,陈宸,夏嘉懿,杨元恺,王钰璇,刘洋,李宛如,吴震海
建筑设计:如恩设计研究室
室内设计:如恩设计研究室
顾问
备案建筑师:Archidea Architecture
外立面:Meinhardt Facade Technology
照明概念:The Flaming Beacon Berlin Studio
照明设计:Meinhardt Light Studio
厨房:The Airedale Group
机械系统:Dinamik Proje
电气系统:HBTBIM Engineering Services Co.
结构:Progresi L.T.D.
施工方
施工总包:D&T Group
Site Address: Tbilisi, Georgia
Date of Completion: 2025
Client: Silk Road Group
Project Type: Architecture, Interior, Product Design
Program: Hotel
Site area: 4,395 m²
Gross area: 30,608 m²
Guest rooms: 239 rooms
Partners-in-charge: Lyndon Neri, Rossana Hu
Associate Director-in-charge: Federico Saralvo
Associate Director for Interior Design: Laurent Tek
Senior Associate for Product Design: Ath Supornchai
Design team: Dania Flores, Ambesh Suthar, Bernardo Tagliani, Lucia Esparza, Chen Chen, Jiayi Xia, Michael Yang, Yuxuan Wang, Yang Liu, Wanru Lee, Greg Wu
Architecture design: Neri&Hu Design and Research Office
Interior design: Neri&Hu Design and Research Office
Consultants:
Architect of Record: Archidea Architecture
Façade: Meinhardt Facade Technology
Lighting Concept: The Flaming Beacon Berlin Studio
Lighting Design: Meinhardt Light Studio
Kitchen Consultant: The Airedale Group
Mechanical Systems Consultant: Dinamik Proje
Electrical Systems Consultant: HBTBIM Engineering Services Co.
Structural Consultant: Progresi L.T.D.
General Contractor: D&T Group














