牛津大学生命与心智大楼,英国 / NBBJ
英国牛津——牛津大学生命与心智大楼(Life and Mind Building)已在牛津市中心正式向公众开放。这座世界级的教学与研究设施旨在应对全球挑战,由 Legal & General 提供 2 亿英镑的投资支持,由国际知名建筑事务所 NBBJ 设计。大楼将生物学系与实验心理学系汇集在同一座充满自然光的协作环境中,以促进研究、教学与探索的新机遇。
Oxford, UK – The University of Oxford Life and Mind Building, a world-class teaching and research facility designed to address global challenges, has opened in the heart of Oxford. Enabled by a £200 million investment from Legal & General, this landmark facility- designed by internationally renowned architecture firm NBBJ- brings together the Departments of Biology and Experimental Psychology under one roof in a light-filled, collaborative environment that will foster new opportunities for research, teaching and discovery.
▼项目概览,overview of the project

该项目由 Oxford University Development(OUD)交付——这是牛津大学与 Legal & General 的联合开发平台。建筑面积达 269,000 平方英尺,是大学迄今为止承担的最大项目之一。该建筑为高性能科研环境确立了低碳与可持续设计的新基准,并获得 A 级 EPC 能效评级。大楼将容纳超过 1,400 名科学家、学者、研究人员、支持人员及研究生,并作为约 1,000 名本科生的主要教学场所,配备新的报告厅与教学空间。
Delivered by Oxford University Development (OUD) – a joint venture between Oxford University and Legal & General – the 269,000 sq ft building is one of the largest projects ever undertaken by the University. It sets a new benchmark for low-carbon, sustainable design in high-performance research environments, achieving an EPC rating of A. It will provide a home for more than 1,400 scientists, academics, researchers, support staƯ and postgraduate students and become the main teaching location for around 1,000 undergraduate students with new lecture halls and teaching spaces.
▼项目街景,street view of the project

探索之门 A Gateway to Discovery
作为一个为探索而构建的“生命框架”,该建筑的建筑语言在一系列互相连接的楼层间编排着流动、光线与互动。阶梯式中庭作为建筑的社会与空间脊梁,通过一系列内部露台连接研究实验室、教学空间和公共区域。中庭横贯建筑,从公共广场的抵达空间一路引导至牛津历史天际线的广阔景观。
Conceived as a living framework for discovery, the building’s architecture choreographs movement, light, and interaction across a series of interconnected levels. A stepping atrium acts as the building’s social and spatial spine, linking research labs, teaching spaces, and communal zones through a sequence of internal terraces. It crosses the building, leading from arrival via a public plaza up to sweeping views across Oxford’s historic skyline.
▼阶梯式中庭,stepping atrium

▼公共空间,public space

设计强调视觉透明性与认知清晰度,使得使用者与绿色空间的距离从不超过一层楼——无论是生物多样性的屋顶花园、种植露台,还是将建筑锚定于城市的公共广场。这样的亲自然设计策略是“生命与心智”理念的核心:它支持心理健康、改善空气质量,并强化建筑的生态属性。
▼概念图,concept diagrams

The design fosters visual transparency and cognitive clarity, with occupants never more than one level away from a green space- whether through biodiverse roof gardens, planted terraces, or the public plaza that anchors the building to the city. This biophilic strategy is integral to the building’s ethos of the ‘life and mind’: it supports mental wellbeing, enhances air quality, and reinforces the building’s ecological identity.
▼屋顶花园,roof gardens

材料表达 Material Expression
建筑的石材立面既回应环境语境,也具有象征意义,其上呈现一个在设计过程中捕捉到的三维脑波浮雕——思想的字面印记被嵌入建筑之中。该雕塑元素记录了实验心理学系前学生、现任研究员 Sage Boettcher 博士的脑波信号。信号采集于她思考这座建筑未来的一刻,将两秒钟的认知瞬间转译为建筑形态。它既是科学进步的时间胶囊,也是建筑使命的诗意表达:探索心智、自然及其相互连接的系统。“这段小小的脑活动片段代表了两秒钟,完美捕捉了科学、设计与发现之间的关系。”Sage 表示。
The building’s stone façade is contextual and symbolic, featuring a three-dimensional brainwave relief captured during the design process- a literal imprint of thought embedded in architecture. This sculptural feature records a brainwave from Dr. Sage Boettcher, a former student and now research fellow in the Department of Experimental Psychology. The signal, taken as she contemplated the building’s future, represents a two-second moment of cognition, transformed into architectural form. It serves as both a time capsule of scientific progress and a poetic expression of the building’s purpose: to explore the mind, nature, and the systems that connect them. “The little snippet of brain activity represents two seconds, perfectly capturing the relationship between science, design and discovery,” says Sage.
▼石材立面,stone façade



高效的校园设计 Efficient Campus Design
新建筑标志着校园设计向前迈出了重要一步,使院系人员规模可增长 23%,同时比此前的设施减少 21% 的建筑面积。通过共享研究设施、灵活教学空间以及多样化的工作与学习环境,实现对现代学术需求的支持,从而达成这一目标。
The new building marks a major step forward in eƯicient campus design allowing for 23% departmental headcount growth while using 21% less floor space than previous accommodation. This was achieved through the introduction of shared research facilities, flexible teaching spaces, and a variety of work and study environments designed to support modern academic needs.
▼多样化的学习空间,diverse learning space



可持续性能 Sustainable Performance
可持续性嵌入建筑的每一个层面:高度保温的外立面、空气源热泵、屋顶太阳能板、三层玻璃以及自适应通风系统,使其运营能耗预计比英国实验室净零碳目标低约 40%。建筑连接至服务周边设施的热力网络,使其能够在未来直接接入城市级热网系统。
Sustainability is embedded at every level with a highly insulated facade, air source heat pumps, rooftop solar panels, triple glazing, and adaptive ventilation contributing to an operational energy use projected to be approximately 40% below UK Net Zero Carbon targets for labs. The building connects to a heat network serving a number of neighbouring facilities. This will enable it to be immediately connected to any future city-wide heat network.
▼外立面,facade

通过“制造与装配设计”(DfMA)方式进行的异地建造减少了施工废料并加速了建设进程;超过 550 平方米的绿色屋顶、野生动物栖息地与传粉植物进一步强化了建筑的生态足迹。室内材料则基于低 VOC 排放、热效率与触感温暖等标准选用,以打造健康、恢复性的室内环境。
OƯsite construction via Design for Manufacture and Assembly (DfMA) reduced waste and accelerated delivery, while over 550 sqm of green roofs, wildlife habitats, and pollinator planting reinforce the building’s ecological footprint. Internally, materials were selected for low-VOC emissions, thermal eƯiciency, and tactile warmth, supporting a healthy and restorative environment.
▼绿色屋顶,green roofs


科学与社会的相遇 Science Meets Society
建筑地面层通过两层开放式布局与城市相连,通过退台式公共广场形成开放界面,旨在促进科学家与公众之间的交流。报告厅、研讨室与咖啡厅被布置在促进非正式互动的位置,使这座建筑不仅是一座科研中心,也是文化与市民生活的地标。
At ground level, the building opens across two levels to the city through a terraced public plaza, designed to invite engagement between scientists and the wider community. Lecture theatres, seminar rooms, and cafés are positioned to encourage informal interaction and intellectual exchange, making the building not just a centre for research, but a cultural and civic landmark.
▼报告厅,Lecture theatres

▼咖啡厅,cafés

为灵活性与成长而设计 Designed for Flexibility and Growth
整体设计策略使建筑能够适应科学不断变化的需求——包括扩展特种植物培养环境、生物科学实验室,或加强干实验室模拟区,以先进设施研究人类行为、感知、发展与心理健康。屏蔽室可用于记录脑电图(EEG)脑波模式,并与眼动追踪与视网膜扫描等设备联用;这些空间与录音室、运动实验室及睡眠实验室共同组成研究集群。
An integrated approach enables the building to evolve with the changing demands of science – whether by expanding specialist plant growth environments and bioscience laboratories, or by enhancing dry-lab simulation zones equipped with advanced facilities for studying human behaviour, perception, development and mental health. Shielded rooms allow electroencephalograms (EEG) to track and record brainwave patterns alongside eye tracking and retinal scanner facilities. These are grouped with audio booths, motor labs and a sleep laboratory.
▼实验室,laboratories

通过将两个系部并置于同一建筑内,该大楼将重塑生物科学与心理科学之间的关系,使研究者能够在理解复杂系统时探索共性——从生态模式到神经网络。大楼亦将成为抗菌药物研究机构——Ineos Oxford Institute(IOI)的所在地。OUD 是英国一种新的开发模式,将大学土地与私营部门投资结合,以实现学术与商业回报,并促进社区投资与公共利益。如果成功,该模式可在全球大学城与城市中推广。
By bringing together the two departments, the building will transform the relationship between biological and psychological sciences, enabling researchers to explore commonalities in understanding complex systems- from ecological patterns to neural networks. The building will also be home to the Ineos Oxford Institute for antimicrobial research (IOI). OUD is a new development model in the UK, bringing university land alongside private sector investment to deliver academic and commercial returns alongside community investment and benefits. If successful, it can be replicated for university towns and cities globally.
▼街景,street view


NBBJ 设计负责人 Ingo Braun 表示:“在如此重要的位置为牛津大学设计一座平衡科学精确性与人文体验的建筑,是一项极具挑战却十分有成就感的任务。我们希望创造一个开放、灵活、光线充盈的环境,以促进协作、福祉与探索,如今看到愿景落地非常振奋。”
Ingo Braun, Design Principal, NBBJ said: “Designing a building that balances scientific precision with human experience in such a key location for the University of Oxford was a rewarding challenge. We set out to create an open, flexible, light-filled environment that fosters collaboration, wellbeing, and discovery and it’s exciting to see that vision come to life.”
▼室内空间,interior space


牛津大学 Nuffield 临床神经科学系名誉教授、项目高级负责人 Chris Kennard 表示:“生命与心智大楼为最大化生物科学与心理科学的协作研究、教学与公众参与提供了一流的环境。NBBJ 的杰出建筑团队与两大系部紧密合作,再加上 Wates、Arup 与 OUD 的共同努力,为大学打造了其最优秀、最大、最灵活、最具可持续性的科学建筑之一。”
Chris Kennard, Professor Emeritus of Clinical Neurology at the NuƯield Department of Clinical Neurosciences, University of Oxford, and Senior Responsible OƯice for the project said: “The Life and Mind Building provides a first-class environment to maximise collaborative research, teaching and public engagement in the biological and psychological sciences. There has been intense collaboration between the brilliant architectural team at NBBJ and the world-class Departments of Biology and Experimental Psychology, who are to occupy the building. They have, together with Wates, Arup and Oxford University Development, provided the University with one of its finest, largest, most sustainable and flexible science buildings.”
▼远景,Vision

OUD 首席执行官 Anna Strongman 表示:“生命与心智大楼是各方共同努力的重要成果,它将极大提升大学的教学与研究能力,并推动更广泛的牛津生态系统发展。作为 OUD 组合中首批落成的项目之一,它展示了我们创新合作模式在支持大学与城市未来发展方面的巨大潜力。”
Anna Strongman, CEO of Oxford University Development said: “The Life and Mind Building is a fantastic achievement for all involved and will be a great addition to the university’s teaching and research facilities as well as the wider Oxford ecosystem. The Life and Mind Building is one of the first projects to be completed as part of the OUD portfolio, demonstrating the power of our innovative partnership to support the future of the University and the City.”
▼剖面图,section

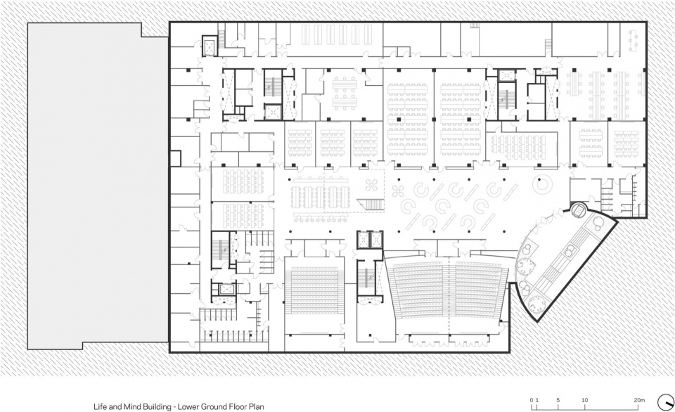
▼地下层平面,lower ground floor plan

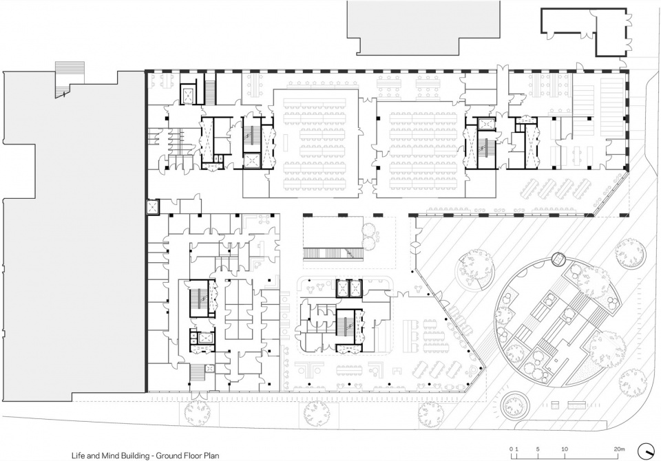
▼1层平面,ground floor plan

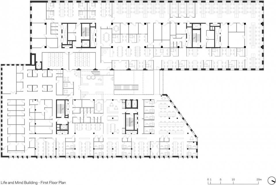
▼2层平面,first floor plan

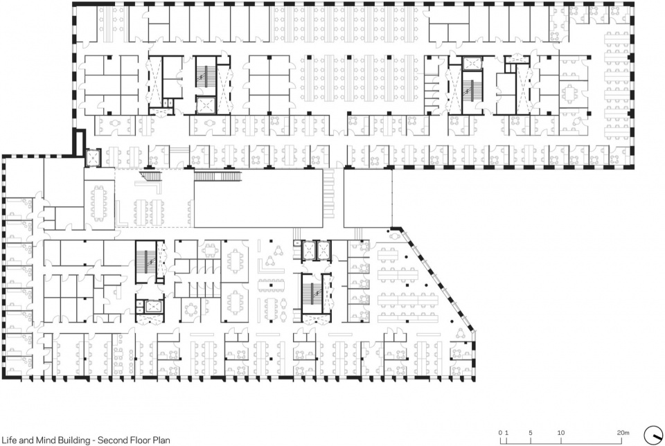
▼3层平面,second floor plan

▼4层平面,third floor plan

▼5层平面,fourth floor plan

▼西立面,west elevation

▼北立面,north elevation

▼东立面,east elevation

▼南立面,south elevation

Life and Mind Project delivery team
Architect: NBBJ
Delivery partner: Legal & General
Development manager: Oxford University Development
Contractor: Wates
Project Manager: Arup
Cost consultant: Arcadis
Civil and Structural engineer: Ramboll
Building Services engineer: Hoare Lea
Landscape architect: Fira
Planning Consultant: Savills














